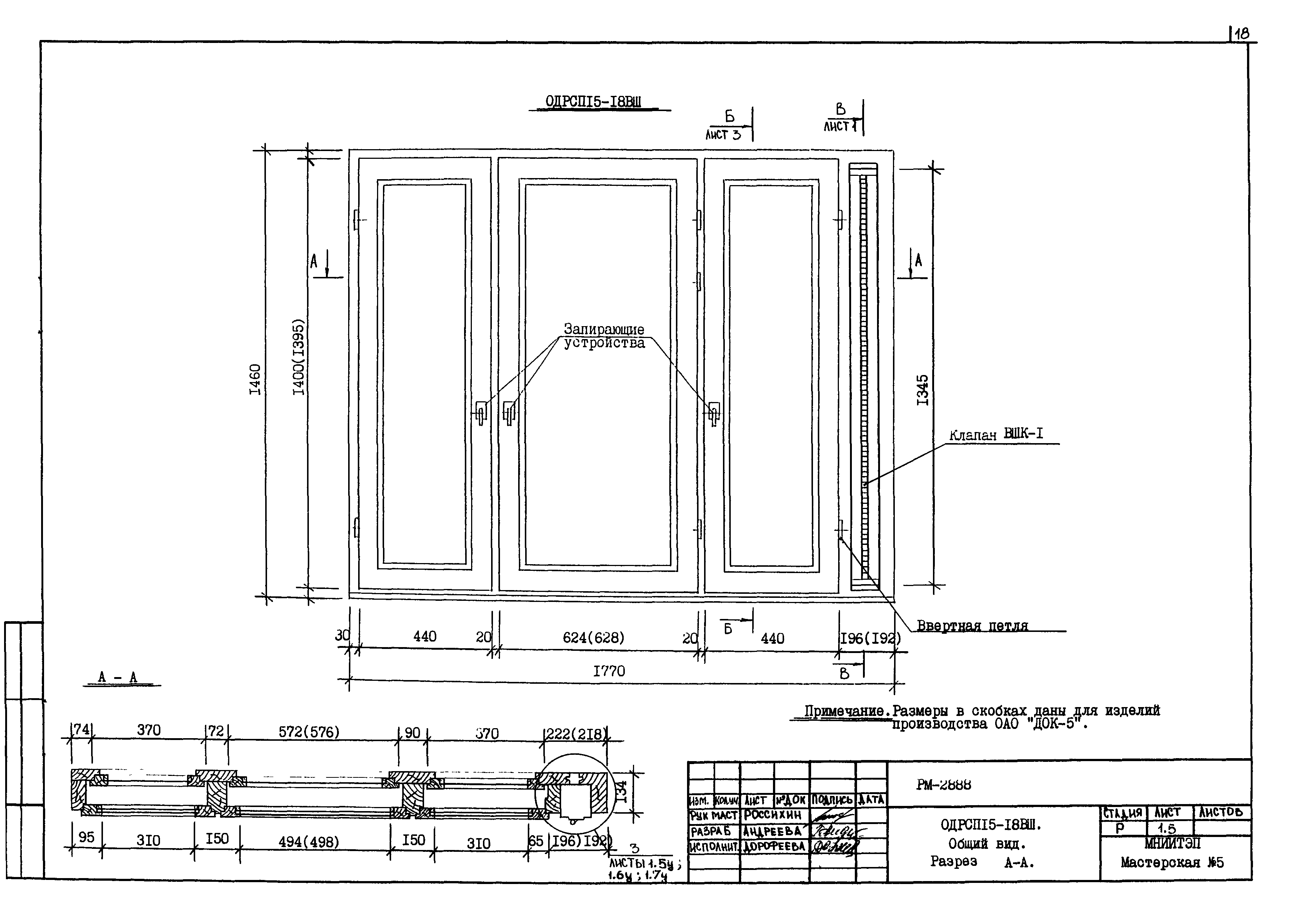
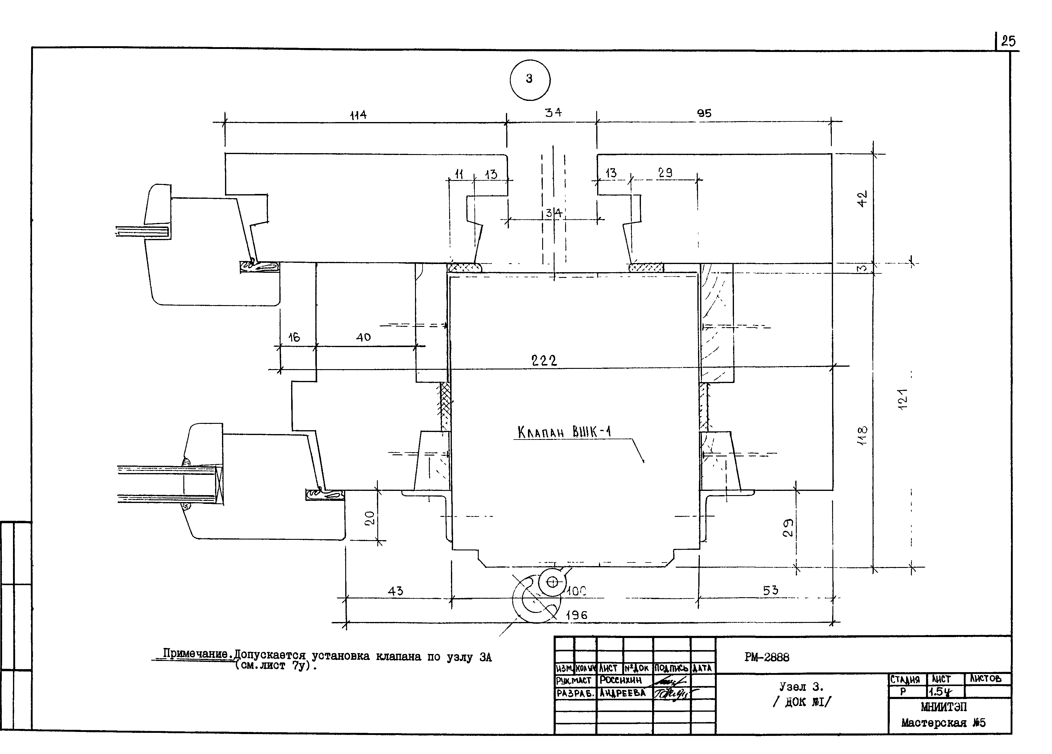
Скачать РМ-2888 Установка шумозащитных клапанов /взамен деревянных/ в окна раздельной конструкции производства ОАО ДОК-1 и ОАО ДОК-5. Технические решенияДата актуализации: 10.08.2017 РМ-2888
Установка шумозащитных клапанов /взамен деревянных/ в окна раздельной конструкции производства ОАО "ДОК-1" и ОАО "ДОК-5". Технические решенияОбозначение: | РМ-2888 | Обозначение англ: | РМ-2888 | Статус: | не определен законодательством | Название рус.: | Установка шумозащитных клапанов /взамен деревянных/ в окна раздельной конструкции производства ОАО "ДОК-1" и ОАО "ДОК-5". Технические решения | Дата добавления в базу: | 01.09.2013 | Дата актуализации: | 05.05.2017 | Дата введения: | 01.01.2002 | Разработан: | МНИИТЭП
| Утверждён: | 01.01.2002 МНИИТЭП (MNIITEP )
| Расположен в: |
|
                                      
|