Информационная система
«Ёшкин Кот»

Скачать базу одним архивом
Скачать обновления
История создания базы
Карта сайта

Скачать РС1-7809 Панели внутренних стен чердачные и машинных помещений лифтов. Рабочие чертежи

Дата актуализации: 10.08.2017

РС1-7809

Панели внутренних стен чердачные и машинных помещений лифтов. Рабочие чертежи

Обозначение: РС1-7809
Обозначение англ: РС1-7809
Статус:не определен законодательством
Название рус.:Панели внутренних стен чердачные и машинных помещений лифтов. Рабочие чертежи
Дата добавления в базу:01.09.2013
Дата актуализации:05.05.2017
Дата введения:01.01.2004
Оглавление:РС1-7809 ПЗ. Пояснительная записка
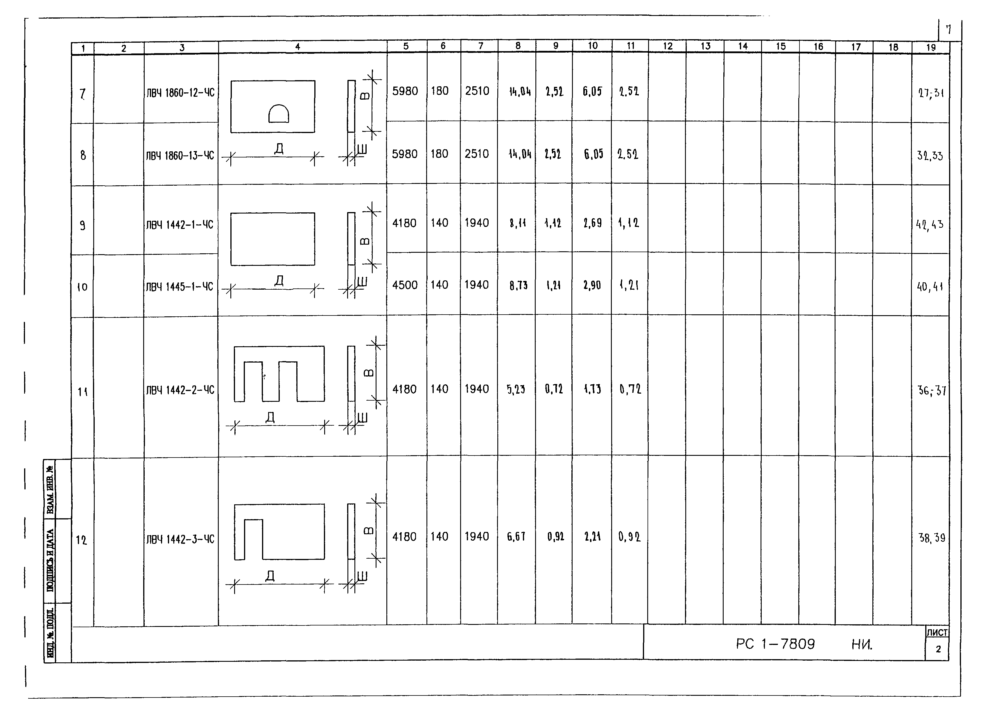
РС1-7809 НИ. Номенклатура изделий
РС1-7809 РС. Ведомость расхода стали на элемент панель
РС1-7809 01 СБ. Панель ЛВЧ 1860-6-ЧС. Сборочный чертеж
РС1-7809 02 СБ. Панель ЛВЧ 1860-7-ЧС. Сборочный чертеж
РС1-7809 03 СБ. Панель ЛВЧ 1860-8-ЧС. Сборочный чертеж
РС1-7809 04 СБ. Панель ЛВЧ 1860-9-ЧС. Сборочный чертеж
РС1-7809 05 СБ. Панель ЛВЧ 1860-10-ЧС. Сборочный чертеж
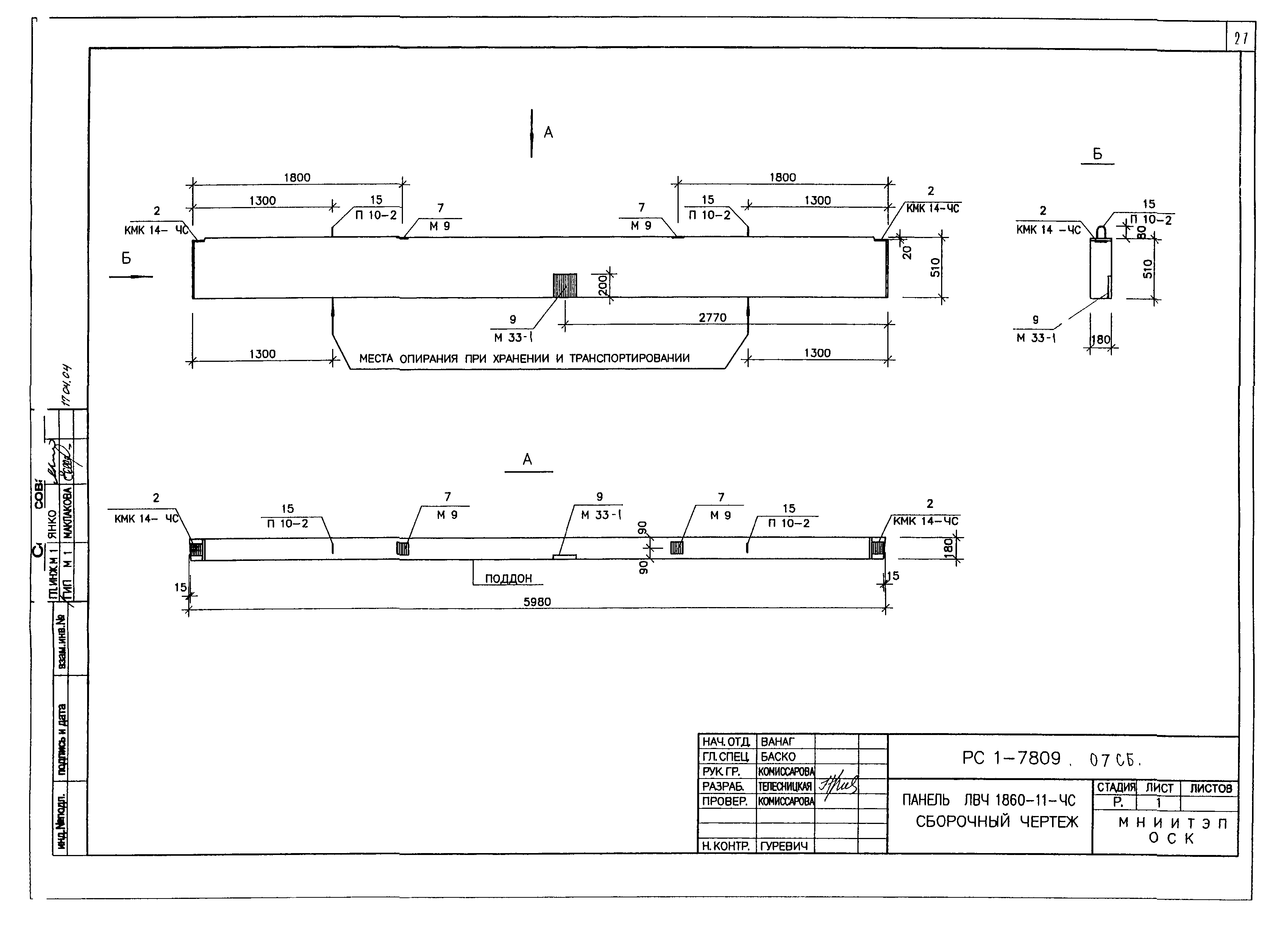
РС1-7809 06 СБ. Панель ЛВЧ 1860-11-ЧС. Сборочный чертеж
РС1-7809 07 СБ. Панель ЛВМ 1458-2-ЧС. Сборочный чертеж
РС1-7809 08 СБ. Панель ЛВЧ 1860-12-ЧС Сборочный чертеж
РС1-7809 09 СБ. Панель ЛВЧ 1860-13-ЧС. Сборочный чертеж
РС1-7809 10 СБ. Панель ЛВМ 1458-1-ЧС. Сборочный чертеж
РС1-7809 11 СБ. Панель ЛВЧ 1442-2-ЧС. Сборочный чертеж
РС1-7809 12 СБ. Панель ЛВЧ 1442-3-ЧС. Сборочный чертеж
РС1-7809 13 СБ. Панель ЛВЧ 1445-1-ЧС. Сборочный чертеж
РС1-7809 14 СБ. Панель ЛВЧ 1442-1-ЧС. Сборочный чертеж
РС1-7809 У. Узлы габаритные
РС1-7809 УА. Узлы арматурные
РС1-7809 Объемные каркасы. Сборочный чертеж
РС1-7809 Каркасы. Сборочный чертеж
РС1-7809 Гнутые каркасы. Сборочный чертеж
РС1-7809 Арматурные изделия. Сборочный чертеж
РС1-7809 Петли
РС1-7809 Закладные детали. Сборочный чертеж
РС1-7809 Информационная карта
Разработан: МНИИТЭП
Утверждён:01.01.2004 МНИИТЭП (MNIITEP )
Расположен в:Техническая документация Экология СТРОИТЕЛЬНЫЕ МАТЕРИАЛЫ И СТРОИТЕЛЬСТВО Строительные элементы Дымовые трубы, шахты, каналы Строительство Справочные документы Типовые строительные конструкции, изделия и узлы Разработанные другими министерствами, ведомствами и организациями
РС1-7809РС1-7809РС1-7809РС1-7809РС1-7809РС1-7809РС1-7809РС1-7809РС1-7809РС1-7809РС1-7809РС1-7809РС1-7809РС1-7809РС1-7809РС1-7809РС1-7809РС1-7809РС1-7809РС1-7809РС1-7809РС1-7809РС1-7809РС1-7809РС1-7809РС1-7809РС1-7809РС1-7809РС1-7809РС1-7809РС1-7809РС1-7809РС1-7809РС1-7809РС1-7809РС1-7809РС1-7809РС1-7809РС1-7809РС1-7809РС1-7809РС1-7809РС1-7809РС1-7809РС1-7809РС1-7809РС1-7809РС1-7809РС1-7809РС1-7809РС1-7809РС1-7809РС1-7809РС1-7809РС1-7809РС1-7809РС1-7809РС1-7809РС1-7809РС1-7809РС1-7809РС1-7809РС1-7809РС1-7809РС1-7809РС1-7809РС1-7809РС1-7809

© 2013 Ёшкин Кот :-) Карта сайта