Информационная система
«Ёшкин Кот»

Скачать базу одним архивом
Скачать обновления
История создания базы
Карта сайта

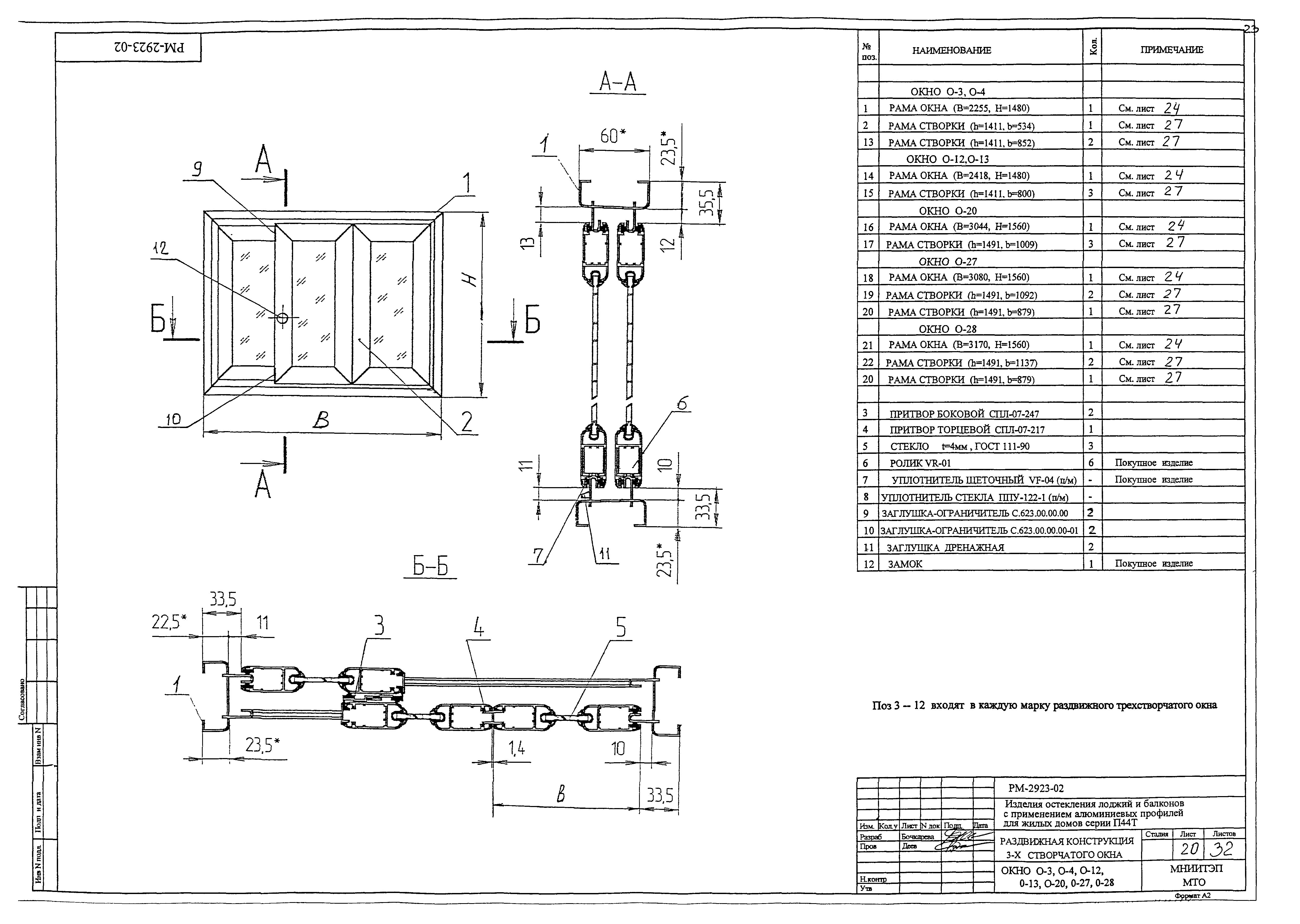
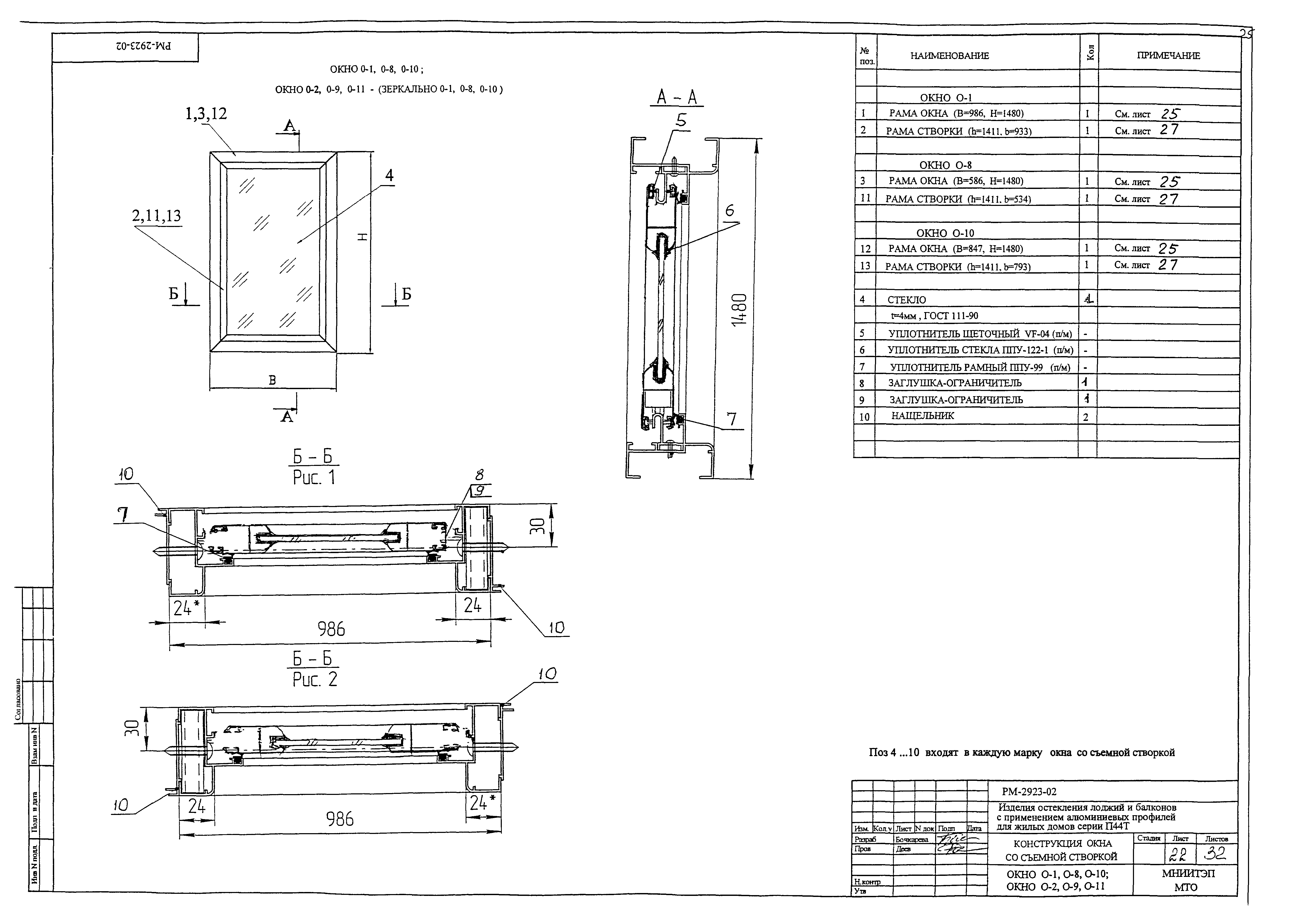
Скачать РМ-2923-02 Изделия остекления лоджий и балконов с применением алюминиевых профилей для жилых домов серии П44Т

Дата актуализации: 10.08.2017

РМ-2923-02

Изделия остекления лоджий и балконов с применением алюминиевых профилей для жилых домов серии П44Т

Обозначение: РМ-2923-02
Обозначение англ: РМ-2923-02
Статус:не определен законодательством
Название рус.:Изделия остекления лоджий и балконов с применением алюминиевых профилей для жилых домов серии П44Т
Дата добавления в базу:01.09.2013
Дата актуализации:05.05.2017
Дата введения:01.01.2004
Оглавление:1. Пояснительная записка и номенклатура конструкций остекления
2. Монтажные схемы
3. Марки конструкций остекления
4. Рама окна
5. Рама створки
6. Узлы 1-29
7. Приложение №1
8. Приложение №2
Разработан: МНИИТЭП
Утверждён:01.01.2004 МНИИТЭП (MNIITEP )
Принят: РусАлюмстрой
Расположен в:Техническая документация Экология СТРОИТЕЛЬНЫЕ МАТЕРИАЛЫ И СТРОИТЕЛЬСТВО Строительство Жилые здания Строительство Справочные документы Типовые строительные конструкции, изделия и узлы Разработанные другими министерствами, ведомствами и организациями
РМ-2923-02РМ-2923-02РМ-2923-02РМ-2923-02РМ-2923-02РМ-2923-02РМ-2923-02РМ-2923-02РМ-2923-02РМ-2923-02РМ-2923-02РМ-2923-02РМ-2923-02РМ-2923-02РМ-2923-02РМ-2923-02РМ-2923-02РМ-2923-02РМ-2923-02РМ-2923-02РМ-2923-02РМ-2923-02РМ-2923-02РМ-2923-02РМ-2923-02РМ-2923-02РМ-2923-02РМ-2923-02РМ-2923-02РМ-2923-02РМ-2923-02РМ-2923-02РМ-2923-02РМ-2923-02РМ-2923-02РМ-2923-02РМ-2923-02РМ-2923-02РМ-2923-02РМ-2923-02РМ-2923-02РМ-2923-02РМ-2923-02РМ-2923-02РМ-2923-02РМ-2923-02

© 2013 Ёшкин Кот :-) Карта сайта