Информационная система
«Ёшкин Кот»

Скачать базу одним архивом
Скачать обновления
История создания базы
Карта сайта

Скачать НП 7.2.3-77 Учреждения Госбанка, сберкассы

Дата актуализации: 10.08.2017

НП 7.2.3-77

Учреждения Госбанка, сберкассы

Обозначение: НП 7.2.3-77
Обозначение англ: NP 7.2.3-77
Статус:действует
Название рус.:Учреждения Госбанка, сберкассы
Дата добавления в базу:01.09.2013
Дата актуализации:05.05.2017
Область применения:Настоящий выпуск содержит исходные данные, номенклатуру мебели и оборудования, функционально-технологические габаритные схемы планировочных элементов помещений и оборудования для учреждений Госбанка и для сберкасс.
Оглавление:Введение
Раздел I. Помещения учреждений Госбанка (листы 1-58)
Система Государственного банка СССР. Организационная структура конторы Госбанка (лист 1)
Организационная и численная структура отделения Госбанка (лист 2)
Рекомендуемое размещение отделений Госбанка и населенных пунктах и их размещение в здании (лист 3)
Основные функциональные зоны. Интенсивность связей между помещениями (лист 4)
Схемы взаимосвязи помещений (лист 5)
Зонирование земельного участка (лист 6)
Антропометрические данные и исходные габариты (лист 7)
Исходные габариты (лист 8)
Эргономические схемы рабочего места кассира (лист 9)
Номенклатура мебели и оборудования (листы 10-18)
Стандартная мебель (листы 19-20)
Специальная мебель (листы 21-22)
Типы рабочих мест (листы 23-25)
Площадь рабочих мест (листы 26-27)
Габаритные схемы рабочих помещений (лист 28)
Рабочие комнаты. Планировочные схемы (лист 29)
Рабочие залы. Планировочные схемы (лист 30)
Кабинеты. Планировочные схемы (лист 31)
Варианты компоновки операционных залов (лист 32)
Габаритные схемы зоны для учел пооперационных работников в операционном зале (лист 33)
Операционный зал. Планировочные схемы (листы 34 38)
Операционные кассы. Типы рабочих мест (листы 39 - 40)
Кассовый зал (операционные кассы). Габаритные схемы (лист 11)
Кассовый зал (операционные кассы). Планировочные схемы(листы 42-44)
Касса пересчета. Габаритные схемы (лист 45)
Касса пересчета. Планировочные схемы (лист 46)
Машиносчетное бюро. Набор оборудования (лист 47)
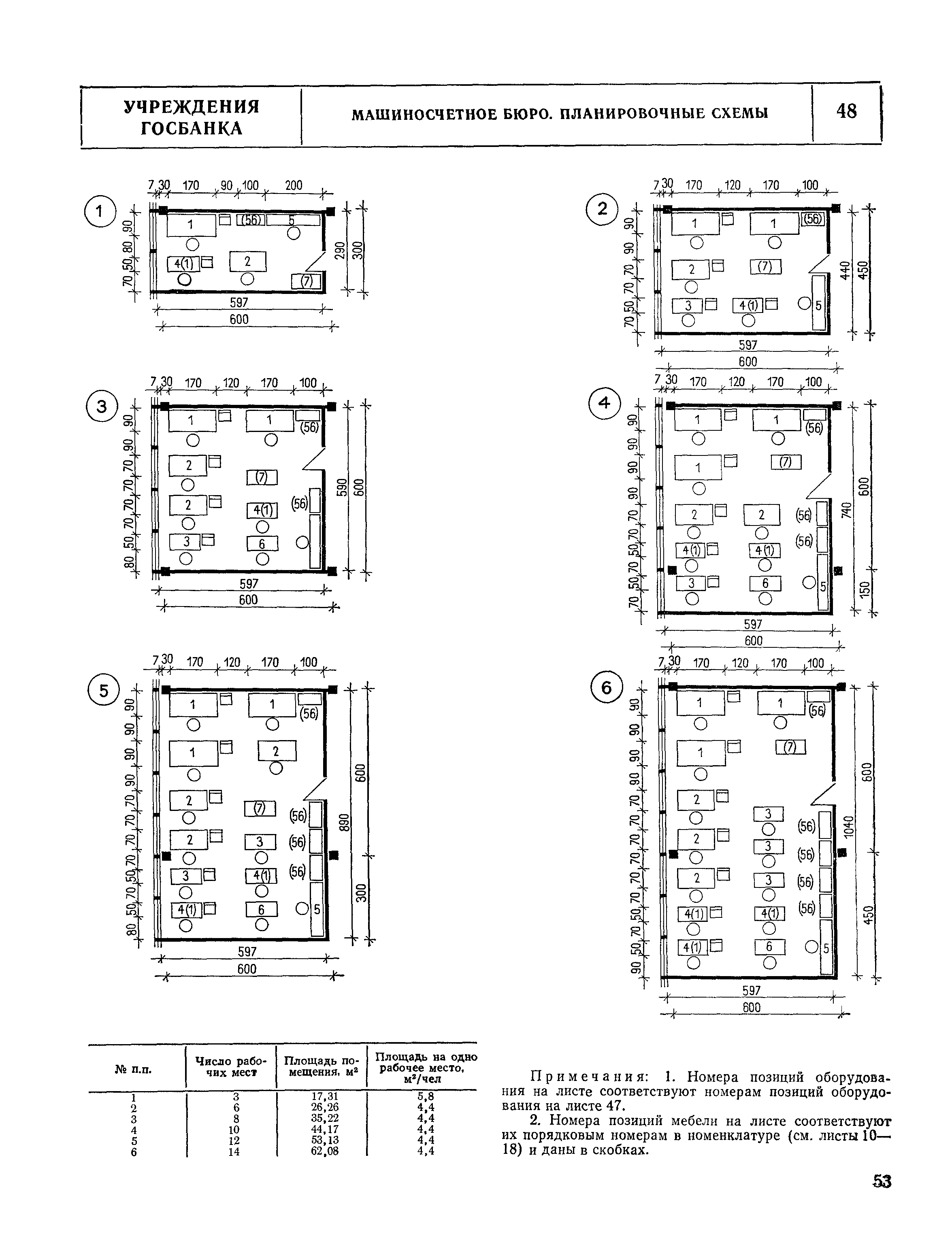
Машиносчетное бюро. Планировочные схемы (лист 48)
Кладовая ценностей. Габаритные (планировочные) схемы (лист 49)
Примеры планировок (листы 50-54)
Примеры планировки зданий (лист 55)
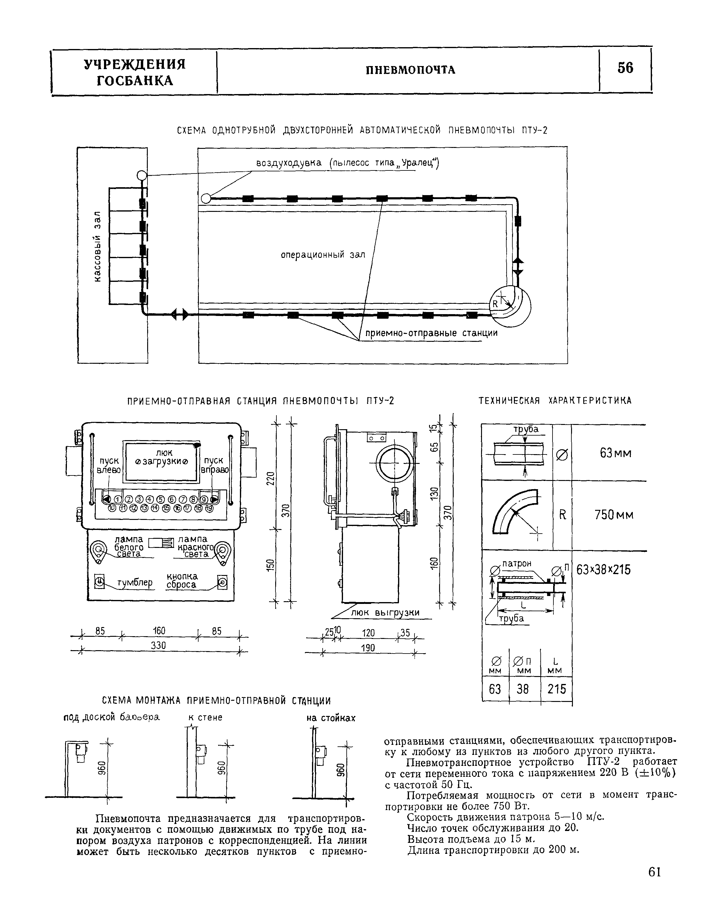
Пневмопочта (лист 56)
Примерные составы и площади помещений отделений Госбанка (без отдела инкассации) (лист 57)
Примерные составы и площади помещений отделений Госбанка (с отделом инкассации) (листы 58-59)
Раздел II. Помещения сберкасс (листы 60-75)
Система сберегательных касс СССР. Организационная структура центральной сберегательной кассы (лист 60)
Численная структура центральных сберегательных касс. Взаимосвязь помещений (лист 61)
Рекомендуемое размещение cбepeгательных касс в населенных пунктах, и их размещение в здании (лист 62)
Исходные габариты. Эргономические схемы (лист 63)
Специальная мебель (проект ВПКТИМ) (листы 64-65)
Стандартная мебель (листы 66-67)
Типы рабочих мест (лист 68)
Операционный зал. Габаритные схемы (листы 69-70)
Операционный зал. Планировочные схемы (листы 71-73)
Площади операционных залов. Примерные составы и площади помещений (лист 74)
Пример планировки здания (лист 75)
Разработан: ЦНИИЭП зрелищных зданий и спортивных сооружений Госгражданстроя
Утверждён:01.01.1977 Государственный комитет по гражданскому строительству и архитектуре при Госстрое СССР
Издан: Стройиздат (1978 г. )
Расположен в:Техническая документация Экология СТРОИТЕЛЬНЫЕ МАТЕРИАЛЫ И СТРОИТЕЛЬСТВО Строительство Торговые и промышленные здания Строительство Справочные документы Нормали основных планировочных элементов жилых и общественных зданий
Заменяет собой:
НП 7.2.3-77НП 7.2.3-77НП 7.2.3-77НП 7.2.3-77НП 7.2.3-77НП 7.2.3-77НП 7.2.3-77НП 7.2.3-77НП 7.2.3-77НП 7.2.3-77НП 7.2.3-77НП 7.2.3-77НП 7.2.3-77НП 7.2.3-77НП 7.2.3-77НП 7.2.3-77НП 7.2.3-77НП 7.2.3-77НП 7.2.3-77НП 7.2.3-77НП 7.2.3-77НП 7.2.3-77НП 7.2.3-77НП 7.2.3-77НП 7.2.3-77НП 7.2.3-77НП 7.2.3-77НП 7.2.3-77НП 7.2.3-77НП 7.2.3-77НП 7.2.3-77НП 7.2.3-77НП 7.2.3-77НП 7.2.3-77НП 7.2.3-77НП 7.2.3-77НП 7.2.3-77НП 7.2.3-77НП 7.2.3-77НП 7.2.3-77НП 7.2.3-77НП 7.2.3-77НП 7.2.3-77НП 7.2.3-77НП 7.2.3-77НП 7.2.3-77НП 7.2.3-77НП 7.2.3-77НП 7.2.3-77НП 7.2.3-77НП 7.2.3-77НП 7.2.3-77НП 7.2.3-77НП 7.2.3-77НП 7.2.3-77НП 7.2.3-77НП 7.2.3-77НП 7.2.3-77НП 7.2.3-77НП 7.2.3-77НП 7.2.3-77НП 7.2.3-77НП 7.2.3-77НП 7.2.3-77НП 7.2.3-77НП 7.2.3-77НП 7.2.3-77НП 7.2.3-77НП 7.2.3-77НП 7.2.3-77НП 7.2.3-77НП 7.2.3-77НП 7.2.3-77НП 7.2.3-77НП 7.2.3-77НП 7.2.3-77НП 7.2.3-77НП 7.2.3-77НП 7.2.3-77НП 7.2.3-77НП 7.2.3-77НП 7.2.3-77НП 7.2.3-77

© 2013 Ёшкин Кот :-) Карта сайта