Информационная система
«Ёшкин Кот»

Скачать базу одним архивом
Скачать обновления
История создания базы
Карта сайта

Скачать РС1-7415 Плиты покрытия трехслойные бетонные для безрулонной кровли. Рабочие чертежи

Дата актуализации: 10.08.2017

РС1-7415

Плиты покрытия трехслойные бетонные для безрулонной кровли. Рабочие чертежи

Обозначение: РС1-7415
Обозначение англ: РС1-7415
Статус:не определен законодательством
Название рус.:Плиты покрытия трехслойные бетонные для безрулонной кровли. Рабочие чертежи
Дата добавления в базу:01.09.2013
Дата актуализации:05.05.2017
Дата введения:01.01.2004
Оглавление:РС1-7415 ПЗ. Пояснительная записка
РС1-7415 НИ. Номенклатура изделий
РС1-7415 РС. Ведомость расхода стали
РС1-7415 01 СБ. Плита ПФЧ 3668-1-ЧС. Сборочный чертеж
РС1-7415 02 СБ. Плита ПФЧ 2668-1-ЧС. Сборочный чертеж
РС1-7415 03 СБ. Плита ПФЧ 3048-1-ЧС. Сборочный чертеж
РС1-7415 04 СБ. Плита ПФЧ 1845-1-ЧС. Сборочный чертеж
РС1-7415 У. Узлы габаритные
РС1-7415 УА. Узлы арматурные
РС1-7415 ПУ. Пакеты утеплителя
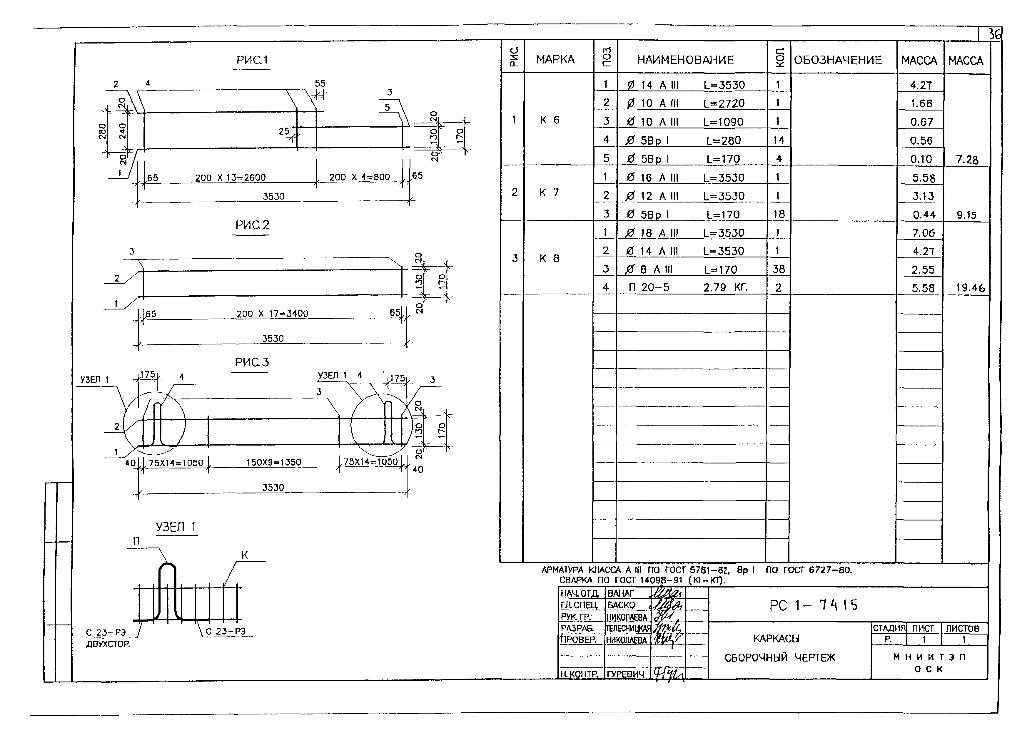
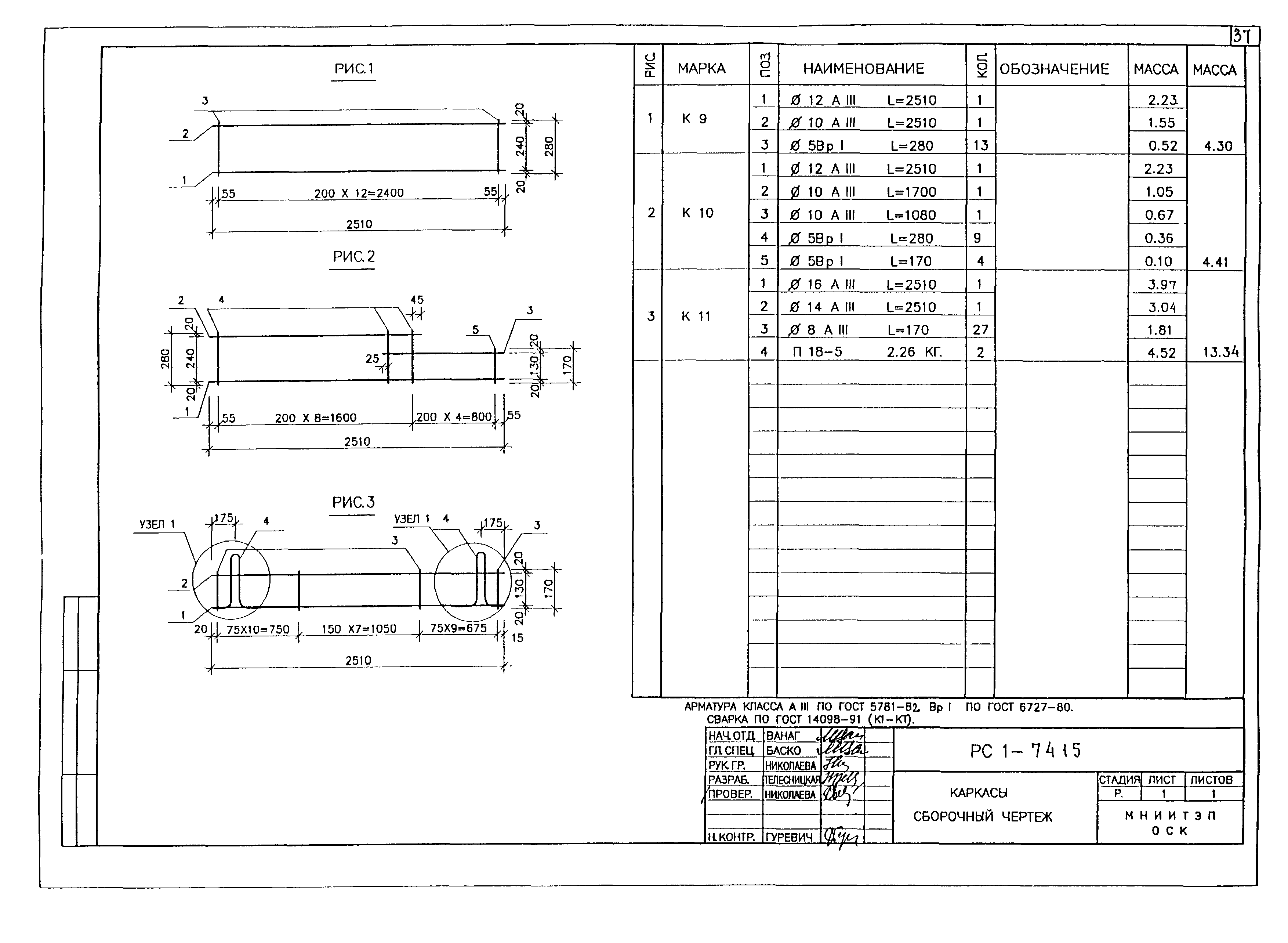
РС1-7415 Каркасы. Сборочный чертеж
РС1-7415 Сетки. Сборочный чертеж
РС1-7415 Скоба
РС1-7415 Петли. Сборочный чертеж
РС1-7415 Закладные детали. Сборочный чертеж
РС1-7415 Информационная карта
Разработан: МНИИТЭП
Утверждён:01.01.2004 МНИИТЭП (MNIITEP )
Расположен в:Техническая документация Экология СТРОИТЕЛЬНЫЕ МАТЕРИАЛЫ И СТРОИТЕЛЬСТВО Конструкции зданий Бетонные конструкции Строительство Справочные документы Типовые строительные конструкции, изделия и узлы Разработанные другими министерствами, ведомствами и организациями
РС1-7415РС1-7415РС1-7415РС1-7415РС1-7415РС1-7415РС1-7415РС1-7415РС1-7415РС1-7415РС1-7415РС1-7415РС1-7415РС1-7415РС1-7415РС1-7415РС1-7415РС1-7415РС1-7415РС1-7415РС1-7415РС1-7415РС1-7415РС1-7415РС1-7415РС1-7415РС1-7415РС1-7415РС1-7415РС1-7415РС1-7415РС1-7415РС1-7415РС1-7415РС1-7415РС1-7415РС1-7415РС1-7415РС1-7415РС1-7415РС1-7415РС1-7415РС1-7415РС1-7415РС1-7415РС1-7415РС1-7415РС1-7415РС1-7415РС1-7415РС1-7415РС1-7415

© 2013 Ёшкин Кот :-) Карта сайта