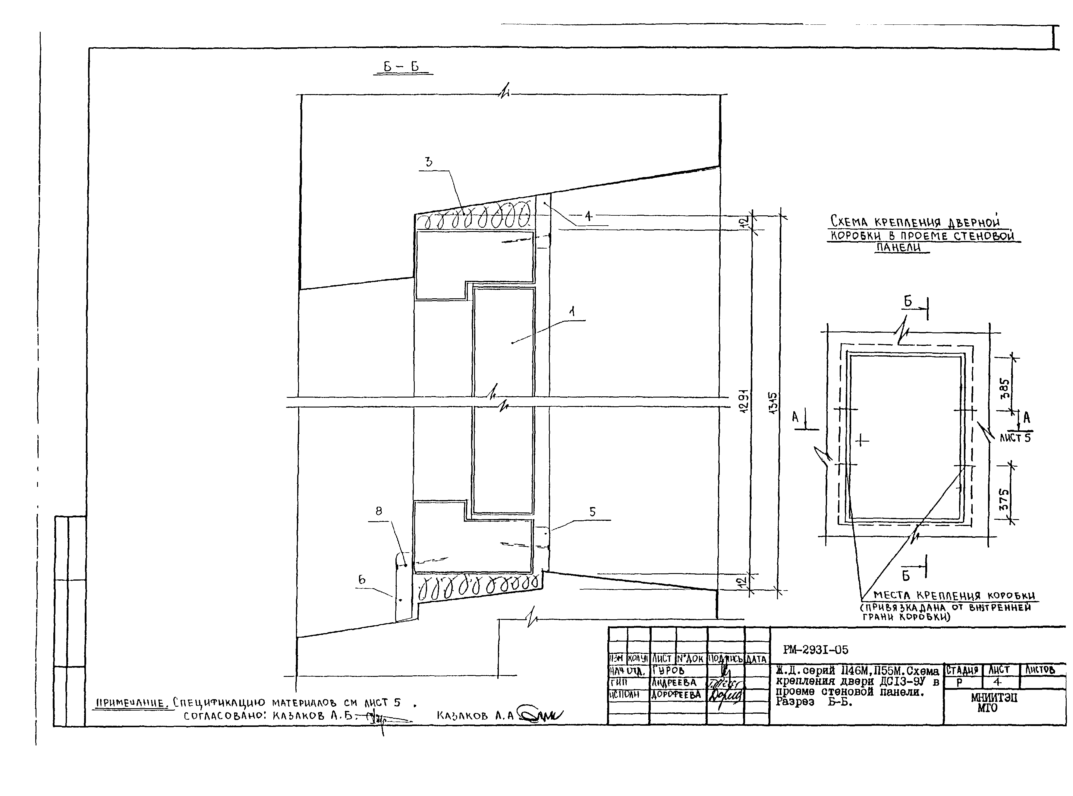
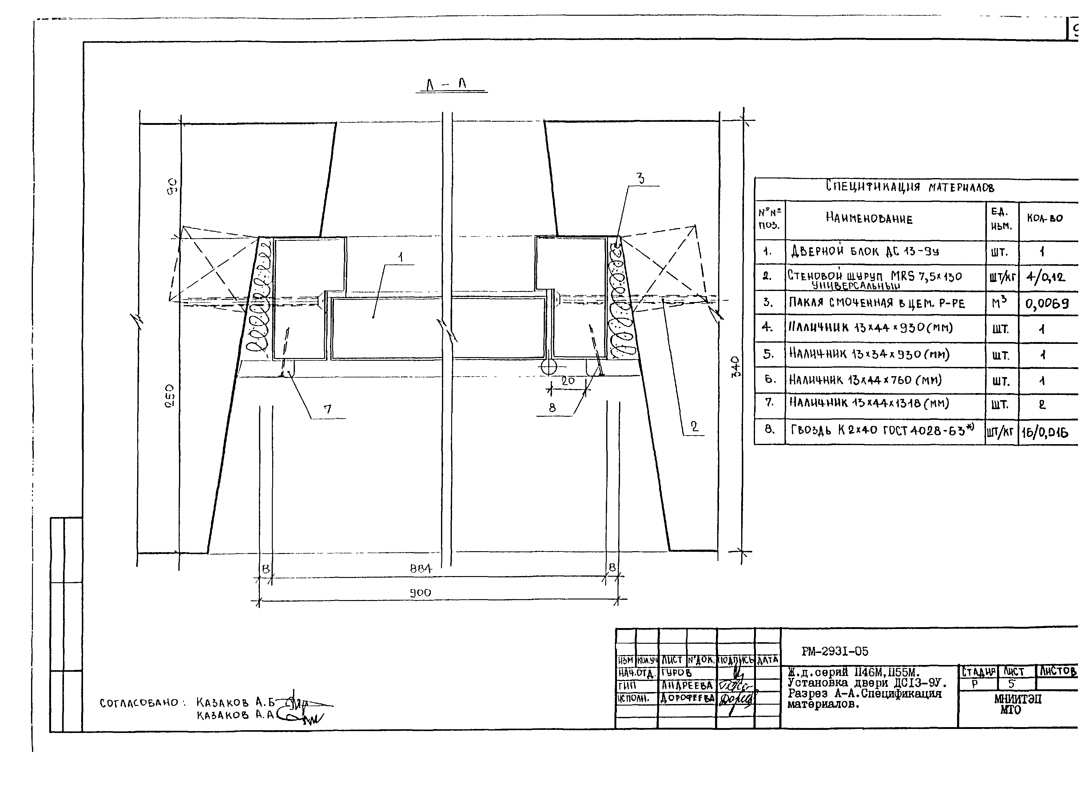
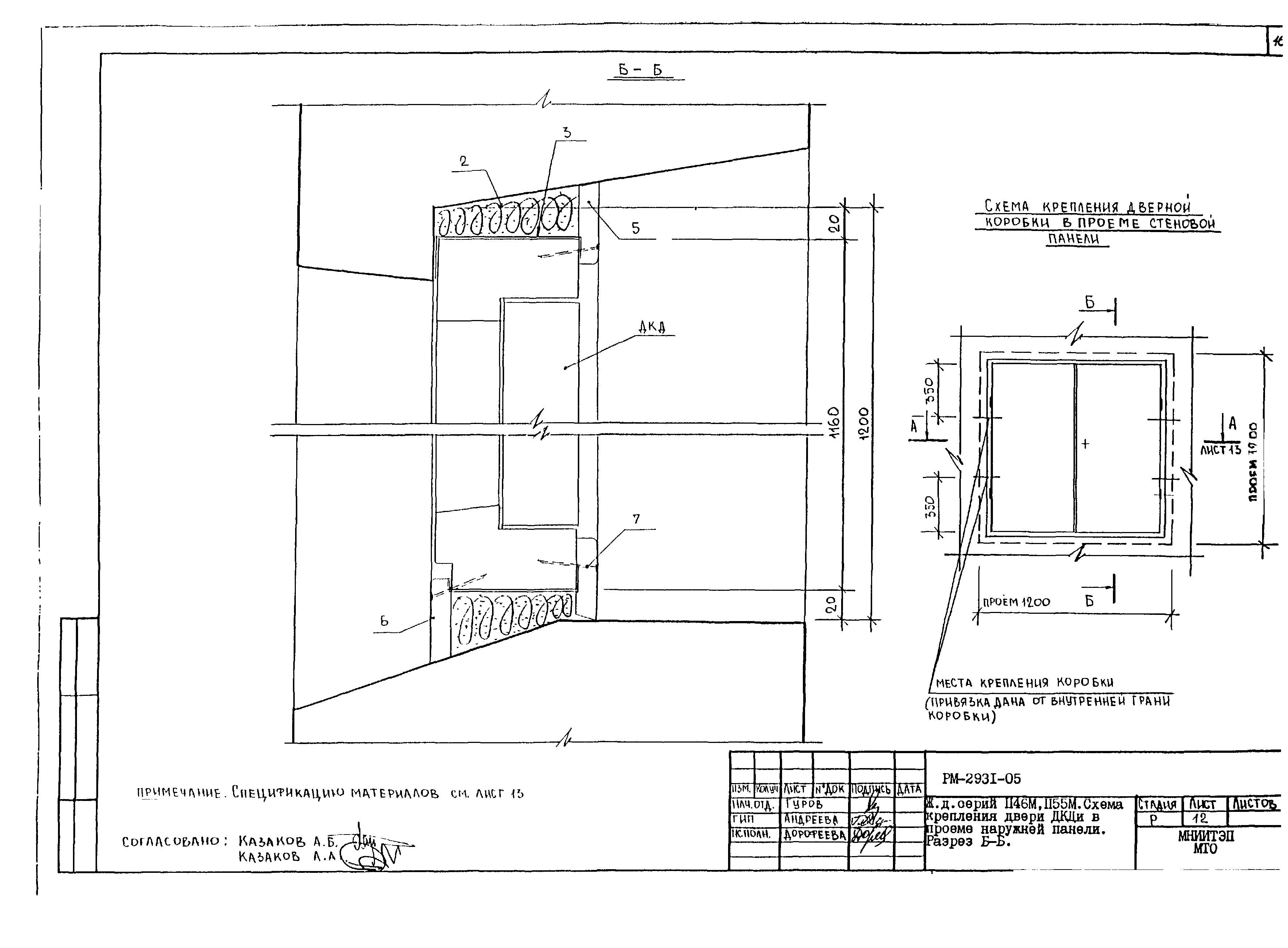
Скачать РМ-2931-05 Узлы установки служебных дверей в панели жилых домов серий П46М, П55МДата актуализации: 10.08.2017 РМ-2931-05
Узлы установки служебных дверей в панели жилых домов серий П46М, П55М| Обозначение: | РМ-2931-05 | | Обозначение англ: | РМ-2931-05 | | Статус: | не определен законодательством | | Название рус.: | Узлы установки служебных дверей в панели жилых домов серий П46М, П55М | | Дата добавления в базу: | 01.09.2013 | | Дата актуализации: | 05.05.2017 | | Дата введения: | 01.01.2004 | | Разработан: | МНИИТЭП
| | Утверждён: | 01.01.2004 МНИИТЭП (MNIITEP )
| | Расположен в: |
|
               
|