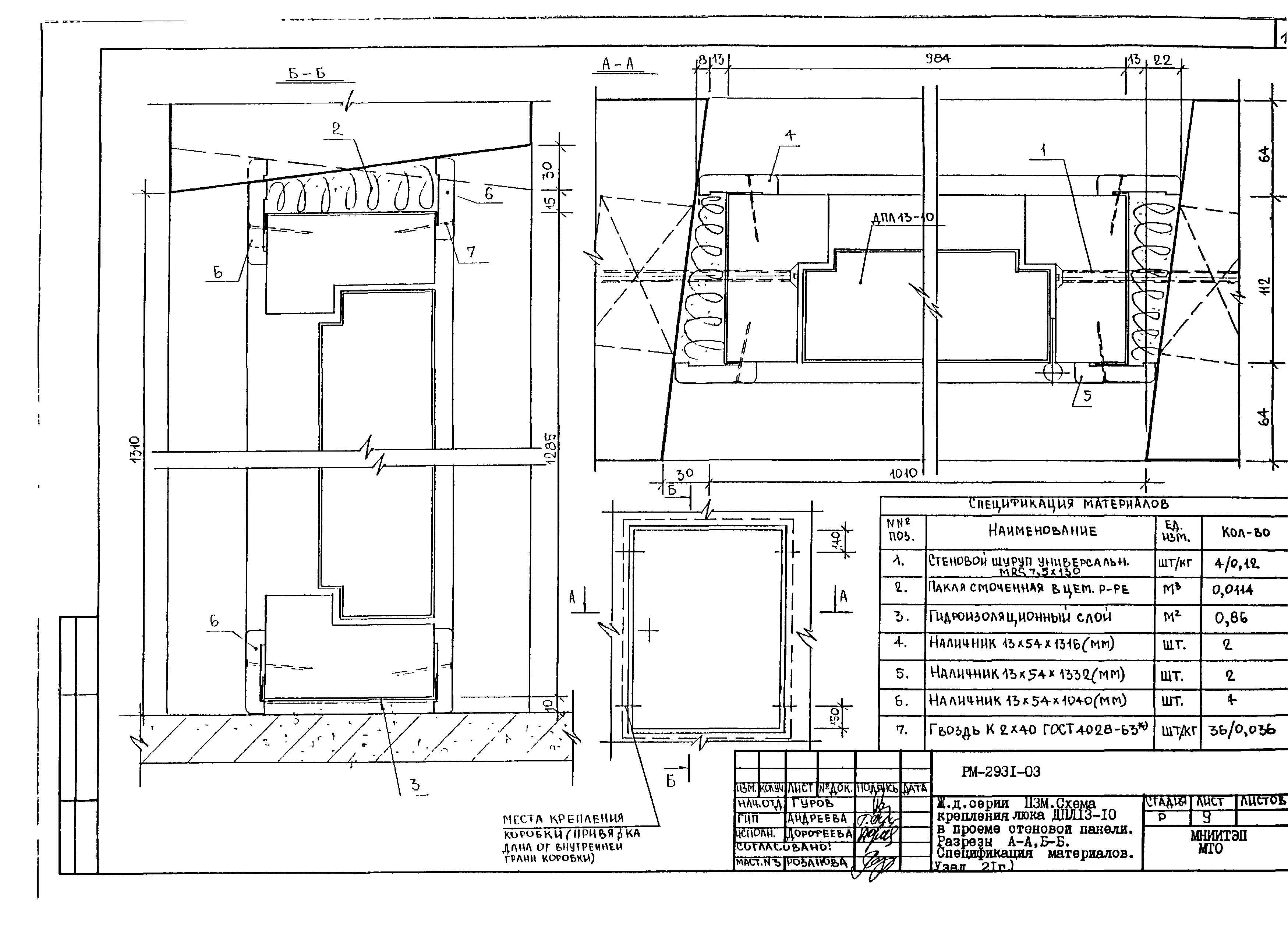
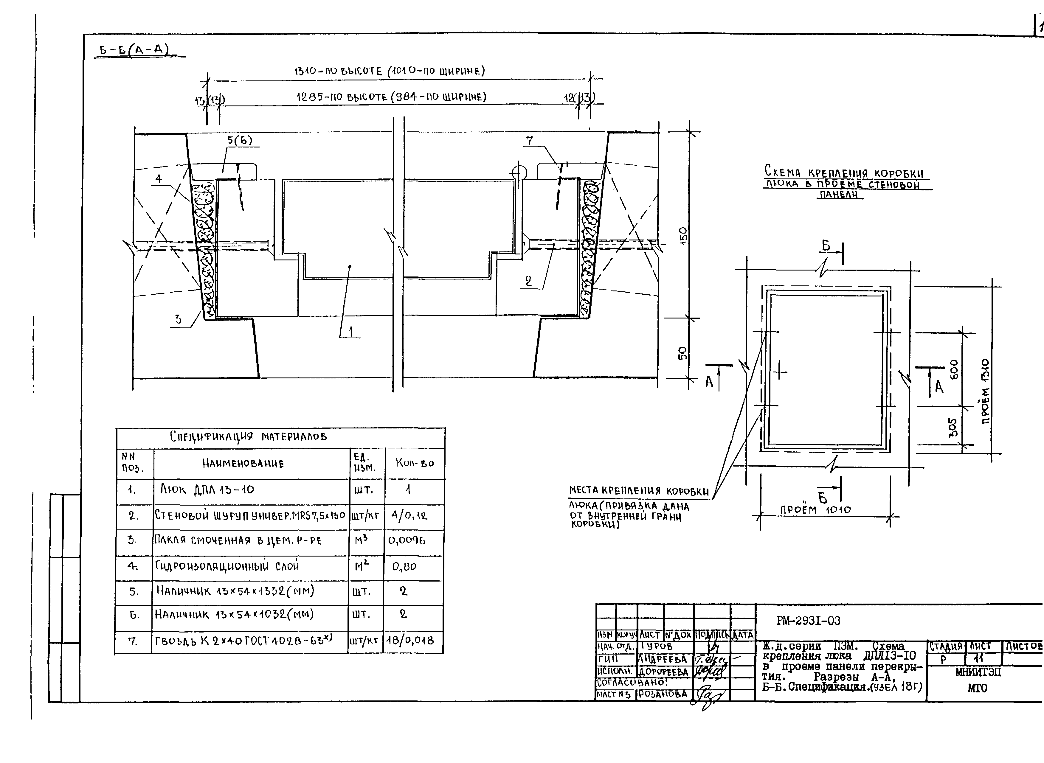
Скачать РМ-2931-03 Узлы установки служебных дверей в панели жилых домов серии П3МДата актуализации: 10.08.2017 РМ-2931-03
Узлы установки служебных дверей в панели жилых домов серии П3МОбозначение: | РМ-2931-03 | Обозначение англ: | РМ-2931-03 | Статус: | не определен законодательством | Название рус.: | Узлы установки служебных дверей в панели жилых домов серии П3М | Дата добавления в базу: | 01.09.2013 | Дата актуализации: | 05.05.2017 | Дата введения: | 01.01.2004 | Разработан: | МНИИТЭП
| Утверждён: | 01.01.2004 МНИИТЭП (MNIITEP )
| Расположен в: |
|
              
|