Скачать РМ-2927 Панели наружных стен трехслойные первого нежилого этажа h=2.8 м. Для жилых блок-секций П44Т (производства Краснопресненского завода ЖБК). Рабочие чертежиДата актуализации: 10.08.2017 РМ-2927
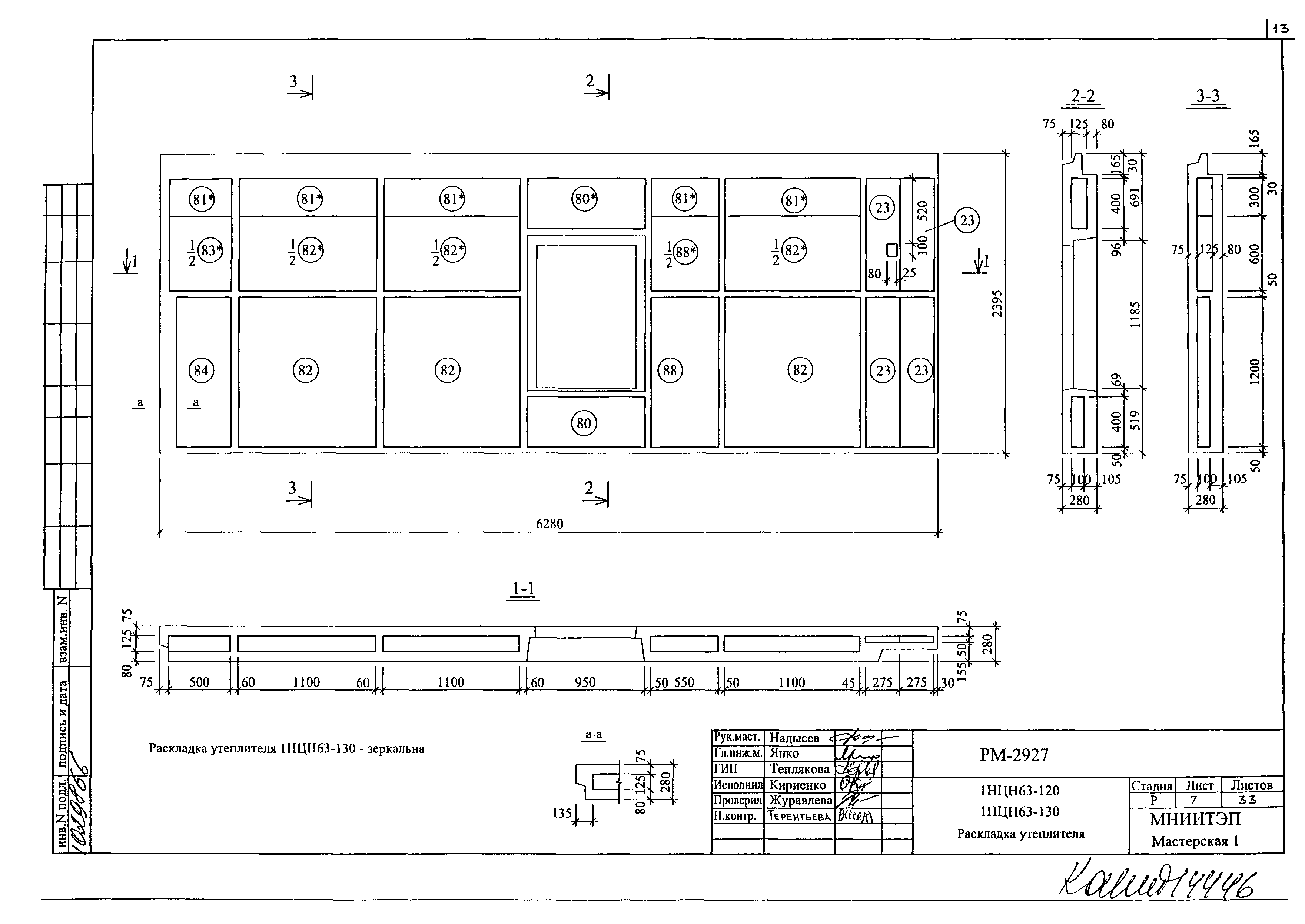
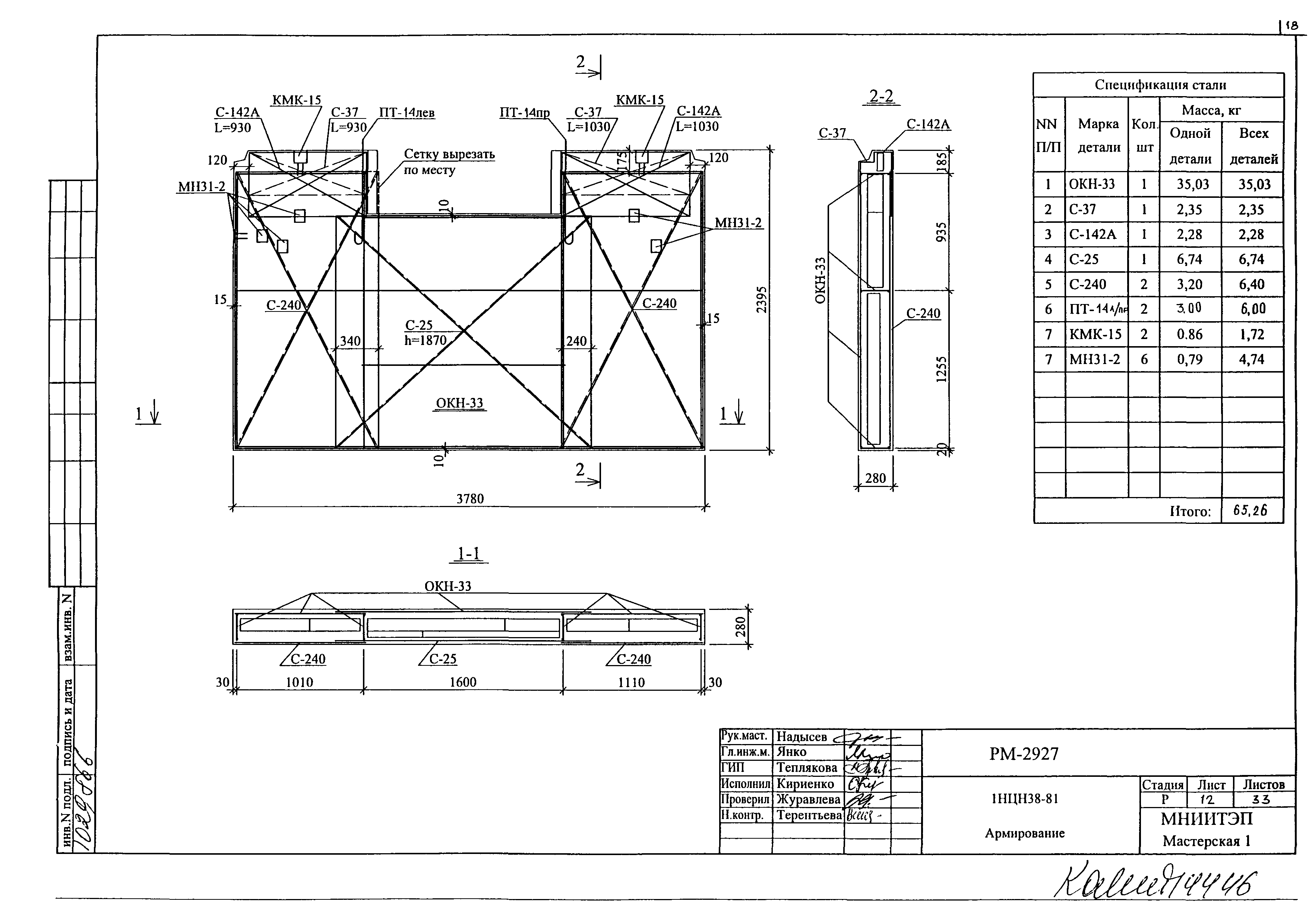
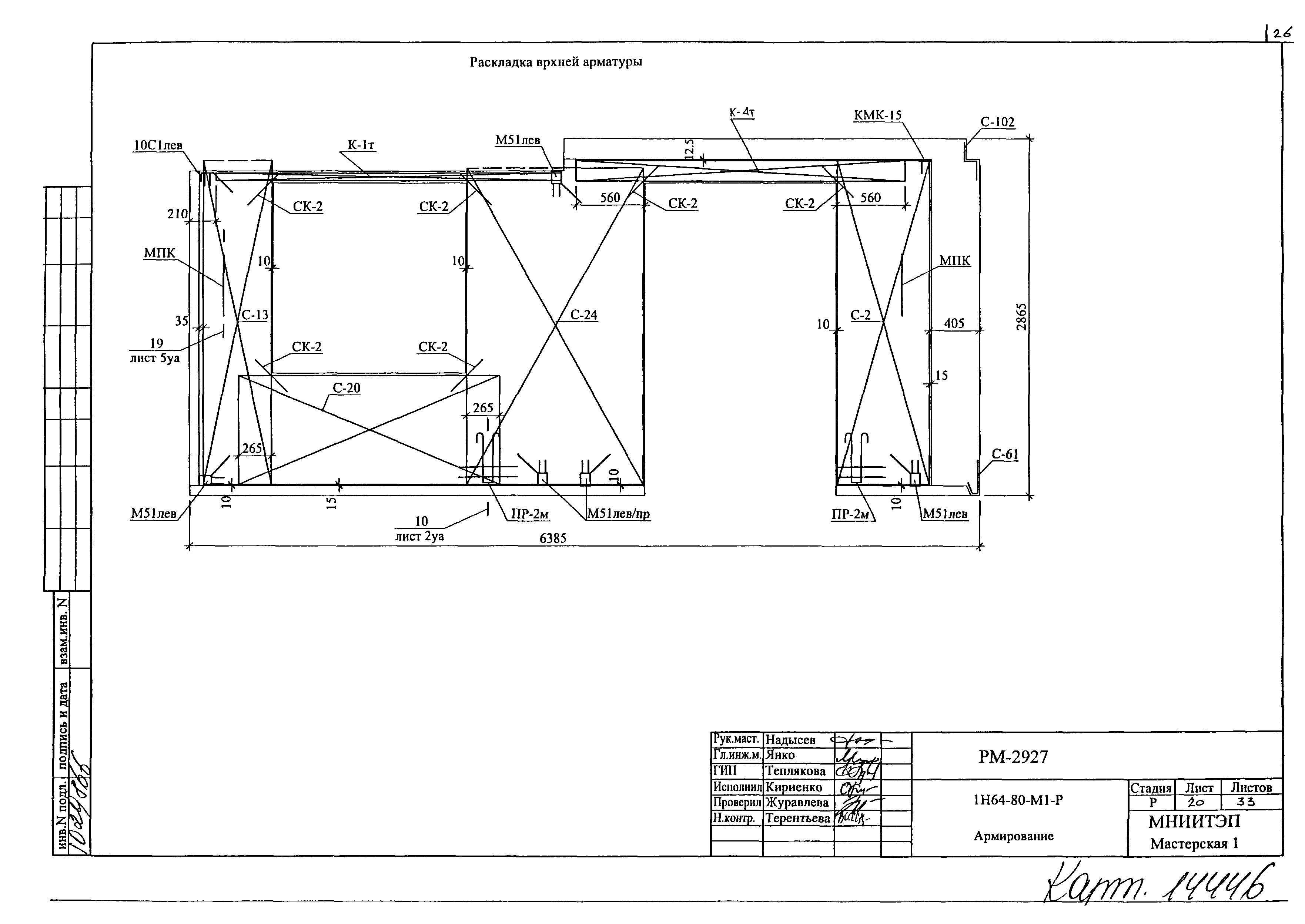
Панели наружных стен трехслойные первого нежилого этажа h=2.8 м. Для жилых блок-секций П44Т (производства Краснопресненского завода ЖБК). Рабочие чертежиОбозначение: | РМ-2927 | Обозначение англ: | РМ-2927 | Статус: | не определен законодательством | Название рус.: | Панели наружных стен трехслойные первого нежилого этажа h=2.8 м. Для жилых блок-секций П44Т (производства Краснопресненского завода ЖБК). Рабочие чертежи | Дата добавления в базу: | 01.09.2013 | Дата актуализации: | 05.05.2017 | Дата введения: | 10.06.2004 | Оглавление: | 1. Содержание 2. Пояснительная записка 3. Номенклатура изделий 4. Облицовка, общие виды, армирование, раскладка утеплителя 5. Арматура 6. Информационная карта | Разработан: | МНИИТЭП
| Утверждён: | 10.06.2004 МНИИТЭП (MNIITEP 26-ТО)
| Расположен в: |
|
                                                 
|