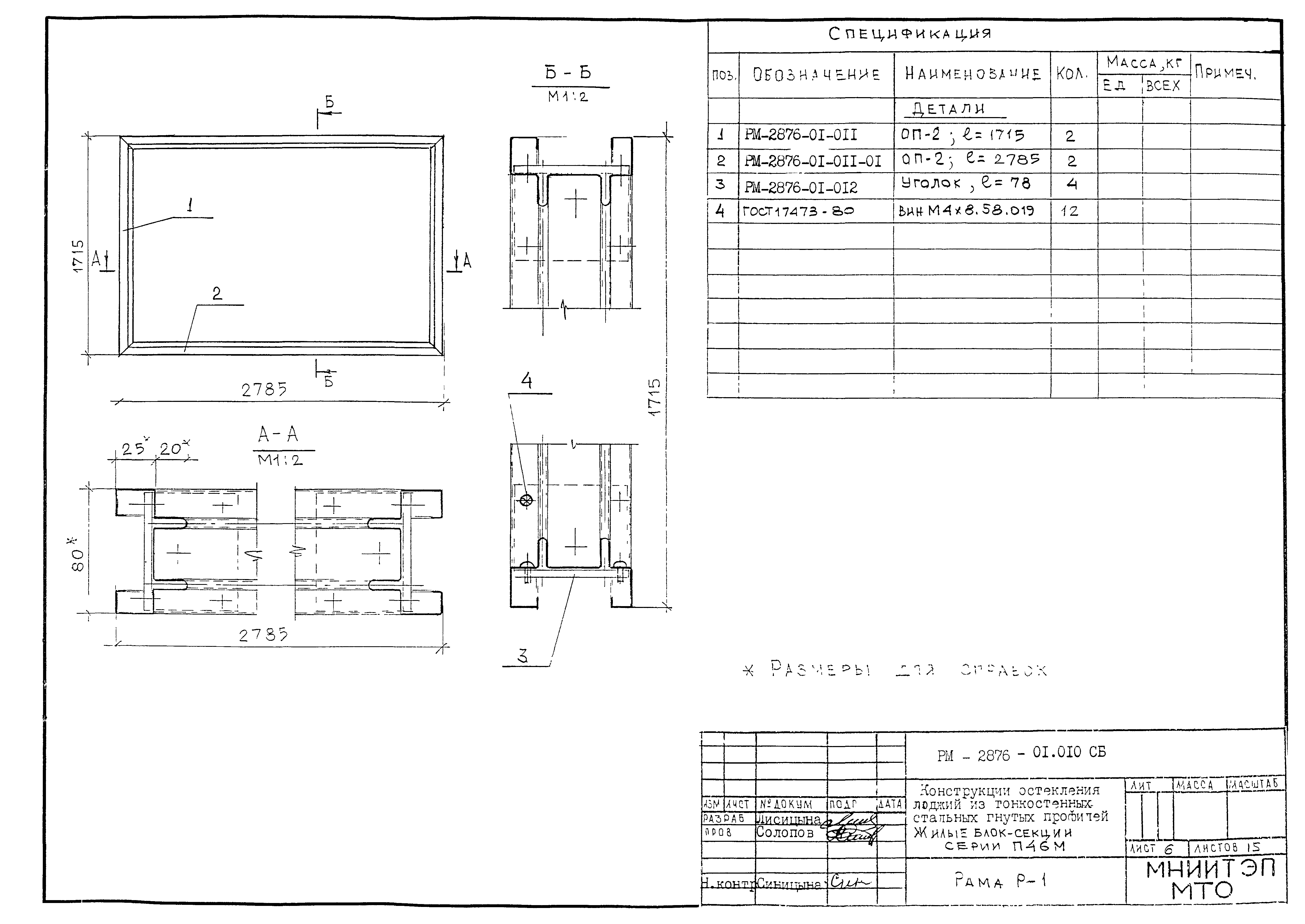
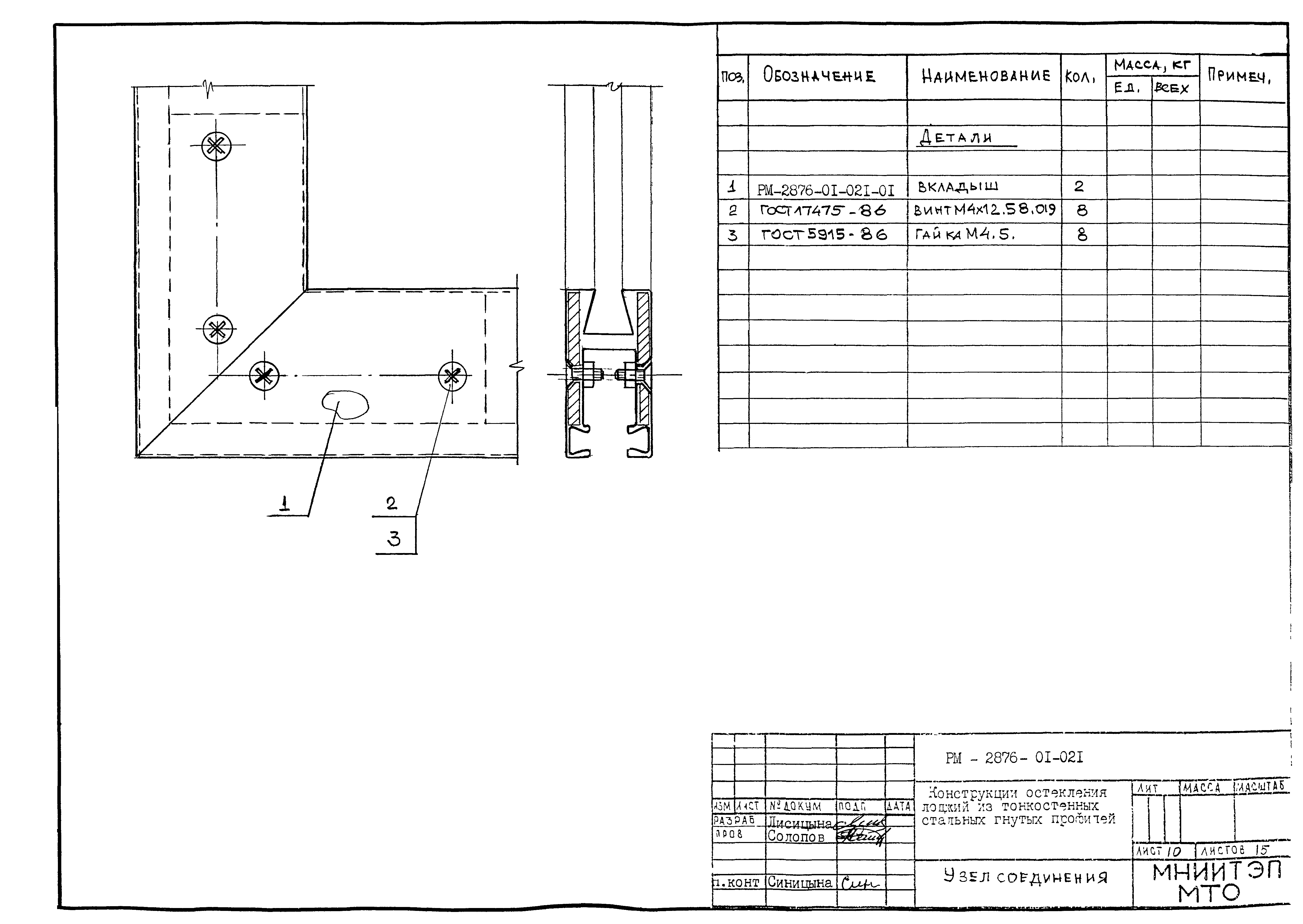
Скачать РМ-2876-01 Конструкции остекления лоджий из тонкостенных стальных гнутых профилей. Рабочие чертежи для опытного образца. II этапДата актуализации: 10.08.2017 РМ-2876-01
Конструкции остекления лоджий из тонкостенных стальных гнутых профилей. Рабочие чертежи для опытного образца. II этапОбозначение: | РМ-2876-01 | Обозначение англ: | РМ-2876-01 | Статус: | не определен законодательством | Название рус.: | Конструкции остекления лоджий из тонкостенных стальных гнутых профилей. Рабочие чертежи для опытного образца. II этап | Дата добавления в базу: | 01.09.2013 | Дата актуализации: | 05.05.2017 | Дата введения: | 01.01.2002 | Разработан: | МНИИТЭП
| Утверждён: | 01.01.2002 МНИИТЭП (MNIITEP )
| Расположен в: |
|
               
|