Скачать РМ-2825 Конструкции, изделия и узлы унифицированные производства СПК Стройсортмет для остекления лоджий и балконов жилых домов П55М. Рабочие чертежиДата актуализации: 10.08.2017 РМ-2825
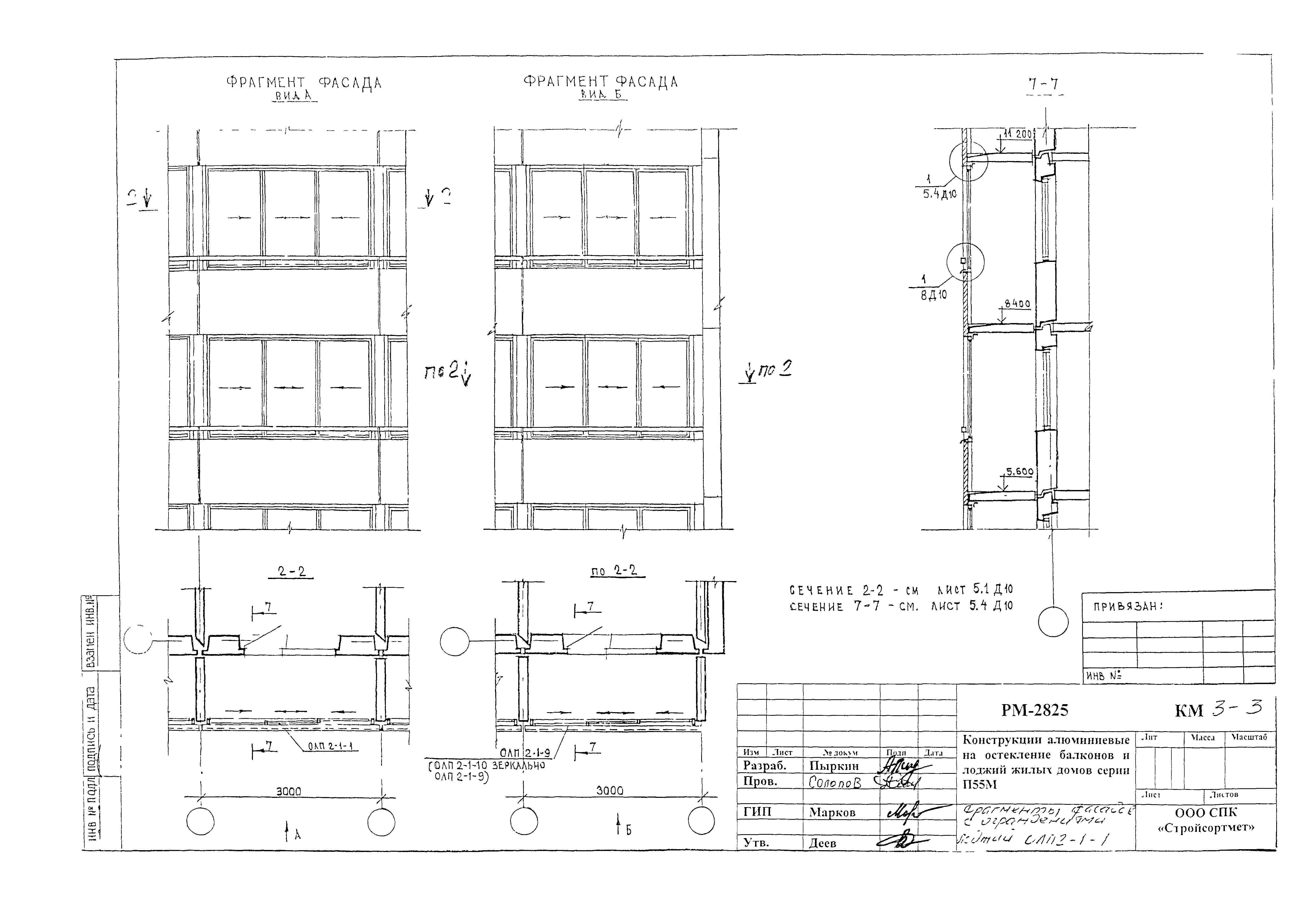
Конструкции, изделия и узлы унифицированные производства СПК "Стройсортмет" для остекления лоджий и балконов жилых домов П55М. Рабочие чертежиОбозначение: | РМ-2825 | Обозначение англ: | РМ-2825 | Статус: | не определен законодательством | Название рус.: | Конструкции, изделия и узлы унифицированные производства СПК "Стройсортмет" для остекления лоджий и балконов жилых домов П55М. Рабочие чертежи | Дата добавления в базу: | 01.09.2013 | Дата актуализации: | 05.05.2017 | Дата введения: | 01.01.2001 | Область применения: | Проект содержит рабочие чертежи в стадии кМ на алюминиевые конструкции ограждений лоджий и балконов жилых домов серии П55М. | Разработан: | МНИИТЭП СПК Стройсортмет
| Утверждён: | 01.01.2001 МНИИТЭП (MNIITEP )
| Расположен в: |
|
                                              
|