Информационная система
«Ёшкин Кот»

Скачать базу одним архивом
Скачать обновления
История создания базы
Карта сайта

Скачать Серия 2.430-21.94 Выпуск 2. Стены охлаждаемых зданий. Узлы. Рабочие чертежи

Дата актуализации: 10.08.2017

Серия 2.430-21.94

Выпуск 2. Стены охлаждаемых зданий. Узлы. Рабочие чертежи

Обозначение: Серия 2.430-21.94
Обозначение англ: Series 2.430-21.94
Статус:не определен законодательством
Название рус.:Выпуск 2. Стены охлаждаемых зданий. Узлы. Рабочие чертежи
Дата добавления в базу:01.09.2013
Дата актуализации:05.05.2017
Дата введения:01.05.1994
Оглавление:2.430-21.94.2-ТТ Технические требования
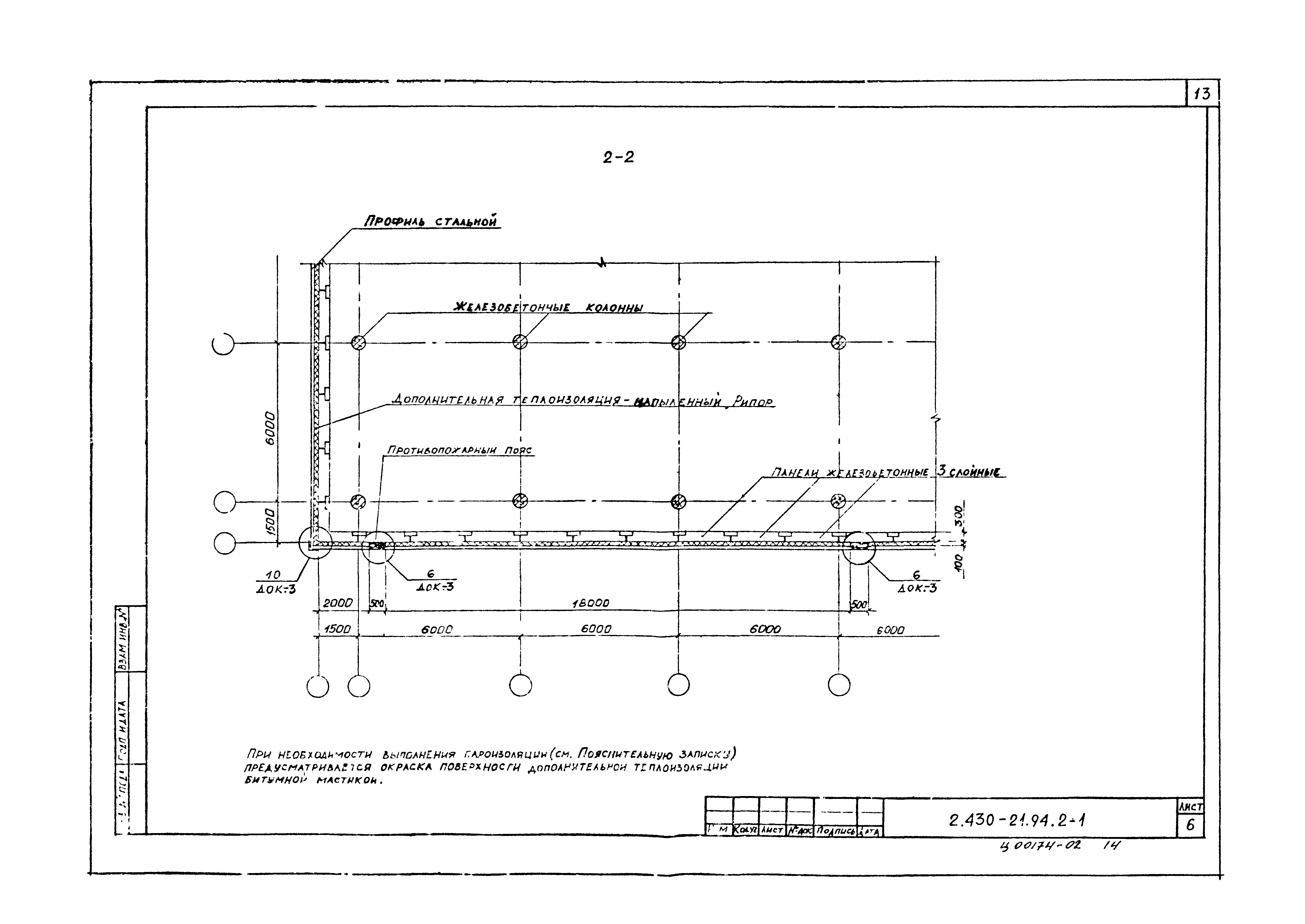
2.430-21.94.2-1 Схемы 1, 2. Раскладка элементов обрешетки и облицовки
2.430-21.94.2-2 Крепление ригелей обрешеткой. Узел 1… 5
2.430-21.94.2-3 Сопряжение дополнительной теплоизоляции. Узел 6… 10
2.430-21.94.2-4 Изделия комплектующие
2.430-21.94.2-5 Спецификация изделий и материалов
Разработан: ЦНИИпромзданий
Утверждён:18.11.1993 Главпроект Госстроя России (9-3-2/243)
Расположен в:Техническая документация Экология СТРОИТЕЛЬНЫЕ МАТЕРИАЛЫ И СТРОИТЕЛЬСТВО Строительство Торговые и промышленные здания Строительство Справочные документы Типовые строительные конструкции, изделия и узлы Общероссийский строительный каталог Строительные конструкции, изделия и узлы зданий и сооружений для всех видов строительства Конструкции, изделия и узлы зданий Ограждающие конструкции Узлы и детали стен и перегородок
Серия 2.430-21.94Серия 2.430-21.94Серия 2.430-21.94Серия 2.430-21.94Серия 2.430-21.94Серия 2.430-21.94Серия 2.430-21.94Серия 2.430-21.94Серия 2.430-21.94Серия 2.430-21.94Серия 2.430-21.94Серия 2.430-21.94Серия 2.430-21.94Серия 2.430-21.94Серия 2.430-21.94Серия 2.430-21.94Серия 2.430-21.94Серия 2.430-21.94Серия 2.430-21.94Серия 2.430-21.94Серия 2.430-21.94Серия 2.430-21.94Серия 2.430-21.94Серия 2.430-21.94Серия 2.430-21.94

© 2013 Ёшкин Кот :-) Карта сайта