Информационная система
«Ёшкин Кот»

Скачать базу одним архивом
Скачать обновления
История создания базы
Карта сайта

Скачать Серия 2.240-1 Выпуск 2. Перекрытия кирпичных зданий

Дата актуализации: 10.08.2017

Серия 2.240-1

Выпуск 2. Перекрытия кирпичных зданий

Обозначение: Серия 2.240-1
Обозначение англ: Series 2.240-1
Статус:заменен
Название рус.:Выпуск 2. Перекрытия кирпичных зданий
Дата добавления в базу:01.09.2013
Дата актуализации:05.05.2017
Дата введения:01.06.1992
Оглавление:Содержание
Пояснительная записка
Маркировка деталей опирания прогонов на стены и столбы и опирание многопустотных панелей без анкеровки на стены и прогоны
Маркировка деталей опирания многопустотных панелей с анкеровкой и опирания на стены без Д.Ш. с армированным поясом
Маркировка деталей опирания многопустотных панелей перекрытия различной толщины без анкеровки и с анкеровкой
Маркировка деталей опирания на стены ребристых панелей покрытия и деталей примыкания многопустотных панелей к ребристым
Маркировки деталей опирания железобетонных и деревянных балок и плит покрытия
Маркировка деталей опирания железобетонных и деревянных балок и панелей перекрытия на общую внутреннюю стену
Маркировка деталей панелей перекрытия и покрытия у деформационных швов на прямоугольных планах
Маркировка деталей примыкания панелей перекрытия к деформационным швам на углах поворота
Маркировка деталей примыкания балок и плит покрытия к деформационным швам
Маркировка деталей опирания панелей перекрытия над проездами
Детали 1-4
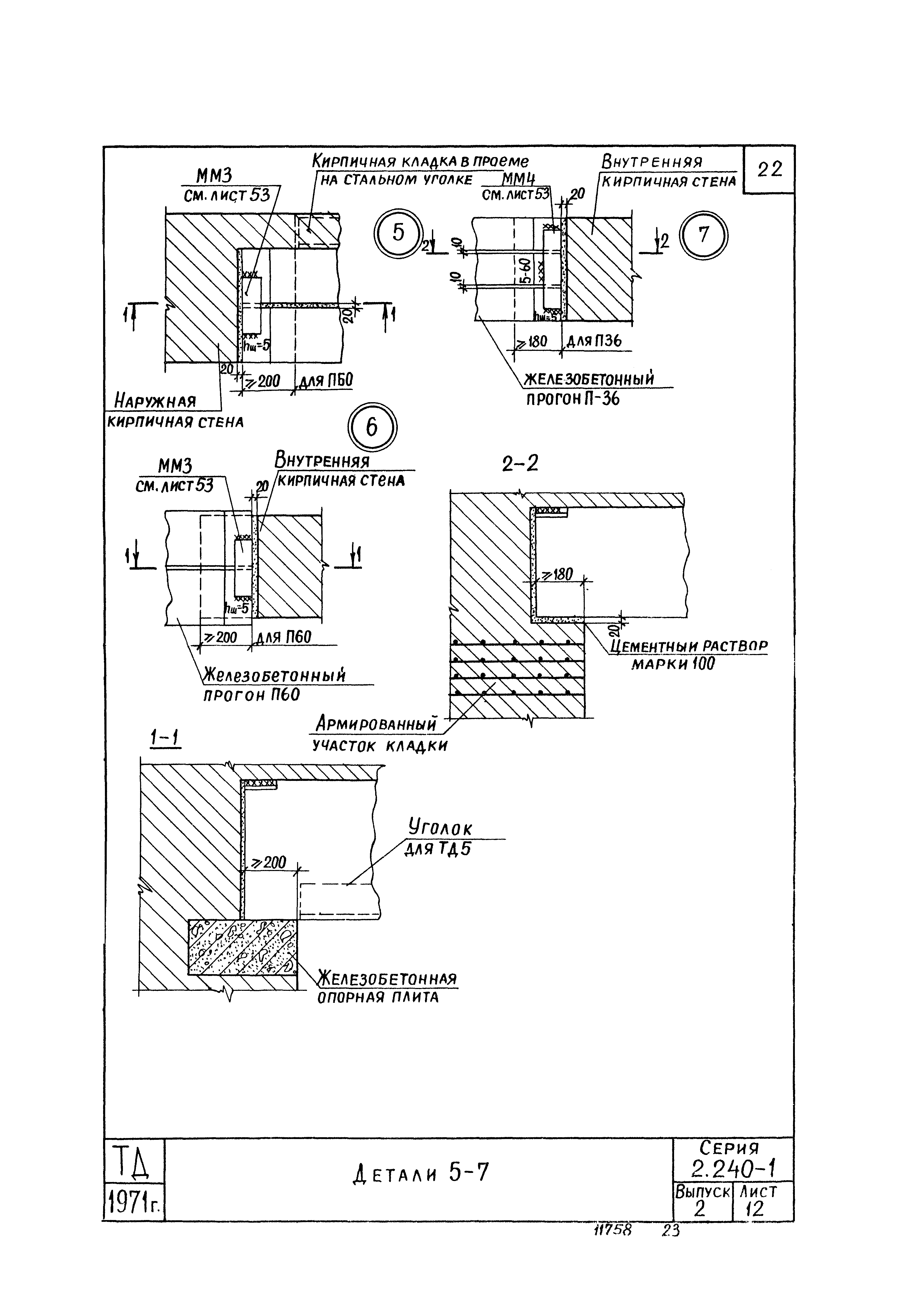
Детали 5-7
Детали 8-10
Детали 11, 12
Детали 13, 15
Детали 16, 17
Детали 18, 19
Детали 20, 21
Детали 22, 23
Детали 24, 25
Детали 26-28
Детали 29, 30
Детали 31, 32
Детали 33, 34
Детали 35, 36
Детали 37, 38
Детали 39, 40
Детали 41, 42
Детали 43, 44
Деталь 45
Детали 46-48
Деталь 49
Детали 50, 51
Детали 52-54
Детали 55, 56
Детали 57, 58
Детали 59, 60
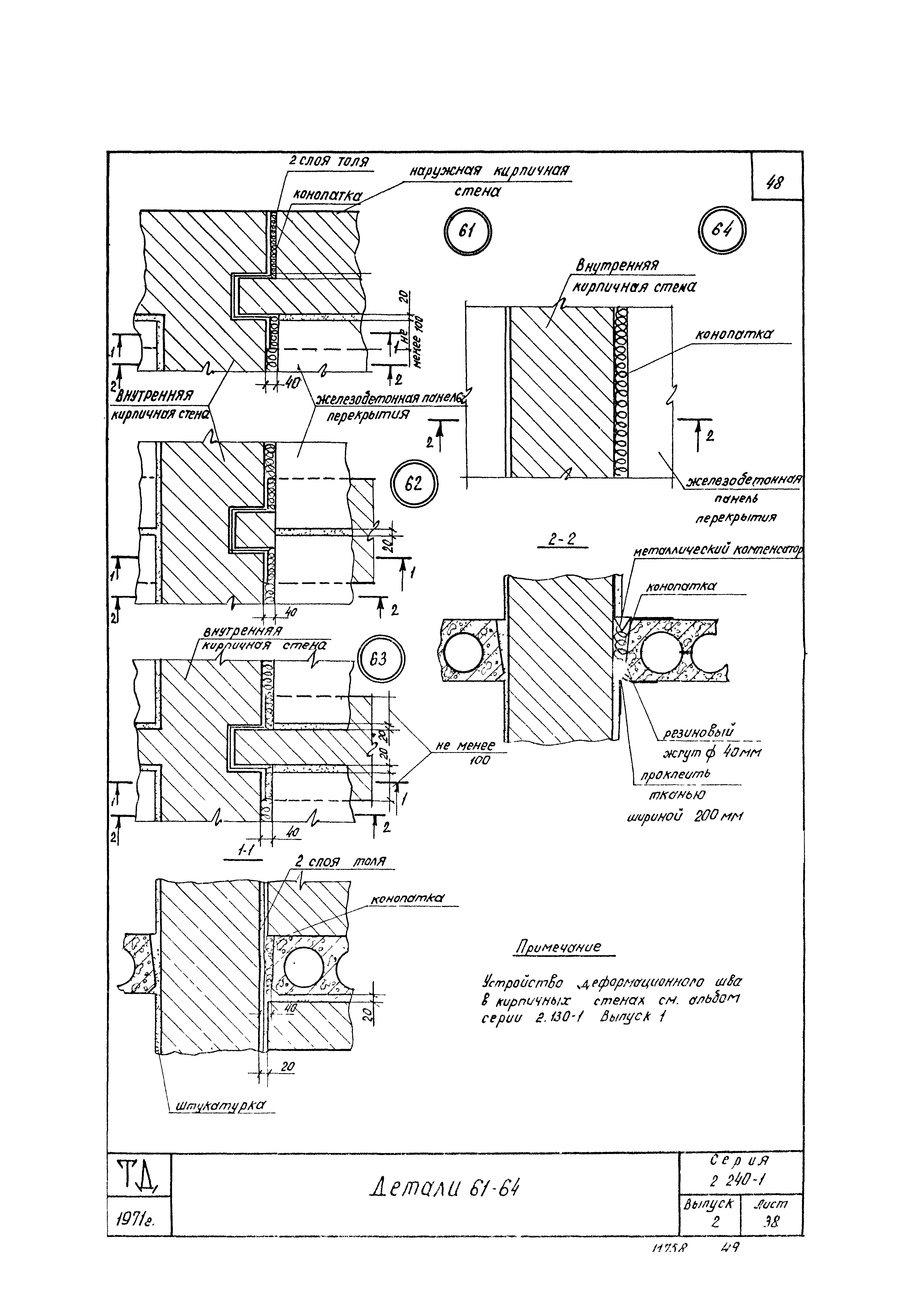
Детали 61-64
Детали 65-68
Детали 69-70
Деталь 71
Детали 72, 73
Детали 74, 75
Деталь 76
Детали 77, 78
Детали 79, 80
Детали 81, 82
Детали 81, 82. Разрезы 3-3 и 4-5
Детали 83, 84
Детали 85, 86
Детали 87, 88
Детали 89, 90
Монтажные металлические детали
Разработан: ЦНИИЭП учебных зданий Госгражданстроя
Утверждён:31.03.1972 Государственный комитет по гражданскому строительству и архитектуре при Госстрое СССР (56)
Издан: ЦИТП Госстроя СССР (CITP, Gosstroy (USSR) 1988 г. )
Расположен в:Техническая документация Экология СТРОИТЕЛЬНЫЕ МАТЕРИАЛЫ И СТРОИТЕЛЬСТВО Строительство Общественные здания Строительство Справочные документы Типовые строительные конструкции, изделия и узлы Общероссийский строительный каталог Строительные конструкции, изделия и узлы зданий и сооружений для всех видов строительства Конструкции, изделия и узлы зданий Несущие конструкции двухэтажных и многоэтажных зданий Различные изделия и элементы многоэтажных зданий Плиты и панели перекрытий Узлы и детали перекрытий
Чем заменён:
Серия 2.240-1Серия 2.240-1Серия 2.240-1Серия 2.240-1Серия 2.240-1Серия 2.240-1Серия 2.240-1Серия 2.240-1Серия 2.240-1Серия 2.240-1Серия 2.240-1Серия 2.240-1Серия 2.240-1Серия 2.240-1Серия 2.240-1Серия 2.240-1Серия 2.240-1Серия 2.240-1Серия 2.240-1Серия 2.240-1Серия 2.240-1Серия 2.240-1Серия 2.240-1Серия 2.240-1Серия 2.240-1Серия 2.240-1Серия 2.240-1Серия 2.240-1Серия 2.240-1Серия 2.240-1Серия 2.240-1Серия 2.240-1Серия 2.240-1Серия 2.240-1Серия 2.240-1Серия 2.240-1Серия 2.240-1Серия 2.240-1Серия 2.240-1Серия 2.240-1Серия 2.240-1Серия 2.240-1Серия 2.240-1Серия 2.240-1Серия 2.240-1Серия 2.240-1Серия 2.240-1Серия 2.240-1Серия 2.240-1Серия 2.240-1Серия 2.240-1Серия 2.240-1Серия 2.240-1Серия 2.240-1Серия 2.240-1Серия 2.240-1Серия 2.240-1Серия 2.240-1Серия 2.240-1Серия 2.240-1Серия 2.240-1Серия 2.240-1Серия 2.240-1Серия 2.240-1Серия 2.240-1Серия 2.240-1Серия 2.240-1

© 2013 Ёшкин Кот :-) Карта сайта