Информационная система
«Ёшкин Кот»

Скачать базу одним архивом
Скачать обновления
История создания базы
Карта сайта

Скачать Серия 2.430-17 Выпуск 2. Стальные конструктивные элементы стен

Дата актуализации: 10.08.2017

Серия 2.430-17

Выпуск 2. Стальные конструктивные элементы стен

Обозначение: Серия 2.430-17
Обозначение англ: Series 2.430-17
Статус:не действует
Название рус.:Выпуск 2. Стальные конструктивные элементы стен
Дата добавления в базу:01.09.2013
Дата актуализации:05.05.2017
Дата введения:01.12.1991
Оглавление:Содержание
Пояснительная записка
Стойки СФ-1 - СФ-7
Стойки СФ-8 - СФ-9
Стойка СФ-10
Опорные консоли РК-1 - РК-3, ФК-1 - ФК-4
Опорные консоли ТК-1 - ТК-3, ТК-1с - ТК-3с
Сварные опорные консоли РК-1с - РК-3с, ФК-1с - ФК-4с
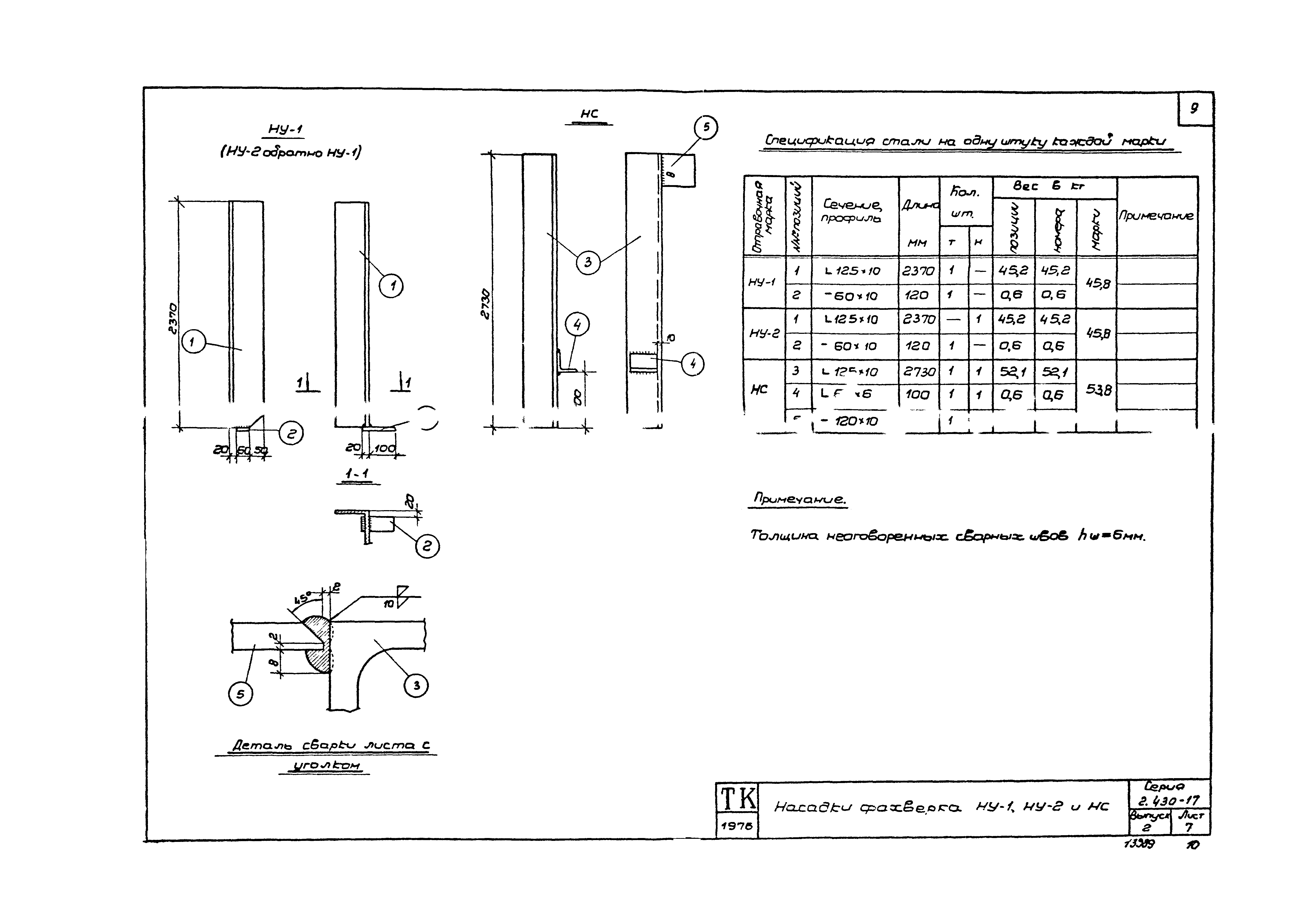
Насадки фахверка НУ, НУ-2, НС
Детали крепления Т-1 - Т-16
Детали крепления Т-17 - Т-25
Разработан: ЦНИИпромзданий
Утверждён:17.10.1977 Госстрой СССР (Государственный комитет Совета Министров СССР по делам строительства) (USSR Gosstroy 160)
Расположен в:Техническая документация Экология СТРОИТЕЛЬНЫЕ МАТЕРИАЛЫ И СТРОИТЕЛЬСТВО Строительство Торговые и промышленные здания Строительство Справочные документы Типовые строительные конструкции, изделия и узлы Общероссийский строительный каталог Строительные конструкции, изделия и узлы зданий и сооружений для всех видов строительства Конструкции, изделия и узлы зданий Несущие конструкции одноэтажных зданий Узлы и детали сопряжения железобетонных и стальных конструкций
Серия 2.430-17Серия 2.430-17Серия 2.430-17Серия 2.430-17Серия 2.430-17Серия 2.430-17Серия 2.430-17Серия 2.430-17Серия 2.430-17Серия 2.430-17Серия 2.430-17Серия 2.430-17

© 2013 Ёшкин Кот :-) Карта сайта