Скачать РМ-2924-01 Изделия остекления лоджий и балконов с применением тонкостенных стальных гнутых профилей для жилых домов серии П3МДата актуализации: 10.08.2017 РМ-2924-01
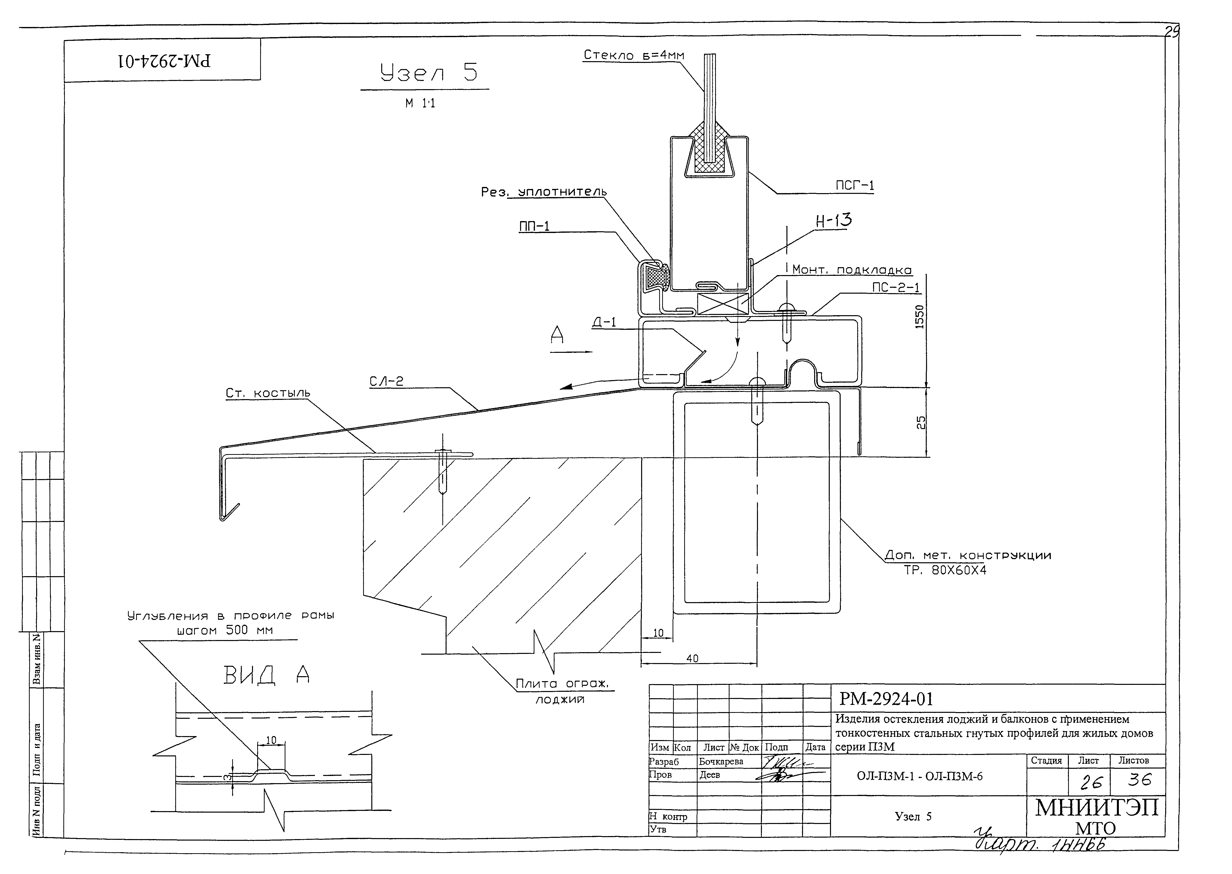
Изделия остекления лоджий и балконов с применением тонкостенных стальных гнутых профилей для жилых домов серии П3МОбозначение: | РМ-2924-01 | Обозначение англ: | РМ-2924-01 | Статус: | не определен законодательством | Название рус.: | Изделия остекления лоджий и балконов с применением тонкостенных стальных гнутых профилей для жилых домов серии П3М | Дата добавления в базу: | 01.09.2013 | Дата актуализации: | 05.05.2017 | Дата введения: | 01.01.2004 | Оглавление: | 1. Пояснительная записка и номенклатура конструкций остекления 2. Монтажные схемы 3. Разрезы 1-1, 2-2, 3-3, 4-4 4. Марки конструкций остекления 5. Рама окна 6. Рама створки 7. Узлы 1-20 8. Номенклатура профилей (Приложение №1) | Разработан: | МНИИТЭП
| Утверждён: | 01.01.2004 МНИИТЭП (MNIITEP )
| Принят: | ООО ИнжТехМаш сервис
| Расположен в: |
|
                                         
|