Скачать Типовой проект 801-2-64.85 Альбом I. Пояснительная записка. Архитектурно-строительные решенияДата актуализации: 10.08.2017 Типовой проект 801-2-64.85
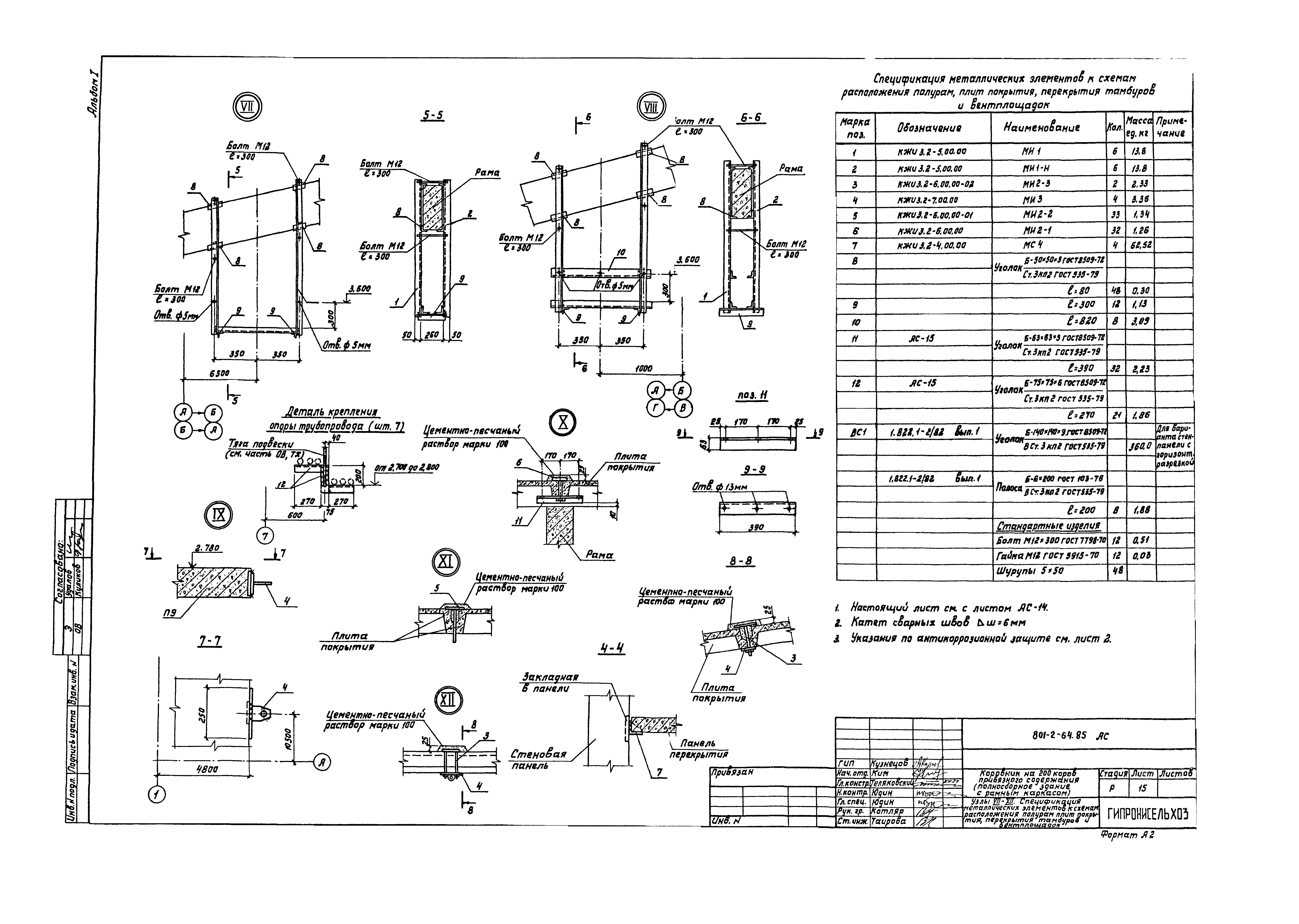
Альбом I. Пояснительная записка. Архитектурно-строительные решенияОбозначение: | Типовой проект 801-2-64.85 | Обозначение англ: | 801-2-64.85 | Статус: | не определен законодательством | Название рус.: | Альбом I. Пояснительная записка. Архитектурно-строительные решения | Дата добавления в базу: | 01.09.2013 | Дата актуализации: | 05.05.2017 | Дата введения: | 19.07.1984 | Оглавление: | Содержание Пояснительная записка Основной комплект рабочих чертежей марки АС Общие данные План на отм. 0,000 и 2,800 Разрезы 1-1; 2-2; 3-3; 4-4. План кровли Фасады 1 - 13; 13 - 1; А - Б; Б - А. Стены из панелей повышенной заводской готовности Фасады 1 - 13; 13 - 1; А - Б; Б - А. Стены из панелей с горизонтальной разрезкой План полов и схема расположения ограждений Узлы I - III Узлы IV - VI Схема расположения свайных фундаментов и фундаментных балок Схема расположения элементов каналов навозоудаления и кормушек. Фрагмент 1. Узел 1 и сечения Фрагмент 2 к схеме расположения каналов навозоудаления. Узел 2 и сечения Схема расположения сборных элементов полов стойл. Монолитные фундаменты Фом1, Фом2 и приямок ПЯм1 Схемы расположения полурам, плит покрытия, перекрытия тамбуров и вентплощадок Узлы VII - ХII. Спецификация металлических элементов к схемам расположения полурам, плит покрытия, перекрытия тамбуров и вентплощадок Схемы расположения стеновых панелей повышенной заводской готовности Спецификация к схеме расположения стеновых панелей повышенной заводской готовности Схемы расположения стеновых панелей с горизонтальной разрезкой Спецификация к схеме расположения стеновых панелей с горизонтальной разрезкой Узлы I - VIII к схеме расположения стеновых панелей Узлы IХ - ХIII к схеме расположения стеновых панелей Узлы ХIV - ХIХ к схеме расположения стеновых панелей | Разработан: | Институт Гипронисельхоз
| Утверждён: | 30.12.1983 Главсельстройпроект Минсельхоза СССР (Glavselstroyproject, USSR Minselkhoz 126)
| Расположен в: |
|
                         
|