Информационная система
«Ёшкин Кот»

Скачать базу одним архивом
Скачать обновления
История создания базы
Карта сайта

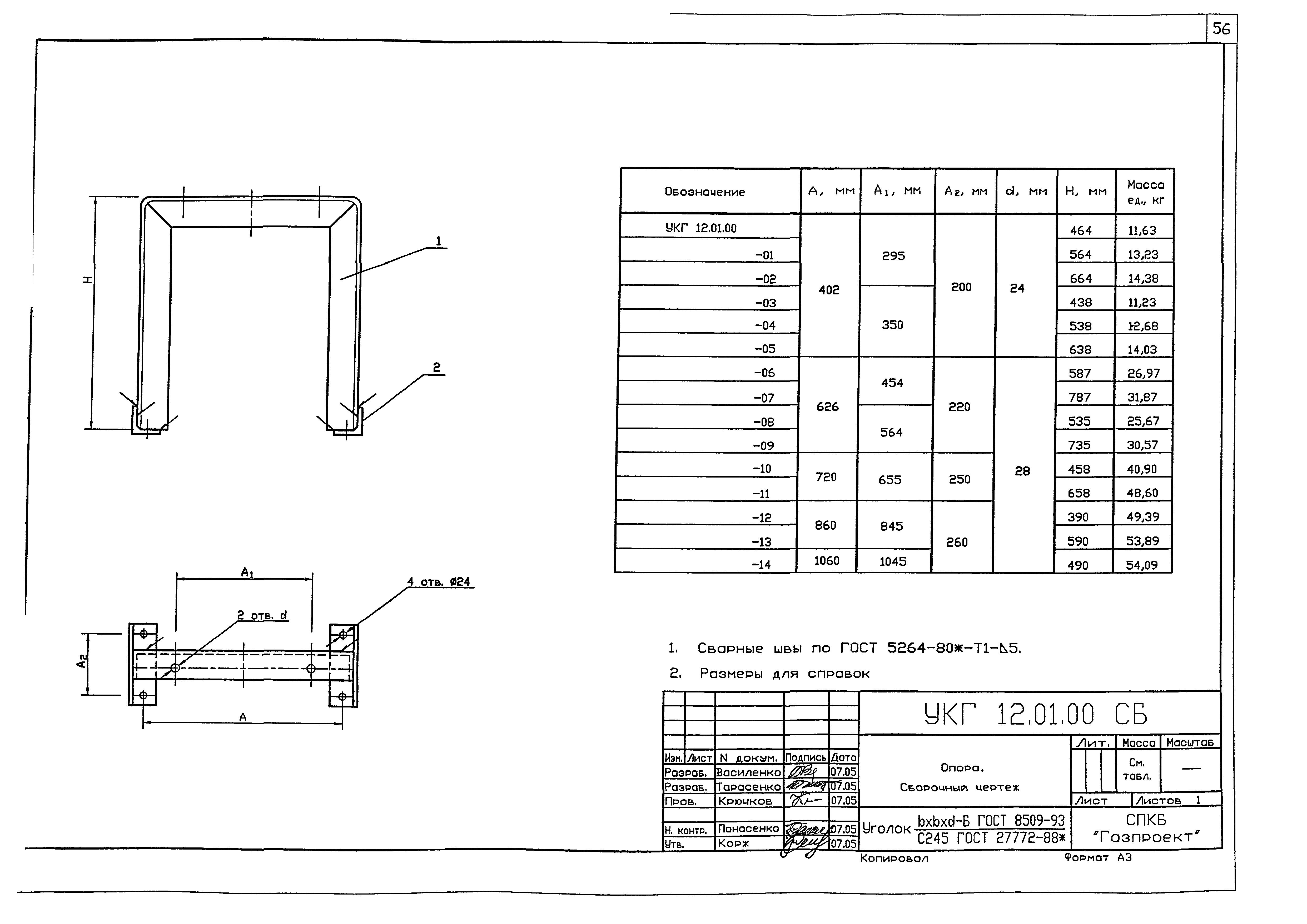
Скачать Серия 5.905-18.05 Выпуск 1. Узлы и детали. Рабочие чертежи

Дата актуализации: 10.08.2017

Серия 5.905-18.05

Выпуск 1. Узлы и детали. Рабочие чертежи

Обозначение: Серия 5.905-18.05
Обозначение англ: Series 5.905-18.05
Статус:не определен законодательством
Название рус.:Выпуск 1. Узлы и детали. Рабочие чертежи
Дата добавления в базу:01.09.2013
Дата актуализации:05.05.2017
Дата введения:07.11.2005
Область применения:Рабочие чертежи применяются при проектировании и строительстве газопроводов, систем газоснабжения природным газом с избыточным давлением до 1,2 МПа (12 кгс/см2) для районов с расчетной температурой наружного воздуха не ниже минус 40 градусов С.
Разработан: ОАО СПКБ Газпроект -БТЦ
Утверждён:03.11.2005 АО Росгазификация (Rosgazifikatsiya AO 51)
Расположен в:Техническая документация Экология ДОБЫЧА И ПЕРЕРАБОТКА НЕФТИ, ГАЗА И СМЕЖНЫЕ ПРОИЗВОДСТВА Оборудование для переработки нефти, нефтяных продуктов и природного газа Трубопроводы и их компоненты Строительство Справочные документы Типовые строительные конструкции, изделия и узлы Общероссийский строительный каталог Строительные конструкции, изделия и узлы зданий и сооружений для всех видов строительства Инженерное оборудование Инженерное оборудование; изделия и узлы инженерного оборудования зданий и сооружений Установки газоснабжения
Заменяет собой:
Серия 5.905-18.05Серия 5.905-18.05Серия 5.905-18.05Серия 5.905-18.05Серия 5.905-18.05Серия 5.905-18.05Серия 5.905-18.05Серия 5.905-18.05Серия 5.905-18.05Серия 5.905-18.05Серия 5.905-18.05Серия 5.905-18.05Серия 5.905-18.05Серия 5.905-18.05Серия 5.905-18.05Серия 5.905-18.05Серия 5.905-18.05Серия 5.905-18.05Серия 5.905-18.05Серия 5.905-18.05Серия 5.905-18.05Серия 5.905-18.05Серия 5.905-18.05Серия 5.905-18.05Серия 5.905-18.05Серия 5.905-18.05Серия 5.905-18.05Серия 5.905-18.05Серия 5.905-18.05Серия 5.905-18.05Серия 5.905-18.05Серия 5.905-18.05Серия 5.905-18.05Серия 5.905-18.05Серия 5.905-18.05Серия 5.905-18.05Серия 5.905-18.05Серия 5.905-18.05Серия 5.905-18.05Серия 5.905-18.05Серия 5.905-18.05Серия 5.905-18.05Серия 5.905-18.05Серия 5.905-18.05Серия 5.905-18.05Серия 5.905-18.05Серия 5.905-18.05Серия 5.905-18.05Серия 5.905-18.05Серия 5.905-18.05Серия 5.905-18.05Серия 5.905-18.05Серия 5.905-18.05Серия 5.905-18.05Серия 5.905-18.05Серия 5.905-18.05Серия 5.905-18.05Серия 5.905-18.05Серия 5.905-18.05Серия 5.905-18.05Серия 5.905-18.05Серия 5.905-18.05Серия 5.905-18.05Серия 5.905-18.05Серия 5.905-18.05Серия 5.905-18.05Серия 5.905-18.05Серия 5.905-18.05Серия 5.905-18.05Серия 5.905-18.05Серия 5.905-18.05Серия 5.905-18.05Серия 5.905-18.05Серия 5.905-18.05Серия 5.905-18.05Серия 5.905-18.05Серия 5.905-18.05Серия 5.905-18.05Серия 5.905-18.05Серия 5.905-18.05Серия 5.905-18.05Серия 5.905-18.05Серия 5.905-18.05Серия 5.905-18.05Серия 5.905-18.05Серия 5.905-18.05Серия 5.905-18.05Серия 5.905-18.05Серия 5.905-18.05Серия 5.905-18.05

© 2013 Ёшкин Кот :-) Карта сайта