| ||||||||||||||||||||||||||||||||
Скачать Серия 1.465.1-15 Выпуск 2. Плиты 1-го типоразмера с проемами в полке для легкосбрасываемой кровли. Рабочие чертежиДата актуализации: 10.08.2017
|
| Обозначение: | Серия 1.465.1-15 |
| Обозначение англ: | Series 1.465.1-15 |
| Статус: | не определен законодательством |
| Название рус.: | Выпуск 2. Плиты 1-го типоразмера с проемами в полке для легкосбрасываемой кровли. Рабочие чертежи |
| Дата добавления в базу: | 01.09.2013 |
| Дата актуализации: | 05.05.2017 |
| Дата введения: | 01.03.1990 |
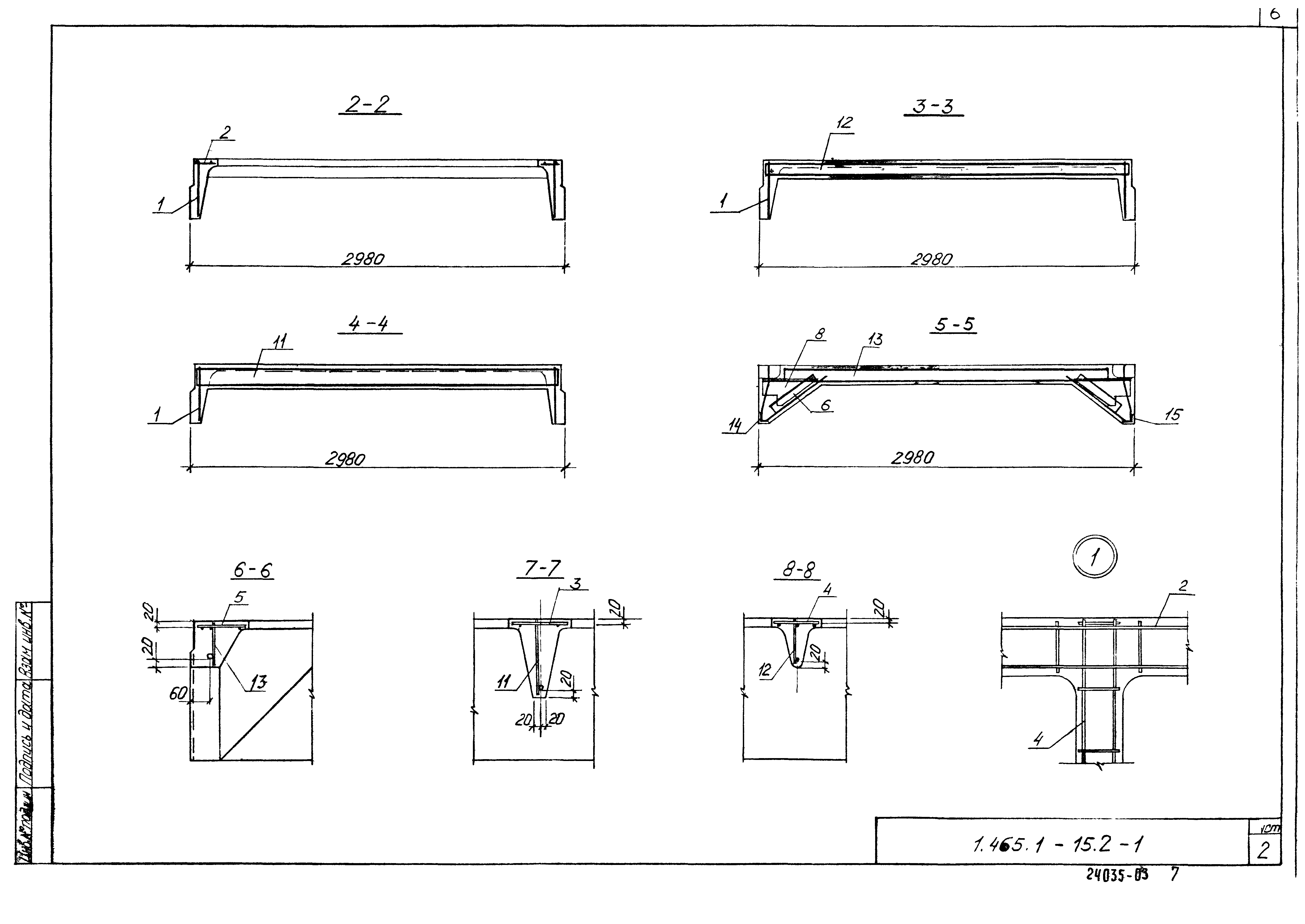
| Область применения: | В выпуске содержатся рабочие чертежи железобетонных предварительно напряженных плит размером 3х12 1-го типоразмера для легкосбрасываемой кровли (типа ПЛ). |
| Оглавление: | 1.465.1-15.2-ТТ Технические требования 1.465.1-15.2-1Ф4 Плита 1ПЛ12. Опалубочный чертеж 1.465.1-15.2-1 Плита 1ПЛ12 1.465.1-15.2-РС Ведомость расхода стали |
| Разработан: | ЦНИИпромзданий НИИСК Киевский Промстройпроект НИИЖБ |
| Утверждён: | 01.09.1989 Главпроект Госстроя России (100) |
| Издан: | ЦИТП Госстроя СССР (CITP, Gosstroy (USSR) 1989 г. ) |
| Расположен в: | |
| Заменяет собой: |


















