Информационная система
«Ёшкин Кот»

Скачать базу одним архивом
Скачать обновления
История создания базы
Карта сайта

Скачать Серия 3.503.1-81 Выпуск 6-2. Изделия арматурные закладные балок температурно-неразрезных и косых пролетных строений. Рабочие чертежи

Дата актуализации: 10.08.2017

Серия 3.503.1-81

Выпуск 6-2. Изделия арматурные закладные балок температурно-неразрезных и косых пролетных строений. Рабочие чертежи

Обозначение: Серия 3.503.1-81
Обозначение англ: Series 3.503.1-81
Статус:не определен законодательством
Название рус.:Выпуск 6-2. Изделия арматурные закладные балок температурно-неразрезных и косых пролетных строений. Рабочие чертежи
Дата добавления в базу:01.09.2013
Дата актуализации:05.05.2017
Дата введения:01.07.1992
Оглавление:3.503.1-81.6-2-ТТ Технические требования
3.503.1-81.6-2-1 Сетка плиты СП 140-…-5(6,8,9)
3.503.1-81.6-2-2 Сетка плиты СП 174-…-7(10,14,17)
3.503.1-81.6-2-3 Сетка плиты СП 174-…-8(22,13,16)
3.503.1-81.6-2-4 Сетка плиты СП 180-…-5(6,7,8,9,10,11,12)
3.503.1-81.6-2-5 Сетка плиты СП 194-…-7(9,10,12,14,17,21,22)
3.503.1-81.6-2-6 Сетка плиты СП 194-…-8(11,13,15,16,18,19,20)
3.503.1-81.6-2-7 Сетка ребра СР h-…-7(8,9,10)
3.503.1-81.6-2-8 Сетка ребра СР 90-…-11(12)
3.503.1-81.6-2-9 Сетка ребра СР 90-…-13(14)
3.503.1-81.6-2-10 Сетка ребра СР 120(150,170)-…11(12)
3.503.1-81.6-2-11 Сетка ребра СР 120(150,170)-…13(14)
3.503.1-81.6-2-12 Сетка торца СТ h-…-1
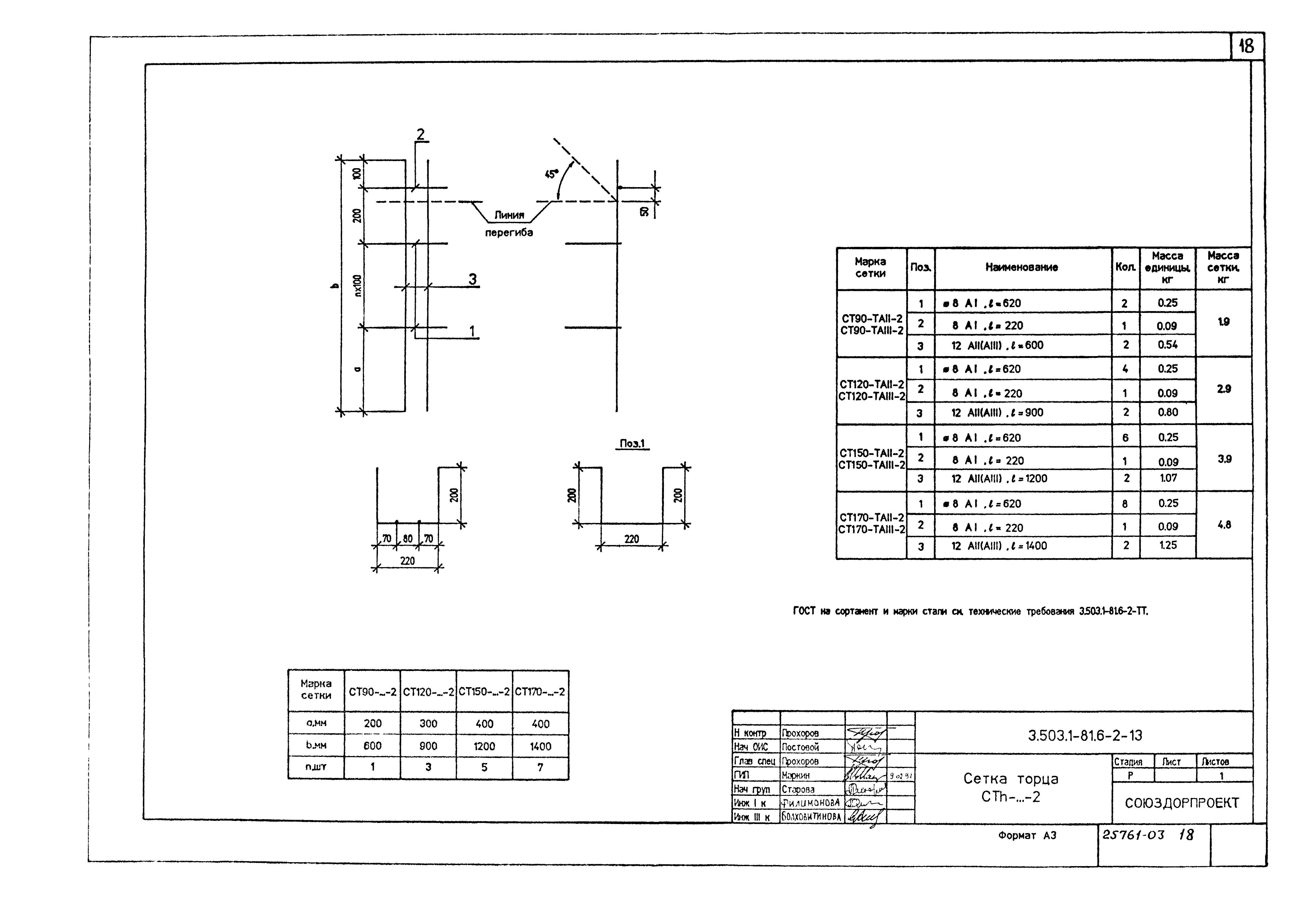
3.503.1-81.6-2-13 Сетка торца СТ h-…-2
3.503.1-81.6-2-14 Сетка торца СТ h-…-3
3.503.1-81.6-2-15 Сетка вута СВ-ТАl-4
3.503.1-81.6-2-16 Сетка вута СВ-ТАl-5(6)
3.503.1-81.6-2-17 Стержень отдельный
3.503.1-81.6-2-18 Изделие закладное МН-…-12(13,14,15)
Разработан: Союздорпроект Минтрансстроя
Утверждён:03.02.1992 Корпорация Трансстрой (Transstroy Corporation 3002-18/4)
Издан: АПП ЦИТП (1993 г. )
Расположен в:Техническая документация Экология ГРАЖДАНСКОЕ СТРОИТЕЛЬСТВО Сооружение мостов Строительство Справочные документы Типовые строительные конструкции, изделия и узлы Общероссийский строительный каталог Строительные конструкции, изделия и узлы зданий и сооружений для всех видов строительства Конструкции и изделия сооружений и оборудования зданий Надземные сооружения Конструкции и сооружения транспорта Пролетные строения мостов, мосты и путепроводы
Серия 3.503.1-81Серия 3.503.1-81Серия 3.503.1-81Серия 3.503.1-81Серия 3.503.1-81Серия 3.503.1-81Серия 3.503.1-81Серия 3.503.1-81Серия 3.503.1-81Серия 3.503.1-81Серия 3.503.1-81Серия 3.503.1-81Серия 3.503.1-81Серия 3.503.1-81Серия 3.503.1-81Серия 3.503.1-81Серия 3.503.1-81Серия 3.503.1-81Серия 3.503.1-81Серия 3.503.1-81Серия 3.503.1-81Серия 3.503.1-81Серия 3.503.1-81

© 2013 Ёшкин Кот :-) Карта сайта