Информационная система
«Ёшкин Кот»

Скачать базу одним архивом
Скачать обновления
История создания базы
Карта сайта

Скачать Серия 1.450.3-7.94 Выпуск 2. Конструкции из горячекатаных профилей. Чертежи КМ

Дата актуализации: 10.08.2017

Серия 1.450.3-7.94

Выпуск 2. Конструкции из горячекатаных профилей. Чертежи КМ

Обозначение: Серия 1.450.3-7.94
Обозначение англ: Series 1.450.3-7.94
Статус:не определен законодательством
Название рус.:Выпуск 2. Конструкции из горячекатаных профилей. Чертежи КМ
Дата добавления в базу:01.09.2013
Дата актуализации:05.05.2017
Дата введения:01.01.1995
Оглавление:1.450.3-7942-ТТ Технические требования
1.450.3-7942-КМ1 Лестницы из горячекатаных профилей с углом наклона 45 градусов и 60 градусов
1.450.3-7942-КМ1.1 Номенклатура лестниц из горячекатаных профилей с углом наклона 45 градусов
1.450.3-7942-КМ1.2 Номенклатура лестниц из горячекатаных профилей с углом наклона 60 градусов
1.450.3-7942-КМ1.3 Номенклатура ступеней типа Ф; В; Р
1.450.3-7942-КМ2 Площадки из горячекатаных профилей
1.450.3-7942-КМ2.1 Номенклатура площадок из горячекатаных профилей
1.450.3-7942-КМ2.2 Номенклатура настилов площадок типа Ф; В; Р
1.450.3-7942-КМ3 Ограждения из горячекатаных профилей
1.450.3-7942-КМ3.1 Номенклатура ограждений из горячекатаных профилей для лестниц и площадок
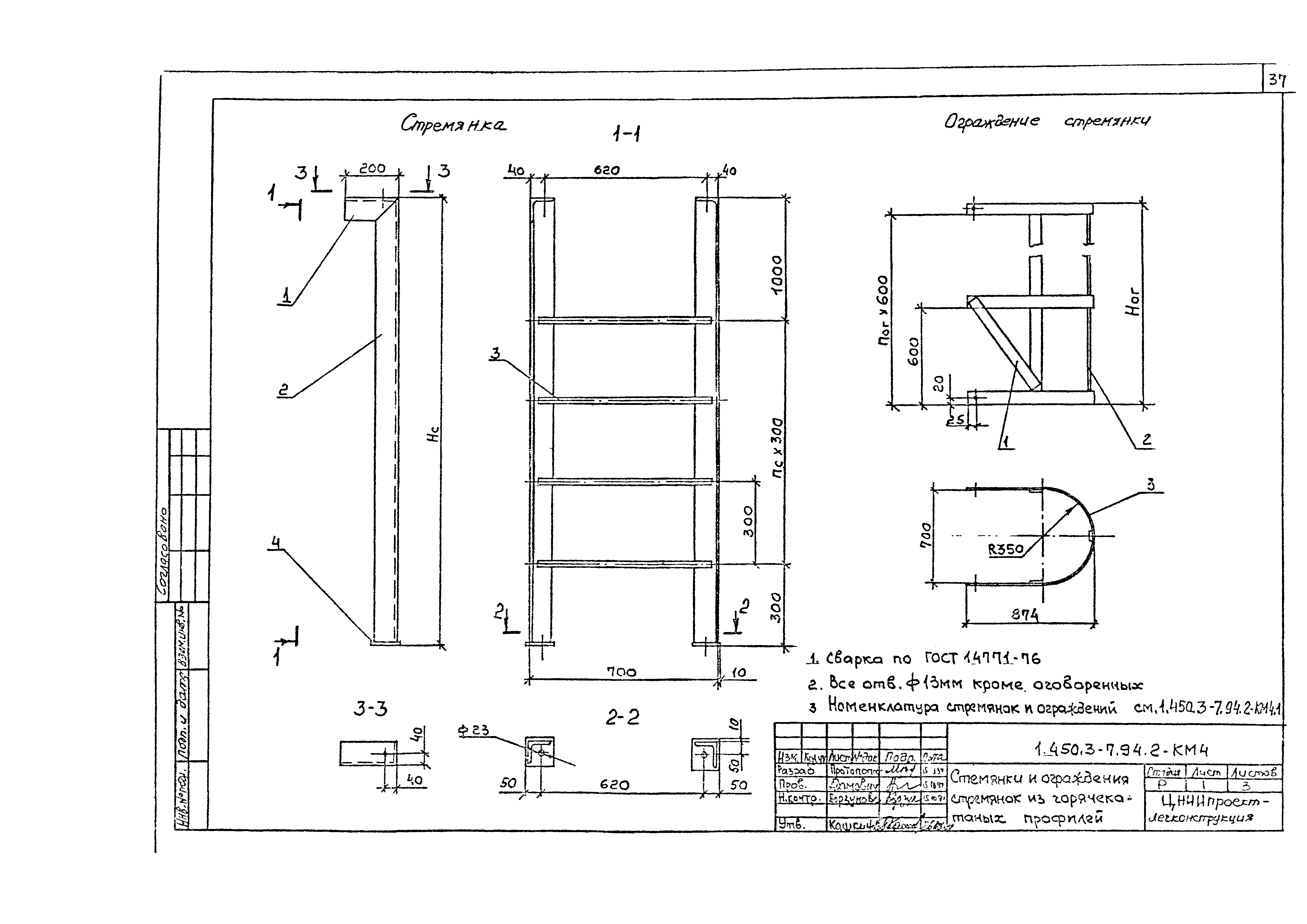
1.450.3-7942-КМ4 Стремянки и ограждения стремянок из горячекатаных профилей
1.450.3-7942-КМ4.1 Номенклатура стремянок и ограждений из горячекатаных профилей
1.450.3-7942-КМ5 Площадки, колонны, стойки и связи из горячекатаных профилей
1.450.3-7942-КМ5.1 Номенклатура колонн, площадок, стоек и связей из горячекатаных профилей
1.450.3-7942-КМ6 Доборные элементы из горячекатаных профилей
1.450.3-7942-КМ6.1 Номенклатура добротных элементов из горячекатаных профилей
Разработан: ЦНИИПроектлегконструкция
Утверждён:21.11.1994 Главпроект Минстроя России (9.3.1/166)
Издан: МГП Информрекламиздат (1995 г. )
Расположен в:Техническая документация Экология СТРОИТЕЛЬНЫЕ МАТЕРИАЛЫ И СТРОИТЕЛЬСТВО Конструкции зданий Конструкции зданий прочие Строительные элементы Строительные элементы прочие Строительство Справочные документы Типовые строительные конструкции, изделия и узлы Общероссийский строительный каталог Строительные конструкции, изделия и узлы зданий и сооружений для всех видов строительства Конструкции, изделия и узлы зданий Несущие конструкции двухэтажных и многоэтажных зданий Лестницы
Серия 1.450.3-7.94Серия 1.450.3-7.94Серия 1.450.3-7.94Серия 1.450.3-7.94Серия 1.450.3-7.94Серия 1.450.3-7.94Серия 1.450.3-7.94Серия 1.450.3-7.94Серия 1.450.3-7.94Серия 1.450.3-7.94Серия 1.450.3-7.94Серия 1.450.3-7.94Серия 1.450.3-7.94Серия 1.450.3-7.94Серия 1.450.3-7.94Серия 1.450.3-7.94Серия 1.450.3-7.94Серия 1.450.3-7.94Серия 1.450.3-7.94Серия 1.450.3-7.94Серия 1.450.3-7.94Серия 1.450.3-7.94Серия 1.450.3-7.94Серия 1.450.3-7.94Серия 1.450.3-7.94Серия 1.450.3-7.94Серия 1.450.3-7.94Серия 1.450.3-7.94Серия 1.450.3-7.94Серия 1.450.3-7.94Серия 1.450.3-7.94Серия 1.450.3-7.94Серия 1.450.3-7.94Серия 1.450.3-7.94Серия 1.450.3-7.94Серия 1.450.3-7.94Серия 1.450.3-7.94Серия 1.450.3-7.94Серия 1.450.3-7.94Серия 1.450.3-7.94Серия 1.450.3-7.94Серия 1.450.3-7.94Серия 1.450.3-7.94Серия 1.450.3-7.94Серия 1.450.3-7.94Серия 1.450.3-7.94Серия 1.450.3-7.94Серия 1.450.3-7.94Серия 1.450.3-7.94Серия 1.450.3-7.94

© 2013 Ёшкин Кот :-) Карта сайта