Скачать Серия 2.130-1 Выпуск 11. Наружные входыДата актуализации: 10.08.2017 Серия 2.130-1
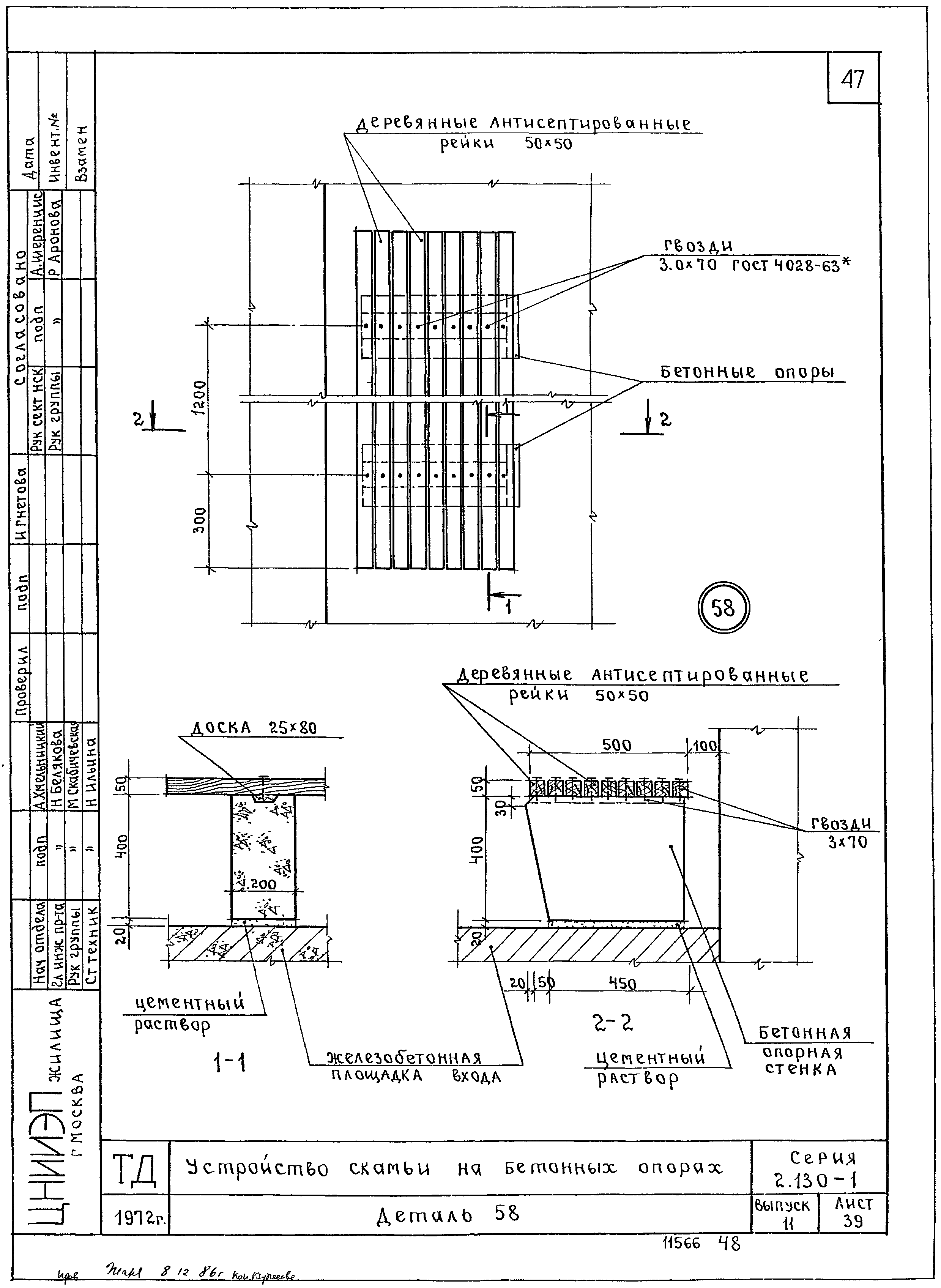
Выпуск 11. Наружные входыОбозначение: | Серия 2.130-1 | Обозначение англ: | Series 2.130-1 | Статус: | cправочные материалы, мп, тпр | Название рус.: | Выпуск 11. Наружные входы | Дата добавления в базу: | 01.09.2013 | Дата актуализации: | 05.05.2017 | Дата введения: | 10.02.1972 | Оглавление: | Содержание Пояснительная записка Схема 1, 2. Наружные входы с козырьками на стенках или стойках. Маркировка деталей Схема 3, 4. Наружные входы с козырьками на стенках или стойках с витражом. Маркировка деталей Схема 5. Наружный вход с консольным козырьком. Пояснения к схемам. Маркировка деталей Схема 6, 7. Входные лестницы. Маркировка деталей Устройство площадки крыльца и примыкание её к стене здания из кирпича. Детали 1, 2, 2а Примыкание площадки крыльца к стене здания из крупных панелей или блоков. Устройство металлической решетки. Детали 3, 4 Устройство входной лестницы из стандартных ступеней. Деталь 5 Устройство входной лестницы и площадки крыльца. Деталь 6 Устройство карниза козырька при неорганизованном водостоке. Детали 7, 8 Устройство карниза козырька из алюминиевых листов при организованном водостоке. Детали 9 Устройство лотка для сброса воды с покрытия козырька. Деталь 10 Устройство карниза козырька при организованном водостоке. Деталь 11 Крепление и примыкание козырька к стене из крупных панелей. Вариант 1. Деталь 12 Крепление и примыкание козырька к стене из крупных панелей. Вариант 2. Деталь 13 Крепление и примыкание козырька к стене из кирпичной стене. Деталь 14 Крепление и примыкание козырька к стене из крупных блоков. Деталь 15 Примыкание козырька входа к стене из кирпича, из крупных блоков или панелей. Деталь 16, 17 Крепление железобетонного экрана к козырьку и площадке входа. Детали 18, 19 Крепление асбестоцементной стойки к козырьку и площадке входа. Детали 20, 21 Крепление металлической стойки к козырьку и площадке входа. Детали 22, 23 Крепление железобетонной стойки к железобетонной балке. Детали 24 Крепление железобетонной стойки к железобетонной плите входа. Детали 25 Крепление металлической декоративной решетки к козырьку входа. Детали 26 Крепление металлической декоративной решетки к площадке входа. Детали 27 Крепление металлической декоративной решетки к козырьку и площадке входа. Детали 28, 29 Примыкание стальных элементов витража к наружным стенам, железобетонному экрану, к дверному блоку и установка стекла. Горизонтальные сечения. Детали 30, 31, 32, 33 Примыкание стальных элементов витража к козырьку, к плите входа и установка стекал. Вертикальные сечения. Детали 34, 35 Примыкание витража к наружным стенам и установка стекла. Детали 36, 37, 38, 39 Установка витринного стекла и элементы крепления. Узел "А" Крепление верха стойки витража к железобетонному козырьку. Деталь 40 Крепление низа стойки витража к плите входа. Деталь 41 Устройство площадки и марша по металлическом косоурам. Детали 42, 43 Устройство площадки по металлическим косоурам. Детали 44, 45, 46 Устройства марша по металлическим косоурам их стандартных ступней. Детали 47, 48 Крепление и примыкание деревянных элементов витража. Горизонтальные сечения. Детали 49, 50, 51, 52 Крепление и примыкание деревянных элементов витража. Вертикальные сечения. Детали 53, 54, 55 Крепление светильника к козырьку входа. Деталь 56 Устройство цветочницы из кирпича. Деталь 57 Устройство скамьи на бетонных опорах. Деталь 58 Устройство лестница для спуска в подвал. Деталь 59 | Разработан: | ЦНИИЭП жилища
| Утверждён: | 30.11.1971 Государственный комитет по гражданскому строительству (210)
| Издан: | ЦИТП Госстроя СССР (CITP, Gosstroy (USSR) )
| Расположен в: |
|
                                               
|