Скачать Серия 2.130-1 Выпуск 9. Балконы, лоджии, эркеры, кирпичных и крупноблочных зданийДата актуализации: 10.08.2017 Серия 2.130-1
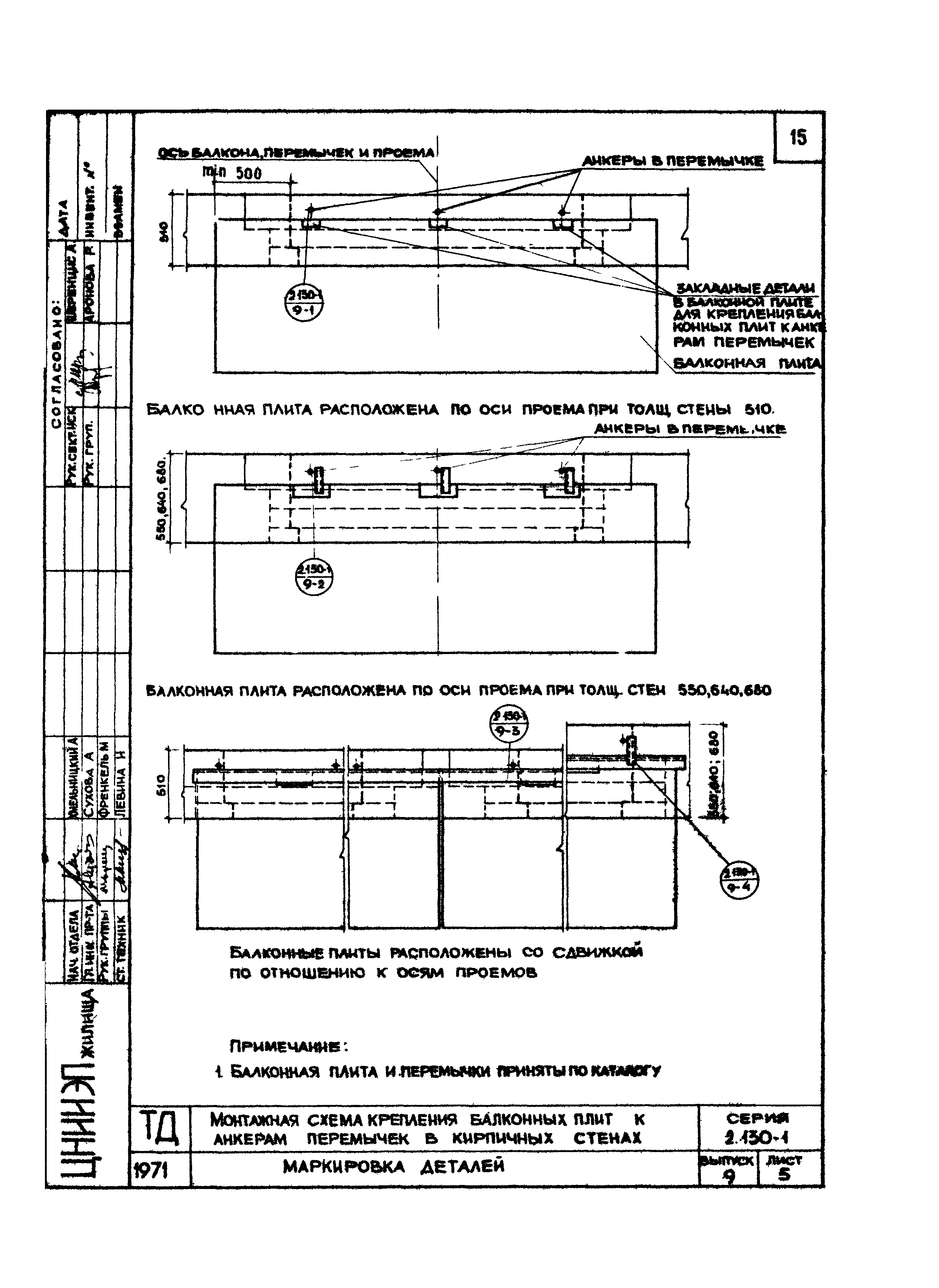
Выпуск 9. Балконы, лоджии, эркеры, кирпичных и крупноблочных зданийОбозначение: | Серия 2.130-1 | Обозначение англ: | Series 2.130-1 | Статус: | отменен | Название рус.: | Выпуск 9. Балконы, лоджии, эркеры, кирпичных и крупноблочных зданий | Дата добавления в базу: | 01.09.2013 | Дата актуализации: | 05.05.2017 | Дата введения: | 01.06.1989 | Оглавление: | Содержание выпуска Пояснительная записка Варианты общих видов балконов. Маркировка деталей Монтажная схема балкона (одинарного). Маркировка деталей Монтажная схема балкона из двух или нескольких плит. Маркировка деталей Монтажная схема крепления балконных плит к анкерам перемычек в кирпичных стенах. Маркировка деталей Крепление в кирпичную стену балконной плиты, расположенной по оси проема. Деталь 1 Крепление в кирпичную стену балконной плиты, расположенной по оси проема. Деталь 2 Крепление в кирпичную стену балконной плиты, сдвинутой по отношению к оси проема. Деталь 3 Крепление в кирпичную стену балконной плиты, сдвинутой по отношению к оси проема. Деталь 4 Крепление балконной плиты в стену из крупных легкобетонных блоков. Деталь 5 Стык балконных плит. Деталь 6 Стык балконных плит с установкой разделительных стенки высотой на этаж. Деталь 7 Варианты крепления стоек ограждения к балконной плите. Детали 8, 8а, 9 Угловое крепление обычного поручня ограждения балкона. Деталь 10 Угловое крепление усиленного поручня ограждения балкона. Деталь 11 Стык усиленных поручней ограждений балконов. Деталь 12 Стык обычных поручней ограждений двух балконов с установкой разделительной стенки. Деталь 13 Стык усиленных поручней ограждений двух балконов с установкой разделительной стенки. Деталь 14 Крепление разделительной стенки или бокового экрана в кирпичную стену. Деталь 15 Крепление ограждения балкона в кирпичную стену. Деталь 16 Крепление разделительной стенки или бокового экрана в стену из крупных легкобетонных блоков. Деталь 17 Крепление ограждения балкона в стену из крупных легкобетонных блоков. Деталь 18 Крепление экранов из листовых материалов к металлическому ограждению балкона. Маркировка деталей. Деталь 19, 20 Крепление спущенного экрана из листовых материалов к металлическому ограждению балкона. Деталь 21 Схема крепления экрана армостекла (в рамке из уголков) к металлическому ограждению балкона. Маркировка деталей Привязка экрана из армостекла к крайней стойке металлического ограждения балкона Деталь 22 Стык экранов из армостекла. Деталь 23 Крепление экрана из армостекла к металлическому ограждению балкона. Верхний узел. Деталь 24 Крепление экрана из армостекла к металлическому ограждению балкона. Нижний узел. Деталь 25 Крепление армостекла к рамке. Деталь 26, 27 Монтажная схема крепления бокового экрана к плите и ограждению балкона. Маркировка деталей Крепление бокового экрана к плите и ограждению балкона. Детали 28, 29, 30, 31 Крепление бокового экрана к плите балкона. Детали 32, 33, 34 Крепление деревянной декоративной решетки к венчающей балконной плите. Детали 35, 36 Крепление декоративной деревянной решетки к балконному ограждению. Детали 37 Стык декоративных деревянных решеток по высоте. Деталь 38 Крепление нижнего звена декоративной деревянной решетки к ограждению. Деталь 39 Схема установки металлических цветочниц на ограждение. Маркировка деталей Крепление металлической цветочницы к ограждению. Деталь 40, 41 Крепление металлической цветочницы к ограждению. Деталь 42, 43 Установка блока балконной двери (раздельная столярка) в кирпичной стене. Детали 44 Установка блока балконной двери (спаренная столярка) в кирпичной стене. Детали 45 Установка блока балконной двери (раздельная столярка) в стене из крупных легкобетонных блоков. Детали 46 Установка блока балконной двери (спаренная столярка) в стене из крупных легкобетонных блоков. Детали 47 Устройство полов и заделка гидроизоляции на балконных плитах. Детали 48, 49, 50, 51, 52 Варианты общих видов лоджий. Маркировки деталей Монтажная схема лоджий. Маркировки деталей Разрезы по 1-1, 2-2, по 3-3, по 4-4. Маркировка деталей Крепление ограждения лоджий. Деталь 53 Крепление ограждения лоджий в кирпичную стену. Деталь 54 Ограждение лоджий из кирпича. Разреза по 1-1; 2-2. Маркировка деталей Ограждение лоджий из кирпича. Крепление каркаса и штукатурной сетки. Детали 55, 56, 57 Монтажная схема симметричного эркера. Маркировка деталей Крепление керамзитобетонной плиты симметричного эркера к панелям перекрытия. Детали 58, 59 Установка блока балконной двери (спаренная столярка) на плиту эркера. Детали 60, 61, 62 Монтажная схема асимметричного эркера. Маркировка деталей Крепление керамзитобетонной плиты асимметричного эркера к панелям перекрытия. Детали 63 Крепление эркерной плиты над 1 этажом. Деталь 64 Разрез по 3-3. Установка блока балконной двери (спаренная столярка) на плиту эркера. Детали 65, 66, 67 | Разработан: | ЦНИИЭП жилища
| Утверждён: | 22.07.1971 Государственный комитет по гражданскому строительству (131)
| Издан: | ЦИТП Госстроя СССР (CITP, Gosstroy (USSR) 1971 г. )
| Расположен в: |
|
                                                                        
|