| ||||||||||||||||||||||||||||
Скачать Серия 3.017-1 Выпуск 1. Железобетонные элементы оградДата актуализации: 10.08.2017
|
| Обозначение: | Серия 3.017-1 |
| Обозначение англ: | Series 3.017-1 |
| Статус: | заменен |
| Название рус.: | Выпуск 1. Железобетонные элементы оград |
| Дата добавления в базу: | 01.09.2013 |
| Дата актуализации: | 05.05.2017 |
| Дата введения: | 01.03.1993 |
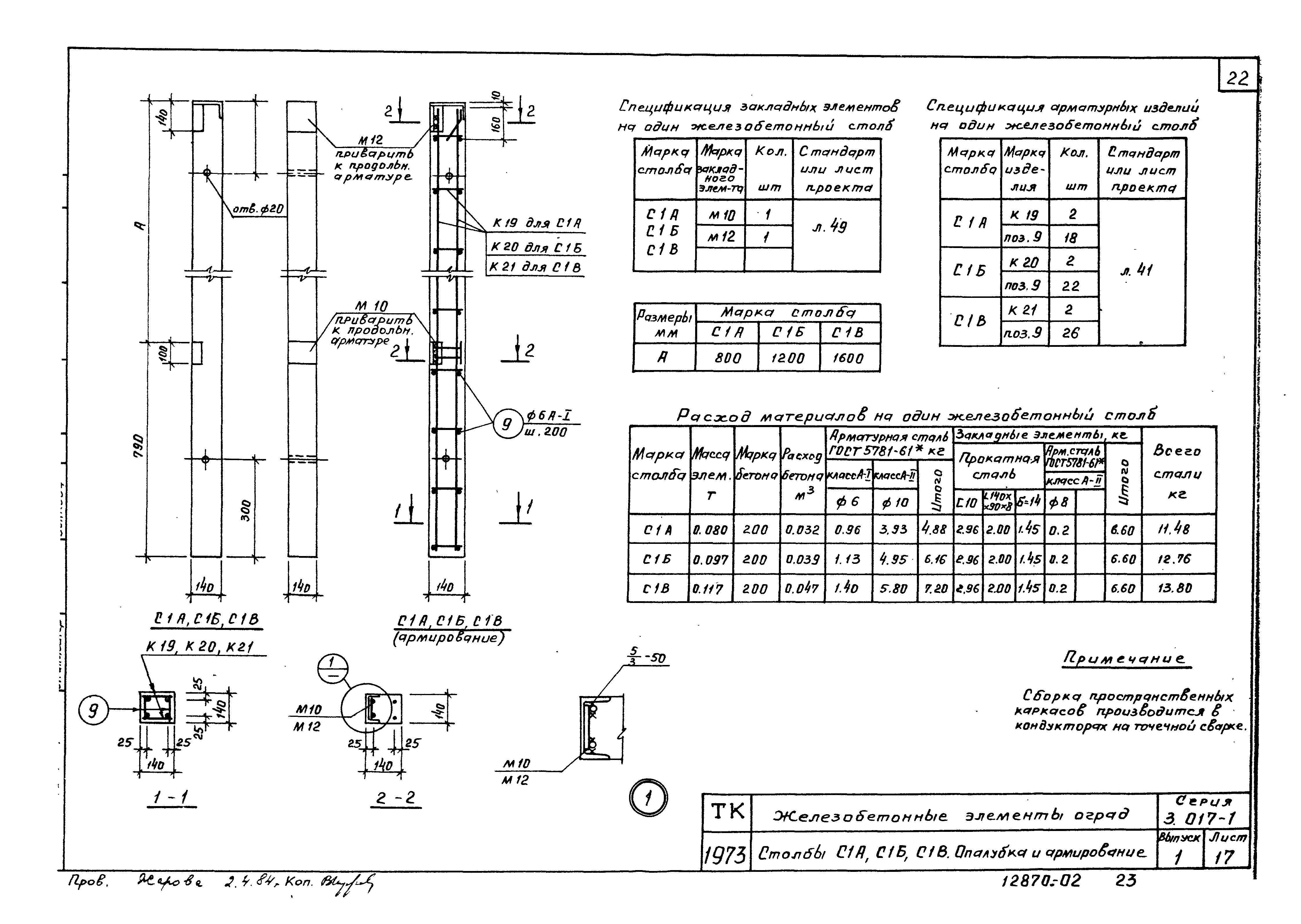
| Оглавление: | Пояснительная записка Панели П1А, П1Аа, П1Б, П1Бб. Опалубка Панель П2А. Опалубка и армирование Панель П2Б. Опалубка и армирование Панель П2В. Опалубка и армирование Панели П2А, П2Б, П2В. Фрагмент фасада Панели П2А, П2Б, П2В. Опалубка и армирование Панели П3А, П3Б, П3В. Фрагмент фасада 1, 2, 3 Панели П4Б, П4БА, П4Бк, П4В, П4Ва, П4Вк. Опалубка Панели П1А, П1Аа, П1Б, П1Ба, П4Б, П4Ба, П4Бк, П4В, П4Ва, П4Вк. Армирование Панели П5В, П5Ва, П5Вк. Опалубка Панели П6В, П6Ва, П6Вк. Опалубка Панели П5В, П5Ва, П5Вк, П6В, П6Вк. Армирование Цокольные панели Ц1, Ц2. Опалубка и армирование Фундаменты Ф1, Ф1к, Ф2, Ф2к. Опалубка и армирование Фундаменты Ф3, Ф4, Ф5. Опалубка и армирование Фундаменты Ф6, Ф7. Опалубка и армирование Столбы С1А, С1Б, С1В. Опалубка и армирование Столбы С2А, С2Б, С2В. Опалубка и армирование Столбы С3А, С3Аа, С3Аб, С3Ав, С3Аг. Опалубка Столбы С3Ад, С3Ае, С3Аж, С3Аи, С3Ак. Опалубка. Столбы С3А, С3Аа - С3Ак. Армирование Столбы С3Б, С3Ба, С3Бб, С3Бг, С3Бд, С3Бе, С3Бк. Опалубка Столбы С3Бж, С3Бн, С3Бл, С3Бм. Опалубка. Столбы С3Б, С3Ба - С3Бм. Армирование Столбы С3В, С3Ва, С3Вб, С3Вг, С3Вк, С4В, С4Ва. Опалубка Столбы С3Вд, С3Ве, С3Вж, С3Ви, С3Вл, С3Вм, С3Вр, С4Вб. Опалубка Столбы С3Вн, С3Вп. Опалубка. Столбы С3В, С3Ва - С3Вр, С4В, С4Ва, С4Вб. Армирование Столбы С5А, С5Аа, С5Б, С5Ба, С5В, С5Ва. Опалубка Столбы С5Аб, С5Бб, С5Бв. Опалубка. Столбы С5А, С5Аа, С5Аб, С5Б, С5Ба, С5Бб, С5В, С5Ва, С5Вб. Армирование Столбы С6Б, С6В. Опалубка и армирование Столбы С7Аа - С7Ав, С7Ба - С7Бе, С7Ва, С7Вб, С7Вг, С7Вд Столбы С7Аж - С7Ал; С7Бж - С7Бл; С7Вж - С7Вл Пространственные каркасы КП1, КП2 Пространственный каркас КП3 Пространственный каркас КП4 Пространственный каркас КП5 Пространственные каркасы КП6, КП7, КП8 Пространственные каркасы КП9, КП10, КП11, КП12 Пространственные каркасы КП13, КП14 Пространственные каркасы КП15, КП16 Каркасы К1 - К9 Каркасы К10 - К18 Каркасы К19 - К24 Каркасы К25 - К33 Сетки С1 - 10 Сетки С11 - 13 Сетки С14 - 16. Петли П1. Сетки С1 - П8 Сетки С17 - 19. Петли П1. Сетки С9 - П12 Сетки С20 - 23 Закладные элементы М1 - М8 Закладные элементы М9 - М12 Закладные элементы М13 - М15 |
| Разработан: | ЦНИИП градостроительства Проектный институт №2 |
| Утверждён: | 01.04.1974 Госстрой СССР (Государственный комитет Совета Министров СССР по делам строительства) (USSR Gosstroy 58) |
| Расположен в: | |
| Чем заменён: |
























































