Информационная система
«Ёшкин Кот»

Скачать базу одним архивом
Скачать обновления
История создания базы
Карта сайта

Скачать Альбом ППЧ2-97 Повторно-привязочные чертежи для бесканальной прокладки теплопроводов в ППУ изоляции

Дата актуализации: 10.08.2017

Альбом ППЧ2-97

Повторно-привязочные чертежи для бесканальной прокладки теплопроводов в ППУ изоляции

Обозначение: Альбом ППЧ2-97
Обозначение англ: ППЧ2-97
Статус:не определен законодательством
Название рус.:Повторно-привязочные чертежи для бесканальной прокладки теплопроводов в ППУ изоляции
Дата добавления в базу:01.09.2013
Дата актуализации:05.05.2017
Дата введения:01.01.1997
Оглавление:ПП4 2-97-1 Пояснительная записка
ПП4 2-97-2 Лист-1 Технологическая и строительная части камеры перехода с бесканальной прокладки теплопроводов 2Dу 50-150мм в существующий канал. Вариант 1
ПП4 2-97-2 Лист-2 Технологическая и строительная части камеры перехода с бесканальной прокладки теплопроводов 2Dу 50-150мм в существующий канал. Вариант 2
ПП4 2-97-2 Лист-3 Ведомость объемов работ. Экспликация. Спецификация
ПП4 2-97-3 Лист-1 Технологическая и строительная части камеры перехода с бесканальной прокладки теплопроводов 2Dу 50-150мм в существующий канал (камера с установкой спускников). Вариант 1
ПП4 2-97-3 Лист-2 Технологическая и строительная части камеры перехода с бесканальной прокладки теплопроводов 2Dу 50-150мм в существующий канал (камера с установкой спускников). Вариант 2
ПП4 2-97-3 Лист-3 Ведомость объемов работ. Экспликация. Спецификация
ПП4 2-97-4 Лист-1 Технологическая и строительная части камеры перехода с бесканальной прокладки теплопроводов 2Dу 200-300мм в существующий канал. Вариант 1
ПП4 2-97-4 Лист-2 Технологическая и строительная части камеры перехода с бесканальной прокладки теплопроводов 2Dу 200-300мм в существующий канал. Вариант 2
ПП4 2-97-4 Лист-3 Ведомость объемов работ. Экспликация. Спецификация
ПП4 2-97-5 Лист-1 Технологическая и строительная части камеры перехода с бесканальной прокладки теплопроводов 2Dу 200-300мм в существующий канал (камера с установкой спускников). Вариант 1
ПП4 2-97-5 Лист-2 Технологическая и строительная части камеры перехода с бесканальной прокладки теплопроводов 2Dу 200-300мм в существующий канал (камера с установкой спускников). Вариант 2
ПП4 2-97-5 Лист-3 Ведомость объемов работ. Экспликация. Спецификация
ПП4 2-97-6 Лист-1 Технологическая и строительная части камеры перехода с бесканальной прокладки теплопроводов 2Dу 400-500мм в существующий канал. Вариант 1
ПП4 2-97-6 Лист-2 Технологическая и строительная части камеры перехода с бесканальной прокладки теплопроводов 2Dу 400-500мм в существующий канал. Вариант 2
ПП4 2-97-6 Лист-3 Ведомость объемов работ. Экспликация. Спецификация
ПП4 2-97-7 Лист-1 Технологическая и строительная части камеры перехода с бесканальной прокладки теплопроводов 2Dу 400-500мм в существующий канал (камера с установкой спускников). Вариант 1
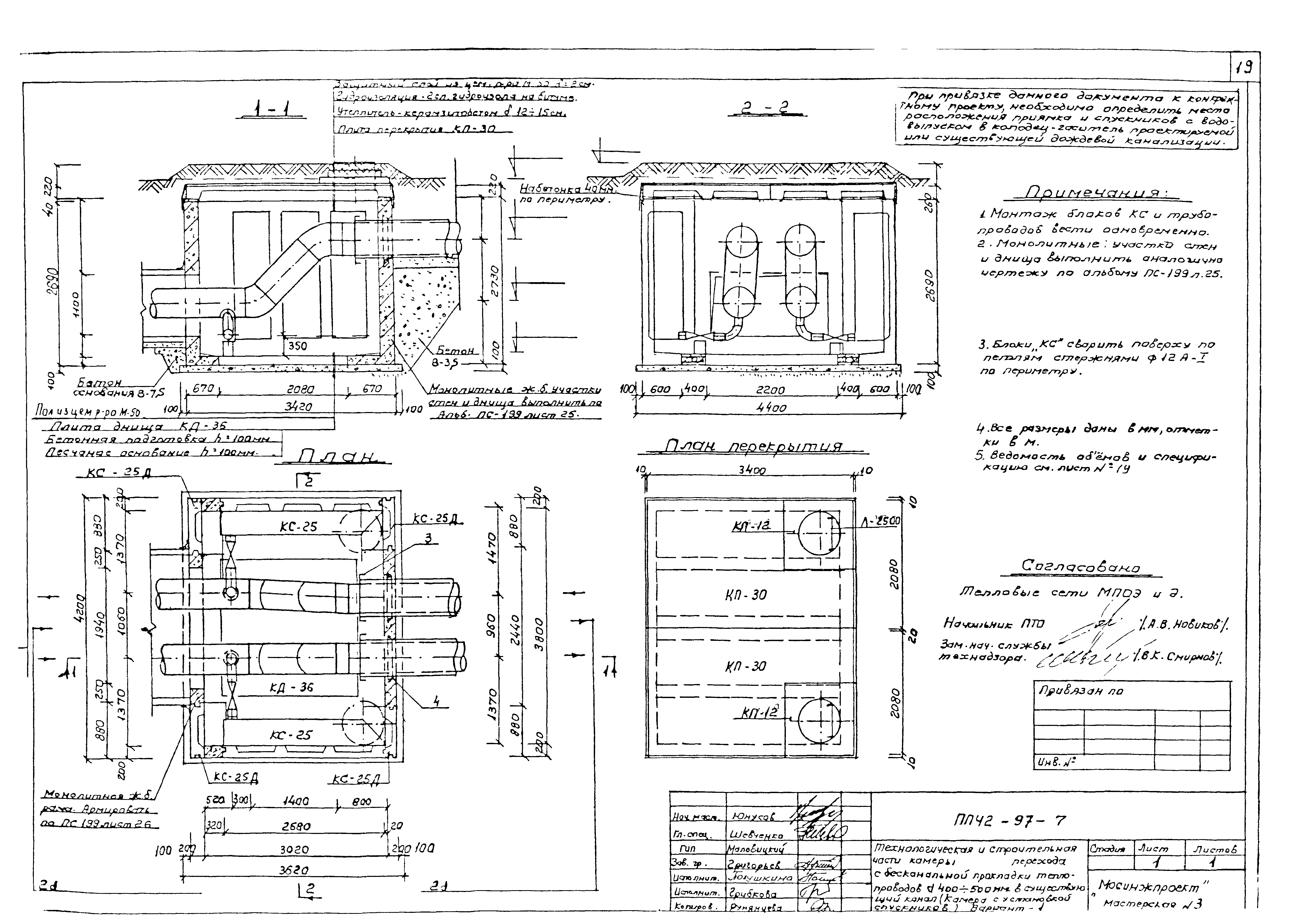
ПП4 2-97-7 Лист-2 Технологическая и строительная части камеры перехода с бесканальной прокладки теплопроводов 2Dу 400-500мм в существующий канал (камера с установкой спускников). Вариант 2
ПП4 2-97-7 Лист-3 Ведомость объемов работ. Экспликация. Спецификация
ПП4 2-97-8 Узел перехода бесканальной прокладки теплопроводов в ППУ изоляции Dу 50-1000мм на наземную прокладку на низких опорах
ПП4 2-97-9 Узел перехода бесканальной прокладки теплопроводов в ППУ изоляции Dу 50-1000мм на наземную прокладку на высоких опорах
ПП4 2-97-10 Открытая прокладка теплопроводов в ППУ изоляции D 100-1000мм в футлярах под проездами вблизи зданий и сооружений
ПП4 2-97-11 Конструкция сопряжения бесканальной прокладки теплопроводов с канальным участком
ПП4 2-97-12 Конструкции подвижных опор при устройстве байпасов для теплопроводов Dу 150-800мм
ПП4 2-97-13 Конструкции подвижных опор при устройстве байпасов для теплопроводов Dу 900-1400мм
ПП4 2-97-14 Устройство камеры на байпасе теплопроводов Dу 150-800 мм. Технологическая часть
ПП4 2-97-15 Устройство камеры на байпасе теплопроводов Dу 150-200 мм. Строительная часть
ПП4 2-97-16 Устройство камеры на байпасе теплопроводов Dу 300-400 мм. Строительная часть
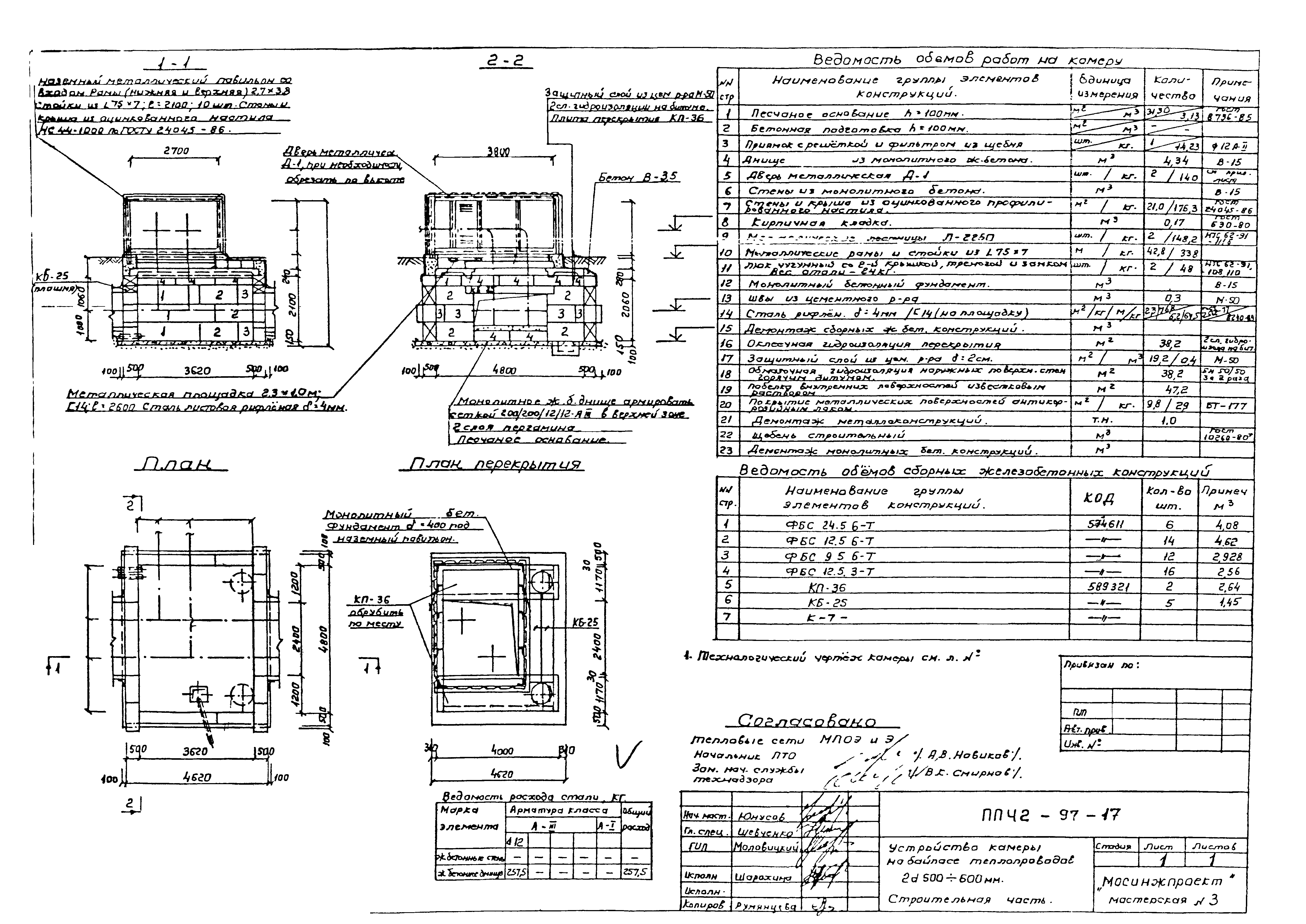
ПП4 2-97-17 Устройство камеры на байпасе теплопроводов Dу 500-600 мм. Строительная часть
ПП4 2-97-18 Устройство камеры на байпасе теплопроводов Dу 700-800 мм. Строительная часть
ПП4 2-97-19 Конструкция неподвижных опор при устройстве байпасов для теплопроводов Dу 150-300мм
ПП4 2-97-20 Конструкция неподвижных опор при устройстве байпасов для теплопроводов Dу 400-1000мм
Разработан: Мосинжпроект
Утверждён:01.01.1997 Мосинжпроект (Mosinzhproject )
Расположен в:Техническая документация Строительство Справочные документы Типовые строительные конструкции, изделия и узлы Разработанные другими министерствами, ведомствами и организациями
Альбом ППЧ2-97Альбом ППЧ2-97Альбом ППЧ2-97Альбом ППЧ2-97Альбом ППЧ2-97Альбом ППЧ2-97Альбом ППЧ2-97Альбом ППЧ2-97Альбом ППЧ2-97Альбом ППЧ2-97Альбом ППЧ2-97Альбом ППЧ2-97Альбом ППЧ2-97Альбом ППЧ2-97Альбом ППЧ2-97Альбом ППЧ2-97Альбом ППЧ2-97Альбом ППЧ2-97Альбом ППЧ2-97Альбом ППЧ2-97Альбом ППЧ2-97Альбом ППЧ2-97Альбом ППЧ2-97Альбом ППЧ2-97Альбом ППЧ2-97Альбом ППЧ2-97Альбом ППЧ2-97Альбом ППЧ2-97Альбом ППЧ2-97Альбом ППЧ2-97Альбом ППЧ2-97Альбом ППЧ2-97Альбом ППЧ2-97Альбом ППЧ2-97Альбом ППЧ2-97Альбом ППЧ2-97

© 2013 Ёшкин Кот :-) Карта сайта