Информационная система
«Ёшкин Кот»

Скачать базу одним архивом
Скачать обновления
История создания базы
Карта сайта

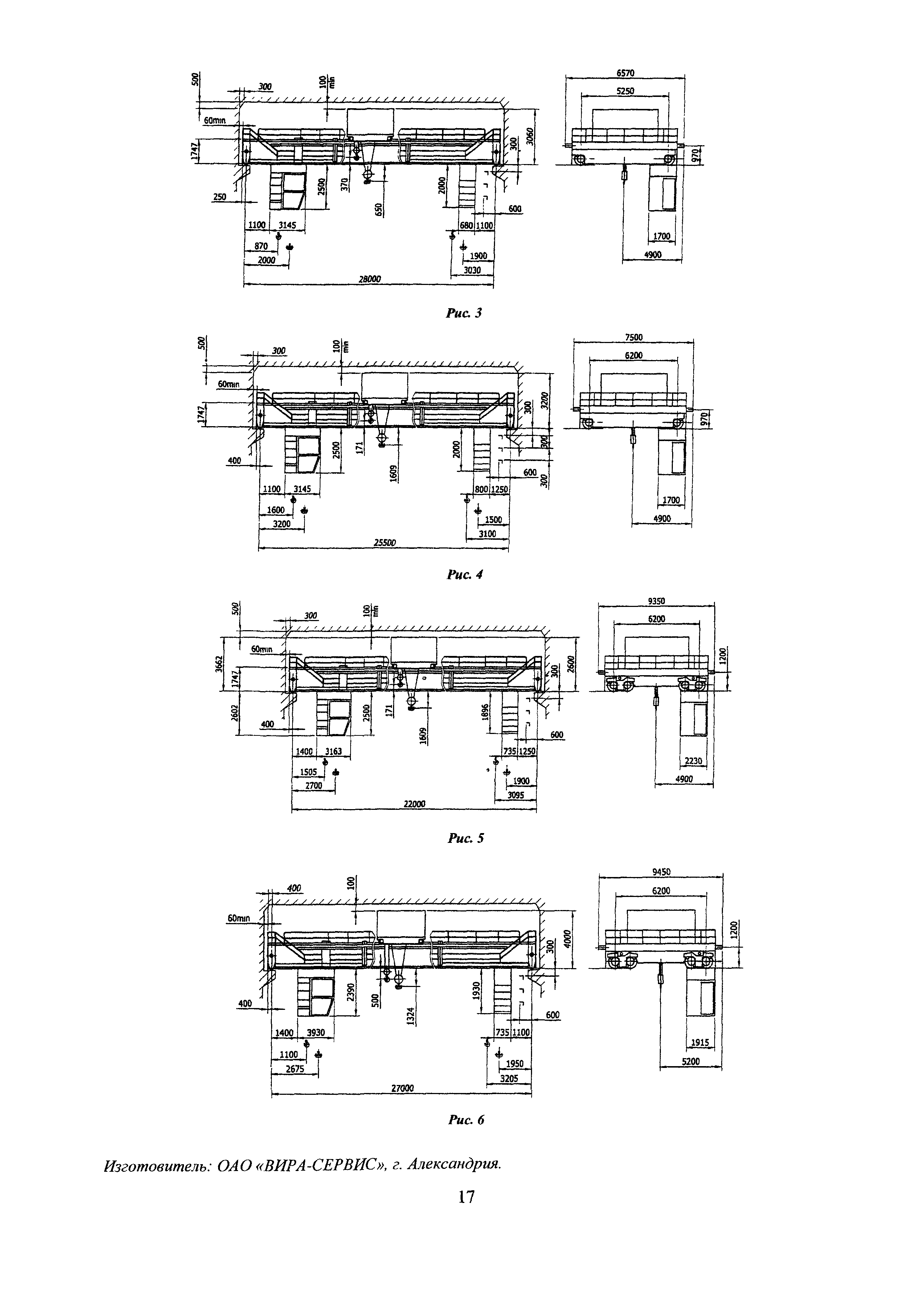
Скачать Подъемно-транспортное оборудование. Грузоподъемные краны

Дата актуализации: 10.08.2017

Подъемно-транспортное оборудование. Грузоподъемные краны

Статус:действует
Название рус.:Подъемно-транспортное оборудование. Грузоподъемные краны
Дата добавления в базу:01.09.2013
Дата актуализации:05.05.2017
Оглавление:Краны башенные
   Кран-погрузчик КБ-578
   Кран башенный КБ-408.21
   Кран башенный КБ-403Б.4
   Кран башенный КБ-403Б
   Кран башенный строительный приставной КБ-471.У 1
   Кран башенный БК-1000Б
   Кран башенный мобильный самомонтирующийся КБМ-401П
Краны мостовые
   Краны мостовые электрические общего назначения грузоподъемностью 5; 10; 16; 16/3,2т
   Краны мостовые электрические общего назначения грузоподъемностью 20/5; 32/5; 50/12.5; 60/20; 100/20 т
   Краны мостовые электрические общего назначения грузоподъемностью 5; 10; 12,5; 16; 16/3,2; 20; 20/5; 32; 32/5; 50; 50/10 т
   Краны мостовые электрические общего назначения грузоподъемностью 80/20; 100/20; 125/20; 160/32; 250/32; 320/32 т
   Краны мостовые электрические общего назначения грузоподъемностью 16/3,2; 20/5; 32/5; 50/12,5 т
   Краны мостовые электрические грузоподъемностью 32/5; 20/5 т
   Краны мостовые электрические специальные грузоподъемностью 5; (2,5+2,5) т
   Краны мостовые электрические специальные грузоподъемностью 16; 16/3,2; 20/5; 32/5 т
   Краны мостовые электрические специальные для длинномерных грузов с гибким подвесом траверсы грузоподъемностью 10 (5+5); 20 (10+10); 32 (16+16); 40 (20+20) т
   Краны мостовые электрические специальные двухтележечные, управляемые с пола (с подвесного пульта) или по радиоканалу грузоподъемностью 5+5; 10+10; 16+16; 20+20 т
   Краны мостовые электрические специальные с увеличенной до 50 м высотой подъема, управляемые из кабины грузоподъемностью 5; 10; 12,5; 16/3,2; 20/5; 32/5; 50/10 т
   Краны мостовые специальные с траверсой поперек грузоподъемностью (5+5); (8+8) т
   Краны мостовые электрические с жестким подвесом траверсы и поворотной тележкой грузоподъемностью 16; 23 т
   Краны мостовые электрические специальные магнито-грейферные грузоподъемностью 5; 10; 16; 20 т
   Краны мостовые магнито-грейферные грузоподъемностью 16/16; 10/10 т
   Краны мостовые магнито-грейферные грузоподъемностью 16/3,2; 10/10 т и более
   Краны мостовые магнитные грузоподъемностью 10; 16; 16/3,2; 20/5; 32 т
   Кран мостовой электрический- мульдозавалочный грузоподъемностью 20/5 т
   Краны мостовые электрические специальные грейферные грузоподъемностью 2; 3,2; 5; 12,5 т
   Краны мостовые электрические специальные грейферные грузоподъемностью 5; 10; 12,5; 16; 20 т
   Краны мостовые общего назначения КМ 80/20, КМ 100/20, КМ 125/20, КМ 160, КМ 200
   Краны мостовые электрические общего назначения грузоподъемностью 5…50 т
   Кран мостовой (ТУ 24.09.404.83):электрический - управление из кабины, унифицированный – управление с пола грузоподъемностью 5 т
   Кран мостовой электрический (ТУ 24.09.646.90) грузоподъемностью 10 т
   Кран мостовой электрический (ТУ 24.09.404.83) грузоподъемностью 16 т
   Кран мостовой электрический (ТУ 24.09.404.83) грузоподъемностью 12,5 т
   Краны мостовые электрические, управление из кабины (ТУ 24.09.404.83) грузоподъемностью 20 т и 20/5 т
   Кран мостовой грузоподъемностью 30/5 т
   Кран мостовой грузоподъемностью 16 т
   Кран мостовой электрический с конвейерным захватом грузоподъемностью 20 т
   Краны мостовые электрические двухбалочные опорные грузоподъемностью 5; 10; 12,5; 16; 20 т
   Краны мостовые электрические двухбалочные опорные грузоподъемностью 16/3,2; 20/5; 32/5 т
   Краны мостовые двухбалочные опорные грузоподъемностью до 10 т
   Краны мостовые грейферные, управляемые из кабины грузоподъемностью 5; 10 т
   Краны мостовые электрические однобалочные опорные грузоподъемностью 1; 2; 3,2; 5; 10 т
   Краны мостовые электрические однобалочные опорные грузоподъемностью 1; 2; 3,2; 12,5 т
   Краны мостовые электрические однобалочные опорные грузоподъемностью 3,2; 5; 10 т
   Краны мостовые электрические однобалочные опорные грузоподъемностью 5; 10; 12,5 т
   Краны мостовые электрические однобалочные опорные грузоподъемностью 1; 2; 3,2; 5; 10 т
   Краны мостовые электрические однобалочные опорные грузоподъемностью 2; 3,2; 5 т
   Кран мостовой электрический однобалочный опорный грузоподъемностью 10 т
   Краны мостовые электрические однобалочные опорные грузоподъемностью 1; 2; 3,2; 5 т
   Кран мостовой электрический однобалочный опорный грузоподъемностью 10,0 т
   Краны мостовые электрические однобалочные опорные грузоподъемностью 1; 2; 3,2; 5; 10 т
   Краны мостовые электрические однобалочные опорные блочно-модульной конструкции грузоподъемностью 1; 2; 3,2; 5 и 6,3 т
   Краны мостовые однобалочные опорные ручные грузоподъемностью 3,2; 5; 8 т
   Краны мостовые однобалочные опорные ручные грузоподъемностью 1; 2; 3,2; 5 т
   Краны мостовые электрические однобалочные подвесные грузоподъемностью 1; 2; 3,2; 5 т
   Краны мостовые электрические однобалочные подвесные грузоподъемностью 10 т
   Краны мостовые электрические однобалочные подвесные грузоподъемностью 1; 2; 3,2; 5; 10 т
   Кран электрический подвесной КР-676.00.000 ГЧ грузоподъемностью 1 т
   Кран мостовой электрический однобалочный подвесной грузоподъемностью 10 т
   Краны мостовые электрические однобалочные подвесные однопролетные грузоподъемностью 1; 2; 3,2; 5 т
   Краны мостовые электрические однобалочные подвесные однопролетные грузоподъемностью 1; 2; 3,2; 5; 10 т
   Кран мостовой электрический однопролетный подвесной с изменяющимся пролетом грузоподъемностью 5 т
   Кран мостовой электрический двухпролетный подвесной с изменяющимся пролетом грузоподъемностью 1 т
   Краны мостовые электрические однобалочные подвесные двухпролетные грузоподъемностью 1; 2; 3,2; 5 т
   Краны мостовые электрические однобалочные подвесные двухпролетные грузоподъемностью 10 т
   Краны мостовые электрические однобалочные подвесные двухпролетные грузоподъемностью 1; 2; 3,2; 5 т
   Краны мостовые электрические однобалочные подвесные двухпролетные грузоподъемностью 10 т
   Краны мостовые электрические однобалочные подвесные двухпролетные грузоподъемностью 1; 2; 3,2; 5 т
   Краны мостовые однобалочные подвесные двухпролетные грузоподъемностью 1; 2; 3,2; 5 т
   Краны мостовые электрические однобалочные подвесные двухпролетные грузоподъемностью 1; 2; 3,2; 5 т
   Краны мостовые однобалочные подвесные ручные грузоподъемностью 1; 2; 3,2; 5 т
   Краны мостовые однобалочные подвесные ручные грузоподъемностью 1; 3,2; 5 т
   Краны мостовые однобалочные подвесные ручные грузоподъемностью 1; 2; 3,2; 5 т
   Краны ручные подвесные грузоподъемностью 0,5; 1; 2; 3,2; 5 т
   Краны двухбалочные подвесные ручные и электронные грузоподъемностью до 10 т
   Краны мостовые специализированного назначения
Краны козловые
   Кран козловой электрический для лесоматериалов грузоподъемностью 16 или 12,5 т
   Краны козловые электрические специальные ККТ грузоподъемностью 2; 3,2; 5; 10 т
   Краны козловые ККТ грузоподъемностью 3,2; 5; 10; 12,5 т
   Кран козловой ККГЗ-25-32 грузоподъемностью 20 (25; 10) т
   Кран козловой КК-25
   Краны козловые грузоподъемностью 10; 12,5; 16; 20 т
   Краны козловые электрические общего назначения с грузовой тележкой на монорельсе грузоподъемностью 10; 12,5 16/12,5; 3,2; 5; 8; 12,5 т
   Краны козловые электрические общего назначения с двухрельсовой подвесной тележкой грузоподъемностью 10/12,5; 12,5; 32/12,5 т
   Краны козловые электрические общего назначения двухбалочные грузоподъемностью 10; 12,5; 20; 20/5 т
   Краны козловые электрические общего назначения с электроталью грузоподъемностью 3,2; 5; 8; 12,5 т
   Краны козловые электрические общего назначения с электроталью грузоподъемностью 5 т
   Кран козловой электрический одноконсольный двухблочный грузоподъемностью 10 т
   Краны козловые грузоподъемностью 5; 10 т
   Кран козловой электрический, управляемый из кабины грузоподъемностью 5 т
   Кран козловой грузоподъемностью 480 т
   Кран козловой грузоподъемностью 2x320/32 т
   Кран козловой грузоподъемностью 2x160 т
   Кран козловой грузоподъемностью 2x50/10 т
   Кран козловой грузоподъемностью 100/20 т
   Кран козловой грузоподъемностью 500/63/5 т
   Кран козловой грузоподъемностью 500/100+10 т
   Кран козловой грузоподъемностью 2x100/20+10 т
   Кран козловой грузоподъемностью 630/50 т
   Кран козловой грузоподъемностью 160/50 т
   Кран козловой грузоподъемностью 100+10 т
   Кран козловой грузоподъемностью 320 т
   Кран козловой грузоподъемностью 120 т
   Кран козловой грузоподъемностью 160/25+10 т
   Кран козловой электрический грейферный грузоподъемностью 12,5 т
   Кран козловой контейнерный грузоподъемностью 36,5 т
   Кран козловой контейнерный грузоподъемностью 30,5; 34 т
   Кран полукозловой с магнитной шайбой грузоподъемностью 5 т
   Кран полукозловой завалочный грузоподъемностью 2x40 т
   Кран полукозловой грузоподъемностью 2х110 т
   Кран полукозловой завалочный грузоподъемностью 2х130 т
   Краны полукозловые электрические, управляемые с пола грузоподъемностью 3,2; 5; 6,3 т
Краны консольные
   Краны консольные стационарные поворотные грузоподъемностью 0,5; 1; 2; 3,2 т
   Краны консольные стационарные электрические с ручным поворотом консоли грузоподъемностью 0,25; 0,5; 1;2 т
   Краны консольные стационарные электрические с ручным поворотом консоли грузоподъемностью 0,25; 0,5; 1; 2 т
   Краны консольные стационарные электрические с механическим поворотом консоли грузоподъемностью 0,5; 1; 2; 3,2 т
   Краны консольные стационарные настенные с ручным поворотом консоли грузоподъемностью 0,25; 0,5; 1 т
   Краны консольные электрические настенные с ручным поворотом консоли грузоподъемностью 0,25; 0,5; 1 т
   Краны консольные электрические поворотные грузоподъемностью 1… 5 т
   Краны консольные электрические и ручные грузоподъемностью до 3,2 т
Краны судовые и портовые
   Кран-балка электрическая комбинированная КБЭ-2,5
   Краны судовые грузовые электрогидравлические КЭГ 2013, КЭГ 3212, КЭГ 5014 грузоподъемностью 2; 3,2; 6 т
   Кран судовой грузовые электрогидравлический универсальный «УНИВЕРСАЛ» грузоподъемностью 5 т
   Краны судовые грузовые электрогидравлические КЭГ 8012, КЭГ 8014, КЭГ 8014М, КЭГ 8018 грузоподъемностью 8 т
   Краны судовые грузовые электрогидравлические тип «АТЛАНТ» грузоподъемностью 12,5 т
   Краны судовые мостовые с электрическим приводом тип КЭМ грузоподъемностью 3,2; 5; 10 т
   Краны портальные перегрузочные КПП 40-34-10,5; КПП 16-36-10,5
   Кран портальный КПМ 40-27-10,5
   Кран портальный монтажный КПМ 160/80-38/63-15
Адреса предприятий-изготовителей
Содержание
Разработан: ОАО ВНИИТЭМР
Утверждён:13.03.2006 ОАО ВНИИТЭМР
Издан: ИФК Каталог (2006 г. )
Расположен в:Техническая документация Экология ПОДЪЕМНО-ТРАНСПОРТНОЕ ОБОРУДОВАНИЕ Подъемное оборудование Краны Строительство Справочные документы Каталоги

© 2013 Ёшкин Кот :-) Карта сайта