Скачать НП 1.5-75 Сельские жилые дома (квартирного типа)Дата актуализации: 10.08.2017 НП 1.5-75
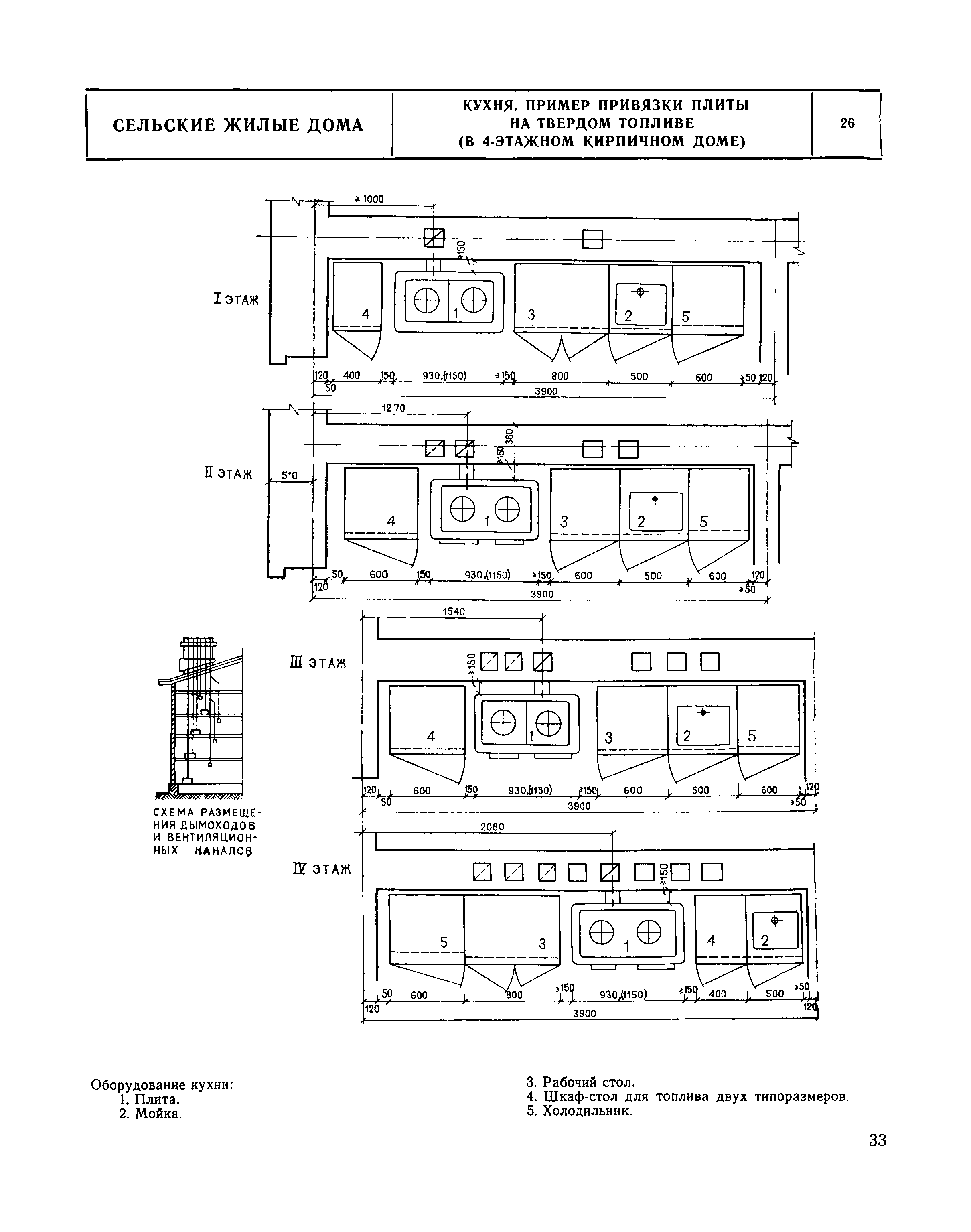
Сельские жилые дома (квартирного типа)Обозначение: | НП 1.5-75 | Обозначение англ: | NP 1.5-75 | Статус: | действует | Название рус.: | Сельские жилые дома (квартирного типа) | Дата добавления в базу: | 01.09.2013 | Дата актуализации: | 05.05.2017 | Дата введения: | 05.05.1978 | Область применения: | Выпуск содержит нормативные и исходные данные, функциональные габаритные схемы планировочных элементовпомещений и оборудования, а также рекомендации по нормализации помещений сельских жилых домов. Нормали разработаны применительно к условиям IB климатического подрайона и Ii, III климатических районов. | Оглавление: | Введение Раздел I. Жилые и подсобные помещения квартиры (листы 1-43) Номенклатура типов сельских жилых домов (лист 1) Схема функциональной организации жилища (блокированный и одноквартирный дома) (лист 2) Квартира. Площади помещений. Исходные данные по СНиП II-Л.1-71 (лист 3) Квартира. Рекомендуемые площади помещений (лист 4) Наборы мебели. Подсобные и летние помещения (листы 5, 6) Общая комната. Параметры помещений (лист 7) Общая комната, кухня, подсобные помещения. Исходные габариты. Группировка мебели (лист 8) Общая комната. Функциональные габаритные схемы (лист 9) Спальня. Группировка мебели (лист 10) Детская комната. Исходные данные (лист 11) Детская комната. Мебель (лист 12) Детская комната. Функциональные зоны. Габаритные схемы (лист 13) Кухня. Параметры помещений (лист 14) Номенклатура оборудования (листы 15-19) Кухня. Плиты на газообразном топливе (лист 20) Отопительные котлы водогрейные (лист 21) Отопительные аппараты и водонагреватели (лист 22) Кухня. Плиты и печи на твердом топливе (лист 23) Печи бытовые отопительные на твердом топливе (лист 24) Кухня. Мебель (лист 25) Кухня. Пример привязки плиты на твердом топливе (в 4-этажном кирпичном доме) (лист 26) Кухня. Примеры планировки в модульных параметрах (листы 27, 28) Санитарный узел. Номенклатура основного оборудования (листы 29, 30) Санитарный узел. Типы и габариты (листы 31, 32) Системы инженерного оборудования (листы 33, 34) Санитарный узел. Уборные для домов без канализации (лист 35) Санитарно-кухонный блок для дома без канализации. Примеры планировки (лист 36) Передняя. Коммуникационные связи. Примеры планировки (лист 37) Шкафы встроенные сушильные, вентилируемые для одежды (листы 38, 39) Кладовые в теплом объеме дома (листы 40, 41) Внутриквартирные лестницы. Типы и габариты (лист 42) Внутриквартирные лестницы. Примеры планировки (лист 43) Раздел II. Летние, подвальные и внеквартирные помещения и хозяйственные постройки (листы 44-55) Летние помещения блокированных и одноквартирных домов (листы 44, 45) Подвальные помещения. Типы (лист 46) Подвалы блокированных и одноквартирных домов (листы 47, 48) Кладовые для хранения продуктов в подвальных этажах секционных домов (листы 49, 50) Внеквартирные бытовые помещения секционных домов. Примеры планировок (для экспериментального строительства) (лист 51) Номенклатура типов хозяйственных и надворных построек (листы 52, 53) Рекомендуемые площади хозяйственных надворных построек (лист 54) Примеры хозяйственных построек (лист 55) | Разработан: | ЦНИИЭП граждансельстрой ЦНИИЭП жилища
| Утверждён: | 05.05.1978 Госстрой СССР (Государственный комитет Совета Министров СССР по делам строительства) (USSR Gosstroy )
| Издан: | Стройиздат (1978 г. )
| Расположен в: |
|
                                                               
|