Информационная система
«Ёшкин Кот»

Скачать базу одним архивом
Скачать обновления
История создания базы
Карта сайта

Скачать НП 2.0.1-82 Лекционные аудитории учебных заведений

Дата актуализации: 10.08.2017

НП 2.0.1-82

Лекционные аудитории учебных заведений

Обозначение: НП 2.0.1-82
Обозначение англ: NP 2.0.1-82
Статус:действует
Название рус.:Лекционные аудитории учебных заведений
Дата добавления в базу:01.09.2013
Дата актуализации:05.05.2017
Дата введения:16.12.1982
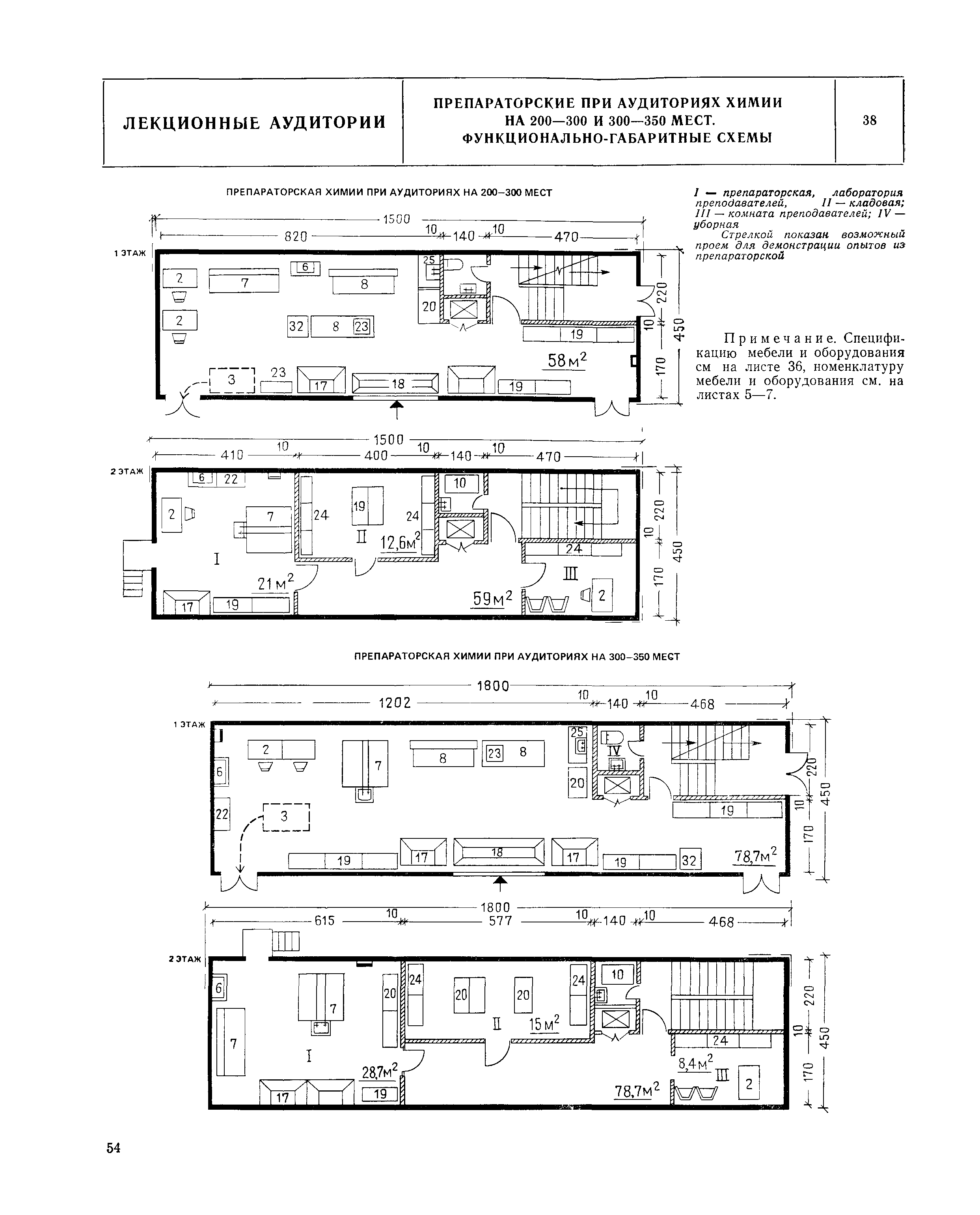
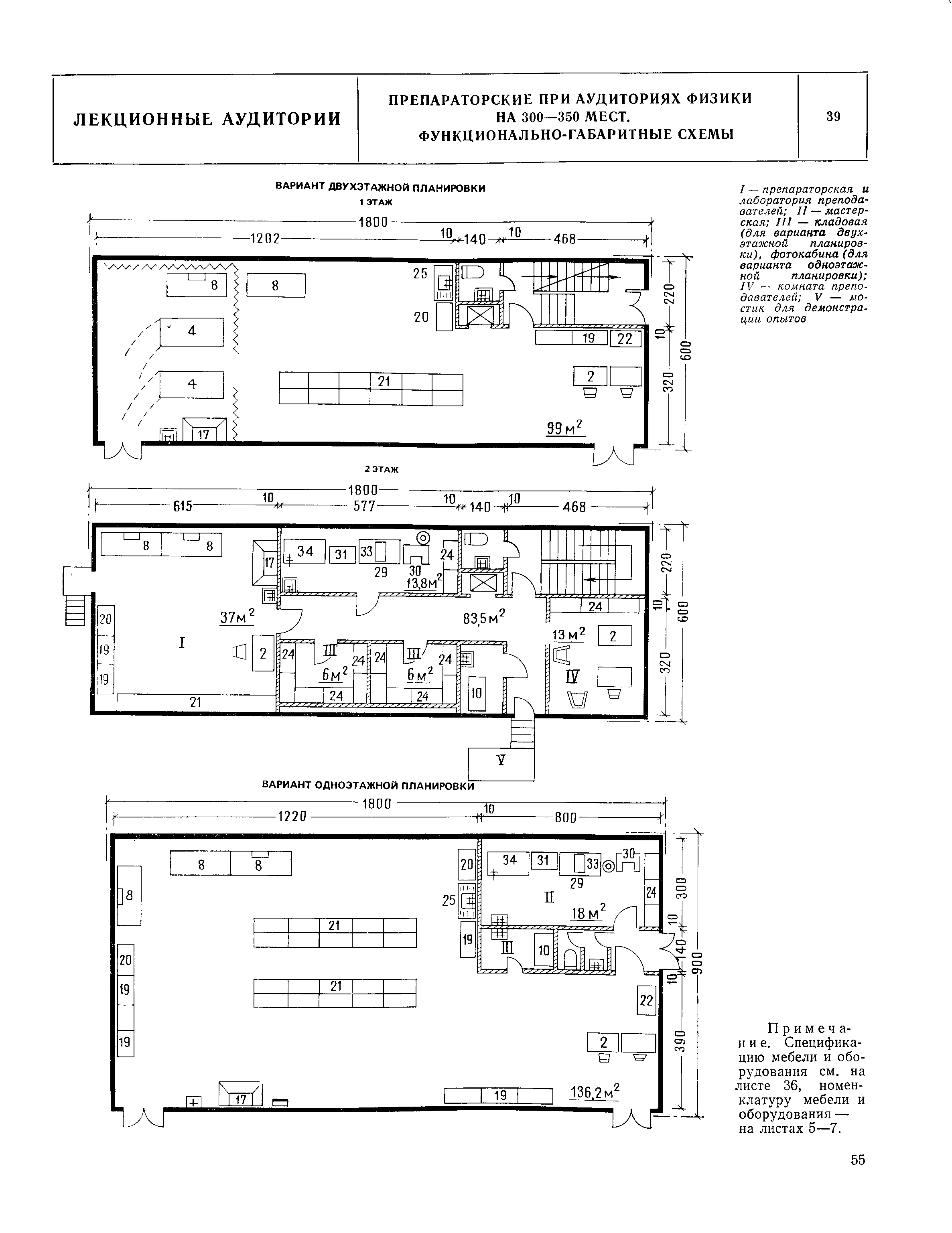
Область применения:Содержат нормативные и исходные данные, номенклатуру мебели и оборудования, включает примеры унифицированных планировочных решений лекционных аудиторий межшкольных учебно-производственных комбинатов, учебных и учебно-курсовых комбинатов, профессионально-технических, средних специальных и высших учебных заведений, институтов повышения квалификации. Материалы выпуска могут быть использованы при проектировании лекционных аудиторий других общественных зданий.
Оглавление:Введение
Раздел I Общие положения по проектированию лекционных аудиторий
Раздел II Неспециализированные и специализированные лекционные аудитории и препараторские
Разработан: ЦНИИЭП учебных зданий Госгражданстроя
Утверждён:16.12.1982 Госгражданстрой (Gosgrazhdanstroy 347)
25.07.1982 ЦНИИЭП учебных зданий (TsNIIEP of Educational Buildings 11)
Издан: Стройиздат (1987 г. )
Расположен в:Техническая документация Строительство Справочные документы Нормали основных планировочных элементов жилых и общественных зданий
НП 2.0.1-82НП 2.0.1-82НП 2.0.1-82НП 2.0.1-82НП 2.0.1-82НП 2.0.1-82НП 2.0.1-82НП 2.0.1-82НП 2.0.1-82НП 2.0.1-82НП 2.0.1-82НП 2.0.1-82НП 2.0.1-82НП 2.0.1-82НП 2.0.1-82НП 2.0.1-82НП 2.0.1-82НП 2.0.1-82НП 2.0.1-82НП 2.0.1-82НП 2.0.1-82НП 2.0.1-82НП 2.0.1-82НП 2.0.1-82НП 2.0.1-82НП 2.0.1-82НП 2.0.1-82НП 2.0.1-82НП 2.0.1-82НП 2.0.1-82НП 2.0.1-82НП 2.0.1-82НП 2.0.1-82НП 2.0.1-82НП 2.0.1-82НП 2.0.1-82НП 2.0.1-82НП 2.0.1-82НП 2.0.1-82НП 2.0.1-82НП 2.0.1-82НП 2.0.1-82НП 2.0.1-82НП 2.0.1-82НП 2.0.1-82НП 2.0.1-82НП 2.0.1-82НП 2.0.1-82НП 2.0.1-82НП 2.0.1-82НП 2.0.1-82НП 2.0.1-82НП 2.0.1-82НП 2.0.1-82НП 2.0.1-82НП 2.0.1-82НП 2.0.1-82НП 2.0.1-82НП 2.0.1-82НП 2.0.1-82НП 2.0.1-82НП 2.0.1-82НП 2.0.1-82НП 2.0.1-82НП 2.0.1-82

© 2013 Ёшкин Кот :-) Карта сайта