Информационная система
«Ёшкин Кот»

Скачать базу одним архивом
Скачать обновления
История создания базы
Карта сайта

Скачать НП 7.2.4-73 Основные помещения зданий научно-исследовательских институтов, проектных организаций и административных зданий. Административные здания. Помещения проектных организаций

Дата актуализации: 10.08.2017

НП 7.2.4-73

Основные помещения зданий научно-исследовательских институтов, проектных организаций и административных зданий. Административные здания. Помещения проектных организаций

Обозначение: НП 7.2.4-73
Обозначение англ: NP 7.2.4-73
Статус:действует
Название рус.:Основные помещения зданий научно-исследовательских институтов, проектных организаций и административных зданий. Административные здания. Помещения проектных организаций
Дата добавления в базу:01.09.2013
Дата актуализации:05.05.2017
Оглавление:1. Схемы организационной структуры и взаимосвязи помещений
2. Исходные габариты
3. Эргономические схемы рабочих мест проектировщика
4-7. Номенклатура мебели и оборудования
8-9. Мебель. Типы и габариты
10-11. Оборудование конференц-залов. Типы и габариты
12. Типы рабочих мест проектировщика
13. Типы рабочих мест служащих
14-16. Компоновка рабочих мест. Габаритные схемы
17. Типы проектных залов
18-21. Проектные залы (Каркасно-панельные конструкции). Примеры планировки
22. Проектные залы. (Кирпичные конструкции). Примеры планировки
23. Типы конференц-залов
24. Конференц-зал на 400 мест. Примеры планировки
25. Конференц-зал на 600 мест. Примеры планировки
26. Оборудование конференц-залов. Раздвижные шторы затемнения
27. Проектный кабинет. Габаритные схемы
28. Макетная мастерская. Габаритные схемы
29. Отделения светокопирования и ротаторной печати. Габаритные схемы
30. Электрофотографическое отделение. Габаритные схемы
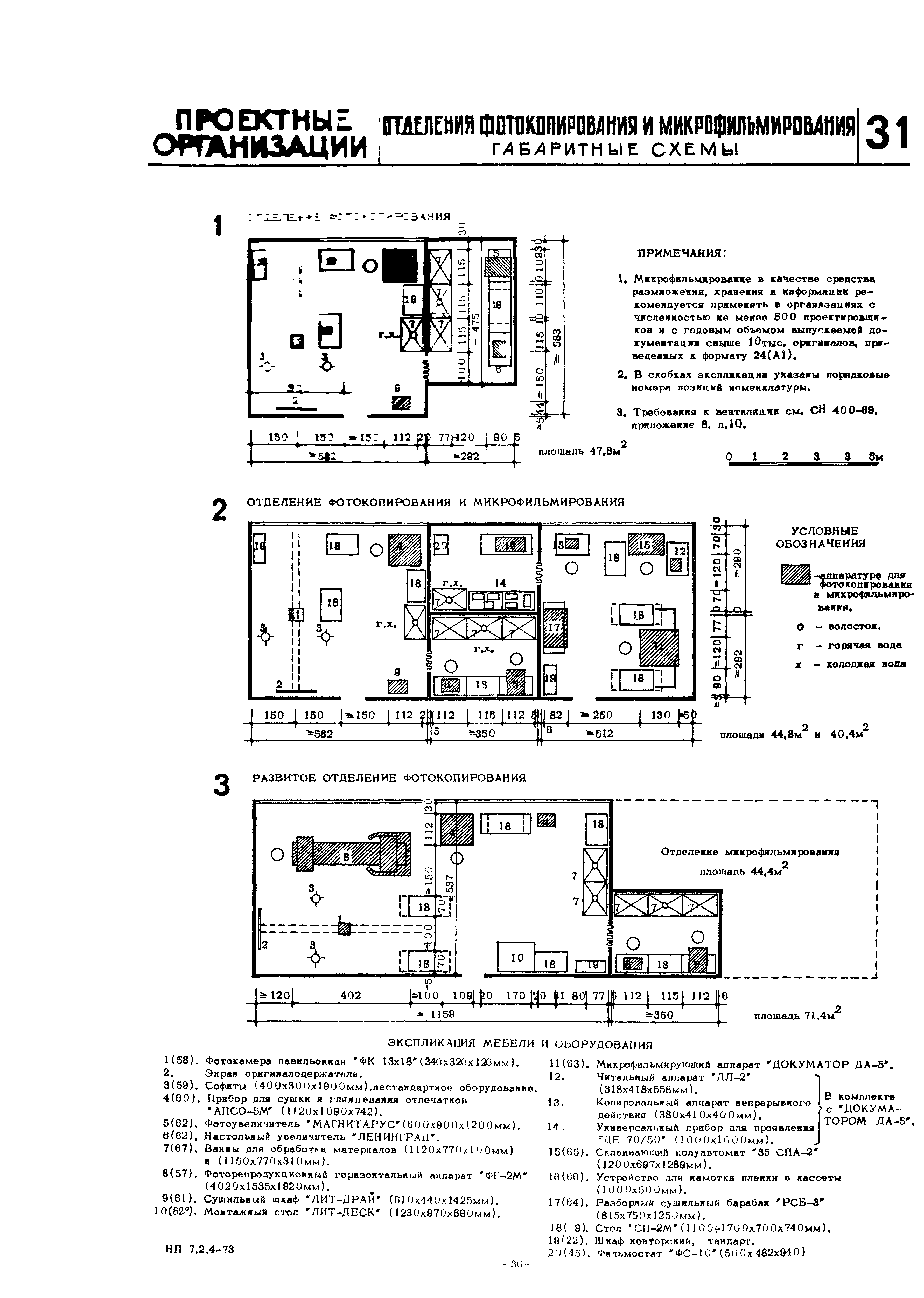
31. Отделения фотокопирования и микрофильмирования. Габаритные схемы
32. Переплетно-брошюровочное отделение. Габаритные схемы
33. Пример планировки копировально-множительных служб и мастерских
34. Помещения для вычислительной техники
35-37. Естественное освещение. Проектный зал
38-39. Искусственное освещение. Проектный зал
Разработан: ЦНИИЭП зрелищных зданий и спортивных сооружений Госгражданстроя
ЦНИИЭП учебных зданий Госгражданстроя
ЦНИИЭП жилища
Утверждён:17.05.1973 Госгражданстрой (Gosgrazhdanstroy 110)
Издан: ЦИТП Госстроя СССР (CITP, Gosstroy (USSR) 1973 г. )
Расположен в:Техническая документация Экология СТРОИТЕЛЬНЫЕ МАТЕРИАЛЫ И СТРОИТЕЛЬСТВО Строительство Торговые и промышленные здания Строительство Справочные документы Нормали основных планировочных элементов жилых и общественных зданий
НП 7.2.4-73НП 7.2.4-73НП 7.2.4-73НП 7.2.4-73НП 7.2.4-73НП 7.2.4-73НП 7.2.4-73НП 7.2.4-73НП 7.2.4-73НП 7.2.4-73НП 7.2.4-73НП 7.2.4-73НП 7.2.4-73НП 7.2.4-73НП 7.2.4-73НП 7.2.4-73НП 7.2.4-73НП 7.2.4-73НП 7.2.4-73НП 7.2.4-73НП 7.2.4-73НП 7.2.4-73НП 7.2.4-73НП 7.2.4-73НП 7.2.4-73НП 7.2.4-73НП 7.2.4-73НП 7.2.4-73НП 7.2.4-73НП 7.2.4-73НП 7.2.4-73НП 7.2.4-73НП 7.2.4-73НП 7.2.4-73НП 7.2.4-73НП 7.2.4-73НП 7.2.4-73НП 7.2.4-73НП 7.2.4-73НП 7.2.4-73НП 7.2.4-73НП 7.2.4-73НП 7.2.4-73НП 7.2.4-73НП 7.2.4-73

© 2013 Ёшкин Кот :-) Карта сайта