Информационная система
«Ёшкин Кот»

Скачать базу одним архивом
Скачать обновления
История создания базы
Карта сайта

Скачать Альбом ППЧ1-96 Повторно привязочные чертежи для бесканальной прокладки теплопроводов в ППУ изоляции

Дата актуализации: 10.08.2017

Альбом ППЧ1-96

Повторно привязочные чертежи для бесканальной прокладки теплопроводов в ППУ изоляции

Обозначение: Альбом ППЧ1-96
Обозначение англ: ППЧ1-96
Статус:не определен законодательством
Название рус.:Повторно привязочные чертежи для бесканальной прокладки теплопроводов в ППУ изоляции
Дата добавления в базу:01.09.2013
Дата актуализации:05.05.2017
Дата введения:01.01.1995
Оглавление:ПП41-96-01-04 Содержание альбома
ПП41-96-01-04 Пояснительная записка
ПП41-96-1 Технологическая и строительная части узла установки шаровых кранов Dу50-150 мм
ПП41-96-2 Технологическая и строительная части узла установки спускников на теплопроводах Dу50-150 мм
ПП41-96-3 Технологическая и строительная части узла установки шаровых кранов на теплопроводах Dу50-150 мм с двумя воздушниками
ПП41-96-4 Технологическая и строительная части узла установки шаровых кранов на теплопроводах Dу50-150 мм с воздушником
ПП41-96-5 Технологическая и строительная части узла установки спускников Dу50-150 мм на теплопроводах с удлиненным элементом
ПП41-96-6 Технологическая и строительная части узла установки воздушников на теплопроводах Dу200-300 мм
ПП41-96-7 Технологическая и строительная части узла установки шаровых кранов Dу200-300 мм (h=1.0-1.2 м до оси теплопровода)
ПП41-96-8 Технологическая и строительная части узла установки шаровых кранов Dу200-300 мм (h=1.2-1.8 м до оси теплопровода)
ПП41-96-9 Технологическая и строительная части узла установки шаровых кранов Dу200-300 мм (h=1.8-2.4 м до оси теплопровода)
ПП41-96-10 Технологическая и строительная части узла установки шаровых кранов с воздушником на теплопроводах Dу200-300 мм
ПП41-96-11 Технологическая и строительная части узла установки шаровых кранов с двумя воздушниками на теплопроводах Dу200-300 мм
ПП41-96-12 Технологическая и строительная части узла установки шарового крана с двумя воздушниками на перемычке Dу100 мм на теплопроводах Dу400-600 мм. Вариант 1
ПП41-96-13 Технологическая и строительная части узла установки шарового крана с двумя воздушниками на перемычке Dу100 мм на теплопроводах Dу400-600 мм. Вариант 2
ПП41-96-14 Технологическая и строительная части узла установки шарового крана с воздушником на перемычке Dу100 мм на теплопроводах Dу400-600 мм. Вариант 1
ПП41-96-15 Технологическая и строительная части узла установки шарового крана с воздушником на перемычке Dу100 мм на теплопроводах Dу400-600 мм. Вариант 2
ПП41-96-16 Технологическая и строительная части узла установки шаровых кранов Dу400-600 мм
ПП41-96-17 Технологическая и строительная части узла установки воздушников на теплопроводах Dу500-600 мм. Вариант 1
ПП41-96-18 Технологическая и строительная части узла установки воздушников на теплопроводах Dу500-600 мм. Вариант 2
ПП41-96-19 Технологическая и строительная части узла установки воздушников на теплопроводах Dу700-800 мм. Вариант 1
ПП41-96-20 Технологическая и строительная части узла установки воздушников на теплопроводах Dу700-800 мм. Вариант 2
ПП41-96-21 Технологическая и строительная части узла установки спускников Dу200-300 мм на теплопроводах Dу600-800 мм
ПП41-96-22 Технологическая и строительная части узла установки воздушников на теплопроводах Dу900-1000 мм
ПП41-96-23 Технологическая и строительная части узла установки шарового крана с двумя воздушниками на перемычке Dу150 мм на теплопроводах Dу700-900 мм. Вариант 1
ПП41-96-24 Технологическая и строительная части узла установки шарового крана с двумя воздушниками на перемычке Dу150 мм на теплопроводах Dу700-900 мм. Вариант 2
ПП41-96-25 Технологическая и строительная части узла установки шарового крана с воздушником на перемычке Dу150 мм на теплопроводах Dу700-900 мм. Вариант 1
ПП41-96-26 Технологическая и строительная части узла установки шарового крана с воздушником на перемычке Dу150 мм на теплопроводах Dу700-900 мм. Вариант 2
ПП41-96-27 Технологическая и строительная части узла установки шарового крана с двумя воздушниками на перемычке Dу200 мм на теплопроводах Dу1000 мм. Вариант 1
ПП41-96-28 Технологическая и строительная части узла установки шарового крана с двумя воздушниками на перемычке Dу200 мм на теплопроводах Dу1000 мм. Вариант 2
ПП41-96-29 Технологическая и строительная части узла установки шарового крана с воздушником на перемычке Dу200 мм на теплопроводах Dу1000 мм. Вариант 1
ПП41-96-30 Технологическая и строительная части узла установки шарового крана с воздушником на перемычке Dу200 мм на теплопроводах Dу1000 мм. Вариант 2
ПП41-96-31 Армирование монолитной неподвижной опоры для труб 2Dу200 мм на усилие Р90 т для бесканальной прокладки в ППУ изоляции
ПП41-96-32 Армирование монолитной неподвижной опоры для труб 2Dу300 мм на усилие Р170 т для бесканальной прокладки в ППУ изоляции
ПП41-96-33 Армирование монолитной неподвижной опоры для труб 2Dу400 мм на усилие Р240 т для бесканальной прокладки в ППУ изоляции
ПП41-96-34 Армирование монолитной неподвижной опоры для труб 2Dу500 мм на усилие Р300 т для бесканальной прокладки в ППУ изоляции
ПП41-96-35 Армирование монолитной неподвижной опоры для труб 2Dу600 мм на усилие Р350 т для бесканальной прокладки в ППУ изоляции
ПП41-96-36 Армирование монолитной неподвижной опоры для труб 2Dу700 мм на усилие Р470 т для бесканальной прокладки в ППУ изоляции
ПП41-96-37 Армирование монолитной неподвижной опоры для труб 2Dу800 мм на усилие Р480 т для бесканальной прокладки в ППУ изоляции
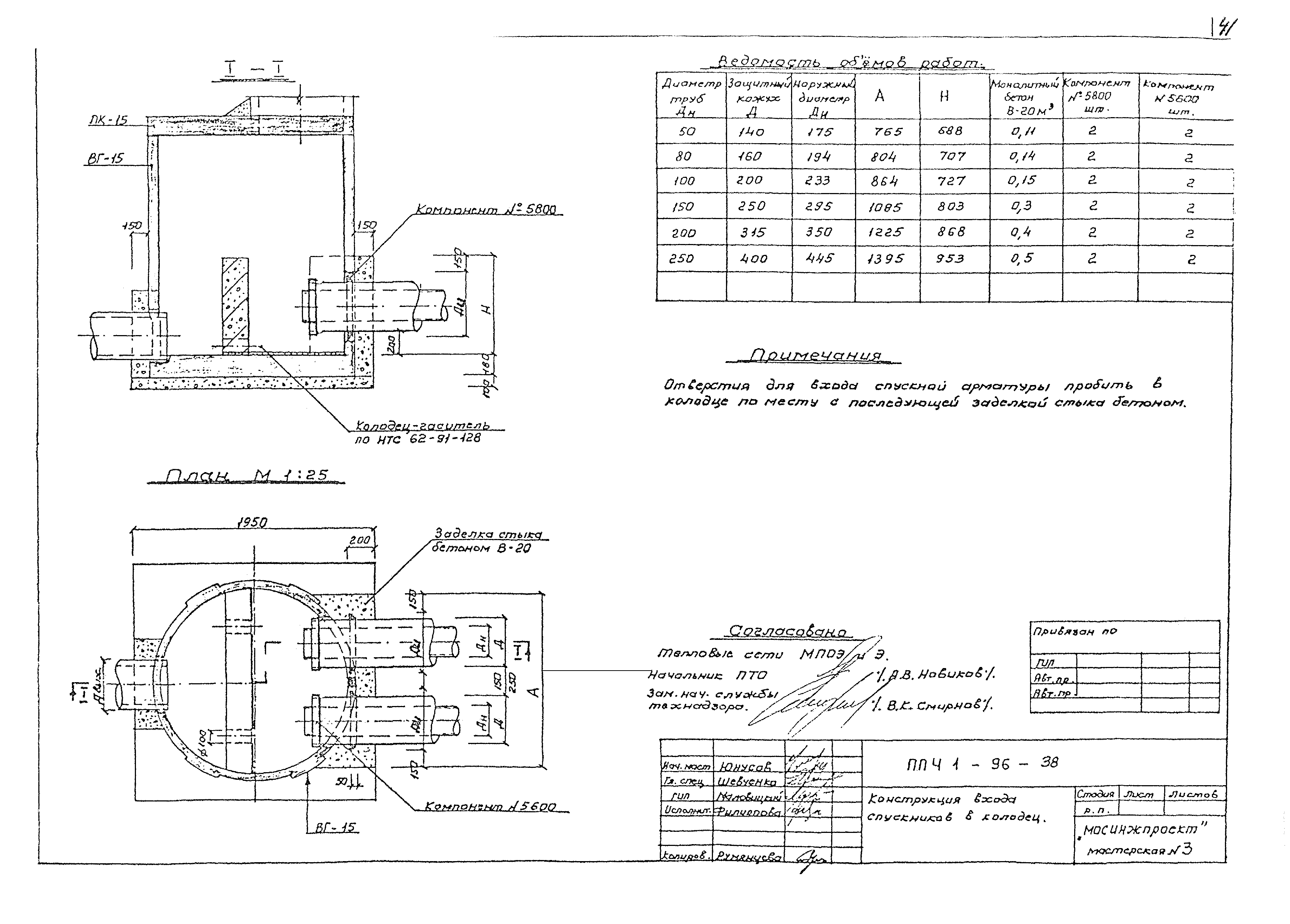
ПП41-96-38 Конструкция входа спускников в колодец
ПП41-96-39 Узлы заделки концов футляра
ПП41-96-40 Подвижные опоры для теплопроводов Dу50-1400 мм в ППУ изоляции в полиэтиленовой и металлической оболочке
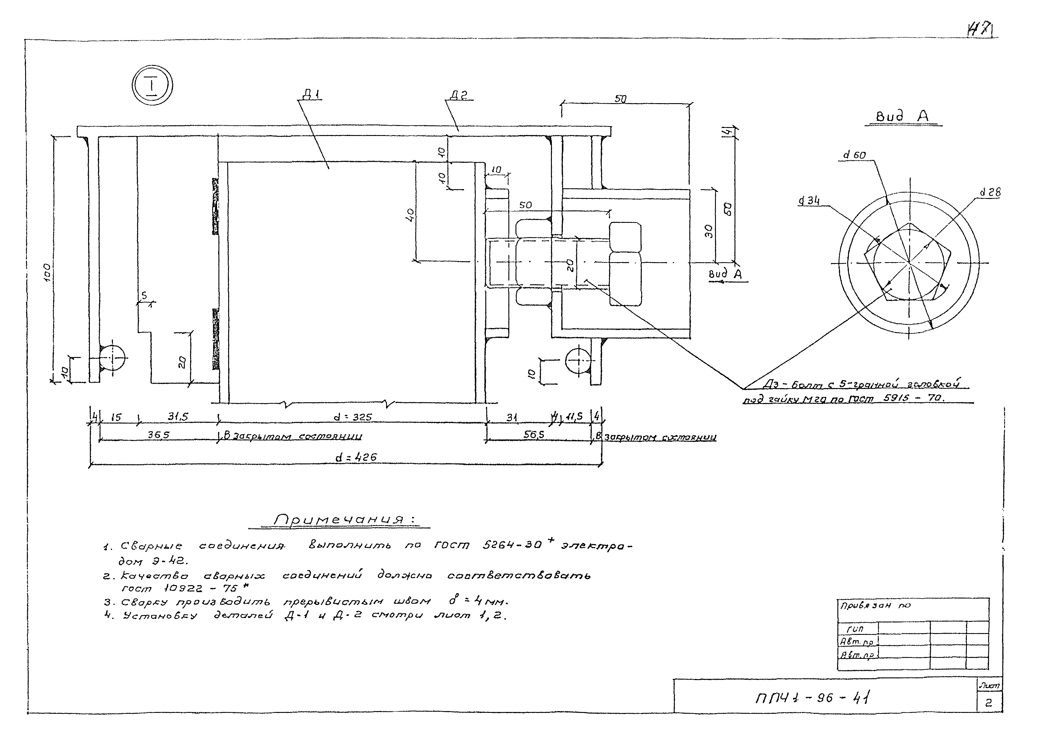
ПП41-96-41 Надземный терминал для контроля состояния изоляции
ПП41-96-42 Конструкция пересечения бесканальной прокладки с пенополиуретановой изоляцией в полиэтиленовой оболочке под электрокабелями до 35 Кв (траншея в креплениях)
ПП41-96-43 Конструкция пересечения бесканальной прокладки с пенополиуретановой изоляцией в полиэтиленовой оболочке над электрокабелями до 35 Кв (траншея в креплениях)
ПП41-96-44 Конструкция пересечения бесканальной прокладки с пенополиуретановой изоляцией в полиэтиленовой оболочке под электрокабелями до 35 Кв (траншея в откосах)
ПП41-96-45 Конструкция пересечения бесканальной прокладки с пенополиуретановой изоляцией в полиэтиленовой оболочке над электрокабелями до 35 Кв (траншея в откосах)
Разработан: Мосинжпроект
Утверждён:01.01.1995 Мосинжпроект (Mosinzhproject )
Расположен в:Техническая документация Строительство Справочные документы Типовые строительные конструкции, изделия и узлы Разработанные другими министерствами, ведомствами и организациями
Альбом ППЧ1-96Альбом ППЧ1-96Альбом ППЧ1-96Альбом ППЧ1-96Альбом ППЧ1-96Альбом ППЧ1-96Альбом ППЧ1-96Альбом ППЧ1-96Альбом ППЧ1-96Альбом ППЧ1-96Альбом ППЧ1-96Альбом ППЧ1-96Альбом ППЧ1-96Альбом ППЧ1-96Альбом ППЧ1-96Альбом ППЧ1-96Альбом ППЧ1-96Альбом ППЧ1-96Альбом ППЧ1-96Альбом ППЧ1-96Альбом ППЧ1-96Альбом ППЧ1-96Альбом ППЧ1-96Альбом ППЧ1-96Альбом ППЧ1-96Альбом ППЧ1-96Альбом ППЧ1-96Альбом ППЧ1-96Альбом ППЧ1-96Альбом ППЧ1-96Альбом ППЧ1-96Альбом ППЧ1-96Альбом ППЧ1-96Альбом ППЧ1-96Альбом ППЧ1-96Альбом ППЧ1-96Альбом ППЧ1-96Альбом ППЧ1-96Альбом ППЧ1-96Альбом ППЧ1-96Альбом ППЧ1-96Альбом ППЧ1-96Альбом ППЧ1-96Альбом ППЧ1-96Альбом ППЧ1-96Альбом ППЧ1-96Альбом ППЧ1-96Альбом ППЧ1-96Альбом ППЧ1-96Альбом ППЧ1-96Альбом ППЧ1-96Альбом ППЧ1-96Альбом ППЧ1-96Альбом ППЧ1-96

© 2013 Ёшкин Кот :-) Карта сайта