Информационная система
«Ёшкин Кот»

Скачать базу одним архивом
Скачать обновления
История создания базы
Карта сайта

Скачать НП 1.2-67 Помещения жилых корпусов гостиниц

Дата актуализации: 10.08.2017

НП 1.2-67

Помещения жилых корпусов гостиниц

Обозначение: НП 1.2-67
Обозначение англ: NP 1.2-67
Статус:действует
Название рус.:Помещения жилых корпусов гостиниц
Дата добавления в базу:01.09.2013
Дата актуализации:05.05.2017
Оглавление:Раздел 1. Помещения жилых корпусов гостиниц, оборудование, мебель
   Лист 1. Исходные данные
   2. Исходные габариты
   3. Жилой номер. Наборы мебели
   4-5. Жилой номер. Типы мебели
   6. Жилой номер. Группировка мебели
   7. Жилой номер. Встроенные шкафы
   8. Жилой номер на 1 чел. Расстановка мебели
   9. Жилой номер на 2 чел. Расстановка мебели
   10. Санитарный узел. Оборудование
   11. Жилой номер. Санитарный узел
   12. Передняя жилого номера. Примеры планировки
Раздел 2. Примеры планировки
А. Группы помещений
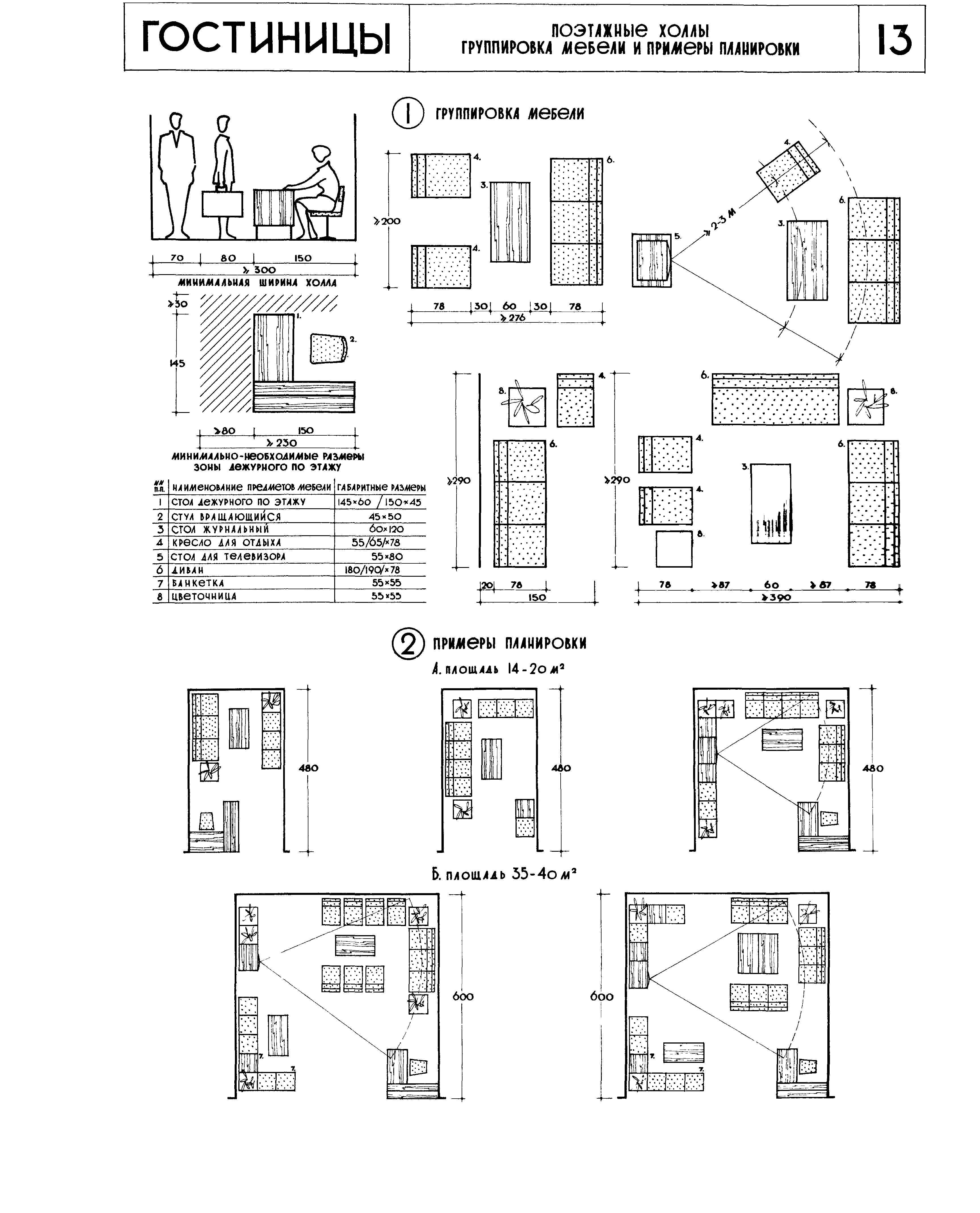
   13. Поэтажный холл. Группировка мебели
   14. Жилой номер на 1 чел. с умывальником
   15. Жилой номер на 1 чел. с санузлом
   16. Жилой номер на 2 чел. (дубль)
   17. Жилой номер на 2-3 чел. (люкс)
   18. Жилой номер на 3 чел. (туристский)
   19. Жилой номер на 4 чел. (туристский)
   20. Жилой номер на 5 чел. (туристский)
   21. Жилой номер на 6 чел. (туристский)
   22. Обслуживающие помещения
   23. Санитарные узлы общие поэтажные
   24. Душевые общие поэтажные
   25. Лифтовые и поэтажные холлы
Б. Жилые корпуса
   26. Здания с поперечными несущими стенами, шаг 330 см
   27. То же, с шагом 300 см
   28. Здания с продольными несущими стенами, шаг 600 см
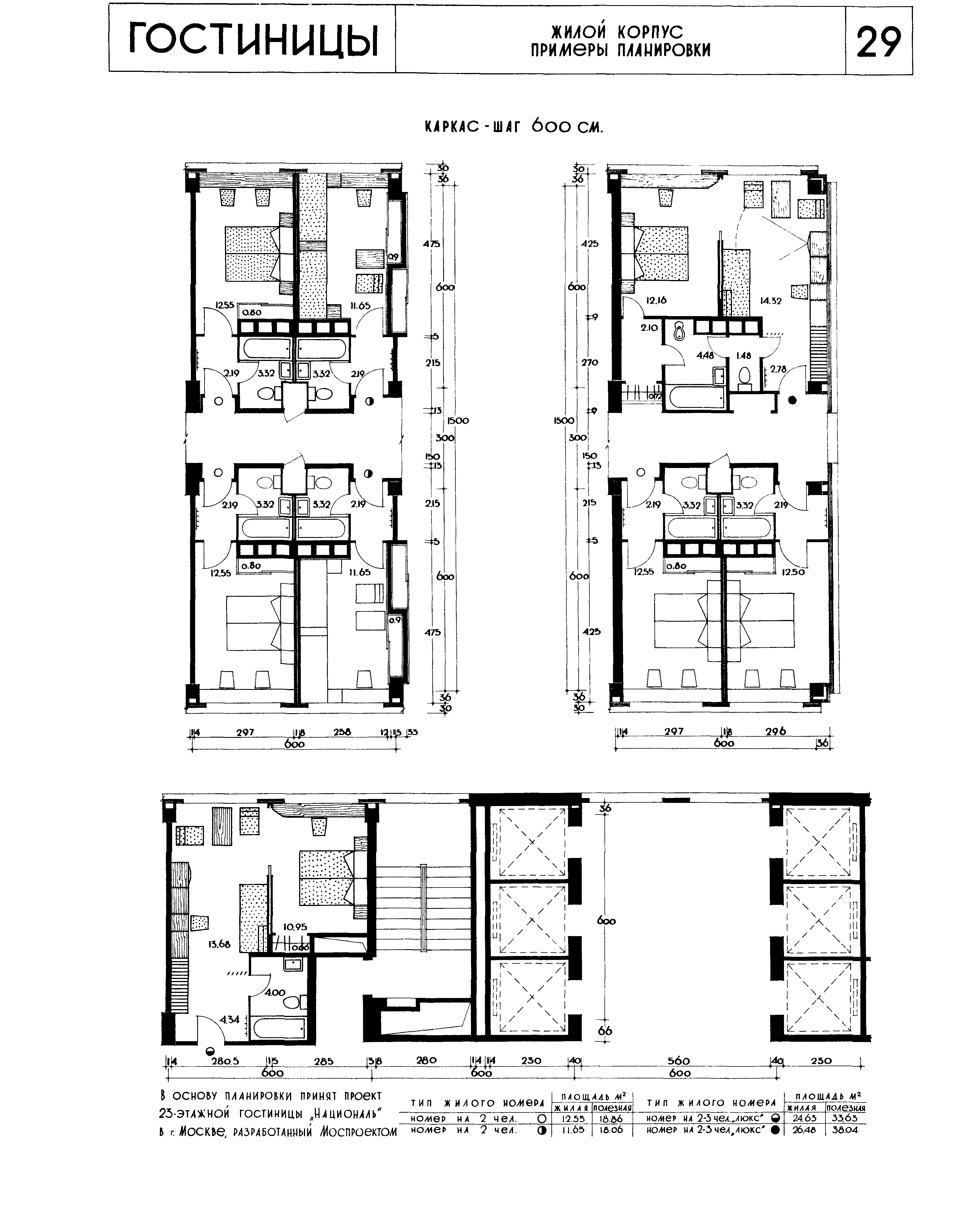
   29. Здания каркасной конструкции. Шаг 600 см
   30. То же, шаг 750 см
Разработан: ЦНИИЭП учебных зданий Госгражданстроя
ЦНИИЭП жилища
Утверждён:21.12.1966 ЦНИИЭП жилища (TsNIIEPzhilishcha )
Издан: ЦНИИЭПжилища (1967 г. )
Расположен в:Техническая документация Экология СТРОИТЕЛЬНЫЕ МАТЕРИАЛЫ И СТРОИТЕЛЬСТВО Строительство Общественные здания Строительство Справочные документы Нормали основных планировочных элементов жилых и общественных зданий
НП 1.2-67НП 1.2-67НП 1.2-67НП 1.2-67НП 1.2-67НП 1.2-67НП 1.2-67НП 1.2-67НП 1.2-67НП 1.2-67НП 1.2-67НП 1.2-67НП 1.2-67НП 1.2-67НП 1.2-67НП 1.2-67НП 1.2-67НП 1.2-67НП 1.2-67НП 1.2-67НП 1.2-67НП 1.2-67НП 1.2-67НП 1.2-67НП 1.2-67НП 1.2-67НП 1.2-67НП 1.2-67НП 1.2-67НП 1.2-67НП 1.2-67НП 1.2-67НП 1.2-67НП 1.2-67НП 1.2-67НП 1.2-67НП 1.2-67НП 1.2-67НП 1.2-67НП 1.2-67

© 2013 Ёшкин Кот :-) Карта сайта