| ||||||||||||||||||||||||||
Скачать Серия 1.020-1/87 Выпуск 2-1. Колонны для зданий с высотой этажа 3,3 м. Рабочие чертежиДата актуализации: 10.08.2017
|
| Обозначение: | Серия 1.020-1/87 |
| Обозначение англ: | Series 1.020-1/87 |
| Статус: | не определен законодательством |
| Название рус.: | Выпуск 2-1. Колонны для зданий с высотой этажа 3,3 м. Рабочие чертежи |
| Дата добавления в базу: | 01.09.2013 |
| Дата актуализации: | 05.05.2017 |
| Дата введения: | 12.12.1990 |
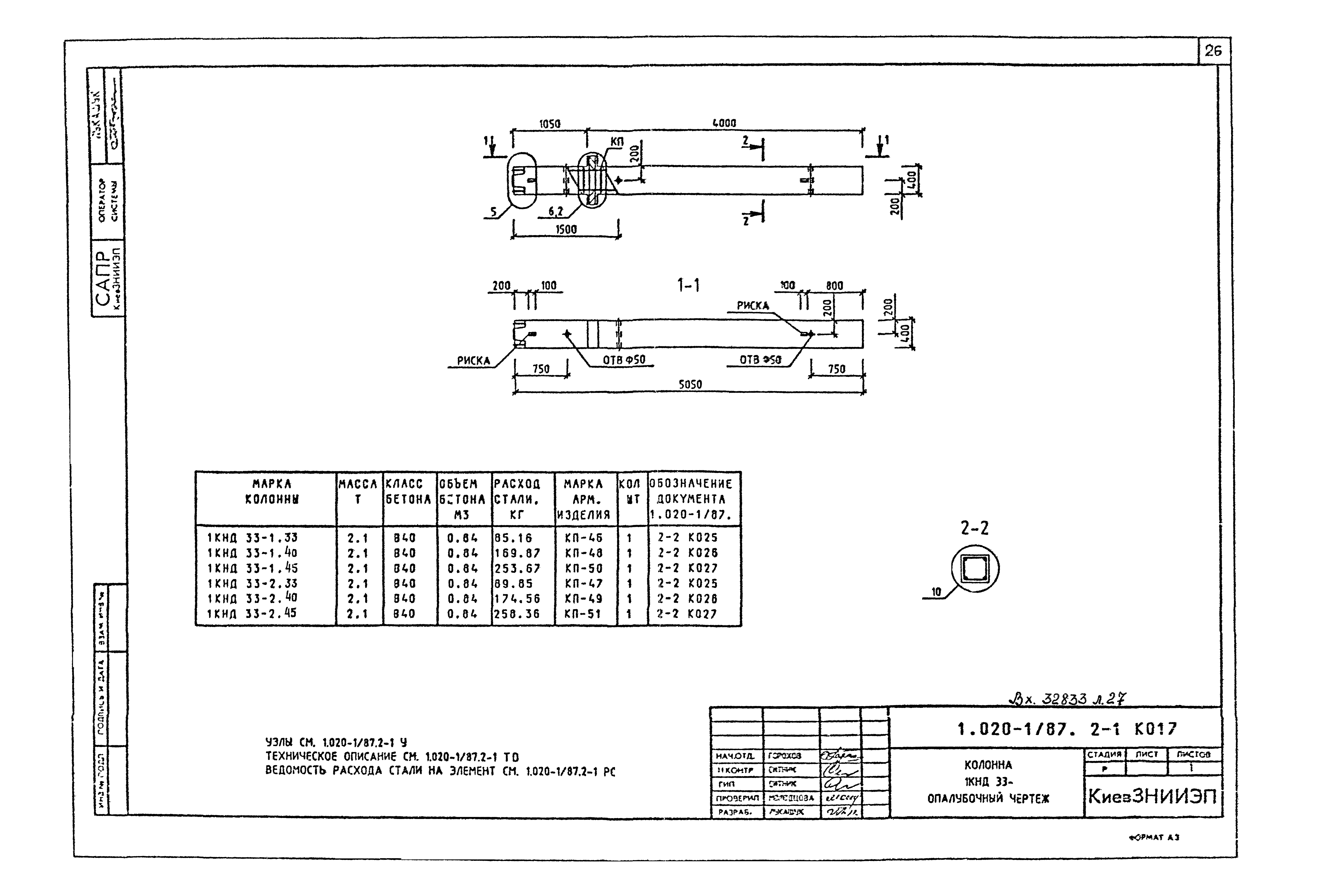
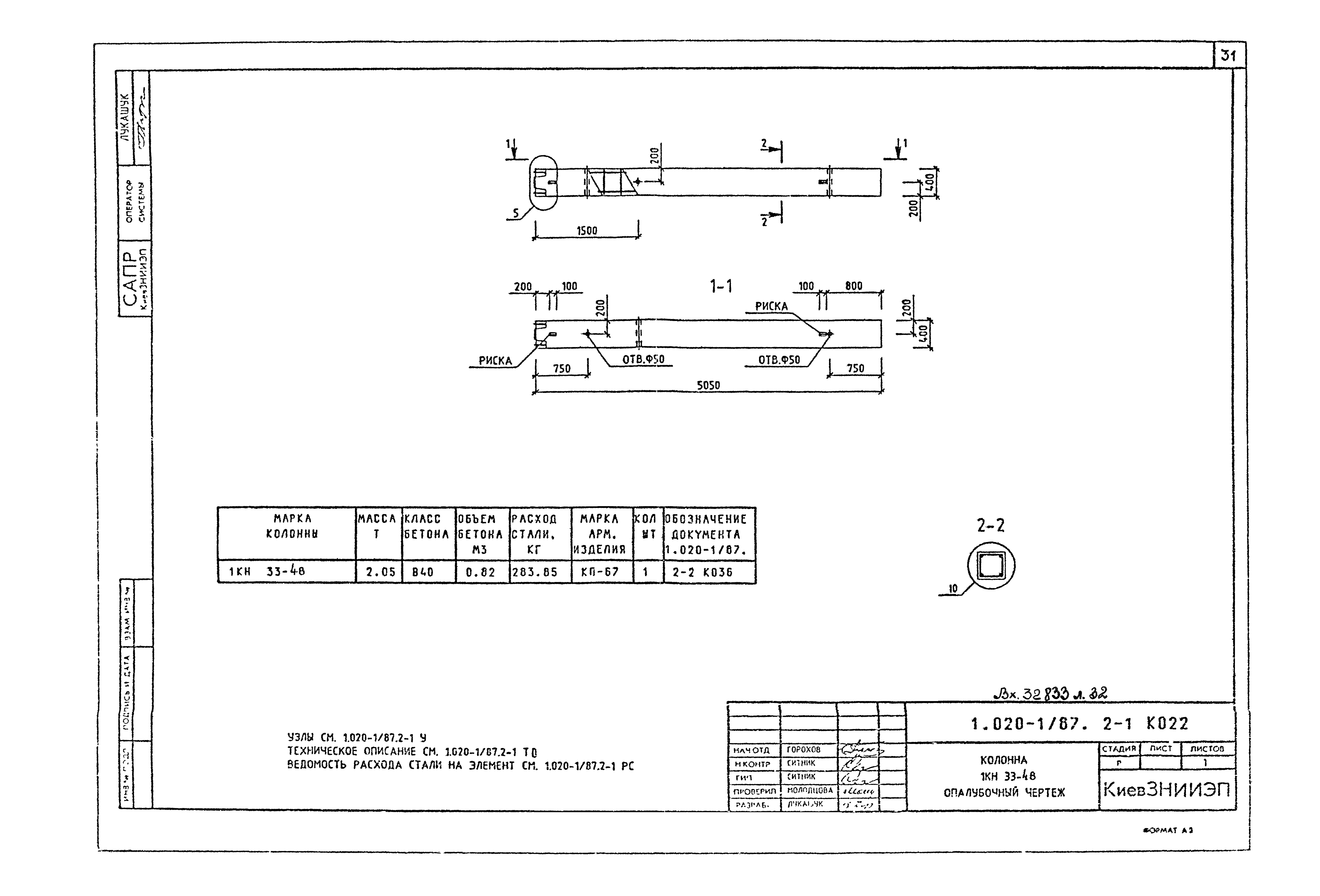
| Оглавление: | 1.020-1/87.2-1 Содержание 1.020-1/87.2-1-ТО Техническое описание 1.020-1/87.2-1 К001 Колонна 1КВД 33-1.23, 1КВД 33-2.23. Опалубочный чертеж 1.020-1/87.2-1 К002 Колонна 1КВО 33-1.23, 1КВО 33-2.23. Опалубочный чертеж 1.020-1/87.2-1 К003 Колонна 1КВ 33-26. Опалубочный чертеж 1.020-1/87.2-1 К004 Колонна 2КВД 33-1.23, 2КВД 33-2.23. Опалубочный чертеж 1.020-1/87.2-1 К005 Колонна 2КВО 33-1.23, 2КВО 33-2.23. Опалубочный чертеж 1.020-1/87.2-1 К006 Колонна 2КВ 33-23. Опалубочный чертеж 1.020-1/87.2-1 К007 Колонна 3КВД 33-1.23, 3КВД 33-2.26. Опалубочный чертеж 1.020-1/87.2-1 К008 Колонна 3КВО 33-1.23, 3КВО 33-2.23. Опалубочный чертеж 1.020-1/87.2-1 К009 Колонна 3КВ 33-23. Опалубочный чертеж 1.020-1/87.2-1 К010 Колонна 1КСД 33-1.33, 1КСД 33-1.40, 1КСД 33-1.45, 1КСД 33-2.33, 1КСД 33-2.40, 1КСД 33-2.45. Опалубочный чертеж 1.020-1/87.2-1 К011 Колонна 1КСО 33-1.33, 1КСО 33-1.40, 1КСО 33-1.45, 1КСО 33-2.33, 1КСО 33-2.40, 1КСО 33-2.45. Опалубочный чертеж 1.020-1/87.2-1 К012 Колонна 1КС 33-33, 1КС 33-40, 1КС 33-45. Опалубочный чертеж 1.020-1/87.2-1 К013 Колонна 3КСД 33-1.23, 3КСД 33-1.26, 3КСД 33-1.33, 3КСД 33-1.37, 3КСД 33-1.42, 3КСД 33-1.45. Опалубочный чертеж 1.020-1/87.2-1 К014 Колонна 3КСД 33-2.33, 3КСД 33-2.40, 3КСД 33-2.45. Опалубочный чертеж 1.020-1/87.2-1 К015 Колонна 3КСО 33-1.23, 3КСО 33-1.26, 3КСО 33-1.33, 3КСО 33-1.34, 3КСО 33-2.26, 3КСО 33-2.33. Опалубочный чертеж 1.020-1/87.2-1 К016 Колонна 3КС 33-23, 3КС 33-26, 3КС 33-33, 3КС 33-34. Опалубочный чертеж 1.020-1/87.2-1 К017 Колонна 1КНД 33-1.33, 1КНД 33-1.40, 1КНД 33-1.45, 1КНД 33-2.33, 1КНД 33-2.40, 1КНД 33-2.45. Опалубочный чертеж 1.020-1/87.2-1 К018 Колонна 1КНД 33-1.48, 1КНД 33-2.48, 1КНД 33-2.64. Опалубочный чертеж 1.020-1/87.2-1 К019 Колонна 1КНО 33-1.33, 1КНО 33-1.40, 1КНО 33-1.45, 1КНО 33-2.33, 1КНО 33-2.40, 1КНО 33-2.45. Опалубочный чертеж 1.020-1/87.2-1 К020 Колонна 1КНО 33-1.48, 1КНО 33-2.48, 1КНО 33-2.54. Опалубочный чертеж 1.020-1/87.2-1 К021 Колонна 1КН 33-33, 1КН 33-40, 1КН 33-45. Опалубочный чертеж 1.020-1/87.2-1 К022 Колонна 1КН 33-48. Опалубочный чертеж 1.020-1/87.2-1 К023 Колонна 2КНД 33(20)-1.23, 2КНД 33(20)-1.26, 2КНД 33(20)-2.33. Опалубочный чертеж 1.020-1/87.2-1 К024 Колонна 2КНД 33(20)-1.33/40. Опалубочный чертеж 1.020-1/87.2-1 К025 Колонна 2КНО 33(20)-1.23, 2КНО 33(20)-2.26, 2КНО 33(20)-2.33. Опалубочный чертеж 1.020-1/87.2-1 К026 Колонна 2КН 33(20)-23, 2КН 33(20)-26, 2КН 33(20)-33. Опалубочный чертеж 1.020-1/87.2-1 К027 Колонна 3КНД 33-1.23, 3КНД 33-1.26, 3КНД 33-1.33, 3КНД 33-2.33. Опалубочный чертеж 1.020-1/87.2-1 К028 Колонна 3КНД 33-1.33/57, 3КНД 33-2.33/40. Опалубочный чертеж 1.020-1/87.2-1 К029 Колонна 3КНД 33-1.33/40, 3КНД 33-1.37/46, 3КНД 33-1.42/49, 3КНД 33-1.45/54, 3КНД 33-2.33/48, 3КНД 33-2.40/54. Опалубочный чертеж 1.020-1/87.2-1 К030 Колонна 3КНД 33-1.59, 3КНД 33-2.59. Опалубочный чертеж 1.020-1/87.2-1 К031 Колонна 3КНО 33-1.23, 3КНО 33-1.26, 3КНО 33-1.33, 3КНО 33-2.26, 3КНО 33-2.33. Опалубочный чертеж 1.020-1/87.2-1 К032 Колонна 3КНО 33-1.33/35, 3КНО 33-1.34/38, 3КНО 33-1.42/44, 3КНО 33-2.34/39. Опалубочный чертеж 1.020-1/87.2-1 К033 Колонна 3КНО 33-1.35/41, 3КНО 33-1.34/44, 3КНО 33-2.40/49. Опалубочный чертеж 1.020-1/87.2-1 К034 Колонна 3КН 33-23, 3КН 33-26, 3КН 33-33. Опалубочный чертеж 1.020-1/87.2-1 К035 Колонна 3КН 33-33/35, 3КН 33-34/38. Опалубочный чертеж 1.020-1/87.2-1 К036 Колонна 3КН 33-34/39. Опалубочный чертеж 1.020-1/87.2-1 К037 Колонна 3КН 33-35/41. Опалубочный чертеж 1.020-1/87.2-1 К038 Колонна 3КН 33-34/44. Опалубочный чертеж 1.020-1/87.2-1 К039 Колонна 3КН 33-42/44. Опалубочный чертеж 1.020-1/87.2-1 К040 Колонна 3КН 33-40/49. Опалубочный чертеж 1.020-1/87.2-1 К041 Колонна 1КБД 33-1.23, 1КБД 33-2.23. Опалубочный чертеж 1.020-1/87.2-1 К042 Колонна 1КБО 33-1.23, 1КБО 33-2.23. Опалубочный чертеж 1.020-1/87.2-1 К043 Колонна 1КБ 33-23. Опалубочный чертеж 1.020-1/87.2-1 К044 Колонна 2КБД 33-1.23, 2КБД 33-2.23. Опалубочный чертеж 1.020-1/87.2-1 К045 Колонна 2КБО 33-1.23, 2КБО 33-2.23. Опалубочный чертеж 1.020-1/87.2-1 К046 Колонна 2КБ 33-23. Опалубочный чертеж 1.020-1/87.2-1 К047 Колонна 3КБД 33-1.23, 3КБД 33-2.26. Опалубочный чертеж 1.020-1/87.2-1 К048 Колонна 3КБО 33-1.23, 3КБО 33-2.23. Опалубочный чертеж 1.020-1/87.2-1 К049 Колонна 3КБ 33-23, 3КБ 33-26. Опалубочный чертеж 1.020-1/87.2-1 К050 Колонна 2КБД 33(20)-1.23, 2КБД 33(20)-2.23. Опалубочный чертеж 1.020-1/87.2-1 К051 Колонна 2КБО 33(20)-1.23, 2КБО 33(20)-2.23. Опалубочный чертеж 1.020-1/87.2-1 К052 Колонна 2КБ 33(20)-23. Опалубочный чертеж 1.020-1/87.2-1 К053 Колонна 2КНД 42(30)-1.22, 2КНД 42(30)-1.25, 2КНД 42(30)-2.32. Опалубочный чертеж 1.020-1/87.2-1 К054 Колонна 2КНД 42(30)-2.32/40. Опалубочный чертеж 1.020-1/87.2-1 К055 Колонна 2КНО 42(30)-1.22, 2КНО 42(30)-2.25, 2КНО 42(30)-2.32. Опалубочный чертеж 1.020-1/87.2-1 К056 Колонна 2КН 42(30)-22, 2КН 42(30)-25, 2КН 42(30)-32. Опалубочный чертеж 1.020-1/87.2-1 К057 Колонна 1КНД 33(30)-1.23, 1КНД 33(30)-1.26, 1КНД 33(30)-1.33, 1КНД 33(30)-2.33. Опалубочный чертеж 1.020-1/87.2-1 К058 Колонна 1КНД 33(30)-1.37, 1КНД 33(30)-1.40, 1КНД 33(30)-1.48, 1КНД 33(30)-1.49. Опалубочный чертеж 1.020-1/87.2-1 К059 Колонна 1КНД 33(30)-2.40, 1КНД 33(30)-2.48, 1КНД 33(30)-2.54, 1КНД 33(30)-2.59. Опалубочный чертеж 1.020-1/87.2-1 К060 Колонна 1КНО 33(30)-1.23, 1КНО 33(30)-1.26, 1КНО 33(30)-1.33, 1КНО 33(30)-2.26, 1КНО 33(30)-2.33. Опалубочный чертеж 1.020-1/87.2-1 К061 Колонна 1КНО 33(30)-1.35, 1КНО 33(30)-1.38, 1КНО 33(30)-2.39, 1КНО 33(30)-2.44, 1КНО 33(30)-2.49. Опалубочный чертеж 1.020-1/87.2-1 К062 Колонна 1КН 33(30)-23, 1КН 33(30)-26, 1КН 33(30)-33. Опалубочный чертеж 1.020-1/87.2-1 К063 Колонна 1КН 33(30)-35, 1КН 33(30)-38, 1КН 33(30)-39, 1КН 33(30)-39, 1КН 33(30)-44, 1КН 33(30)-49. Опалубочный чертеж 1.020-1/87.2-1 К064 Колонна 2КНД 33(30)-1.23, 2КНД 33(30)-1.26, 2КНД 33(30)-1.33, 2КНД 33(30)-2.33. Опалубочный чертеж 1.020-1/87.2-1 К065 Колонна 2КНД 33(30)-1.33/37, 2КНД 33(30)-1.33/40. Опалубочный чертеж 1.020-1/87.2-1 К066 Колонна 2КНД 33(30)-1.37/40, 2КНД 33(30)-1.42/46, 2КНД 33(30)-1.45/49, 2КНД 33(30)-1.50/54. Опалубочный чертеж 1.020-1/87.2-1 К067 Колонна 2КНД 33(30)-2.41/48, 2КНД 33(30)-2.47/54, 2КНД 33(30)-2.59. Опалубочный чертеж 1.020-1/87.2-1 К068 Колонна 2КНО 33(30)-1.23, 2КНО 33(30)-1.26, 2КНО 33(30)-1.33, 2КНО 33(30)-2.26, 2КНО 33(30)-2.33. Опалубочный чертеж 1.020-1/87.2-1 К069 Колонна 2КНО 33(30)-1.33/35, 2КНО 33(30)-1.34/38, 2КНО 33(30)-2.34/39. Опалубочный чертеж 1.020-1/87.2-1 К070 Колонна 2КНО 33(30)-1.38/41, 2КНО 33(30)-2.38/44, 2КНО 33(30)-2.45/49. Опалубочный чертеж 1.020-1/87.2-1 К071 Колонна 2КН 33(30)-23, 2КН 33(30)-26, 2КН 33(30)-33. Опалубочный чертеж 1.020-1/87.2-1 К072 Колонна 2КН 33(30)-33/35, 2КН 33(30)-34/38, 2КН 33(30)-34/39. Опалубочный чертеж 1.020-1/87.2-1 К073 Колонна 2КН 33(30)-38/41, 2КН 33(30)-38/44. Опалубочный чертеж 1.020-1/87.2-1 К074 Колонна 2КН 33(30)-45/49. Опалубочный чертеж 1.020-1/87.2-1 К075 Колонна 3КНД 33(30)-1.23, 3КНД 33(30)-1.26, 3КНД 33(30)-1.33, 3КНД 33(30)-2.33. Опалубочный чертеж 1.020-1/87.2-1 К076 Колонна 3КНД 33(30)-1.33/37, 3КНД 33(30)-2.33/40. Опалубочный чертеж 1.020-1/87.2-1 К077 Колонна 3КНД 33(30)-1.33/40, 3КНД 33(30)-1.37/46, 3КНД 33(30)-1.42/49, 3КНД 33(30)-1.45/54, 3КНД 33(30)-2.33/48, 3КНД 33(30)-2.40/54. Опалубочный чертеж 1.020-1/87.2-1 К078 Колонна 3КНД 33(30)-1.59, 3КНД 33(30)-2.59. Опалубочный чертеж 1.020-1/87.2-1 К079 Колонна 3КНО 33(30)-1.23, 3КНО 33(30)-1.26, 3КНО 33(30)-1.33, 3КНО 33(30)-2.26, 3КНО 33(30)-2.33. Опалубочный чертеж 1.020-1/87.2-1 К080 Колонна 3КНО 33(30)-1.33/35, 3КНО 33(30)-1.34/38, 3КНО 33(30)-1.42/44, 3КНО 33(30)-2.34/39. Опалубочный чертеж 1.020-1/87.2-1 К081 Колонна 3КНО 33(30)-1.35/41, 3КНО 33(30)-2.34/44, 3КНО 33(30)-2.40/49. Опалубочный чертеж 1.020-1/87.2-1 К082 Колонна 3КН 33(30)-23, 3КН 33(30)-26, 3КН 33(30)-33. Опалубочный чертеж 1.020-1/87.2-1 К083 Колонна 3КН 33(30)-33/35, 3КН 33(30)-34/38, 3КН 33(30)-34/39, 3КН 33(30)-42/44. Опалубочный чертеж 1.020-1/87.2-1 К084 Колонна 3КН 33(30)-35/41, 3КН 33(30)-34/44, 3КН 33(30)-40/49. Опалубочный чертеж 1.020-1/87.2-1 К085 Колонна 2КБД 33(30)-1.23, 2КБД 33(30)-2.23. Опалубочный чертеж 1.020-1/87.2-1 К086 Колонна 2КБО 33(30)-1.23, 2КБО 33(30)-2.23. Опалубочный чертеж 1.020-1/87.2-1 К087 Колонна 2КБ 33(30)-23. Опалубочный чертеж 1.020-1/87.2-1 К088 Колонна 3КБД 33(30)-1.23, 3КБД 33(30)-2.26. Опалубочный чертеж 1.020-1/87.2-1 К089 Колонна 3КБО 33(30)-1.23, 3КБО 33(30)-2.23. Опалубочный чертеж 1.020-1/87.2-1 К090 Колонна 3КБ 33(30)-23, 3КБ 33(30)-26. Опалубочный чертеж 1.020-1/87.2-1 К091 Колонна 1КВД 24-1.23. Опалубочный чертеж 1.020-1/87.2-1 К092 Колонна 1КВО 24-1.23. Опалубочный чертеж 1.020-1/87.2-1 РС Ведомость расхода стали на элемент 1.020-1/87.2-1 У Узлы |
| Разработан: | НИИЖБ Госстроя СССР ЦНИИпромзданий КиевЗНИИЭП ЦНИИЭП ТБЗ и ТК |
| Утверждён: | 12.12.1990 Госстрой СССР (Государственный комитет Совета Министров СССР по делам строительства) (USSR Gosstroy АЧ-15) |
| Расположен в: |









































































































































