Скачать Православные храмы. Храмы, часовни, звонницы, причтовые дома. Сборник каталожных листов. Выпуск 1Дата актуализации: 10.08.2017
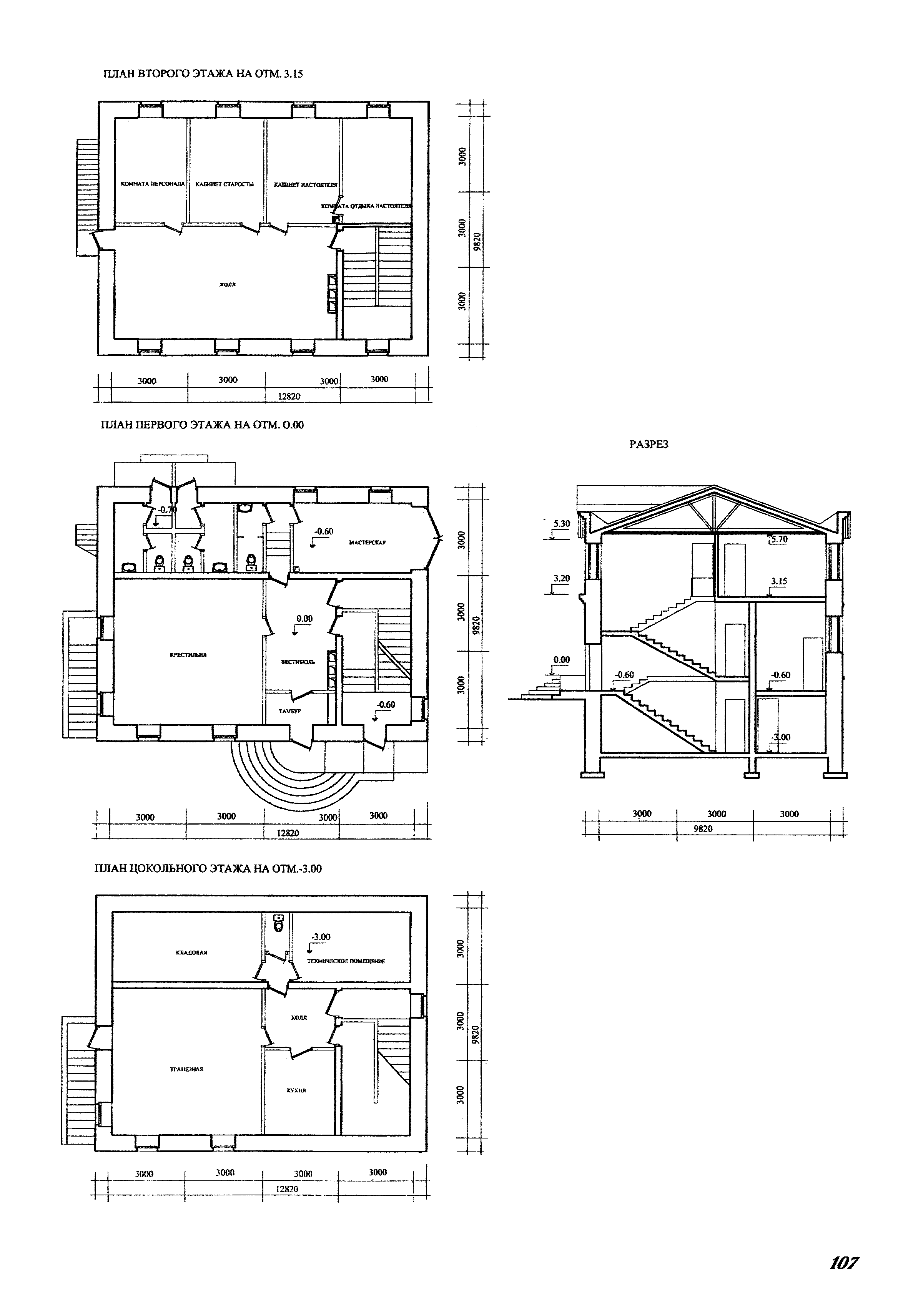
Православные храмы. Храмы, часовни, звонницы, причтовые дома. Сборник каталожных листов. Выпуск 1Статус: | действует | Название рус.: | Православные храмы. Храмы, часовни, звонницы, причтовые дома. Сборник каталожных листов. Выпуск 1 | Дата добавления в базу: | 21.05.2015 | Дата актуализации: | 05.05.2017 | Область применения: | В сборник включены проекты часовен, деревянных и каменных храмов различной вместимости, звонниц, святых врат и церковно-причтовых домов, разработанные в период 1990-2004 гг. | Оглавление: | Часовни Деревянные храмы Каменные храмы Причтовые дома, другие здания и сооружения | Разработан: | АХЦ АРХХРАМ Московского Патриархата
| Утверждён: | 16.12.2004 АХЦ Арххрам (Arkhkhram AKhTs )
| Издан: | ФГУП ЦПП (2005 г. )
| Расположен в: |
|
                                                                                                              
|