Информационная система
«Ёшкин Кот»

Скачать базу одним архивом
Скачать обновления
История создания базы
Карта сайта

Скачать МДС 31-9.2003 Православные храмы. Том 3. Примеры архитектурно-строительных решений

Дата актуализации: 10.08.2017

МДС 31-9.2003

Православные храмы. Том 3. Примеры архитектурно-строительных решений

Обозначение: МДС 31-9.2003
Обозначение англ: MDS 31-9.2003
Статус:действует
Название рус.:Православные храмы. Том 3. Примеры архитектурно-строительных решений
Дата добавления в базу:01.09.2013
Дата актуализации:05.05.2017
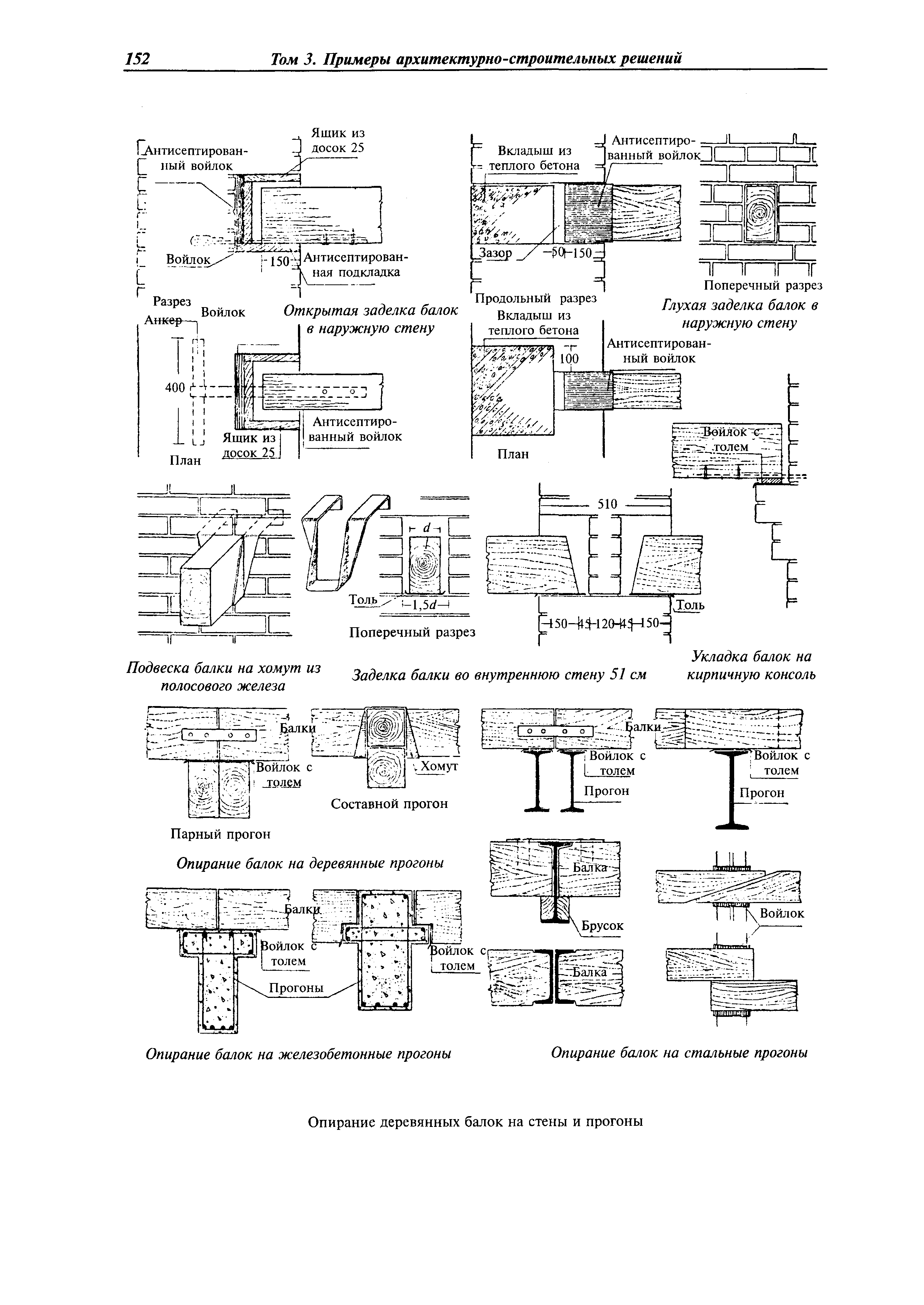
Область применения:Третий том представлен дополнительный графический и иллюстративный материал, включающий следующие разделы: русское храмостроительство XI-XX вв.; проекты и постройки православных храмов рубежа XIX-XX вв.; современные проекты и постройки деревянных и каменных храмов, часовен, храмовых комплексов; примеры решений архитектурных элементов и конструкций, внутренней декорации и убранства храмов.
Оглавление:Введение
1 Этапы русского храмостроительства XI-XX вв.
2 Проекты и постройки храмов рубежа XIX-XX вв
3 Современные проекты и постройки храмов и часовен
4 Внутренняя декорация и убранство храмов
5 Архитектурные элементы
6 Архитектурные конструкции
Приложение
Разработан: АХЦ АРХХРАМ Московского Патриархата
Утверждён:01.01.2003 АХЦ Арххрам (Arkhkhram AKhTs )
Издан: ГУП ЦПП (CPP GUP 2003 г. )
Расположен в:Техническая документация Экология СТРОИТЕЛЬНЫЕ МАТЕРИАЛЫ И СТРОИТЕЛЬСТВО Строительство Здания и сооружения прочие Строительство Справочные документы Директивные письма, положения, рекомендации и др.
МДС 31-9.2003МДС 31-9.2003МДС 31-9.2003МДС 31-9.2003МДС 31-9.2003МДС 31-9.2003МДС 31-9.2003МДС 31-9.2003МДС 31-9.2003МДС 31-9.2003МДС 31-9.2003МДС 31-9.2003МДС 31-9.2003МДС 31-9.2003МДС 31-9.2003МДС 31-9.2003МДС 31-9.2003МДС 31-9.2003МДС 31-9.2003МДС 31-9.2003МДС 31-9.2003МДС 31-9.2003МДС 31-9.2003МДС 31-9.2003МДС 31-9.2003МДС 31-9.2003МДС 31-9.2003МДС 31-9.2003МДС 31-9.2003МДС 31-9.2003МДС 31-9.2003МДС 31-9.2003МДС 31-9.2003МДС 31-9.2003МДС 31-9.2003МДС 31-9.2003МДС 31-9.2003МДС 31-9.2003МДС 31-9.2003МДС 31-9.2003МДС 31-9.2003МДС 31-9.2003МДС 31-9.2003МДС 31-9.2003МДС 31-9.2003МДС 31-9.2003МДС 31-9.2003МДС 31-9.2003МДС 31-9.2003МДС 31-9.2003МДС 31-9.2003МДС 31-9.2003МДС 31-9.2003МДС 31-9.2003МДС 31-9.2003МДС 31-9.2003МДС 31-9.2003МДС 31-9.2003МДС 31-9.2003МДС 31-9.2003МДС 31-9.2003МДС 31-9.2003МДС 31-9.2003МДС 31-9.2003МДС 31-9.2003МДС 31-9.2003МДС 31-9.2003МДС 31-9.2003МДС 31-9.2003МДС 31-9.2003МДС 31-9.2003МДС 31-9.2003МДС 31-9.2003МДС 31-9.2003МДС 31-9.2003МДС 31-9.2003МДС 31-9.2003МДС 31-9.2003МДС 31-9.2003МДС 31-9.2003МДС 31-9.2003МДС 31-9.2003МДС 31-9.2003МДС 31-9.2003МДС 31-9.2003МДС 31-9.2003МДС 31-9.2003МДС 31-9.2003МДС 31-9.2003МДС 31-9.2003МДС 31-9.2003МДС 31-9.2003МДС 31-9.2003МДС 31-9.2003МДС 31-9.2003МДС 31-9.2003МДС 31-9.2003МДС 31-9.2003МДС 31-9.2003МДС 31-9.2003МДС 31-9.2003МДС 31-9.2003МДС 31-9.2003МДС 31-9.2003МДС 31-9.2003МДС 31-9.2003МДС 31-9.2003МДС 31-9.2003МДС 31-9.2003МДС 31-9.2003МДС 31-9.2003МДС 31-9.2003МДС 31-9.2003МДС 31-9.2003МДС 31-9.2003МДС 31-9.2003МДС 31-9.2003МДС 31-9.2003МДС 31-9.2003МДС 31-9.2003МДС 31-9.2003МДС 31-9.2003МДС 31-9.2003МДС 31-9.2003МДС 31-9.2003МДС 31-9.2003МДС 31-9.2003МДС 31-9.2003МДС 31-9.2003МДС 31-9.2003МДС 31-9.2003МДС 31-9.2003МДС 31-9.2003МДС 31-9.2003МДС 31-9.2003МДС 31-9.2003МДС 31-9.2003МДС 31-9.2003МДС 31-9.2003МДС 31-9.2003МДС 31-9.2003МДС 31-9.2003МДС 31-9.2003МДС 31-9.2003МДС 31-9.2003МДС 31-9.2003МДС 31-9.2003МДС 31-9.2003МДС 31-9.2003МДС 31-9.2003МДС 31-9.2003МДС 31-9.2003МДС 31-9.2003МДС 31-9.2003МДС 31-9.2003МДС 31-9.2003МДС 31-9.2003МДС 31-9.2003МДС 31-9.2003МДС 31-9.2003МДС 31-9.2003МДС 31-9.2003МДС 31-9.2003МДС 31-9.2003МДС 31-9.2003МДС 31-9.2003МДС 31-9.2003МДС 31-9.2003МДС 31-9.2003МДС 31-9.2003МДС 31-9.2003МДС 31-9.2003МДС 31-9.2003МДС 31-9.2003МДС 31-9.2003МДС 31-9.2003МДС 31-9.2003МДС 31-9.2003МДС 31-9.2003МДС 31-9.2003МДС 31-9.2003МДС 31-9.2003МДС 31-9.2003МДС 31-9.2003МДС 31-9.2003МДС 31-9.2003МДС 31-9.2003МДС 31-9.2003МДС 31-9.2003МДС 31-9.2003МДС 31-9.2003МДС 31-9.2003МДС 31-9.2003МДС 31-9.2003МДС 31-9.2003МДС 31-9.2003МДС 31-9.2003МДС 31-9.2003МДС 31-9.2003МДС 31-9.2003МДС 31-9.2003МДС 31-9.2003МДС 31-9.2003МДС 31-9.2003

© 2013 Ёшкин Кот :-) Карта сайта