Информационная система
«Ёшкин Кот»

Скачать базу одним архивом
Скачать обновления
История создания базы
Карта сайта

Скачать Серия 2.440-1 Выпуск 2. Узлы покрытий

Дата актуализации: 10.08.2017

Серия 2.440-1

Выпуск 2. Узлы покрытий

Обозначение: Серия 2.440-1
Обозначение англ: Series 2.440-1
Статус:действует
Название рус.:Выпуск 2. Узлы покрытий
Дата добавления в базу:01.09.2013
Дата актуализации:05.05.2017
Дата введения:01.07.1984
Оглавление:2.440-1.2 КМ л.2.2-1.3 Пояснительная записка
2.440-1.2 КМ л. 2.1; 2.2 Общие указания
2.440-1.2 КМ л. 3 Маркировка узлов стропильных ферм
2.440-1.2 КМ л. 4 Маркировка узлов стропильных и подстропильных ферм
2.440-1.2 КМ л. 5 Монтажные стыки верхних поясов стропильных ферм с поясами из широкополочных двутавров. Узлы 1-3
2.440-1.2 КМ л. 6 Монтажный стык на высокопрочных болтах нижних поясов стропильных ферм с поясами из широкополочных двутавров. Узлы 4; 5
2.440-1.2 КМ л. 7 Монтажные стыки верхних поясов стропильных ферм с поясами из широкополочных тавров. Узлы 6, 7
2.440-1.2 КМ л. 8 Монтажные стыки на высокопрочных болтах нижних поясов стропильных ферм с поясами из широкополочных тавров. Узлы 8; 9
2.440-1.2 КМ л. 9 Рекомендации по расчету узлов 8; 9
2.440-1.2 КМ л. 10 Монтажные стыки на сварке нижних поясов стропильных ферм с поясами из широкополочных тавров. Узлы 10; 11
2.440-1.2 КМ л. 11 Рекомендации по расчету узлов 10; 11
2.440-1.2 КМ л. 12 Заводские узлы верхних поясов стропильных ферм из парных уголков. Узлы 12; 13
2.440-1.2 КМ л. 13 Рекомендации по расчету узлов 12; 13
2.440-1.2 КМ л. 14 Монтажные стыки на высокопрочных болтах стропильных ферм из парных уголков. Узлы 14; 15
2.440-1.2 КМ л. 15 Монтажные стыки на высокопрочных болтах стропильных ферм из парных уголков. Узлы 16; 17
2.440-1.2 КМ л. 16 Рекомендации по расчету узлов 14-17
2.440-1.2 КМ л. 17 Монтажные стыки на сварке стропильных ферм из парных уголков. Узлы 18; 19
2.440-1.2 КМ л. 18 Монтажные стыки на сварке стропильных ферм из парных уголков. Узлы 20; 21
2.440-1.2 КМ л. 19 Рекомендации по расчету узлов 18-21
2.440-1.2 КМ л. 20 Соединение стропильных ферм с поясами из широкополочных двутавров с опорными стойками. Узлы 22; 23
2.440-1.2 КМ л. 21 Соединение стропильных ферм с поясами из широкополочных двутавров с опорными стойками. Узлы 24-26
2.440-1.2 КМ л. 22 Соединение стропильных ферм с поясами из широкополочных двутавров с опорными стойками. Узлы 27; 28
2.440-1.2 КМ л. 23 Соединение стропильных ферм с поясами из широкополочных двутавров с подстропильными фермами. Узлы 29; 30
2.440-1.2 КМ л. 24 Соединение стропильных ферм с поясами из широкополочных тавров и парных уголков с опорными стойками. Узлы 31-34
2.440-1.2 КМ л. 25 Соединение стропильных ферм с поясами из широкополочных тавров и парных уголков с опорными стойками. Узлы 35-39
2.440-1.2 КМ л. 26 Соединение стропильных ферм с поясами из широкополочных тавров и парных уголков с опорными стойками. Узлы 40; 41
2.440-1.2 КМ л. 27 Соединение стропильных ферм с поясами из широкополочных тавров и парных уголков с опорными стойками. Узлы 42-44
2.440-1.2 КМ л. 28 Соединение стропильных ферм с поясами из широкополочных тавров и парных уголков с опорными стойками. Узлы 45; 46
2.440-1.2 КМ л. 29 Соединение стропильных ферм с поясами из широкополочных тавров и парных уголков с подстропильными фермами. Узлы 47-50
2.440-1.2 КМ л. 30 Опирание стропильных ферм с поясами из широкополочных двутавров на колонны крайнего ряда. Узлы 51; 52
2.440-1.2 КМ л. 31 Опирание стропильной фермы с поясами из широкополочных двутавров на колонну крайнего ряда. Узел 53
2.440-1.2 КМ л. 32 Опирание стропильных ферм с поясами из широкополочных двутавров на колонны среднего ряда. Узлы 54; 55
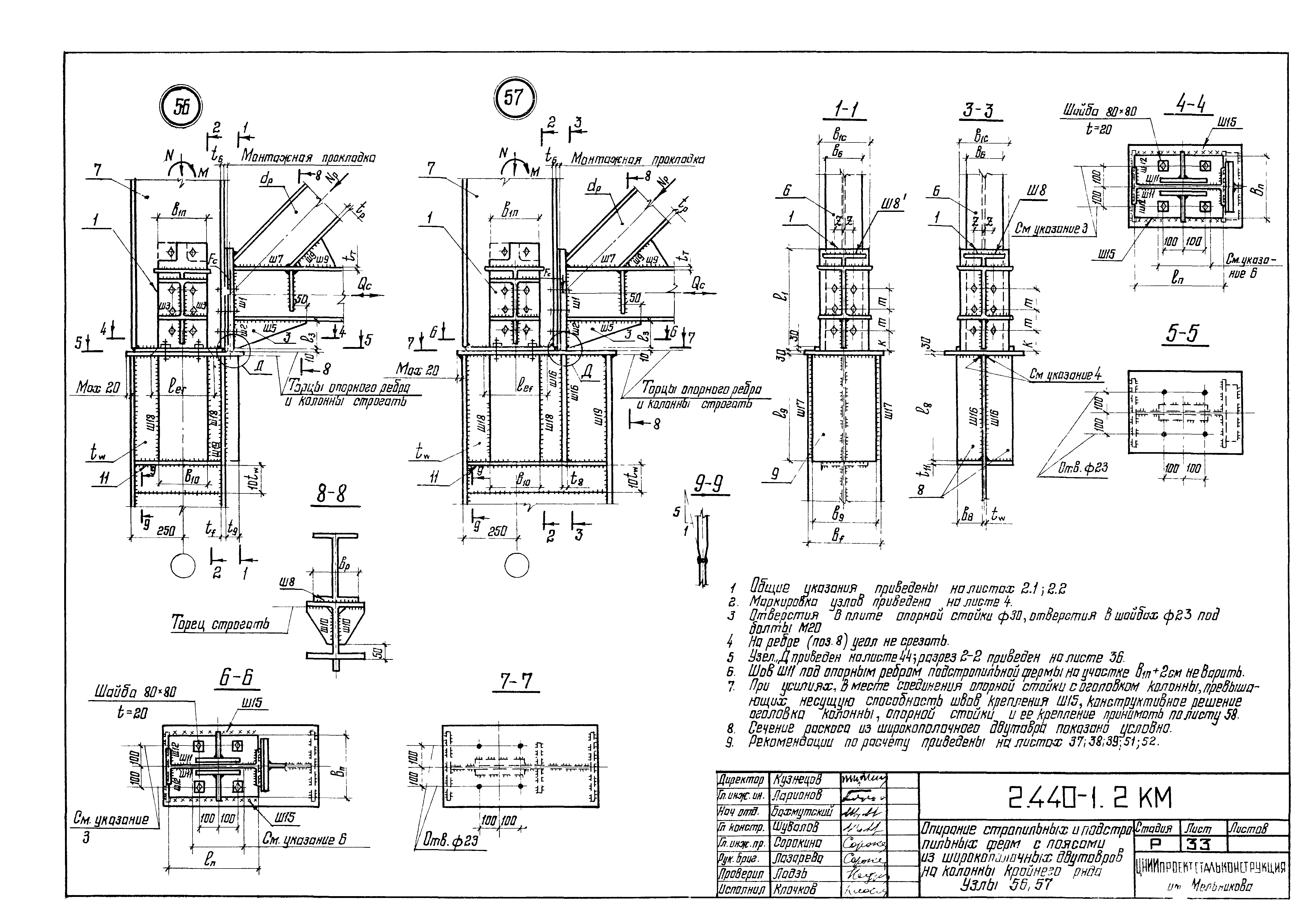
2.440-1.2 КМ л. 33 Опирание стропильных и подстропильных ферм с поясами из широкополочных двутавров на колонны крайнего ряда. Узлы 56; 57
2.440-1.2 КМ л. 34 Опирание стропильной и подстропильной ферм с поясами из широкополочных двутавров на колонну крайнего ряда. Узел 58
2.440-1.2 КМ л. 35 Опирание стропильной и подстропильной ферм с поясами из широкополочных двутавров на колонну среднего ряда. Узел 59
2.440-1.2 КМ л. 36 Опирание стропильной и подстропильной ферм с поясами из широкополочных двутавров на колонну крайнего ряда. Узел 60
2.440-1.2 КМ л. 37 Рекомендации по расчету узлов 51-60 (начало)
2.440-1.2 КМ л. 38 Рекомендации по расчету узлов 51-60 (продолжение)
2.440-1.2 КМ л. 39 Рекомендации по расчету узлов 51-60 (окончание)
2.440-1.2 КМ л. 40 Опирание стропильных ферм с поясами из широкополочных двутавров на подстропильные фермы. Узлы 61; 62
2.440-1.2 КМ л. 41 Опирание стропильных ферм с поясами из широкополочных двутавров на железобетонные колонны. Узлы 63-65
2.440-1.2 КМ л. 42 Опирание стропильных и подстропильных ферм с поясами из широкополочных двутавров на железобетонные колонны. Узлы 66; 67
2.440-1.2 КМ л. 43 Опирание стропильных ферм с поясами из широкополочных тавров на колонны крайнего ряда. Узлы 68; 69
2.440-1.2 КМ л. 44 Опирание стропильной фермы с поясами из широкополочных тавров на колонну крайнего ряда. Узел 70
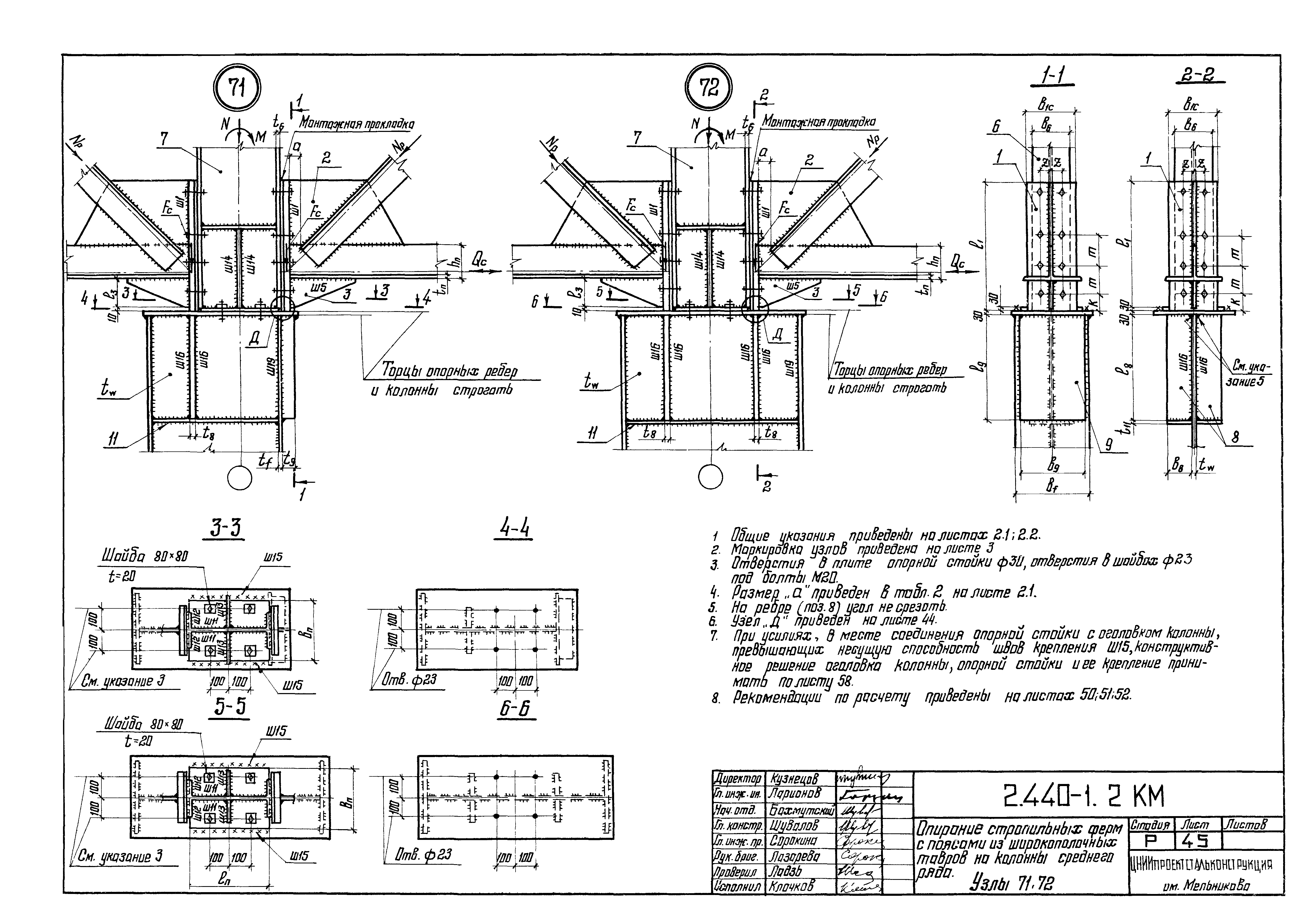
2.440-1.2 КМ л. 45 Опирание стропильных ферм с поясами из широкополочных тавров на колонны среднего ряда. Узлы 71; 72
2.440-1.2 КМ л. 46 Опирание стропильных и подстропильных ферм с поясами из широкополочных тавров на колонны крайнего ряда. Узлы 73; 74
2.440-1.2 КМ л. 47 Опирание стропильной и подстропильной ферм с поясами из широкополочных тавров на колонну крайнего ряда. Узел 75
2.440-1.2 КМ л. 48 Опирание стропильных и подстропильных ферм с поясами из широкополочных тавров на колонну среднего ряда. Узел 76
2.440-1.2 КМ л. 49 Опирание стропильных и подстропильных ферм с поясами из широкополочных тавров на колонну среднего ряда. Узел 77
2.440-1.2 КМ л. 50 Рекомендации по расчету узлов 68-77 (начало)
2.440-1.2 КМ л. 51 Рекомендации по расчету узлов 68-77 (продолжение)
2.440-1.2 КМ л. 52 Рекомендации по расчету узлов 68-77 (окончание)
2.440-1.2 КМ л. 53 Опирание стропильных ферм с поясами из широкополочных тавров на подстропильные фермы. Узлы 78; 79
2.440-1.2 КМ л. 54 Опирание стропильных ферм из парных уголков на подстропильные фермы. Узлы 80; 81
2.440-1.2 КМ л. 55 Рекомендации по расчету узлов 61; 62; 78-81 и болтов для крепления опорной стойки к колонне
2.440-1.2 КМ л. 56 Опирание стропильных ферм с поясами из широкополочных тавров на железобетонные колонны. Узлы 82-84
2.440-1.2 КМ л. 57 Опирание стропильных и подстропильных ферм с поясами из широкополочных тавров на железобетонные колонны. Узлы 85; 86
2.440-1.2 КМ л. 58 Узел опирания стропильных и подстропильных ферм на колонну - вариант 2
2.440-1.2 КМ л. 59 Рамное соединение стропильных ферм с поясами из широкополочных двутавров с колоннами. Узлы 87; 88
2.440-1.2 КМ л. 60 Рамное соединение стропильных ферм с поясами из широкополочных двутавров с колоннами. Узлы 89; 90
2.440-1.2 КМ л. 61 Рамное соединение стропильных ферм с поясами из широкополочных тавров с колоннами. Узлы 91; 92
2.440-1.2 КМ л. 62 Рекомендации по расчету узлов 87-92 (начало)
2.440-1.2 КМ л. 63 Рекомендации по расчету узлов 87-92 (продолжение)
2.440-1.2 КМ л. 64 Рекомендации по расчету узлов 87-92 (окончание)
2.440-1.2 КМ л. 65 Рамное соединение стропильных ферм из парных уголков с колоннами. Узлы 93; 94
2.440-1.2 КМ л. 66 Рекомендации по расчету узлов 93; 94
Разработан: ЦНИИпроектстальконструкция
Утверждён:22.12.1983 Госстрой СССР (Государственный комитет Совета Министров СССР по делам строительства) (USSR Gosstroy 324)
Издан: ЦИТП Госстроя СССР (CITP, Gosstroy (USSR) 1984 г. )
Расположен в:Техническая документация Строительство Справочные документы Типовые строительные конструкции, изделия и узлы Общероссийский строительный каталог Строительные конструкции, изделия и узлы зданий и сооружений для всех видов строительства Конструкции, изделия и узлы зданий Несущие конструкции одноэтажных зданий Узлы и детали сопряжения железобетонных и стальных конструкций
Заменяет собой:
Серия 2.440-1Серия 2.440-1Серия 2.440-1Серия 2.440-1Серия 2.440-1Серия 2.440-1Серия 2.440-1Серия 2.440-1Серия 2.440-1Серия 2.440-1Серия 2.440-1Серия 2.440-1Серия 2.440-1Серия 2.440-1Серия 2.440-1Серия 2.440-1Серия 2.440-1Серия 2.440-1Серия 2.440-1Серия 2.440-1Серия 2.440-1Серия 2.440-1Серия 2.440-1Серия 2.440-1Серия 2.440-1Серия 2.440-1Серия 2.440-1Серия 2.440-1Серия 2.440-1Серия 2.440-1Серия 2.440-1Серия 2.440-1Серия 2.440-1Серия 2.440-1Серия 2.440-1Серия 2.440-1Серия 2.440-1Серия 2.440-1Серия 2.440-1Серия 2.440-1Серия 2.440-1Серия 2.440-1Серия 2.440-1Серия 2.440-1Серия 2.440-1Серия 2.440-1Серия 2.440-1Серия 2.440-1Серия 2.440-1Серия 2.440-1Серия 2.440-1Серия 2.440-1Серия 2.440-1Серия 2.440-1Серия 2.440-1Серия 2.440-1Серия 2.440-1Серия 2.440-1Серия 2.440-1Серия 2.440-1Серия 2.440-1Серия 2.440-1Серия 2.440-1Серия 2.440-1Серия 2.440-1Серия 2.440-1Серия 2.440-1Серия 2.440-1Серия 2.440-1Серия 2.440-1Серия 2.440-1Серия 2.440-1Серия 2.440-1Серия 2.440-1Серия 2.440-1

© 2013 Ёшкин Кот :-) Карта сайта