Информационная система
«Ёшкин Кот»

Скачать базу одним архивом
Скачать обновления
История создания базы
Карта сайта

Скачать КО 06.02.09-02 Кондиционеры

Дата актуализации: 10.08.2017

КО 06.02.09-02

Кондиционеры

Обозначение: КО 06.02.09-02
Обозначение англ: KO 06.02.09-02
Статус:действует
Название рус.:Кондиционеры
Дата добавления в базу:01.09.2013
Дата актуализации:05.05.2017
Дата введения:01.01.2002
Оглавление:1 Кондиционеры автономные типа КА-М
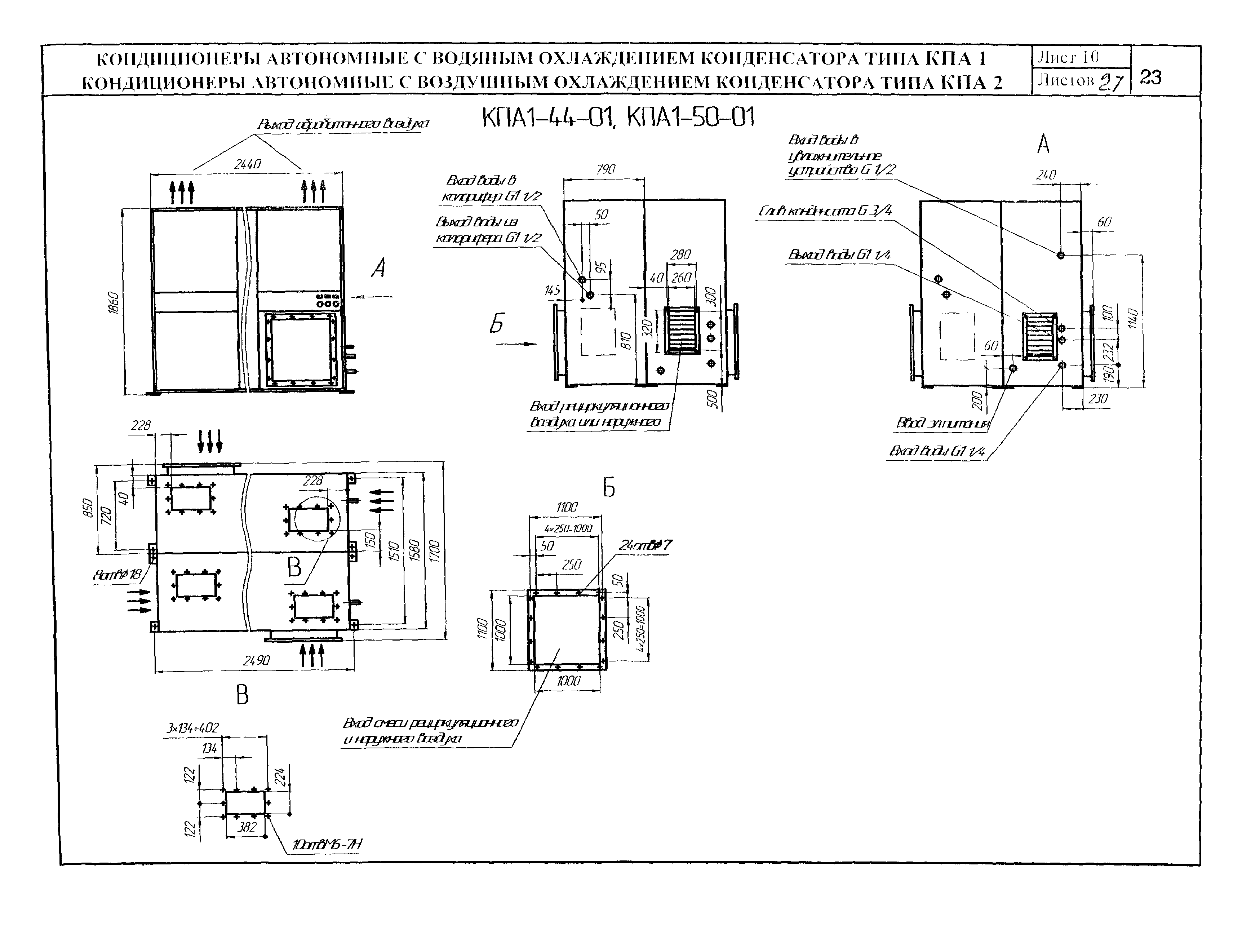
2 Кондиционеры автономные с водяным охлаждением конденсатора типа КПА-1
   Кондиционеры автономные с воздушным охлаждением конденсатора типа КПА-2
3 Кондиционеры автономные презиционные с водяным охлаждением конденсатора типа КАП1
   Кондиционеры автономные презиционные с воздушным охлаждением конденсатора типа КАП2
4 Кондиционеры автономные специального назначения типа КПА1; КСА1; КТА1
5 Кондиционеры медицинские с водяным охлаждением конденсатора типа КМ1
6 Кондиционеры медицинские с воздушным охлаждением конденсатора типа КМ2
7 Кондиционеры медицинские с водяным охлаждением конденсатора типа КМ1, кондиционеры медицинские с воздушным охлаждением конденсатора типа КМ2/ Комплект поставки кондиционеров
8 Кондиционеры вертикальные неавтономные типа КНБ
9 Кондиционер (вентиляторный конвектор) типа КТН-1,6-01А
10 Кондиционеры крановые типа КТ1 и КК2
11 Кондиционеры транспортные типа КТ2 и КТП2
12 Кондиционер транспортный
13 Кондиционеры центральные типа КЦ-М1,5…КЦ-М110
14 Кондиционеры центральные малогабаритные типа КЦМ-М
15 Кондиционеры центральные типа КЦД
16 Кондиционеры компактные панельные типа ККП
17 Кондиционеры центральные каркасно-панельные типа КЦКП
18 Кондиционеры центральные типа КТЦ 3
19 Кондиционеры-теплоутилизаторы типа КТЦ 3
20 Номенклатура центральных кондиционеров и кондиционеров-теплоутилизаторов типа КТЦ 3 базовыми схемами компоновки оборудования
21 Центральные секционные кондиционеры типа КЦС «КУПОЛ»
22 Кондиционеры центральные технологически комфортные типа КЦ-ТК
23 Кондиционеры центральные медицинские типа КЦ-М
24 Кондиционеры канальные типа К
25 Канальные кондиционеры типа ККВ
26 Кондиционеры приточные универсальные типа КПУ
27 Вентиляционно-отопительная установка с утилизацией тепла типа УТ
28 Установка для кондиционирования воздуха типа УКВ-2
29 Тепловентиляторы типа ТВ
30 Фанкойлы типа ФК-М
31 Конвекторы вентиляторные (фанкойлы) типа КВ
32 Кондиционеры бытовые
33 Адреса и телефоны заводов-изготовителей
Разработан: 31 ГПИ специального строительства Минобороны
Координационный центр по ценообразованию и сметному нормированию в строительстве
Утверждён:01.01.2002 31 ГПИ СС Минобороны России
Расположен в:Техническая документация Строительство Справочные документы Каталоги
Заменяет собой:
  • КО 06.02.09-98 «Кондиционеры»
КО 06.02.09-02КО 06.02.09-02КО 06.02.09-02КО 06.02.09-02КО 06.02.09-02КО 06.02.09-02КО 06.02.09-02КО 06.02.09-02КО 06.02.09-02КО 06.02.09-02КО 06.02.09-02КО 06.02.09-02КО 06.02.09-02КО 06.02.09-02КО 06.02.09-02КО 06.02.09-02КО 06.02.09-02КО 06.02.09-02КО 06.02.09-02КО 06.02.09-02КО 06.02.09-02КО 06.02.09-02КО 06.02.09-02КО 06.02.09-02КО 06.02.09-02КО 06.02.09-02КО 06.02.09-02КО 06.02.09-02КО 06.02.09-02КО 06.02.09-02КО 06.02.09-02КО 06.02.09-02КО 06.02.09-02КО 06.02.09-02КО 06.02.09-02КО 06.02.09-02КО 06.02.09-02КО 06.02.09-02КО 06.02.09-02КО 06.02.09-02КО 06.02.09-02КО 06.02.09-02КО 06.02.09-02КО 06.02.09-02КО 06.02.09-02КО 06.02.09-02КО 06.02.09-02КО 06.02.09-02КО 06.02.09-02КО 06.02.09-02КО 06.02.09-02КО 06.02.09-02КО 06.02.09-02КО 06.02.09-02КО 06.02.09-02КО 06.02.09-02КО 06.02.09-02КО 06.02.09-02КО 06.02.09-02КО 06.02.09-02КО 06.02.09-02КО 06.02.09-02КО 06.02.09-02КО 06.02.09-02КО 06.02.09-02КО 06.02.09-02КО 06.02.09-02КО 06.02.09-02КО 06.02.09-02КО 06.02.09-02КО 06.02.09-02КО 06.02.09-02КО 06.02.09-02КО 06.02.09-02КО 06.02.09-02КО 06.02.09-02КО 06.02.09-02КО 06.02.09-02КО 06.02.09-02КО 06.02.09-02КО 06.02.09-02КО 06.02.09-02КО 06.02.09-02КО 06.02.09-02КО 06.02.09-02КО 06.02.09-02КО 06.02.09-02КО 06.02.09-02КО 06.02.09-02КО 06.02.09-02КО 06.02.09-02КО 06.02.09-02КО 06.02.09-02КО 06.02.09-02КО 06.02.09-02КО 06.02.09-02КО 06.02.09-02КО 06.02.09-02КО 06.02.09-02КО 06.02.09-02КО 06.02.09-02КО 06.02.09-02КО 06.02.09-02КО 06.02.09-02КО 06.02.09-02КО 06.02.09-02КО 06.02.09-02КО 06.02.09-02КО 06.02.09-02КО 06.02.09-02КО 06.02.09-02КО 06.02.09-02КО 06.02.09-02КО 06.02.09-02КО 06.02.09-02КО 06.02.09-02КО 06.02.09-02КО 06.02.09-02КО 06.02.09-02КО 06.02.09-02КО 06.02.09-02КО 06.02.09-02КО 06.02.09-02КО 06.02.09-02КО 06.02.09-02КО 06.02.09-02КО 06.02.09-02КО 06.02.09-02КО 06.02.09-02КО 06.02.09-02КО 06.02.09-02КО 06.02.09-02КО 06.02.09-02КО 06.02.09-02КО 06.02.09-02КО 06.02.09-02КО 06.02.09-02

© 2013 Ёшкин Кот :-) Карта сайта