Информационная система
«Ёшкин Кот»

Скачать базу одним архивом
Скачать обновления
История создания базы
Карта сайта

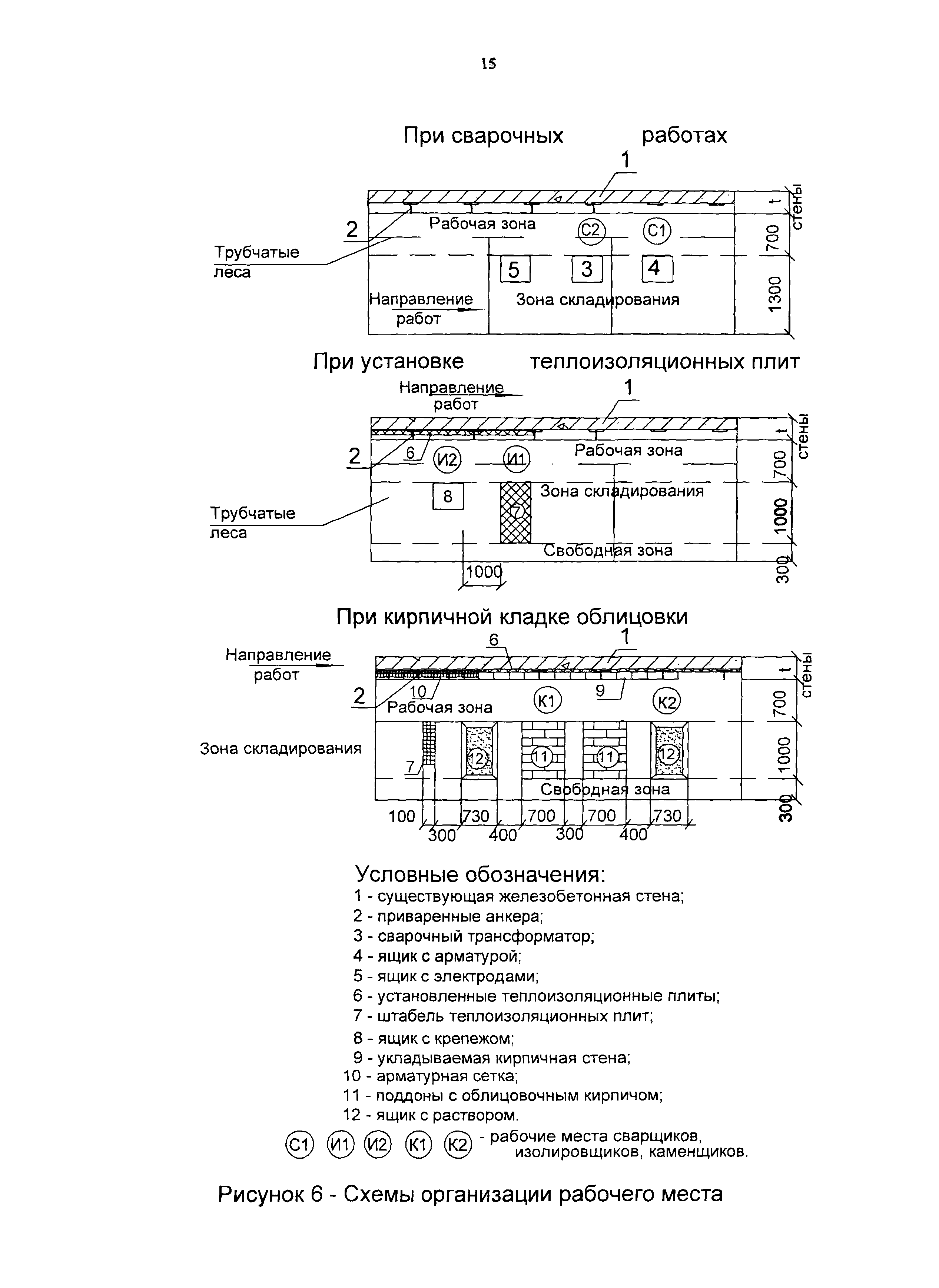
Скачать Технологическая карта 7350 ТК Технологическая карта на облицовку фасада монолитных железобетонных зданий кирпичом с применением утеплителя

Дата актуализации: 10.08.2017

Технологическая карта 7350 ТК

Технологическая карта на облицовку фасада монолитных железобетонных зданий кирпичом с применением утеплителя

Обозначение: Технологическая карта 7350 ТК
Обозначение англ: 7350 ТК
Статус:не установлен срок действия
Название рус.:Технологическая карта на облицовку фасада монолитных железобетонных зданий кирпичом с применением утеплителя
Дата добавления в базу:01.09.2013
Дата актуализации:05.05.2017
Дата введения:27.01.2000
Область применения:Технологическая карта разработана на облицовку фасадов монолитных железобетонных зданий кирпичом с устройством промежуточного слоя из плитного утеплителя при строительстве жилых, гражданских и общественных зданий.
Оглавление:1 Область применения
2 Организация и технология строительного процесса
3 Требования к качеству и приемке работ
4 Требования техники безопасности и охраны труда, экологической и пожарной безопасности
5 Потребность в материально-технических ресурсах
6 Технико-экономические показатели
7 Перечень литературы
Разработан: ОАО ПКТИпромстрой
Утверждён:27.01.2000 ОАО ПКТИпромстрой (PKTIpromstroy OAO )
Расположен в:Техническая документация Экология СТРОИТЕЛЬНЫЕ МАТЕРИАЛЫ И СТРОИТЕЛЬСТВО Технология строительства Организация и порядок производства работ. Управление качеством и обеспечение качества Строительство Справочные документы Технологические карты Отделочные работы
Нормативные ссылки:
Технологическая карта 7350 ТКТехнологическая карта 7350 ТКТехнологическая карта 7350 ТКТехнологическая карта 7350 ТКТехнологическая карта 7350 ТКТехнологическая карта 7350 ТКТехнологическая карта 7350 ТКТехнологическая карта 7350 ТКТехнологическая карта 7350 ТКТехнологическая карта 7350 ТКТехнологическая карта 7350 ТКТехнологическая карта 7350 ТКТехнологическая карта 7350 ТКТехнологическая карта 7350 ТКТехнологическая карта 7350 ТКТехнологическая карта 7350 ТКТехнологическая карта 7350 ТКТехнологическая карта 7350 ТКТехнологическая карта 7350 ТКТехнологическая карта 7350 ТКТехнологическая карта 7350 ТКТехнологическая карта 7350 ТКТехнологическая карта 7350 ТКТехнологическая карта 7350 ТКТехнологическая карта 7350 ТКТехнологическая карта 7350 ТКТехнологическая карта 7350 ТКТехнологическая карта 7350 ТКТехнологическая карта 7350 ТКТехнологическая карта 7350 ТКТехнологическая карта 7350 ТК

© 2013 Ёшкин Кот :-) Карта сайта