Информационная система
«Ёшкин Кот»

Скачать базу одним архивом
Скачать обновления
История создания базы
Карта сайта

Скачать Технологическая карта 74-04 ТК Технологическая карта на устройство строительных хомутовых лесов с земли для отделочных работ по фасаду здания

Дата актуализации: 10.08.2017

Технологическая карта 74-04 ТК

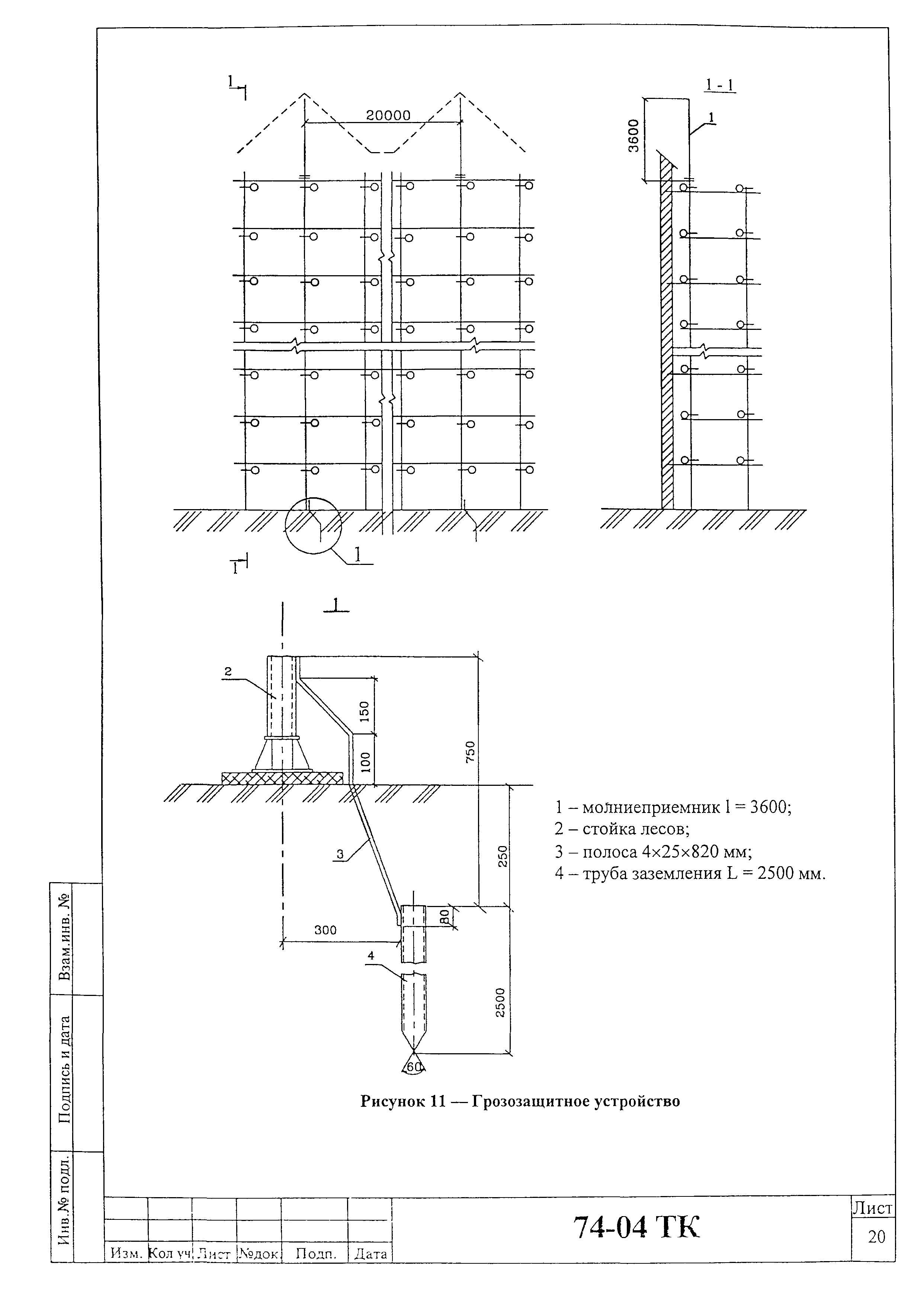
Технологическая карта на устройство строительных хомутовых лесов с земли для отделочных работ по фасаду здания

Обозначение: Технологическая карта 74-04 ТК
Обозначение англ: 74-04 ТК
Статус:не установлен срок действия
Название рус.:Технологическая карта на устройство строительных хомутовых лесов с земли для отделочных работ по фасаду здания
Дата добавления в базу:01.09.2013
Дата актуализации:05.05.2017
Дата введения:18.06.2004
Область применения:Настоящая технологическая карта предназначена для применения при устройстве строительных лесов стоечных приставных хомутовых, предназначенных для производства отделочных и ремонтных работ на фасадах зданий высотой до 40 м, а также для оштукатуривания зданий, в т.ч. и для зданий сложной конфигурации как в плане, так и по высоте, а также при наклонных основаниях.
Оглавление:1 Область применения
2 Организация и технология строительного процесса
3 Требования к качеству и приемке лесов
4 Требования безопасности и охраны труда, экологической и пожарной безопасности
5 Потребность в материально-технических ресурсах
6 Технико-экономические показатели
7 Список используемой нормативно-технической литературы
Разработан: ОАО ПКТИпромстрой
Утверждён:18.06.2004 ОАО ПКТИпромстрой (PKTIpromstroy OAO )
Расположен в:Техническая документация Экология СТРОИТЕЛЬНЫЕ МАТЕРИАЛЫ И СТРОИТЕЛЬСТВО Технология строительства Организация и порядок производства работ. Управление качеством и обеспечение качества Строительство Справочные документы Технологические карты Отделочные работы
Нормативные ссылки:
Технологическая карта 74-04 ТКТехнологическая карта 74-04 ТКТехнологическая карта 74-04 ТКТехнологическая карта 74-04 ТКТехнологическая карта 74-04 ТКТехнологическая карта 74-04 ТКТехнологическая карта 74-04 ТКТехнологическая карта 74-04 ТКТехнологическая карта 74-04 ТКТехнологическая карта 74-04 ТКТехнологическая карта 74-04 ТКТехнологическая карта 74-04 ТКТехнологическая карта 74-04 ТКТехнологическая карта 74-04 ТКТехнологическая карта 74-04 ТКТехнологическая карта 74-04 ТКТехнологическая карта 74-04 ТКТехнологическая карта 74-04 ТКТехнологическая карта 74-04 ТКТехнологическая карта 74-04 ТКТехнологическая карта 74-04 ТКТехнологическая карта 74-04 ТКТехнологическая карта 74-04 ТКТехнологическая карта 74-04 ТКТехнологическая карта 74-04 ТКТехнологическая карта 74-04 ТКТехнологическая карта 74-04 ТКТехнологическая карта 74-04 ТКТехнологическая карта 74-04 ТКТехнологическая карта 74-04 ТКТехнологическая карта 74-04 ТКТехнологическая карта 74-04 ТКТехнологическая карта 74-04 ТКТехнологическая карта 74-04 ТКТехнологическая карта 74-04 ТКТехнологическая карта 74-04 ТКТехнологическая карта 74-04 ТКТехнологическая карта 74-04 ТКТехнологическая карта 74-04 ТКТехнологическая карта 74-04 ТКТехнологическая карта 74-04 ТКТехнологическая карта 74-04 ТКТехнологическая карта 74-04 ТКТехнологическая карта 74-04 ТК

© 2013 Ёшкин Кот :-) Карта сайта