Информационная система
«Ёшкин Кот»

Скачать базу одним архивом
Скачать обновления
История создания базы
Карта сайта

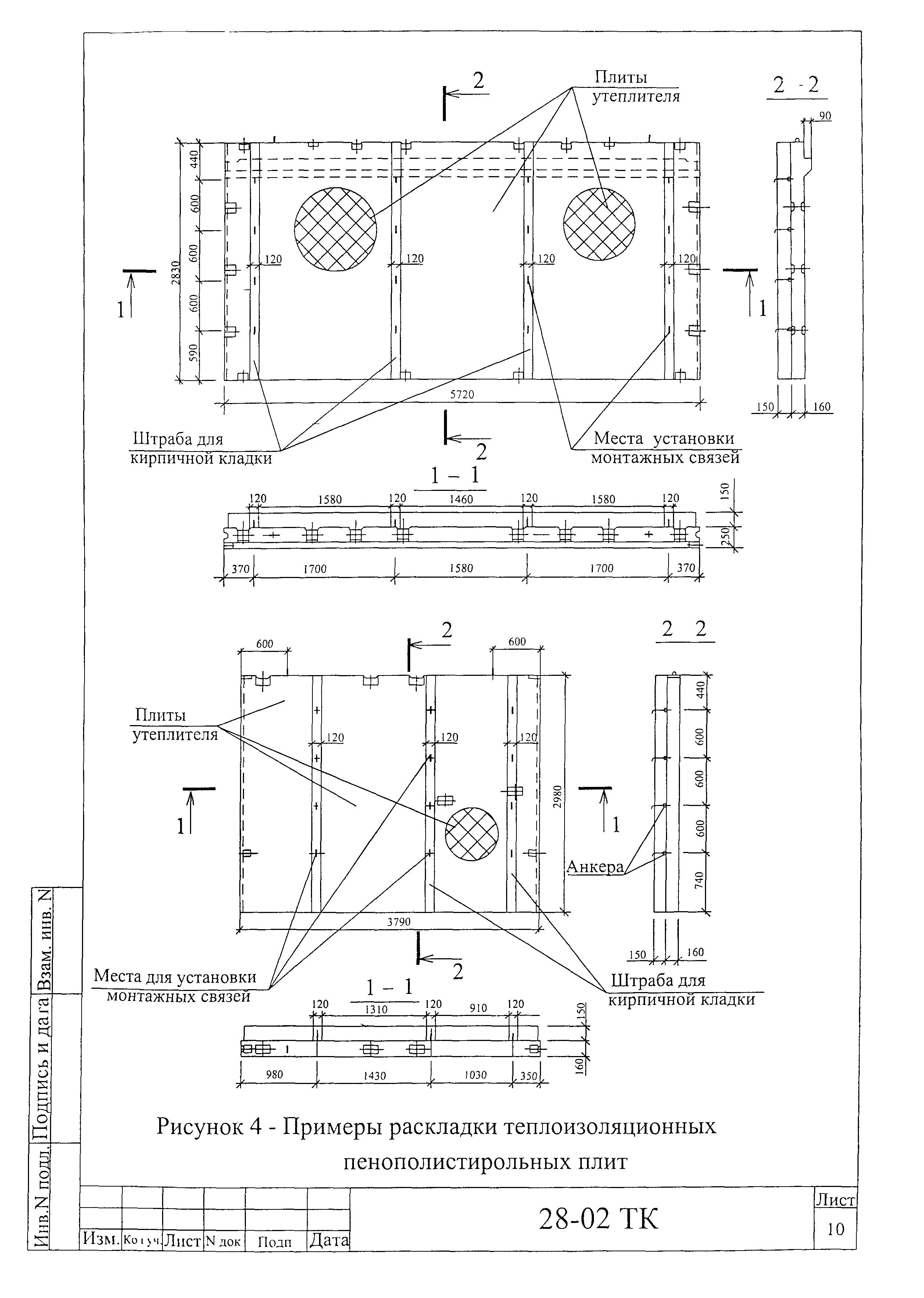
Скачать Технологическая карта 28-02 ТК Технологическая карта на облицовку кирпичом вентилируемых фасадов из сборных железобетонных плит с прокладкой утеплителя

Дата актуализации: 10.08.2017

Технологическая карта 28-02 ТК

Технологическая карта на облицовку кирпичом вентилируемых фасадов из сборных железобетонных плит с прокладкой утеплителя

Обозначение: Технологическая карта 28-02 ТК
Обозначение англ: 28-02 ТК
Статус:не установлен срок действия
Название рус.:Технологическая карта на облицовку кирпичом вентилируемых фасадов из сборных железобетонных плит с прокладкой утеплителя
Дата добавления в базу:01.09.2013
Дата актуализации:05.05.2017
Дата введения:18.10.2002
Область применения:Технологическая карта разработана на облицовку кирпичом вентилируемых фасадов с прокладкой утеплителя. В качестве ограждающих конструкций приняты стены из сборных железобетонных плит.
Оглавление:1 Область применения
2 Организация и технология строительного процесса
3 Требования к качеству и приемке работ
4 Требования техники безопасности и охраны труда, экологической и пожарной безопасности
5 Потребность в материально-технических ресурсах
6 Технико-экономические показатели
7 Перечень использованной научно-технологической литературы
Разработан: ОАО ПКТИпромстрой
Утверждён:18.10.2002 ОАО ПКТИпромстрой (PKTIpromstroy OAO )
Расположен в:Техническая документация Экология СТРОИТЕЛЬНЫЕ МАТЕРИАЛЫ И СТРОИТЕЛЬСТВО Технология строительства Организация и порядок производства работ. Управление качеством и обеспечение качества Строительство Справочные документы Технологические карты Конструкции из кирпича и блоков
Нормативные ссылки:
Технологическая карта 28-02 ТКТехнологическая карта 28-02 ТКТехнологическая карта 28-02 ТКТехнологическая карта 28-02 ТКТехнологическая карта 28-02 ТКТехнологическая карта 28-02 ТКТехнологическая карта 28-02 ТКТехнологическая карта 28-02 ТКТехнологическая карта 28-02 ТКТехнологическая карта 28-02 ТКТехнологическая карта 28-02 ТКТехнологическая карта 28-02 ТКТехнологическая карта 28-02 ТКТехнологическая карта 28-02 ТКТехнологическая карта 28-02 ТКТехнологическая карта 28-02 ТКТехнологическая карта 28-02 ТКТехнологическая карта 28-02 ТКТехнологическая карта 28-02 ТКТехнологическая карта 28-02 ТКТехнологическая карта 28-02 ТКТехнологическая карта 28-02 ТКТехнологическая карта 28-02 ТКТехнологическая карта 28-02 ТКТехнологическая карта 28-02 ТКТехнологическая карта 28-02 ТКТехнологическая карта 28-02 ТКТехнологическая карта 28-02 ТКТехнологическая карта 28-02 ТКТехнологическая карта 28-02 ТКТехнологическая карта 28-02 ТКТехнологическая карта 28-02 ТКТехнологическая карта 28-02 ТКТехнологическая карта 28-02 ТКТехнологическая карта 28-02 ТКТехнологическая карта 28-02 ТК

© 2013 Ёшкин Кот :-) Карта сайта