Информационная система
«Ёшкин Кот»

Скачать базу одним архивом
Скачать обновления
История создания базы
Карта сайта

Скачать Технологическая карта 3.01.01.03 Типовая технологическая карта на каменные работы. Кирпичная кладка наружных стен

Дата актуализации: 10.08.2017

Технологическая карта 3.01.01.03

Типовая технологическая карта на каменные работы. Кирпичная кладка наружных стен

Обозначение: Технологическая карта 3.01.01.03
Обозначение англ: 3.01.01.03
Статус:не установлен срок действия
Название рус.:Типовая технологическая карта на каменные работы. Кирпичная кладка наружных стен
Дата добавления в базу:01.09.2013
Дата актуализации:05.05.2017
Дата введения:01.02.1989
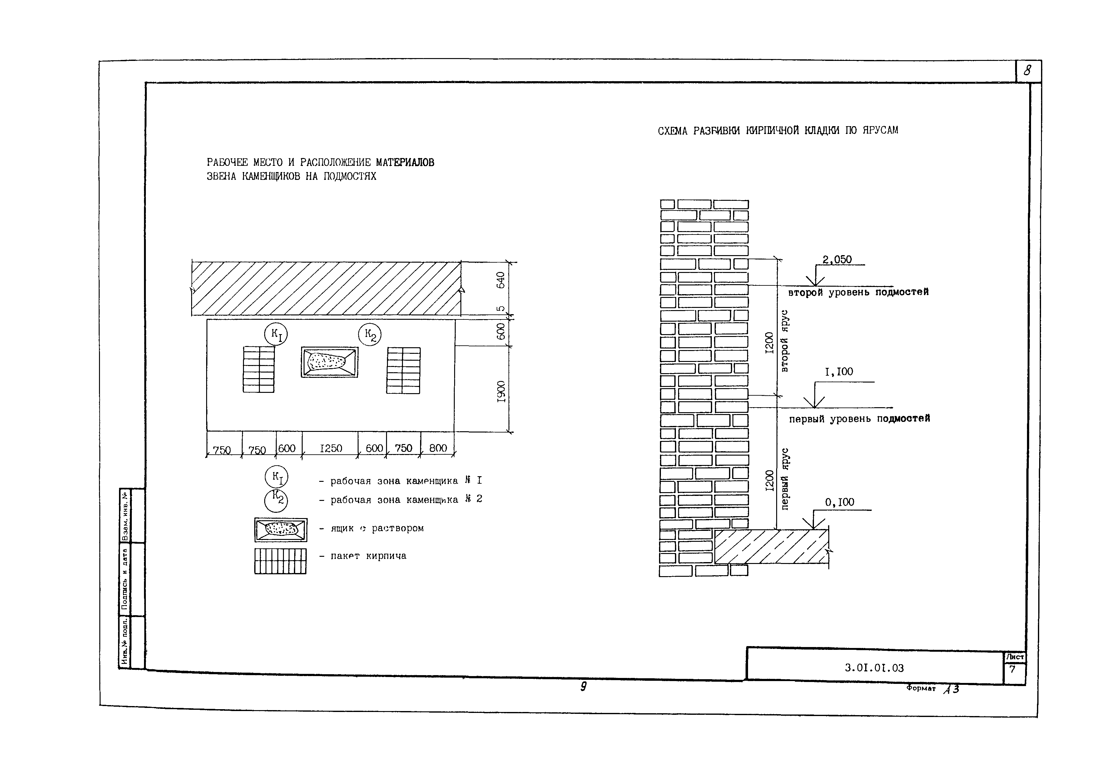
Область применения:Карта разработана на кладку простых наружных стен из кирпича с расшивкой швов типового этажа жилого дома серии 1-447С-34.
Оглавление:1 Область применения
2 Организация и технология выполнения работ
3 Требования к качеству и приемке работ
4 Калькуляция затрат труда, машинного времени, заработной платы на возведение наружных стен типового этажа
5 График производства работ на возведение типового этажа
6 Материально-технические ресурсы
7 Техника безопасности
8 Технико-экономические показатели на типовой этаж кирпичной кладки
9 Фасетный классификатор факторов
Разработан: ПТИ Минсевзапстроя СССР
Утверждён:27.12.1988 Госстрой СССР (Государственный комитет Совета Министров СССР по делам строительства) (USSR Gosstroy 23-737)
Издан: ЦНИИОМТП (1989 г. )
Расположен в:Техническая документация Экология СТРОИТЕЛЬНЫЕ МАТЕРИАЛЫ И СТРОИТЕЛЬСТВО Технология строительства Организация и порядок производства работ. Управление качеством и обеспечение качества Строительство Справочные документы Технологические карты Конструкции из кирпича и блоков
Технологическая карта 3.01.01.03Технологическая карта 3.01.01.03Технологическая карта 3.01.01.03Технологическая карта 3.01.01.03Технологическая карта 3.01.01.03Технологическая карта 3.01.01.03Технологическая карта 3.01.01.03Технологическая карта 3.01.01.03Технологическая карта 3.01.01.03Технологическая карта 3.01.01.03Технологическая карта 3.01.01.03Технологическая карта 3.01.01.03Технологическая карта 3.01.01.03Технологическая карта 3.01.01.03Технологическая карта 3.01.01.03Технологическая карта 3.01.01.03Технологическая карта 3.01.01.03Технологическая карта 3.01.01.03Технологическая карта 3.01.01.03

© 2013 Ёшкин Кот :-) Карта сайта