Информационная система
«Ёшкин Кот»

Скачать базу одним архивом
Скачать обновления
История создания базы
Карта сайта

Скачать Технологическая карта Устройство сборной железобетонной прямоугольной трубы сечением 4х2,5 м под автомобильную дорогу

Дата актуализации: 10.08.2017

Технологическая карта

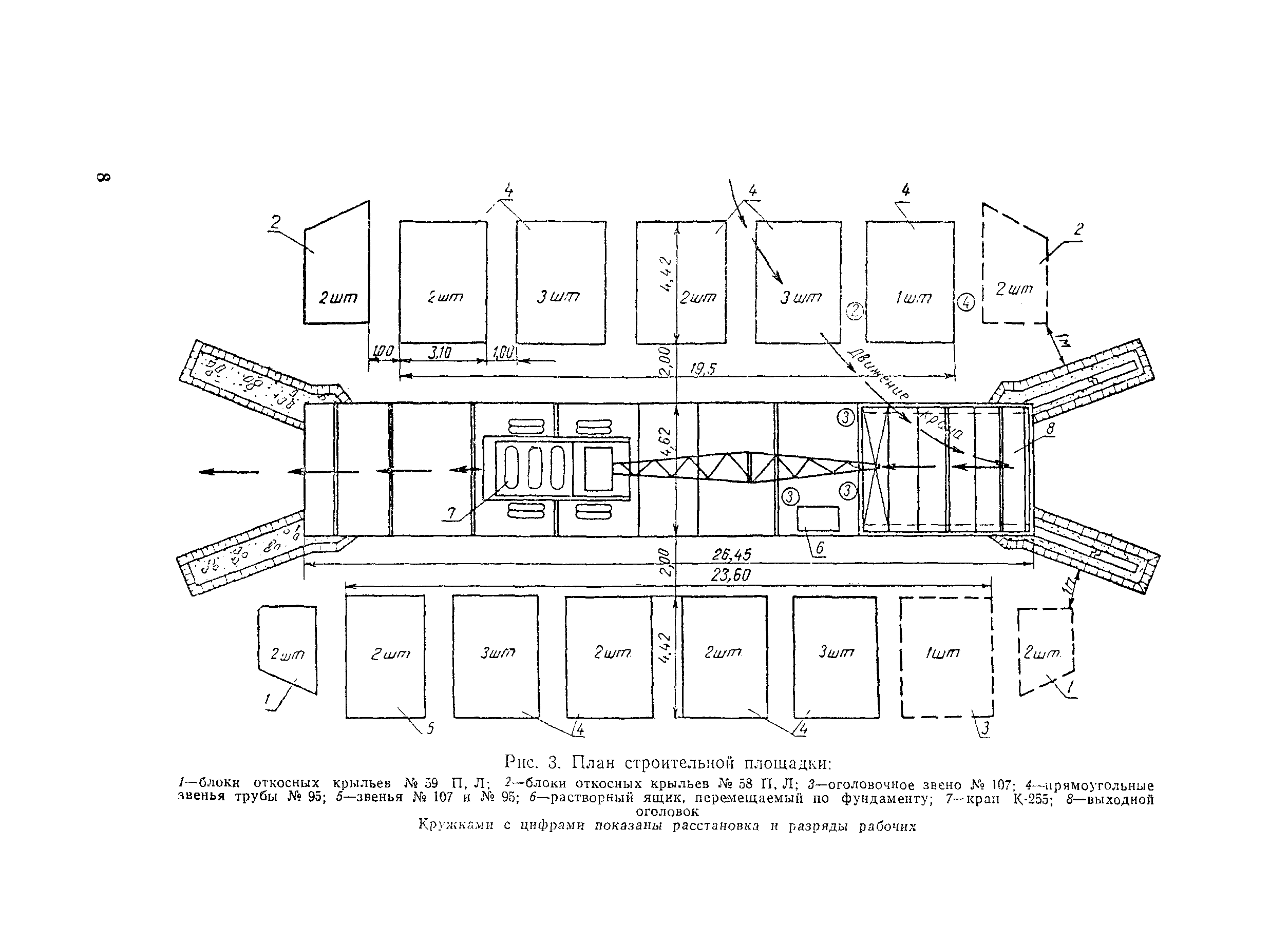
Устройство сборной железобетонной прямоугольной трубы сечением 4х2,5 м под автомобильную дорогу

Обозначение: Технологическая карта
Статус:не установлен срок действия
Название рус.:Устройство сборной железобетонной прямоугольной трубы сечением 4х2,5 м под автомобильную дорогу
Дата добавления в базу:01.09.2013
Дата актуализации:05.05.2017
Дата введения:29.06.1973
Область применения:Предназначена для использования при составлении проекта производства работ и организации труда на объекте.
Оглавление:I Область применения
II Указания по технологии производственного процесса
III Указания по организации труда
IV График сооружения сборной железобетонной прямоугольной трубы сечением 4х2,5 м, длиной 34,11 м
V Калькуляция затрат труда на сооружение сборной железобетонной прямоугольной трубы сечением 4х2,5 м, длиной 34,11 м
VI Основные технико-экономические показатели
VII Материально-технические ресурсы
Разработан: Оргтрансстрой
Утверждён:29.06.1973 Оргтрансстрой
Издан: Оргтрансстрой (1973 г. )
Расположен в:Техническая документация Экология ГРАЖДАНСКОЕ СТРОИТЕЛЬСТВО Строительство дорог Сооружение дорог Строительство Справочные документы Технологические карты Мосты и трубы Национальные стандарты Проектирование, строительство, ремонт и содержание автомобильных дорог Организация строительства
Список изменений:
Нормативные ссылки:
Технологическая карта Технологическая карта Технологическая карта Технологическая карта Технологическая карта Технологическая карта Технологическая карта Технологическая карта Технологическая карта Технологическая карта Технологическая карта Технологическая карта Технологическая карта Технологическая карта Технологическая карта Технологическая карта Технологическая карта Технологическая карта Технологическая карта Технологическая карта Технологическая карта Технологическая карта Технологическая карта Технологическая карта Технологическая карта Технологическая карта Технологическая карта Технологическая карта Технологическая карта Технологическая карта Технологическая карта Технологическая карта Технологическая карта Технологическая карта Технологическая карта Технологическая карта Технологическая карта Технологическая карта Технологическая карта

© 2013 Ёшкин Кот :-) Карта сайта