Информационная система
«Ёшкин Кот»

Скачать базу одним архивом
Скачать обновления
История создания базы
Карта сайта

Скачать Технологическая карта Технологическая карта на монтаж металлоконструкций АТС методом дуговой сварки

Дата актуализации: 10.08.2017

Технологическая карта

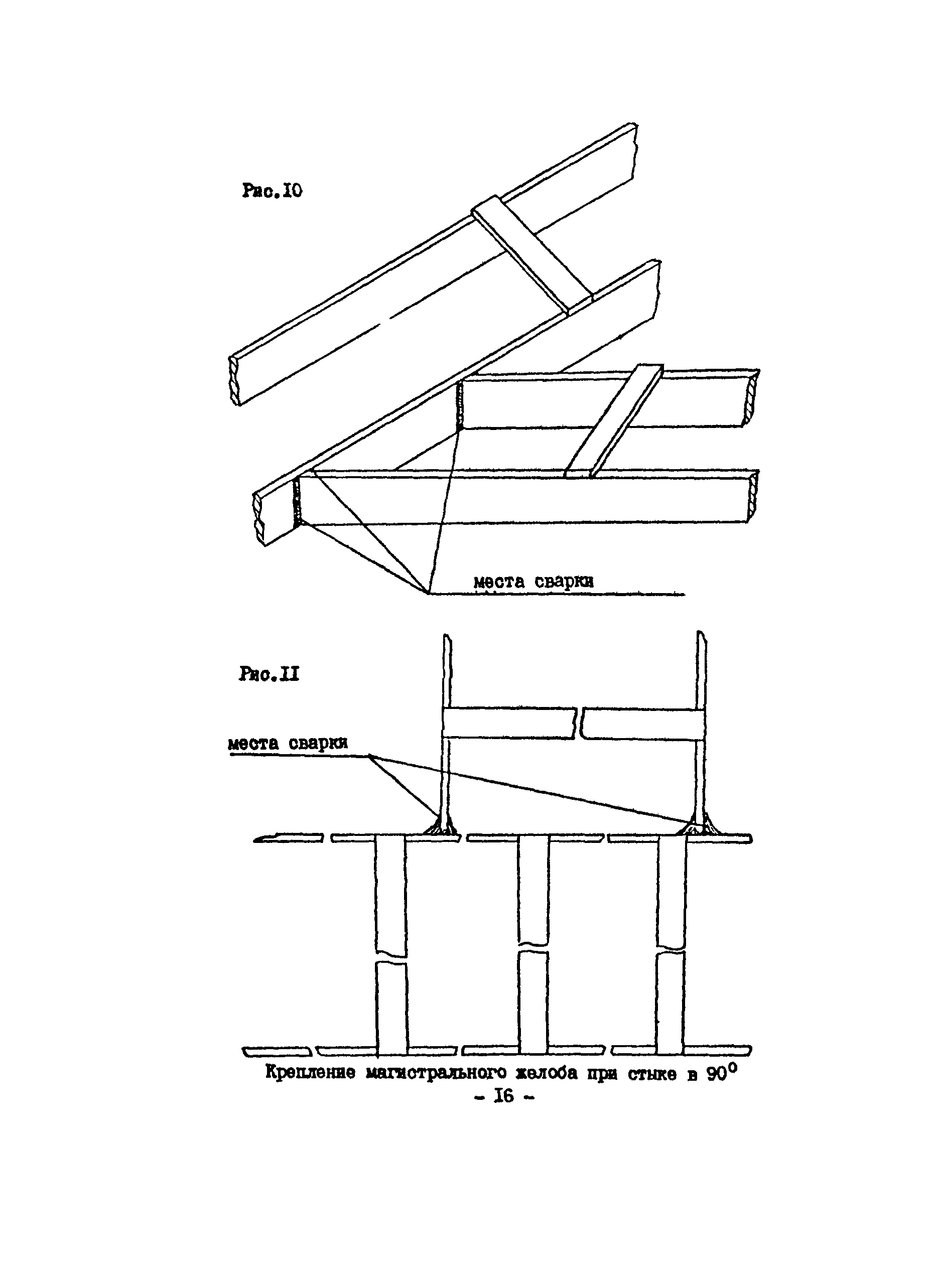
Технологическая карта на монтаж металлоконструкций АТС методом дуговой сварки

Обозначение: Технологическая карта
Статус:не установлен срок действия
Название рус.:Технологическая карта на монтаж металлоконструкций АТС методом дуговой сварки
Дата добавления в базу:01.09.2013
Дата актуализации:05.05.2017
Дата введения:27.03.1989
Область применения:Технологическая карта разработана на монтаж металлоконструкций АТС методой дуговой сварки с применением сварочного оборудования и приспособления. Технологическая карта может применяться в качестве руководства для технологически правильного выполнения работ при сварке узлов и деталей различных назначений в автозале, кроссе, шахте и электропитающих установках.
Оглавление:1 Область применения
2 Организация и технология выполнения работ
   2.1 Подготовительные работы
   2.2 Общие сведения о сварочных соединениях
   2.3 Последовательность и методы выполнения работ
   2.4 Меры безопасности при выполнении сварочных работ
   2.5 Численно-квалификационный состав исполнителей
   2.6 Калькуляция трудовых затрат
   2.7 Схема операционного контроля качества
3 Технико-экономические показатели
4 Материально-технические ресурсы
Разработан: СКТБ строительной техники связи
Утверждён:27.03.1989 ГРСС
Расположен в:Техническая документация Экология СТРОИТЕЛЬНЫЕ МАТЕРИАЛЫ И СТРОИТЕЛЬСТВО Технология строительства Организация и порядок производства работ. Управление качеством и обеспечение качества Строительство Справочные документы Технологические карты Металлические конструкции
Нормативные ссылки:
Технологическая карта Технологическая карта Технологическая карта Технологическая карта Технологическая карта Технологическая карта Технологическая карта Технологическая карта Технологическая карта Технологическая карта Технологическая карта Технологическая карта Технологическая карта Технологическая карта Технологическая карта Технологическая карта Технологическая карта Технологическая карта Технологическая карта Технологическая карта Технологическая карта Технологическая карта Технологическая карта Технологическая карта Технологическая карта Технологическая карта Технологическая карта Технологическая карта Технологическая карта Технологическая карта Технологическая карта Технологическая карта Технологическая карта

© 2013 Ёшкин Кот :-) Карта сайта