Информационная система
«Ёшкин Кот»

Скачать базу одним архивом
Скачать обновления
История создания базы
Карта сайта

Скачать Технологическая карта Технологическая карта на монтаж и демонтаж опалубки стен и перекрытий

Дата актуализации: 10.08.2017

Технологическая карта

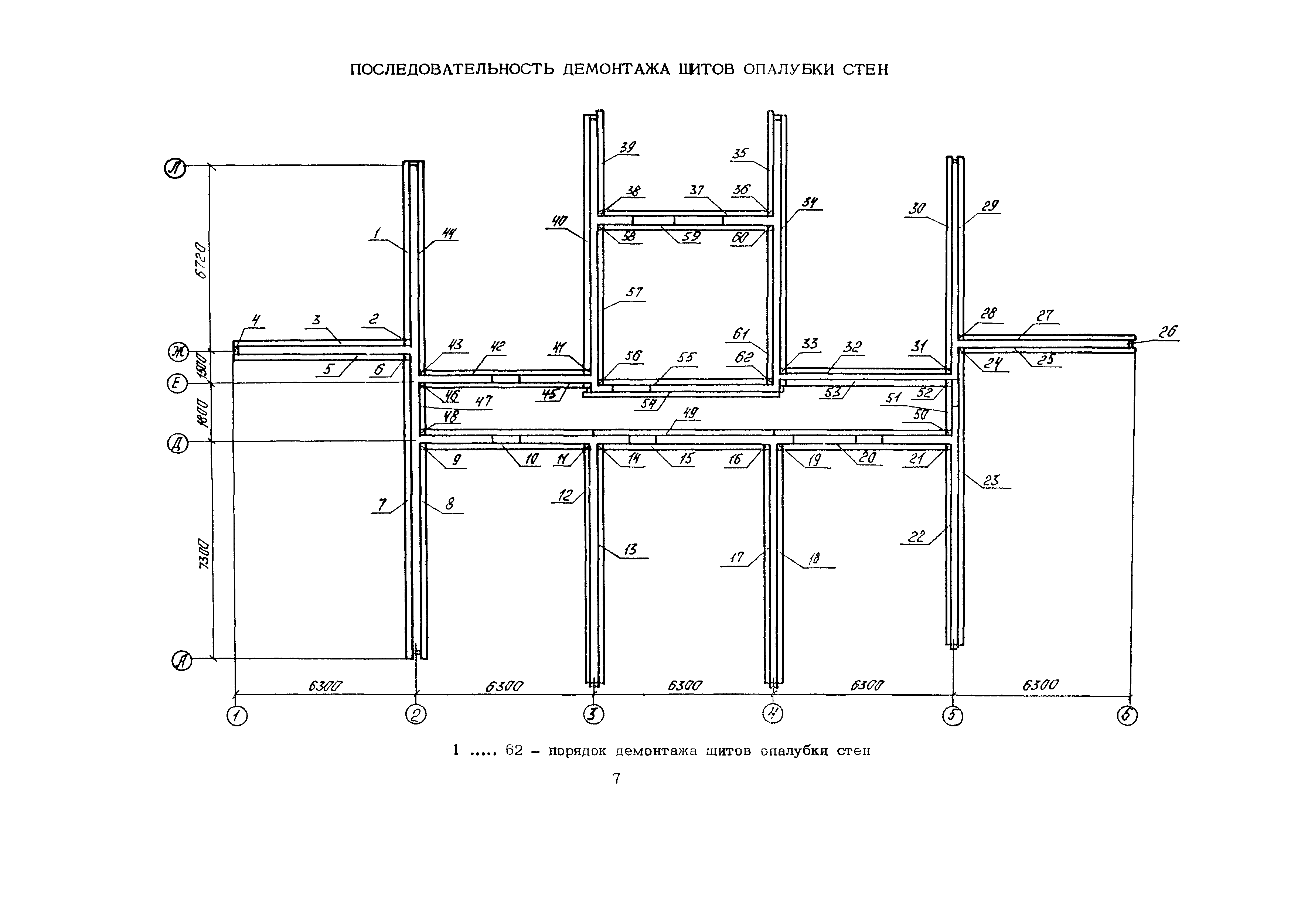
Технологическая карта на монтаж и демонтаж опалубки стен и перекрытий

Обозначение: Технологическая карта
Статус:не установлен срок действия
Название рус.:Технологическая карта на монтаж и демонтаж опалубки стен и перекрытий
Дата добавления в базу:01.09.2013
Дата актуализации:05.05.2017
Дата введения:01.01.1988
Область применения:Предназначена для определения технико-экономических показателей возведения монолитных конструкций на стадии проектирования, а также для сравнительной технико-экономической оценки конструктивных и технологических решений жилых зданий в обычных условиях строительства.
Оглавление:1 Область применения
2 Организация и технология строительного процесса
3 Технико-экономические показатели на 1 м2 поверхности опалубливаемой конструкции
4 Материально-технические ресурсы
Разработан: ЦНИИОМТП
Утверждён:01.01.1988 ЦНИИОМТП (TsNIIOMTP )
Издан: ЦНИИОМТП (1988 г. )
Расположен в:Техническая документация Экология СТРОИТЕЛЬНЫЕ МАТЕРИАЛЫ И СТРОИТЕЛЬСТВО Технология строительства Технология строительства, прочие аспекты Строительство Справочные документы Технологические карты Устройство бетонных и железобетонных конструкций монолитных
Нормативные ссылки:
Технологическая карта Технологическая карта Технологическая карта Технологическая карта Технологическая карта Технологическая карта Технологическая карта Технологическая карта Технологическая карта Технологическая карта Технологическая карта Технологическая карта Технологическая карта Технологическая карта Технологическая карта Технологическая карта Технологическая карта Технологическая карта Технологическая карта Технологическая карта Технологическая карта Технологическая карта

© 2013 Ёшкин Кот :-) Карта сайта