| ||||||||||||||||||||||||||||||||||
Скачать НП 043-03 Требования к устройству и безопасной эксплуатации грузоподъемных кранов для объектов использования атомной энергииДата актуализации: 10.08.2017
|
| Обозначение: | НП 043-03 |
| Обозначение англ: | NP 043-03 |
| Статус: | заменен |
| Название рус.: | Требования к устройству и безопасной эксплуатации грузоподъемных кранов для объектов использования атомной энергии |
| Дата добавления в базу: | 01.09.2013 |
| Дата актуализации: | 05.05.2017 |
| Дата введения: | 16.08.2013 |
| Область применения: | Устанавливают классификацию кранов объектов использования атомной энергии, технические и оргнанизационные требования, вытекающие из особенностей объектов использования атомной энергии, как возможных источников радиационного воздействия на работников (персонал), население и окружающую среду, и направленные на обеспечение ядерной и радиационной безопасности объектов использования атомной энергии, которые должны выполняться при конструировании (проектировании), изготовлении и эксплуатации кранов. |
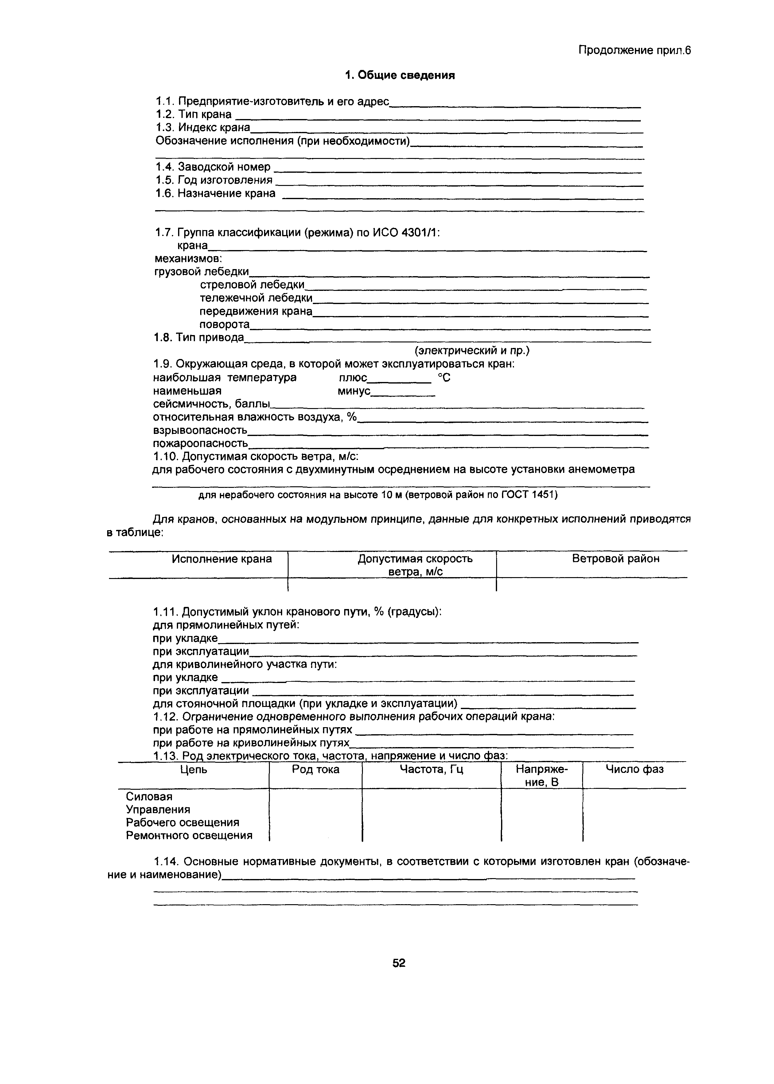
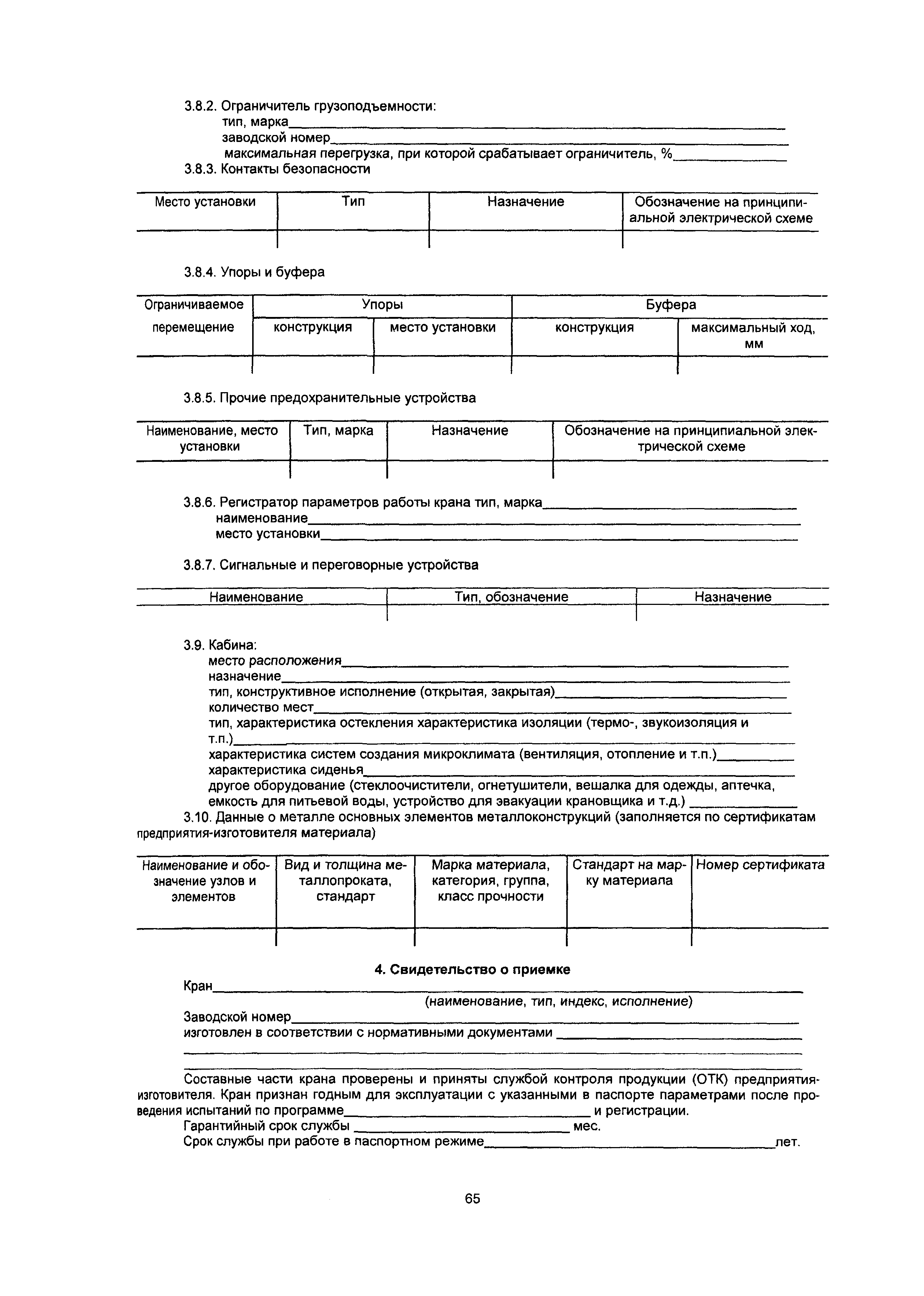
| Оглавление: | Термины и определения 1 Назначение и область применения 2 Общие требования к кранам ОИАЭ 3 Требования к устройству специальных кранов ОИАЭ группы В 4 Требования к устройству специальных кранов ОИАЭ группы Б 5 Требования к устройству специальных кранов ОИАЭ группы А 6 Основные требования к сейсмостойкости специальных кранов ОИАЭ 7 Требования к испытаниям специальных кранов ОИАЭ групп А и Б 8 Эксплуатация кранов ОИАЭ Приложение 2 Термины и определения Приложение 4 Определение группы классификации (режима) кранов и механизмов в целом Приложение 6 Паспорт башенного крана Приложение 7 Паспорт кранов мостового типа Приложение 8 Паспорт электрической тали Приложение 9 Паспорт стропа Приложение 10 Предельные величины отклонений кранового пути от проектного положения в плане и профиле Приложение 11 Критерии браковки кранового пути Приложение 12 Акт сдачи-приемки кранового пути в эксплуатацию Приложение 13 Нормы браковки канатов грузоподъемных кранов Приложение 14 Предельные нормы браковки элементов грузоподъемных машин Приложение 15 Нормы браковки грузозахватных приспособлений Приложение 16 Удостоверение о проверке знаний обслуживающего персонала Приложение 17 Вахтенный журнал крановщика Приложение 18 Рекомендуемая знаковая сигнализация при перемещении грузов кранами Приложение 19 Наряд-допуск на производство работ краном вблизи воздушной линии электропередачи Приложение 20 Требования в соответствии с п. 2.10 настоящего документа Приложение 21 Требования в соответствии с п. 3.5.5 настоящего документа Приложение 22 Требования в соответствии с п. 8.6.7 настоящего документа |
| Разработан: | Госгортехнадзор России Госатомнадзор России НТЦ ЯРБ Госатомнадзора России АО ВНИИПТМАШ |
| Утверждён: | 19.06.2003 Госатомнадзор России (USSR Gosatomnadzor 1) 19.06.2003 Госгортехнадзор России (Russian Federation Gosgortekhnadzor 97) |
| Издан: | НТЦ ЯРБ Госатомнадзора России (2003 г. ) |
| Расположен в: | |
| Чем заменён: | |
| Нормативные ссылки: |



















































































































