Информационная система
«Ёшкин Кот»

Скачать базу одним архивом
Скачать обновления
История создания базы
Карта сайта

Скачать ОСТ 26-02-1402-76 Тарелки клапанные прямоточные четырехпоточные колонных аппаратов. Параметры, конструкция и основные размеры

Дата актуализации: 10.08.2017

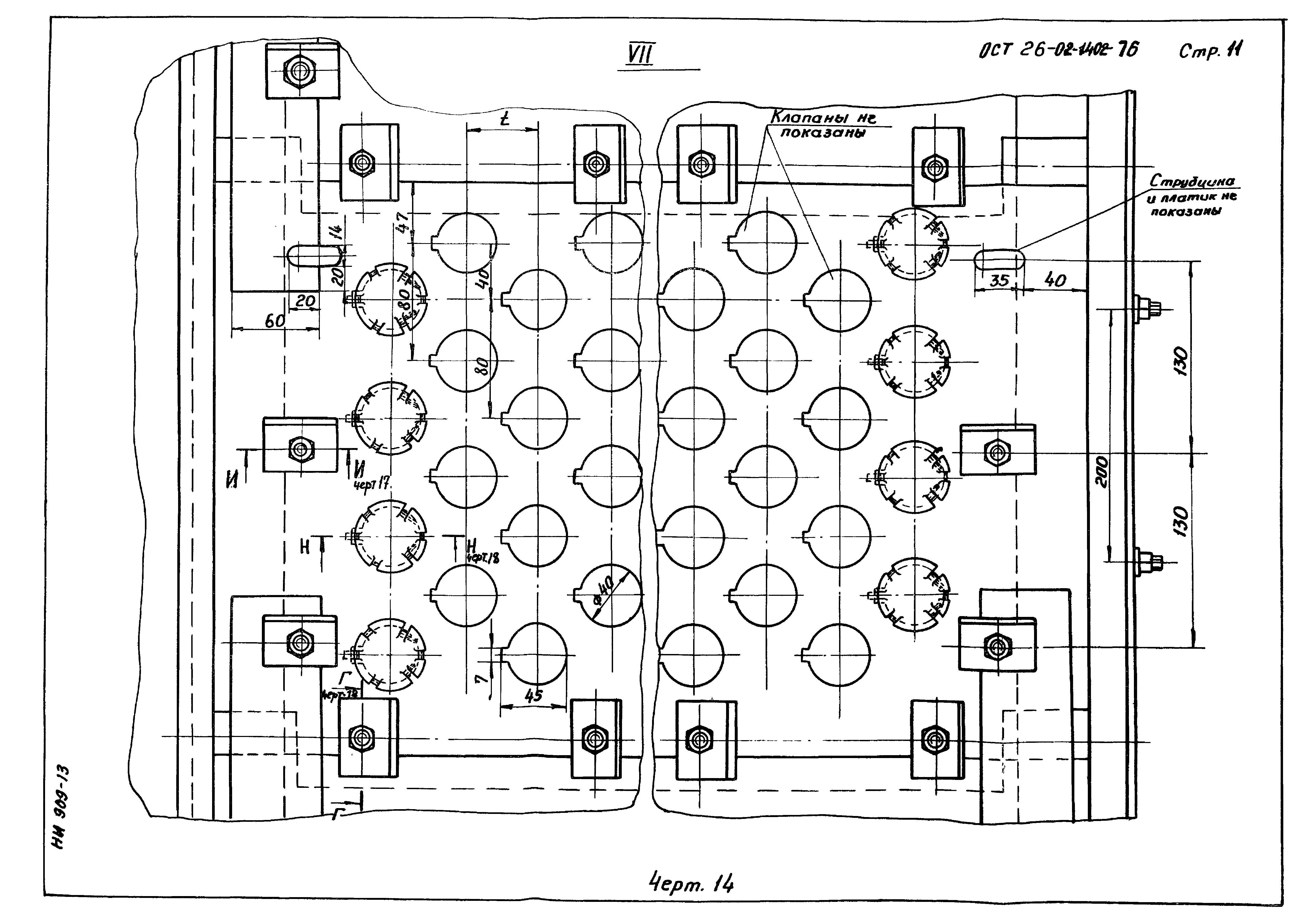
ОСТ 26-02-1402-76

Тарелки клапанные прямоточные четырехпоточные колонных аппаратов. Параметры, конструкция и основные размеры

Обозначение: ОСТ 26-02-1402-76
Обозначение англ: OST 26-02-1402-76
Статус:заменен
Название рус.:Тарелки клапанные прямоточные четырехпоточные колонных аппаратов. Параметры, конструкция и основные размеры
Дата добавления в базу:01.09.2013
Дата актуализации:05.05.2017
Дата введения:01.01.1990
Область применения:Настоящий стандарт распространяется на тарелки ректификационные клапанные прямоточные четырехпоточные для колонных аппаратов диаметром от 3200 до 5500 мм., работающих с высокими нагрузками по жидкости в нефтеперерабатывающей, нефтехимической и других смежных отраслях промышленности.
Оглавление:1Основные параметры
2 Конструкция и основные размеры
3 Технические требования
Разработан: ВНИИнефтемаш
Утверждён: ВПО Союзнефтехиммаш
Принят: Миннефтепром СССР
Расположен в:Техническая документация Строительство Стандарты Отраслевые стандарты и технические условия Отраслевые стандарты
Заменяет собой:
Чем заменён:
Нормативные ссылки:
ОСТ 26-02-1402-76ОСТ 26-02-1402-76ОСТ 26-02-1402-76ОСТ 26-02-1402-76ОСТ 26-02-1402-76ОСТ 26-02-1402-76ОСТ 26-02-1402-76ОСТ 26-02-1402-76ОСТ 26-02-1402-76ОСТ 26-02-1402-76ОСТ 26-02-1402-76ОСТ 26-02-1402-76ОСТ 26-02-1402-76ОСТ 26-02-1402-76ОСТ 26-02-1402-76ОСТ 26-02-1402-76ОСТ 26-02-1402-76ОСТ 26-02-1402-76

© 2013 Ёшкин Кот :-) Карта сайта