| ||||||||||||||||||||||||||||||||||||
Скачать СП 35-114-2003 Реконструкция и приспособление зданий для учреждений социального обслуживания пожилых людейДата актуализации: 10.08.2017
|
| Обозначение: | СП 35-114-2003 |
| Обозначение англ: | SP 35-114-2003 |
| Статус: | действует |
| Название рус.: | Реконструкция и приспособление зданий для учреждений социального обслуживания пожилых людей |
| Название англ.: | Rehabilitation and Adaptation of Buildings for Social Services Facilities for Senior Citizens |
| Дата добавления в базу: | 01.09.2013 |
| Дата актуализации: | 05.05.2017 |
| Дата введения: | 15.09.2003 |
| Область применения: | Требования Свода правил направлены на оптимизацию среды жизнедеятельности пожилых людей за счет переустройства и переоборудования помещений жилых и общественных зданий, создание полноценной архитектурной среды, обеспечивающей в реконструируемых зданиях и сооружениях необходимый уровень доступности для лиц старших возрастов (ЛСВ), комфортность условий проживания и беспрепятственность пользования услугами, предоставляемыми для них. Требования документа распространяются на все элементы массовых гражданских зданий и сооружений, входящих в систему жизнедеятельности ЛСВ, в том числе учреждений различных форм собственности и различных организационно-правовых форм. |
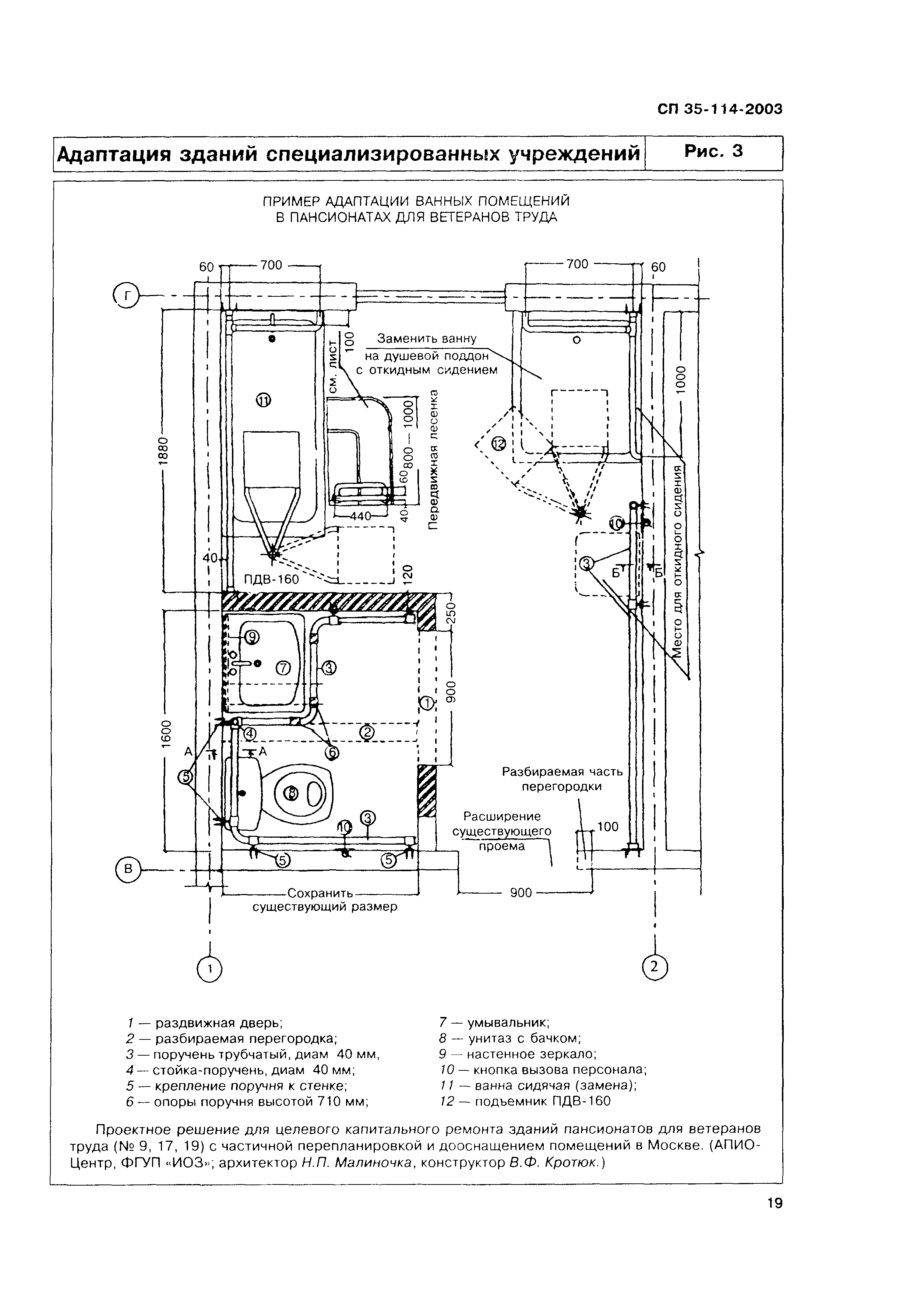
| Оглавление: | Введение 1 Общие положения Нормативные ссылки 2 Основы модернизации жилых, общественных зданий и элементов городской среды Архитектурные принципы Конструктивные принципы 3 Требования к жилых зданиям Общие требования Социальное жилище Массовые жилые дома со специализированными элементами для пожилых людей 4 Требования к зданиям учреждений обслуживания населения Специализированные, медицинские и оздоровительные учреждения Предприятия торговли, общественного питания и бытового обслуживания Культурно-зрелищные и досуговые учреждения 5 Рекомендации по реновации зданий социального обслуживания населения Дома-интернаты (пансионаты) Специализированные учреждения новых видов Иллюстративный материал (примеры проектных решений) Приложение А Дополнительный перечень рекомендуемых нормативно-методических документов Приложение Б Примеры адаптации типовых жилых домов массовых серий Приложение В Методические приемы, используемые при адаптации среды жизнедеятельности для пожилых людей Справочный материал |
| Разработан: | ФГУП Научно-проектный институт учебно-воспитательных, торгово-бытовых и досуговых зданий (ИОЗ) |
| Утверждён: | 15.09.2003 Госстрой России (Russian Federation Gosstroy 165) |
| Принят: | Главгосэкспертиза России (Russian Federation Glavgosexpertiza ) Госсанэпиднадзор России (Russian Federation Gossanepidnadzor ) Минтруда России (Russian Federation Mintruda ) ГУГПС МЧС России (GUGPS, Russian Federation MChS ) Федеральный центр сертификации в строительстве Госстроя России |
| Издан: | ГУП ЦПП (CPP GUP 2003 г. ) |
| Расположен в: | |
| Нормативные ссылки: |
|
























































