| ||||||||||||||||||||||||||||||||||||
Скачать ГОСТ Р 50790-95 Болты с шестигранной головкой с мелким шагом резьбы классов точности А и В. Технические условияДата актуализации: 10.08.2017
|
| Обозначение: | ГОСТ Р 50790-95 |
| Обозначение англ: | GOST R 50790-95 |
| Статус: | заменен |
| Название рус.: | Болты с шестигранной головкой с мелким шагом резьбы классов точности А и В. Технические условия |
| Название англ.: | Hexagon head bolts with metric fine pitch thread product grades A and B. Specifications |
| Дата добавления в базу: | 01.09.2013 |
| Дата актуализации: | 05.05.2017 |
| Дата введения: | 01.07.2014 |
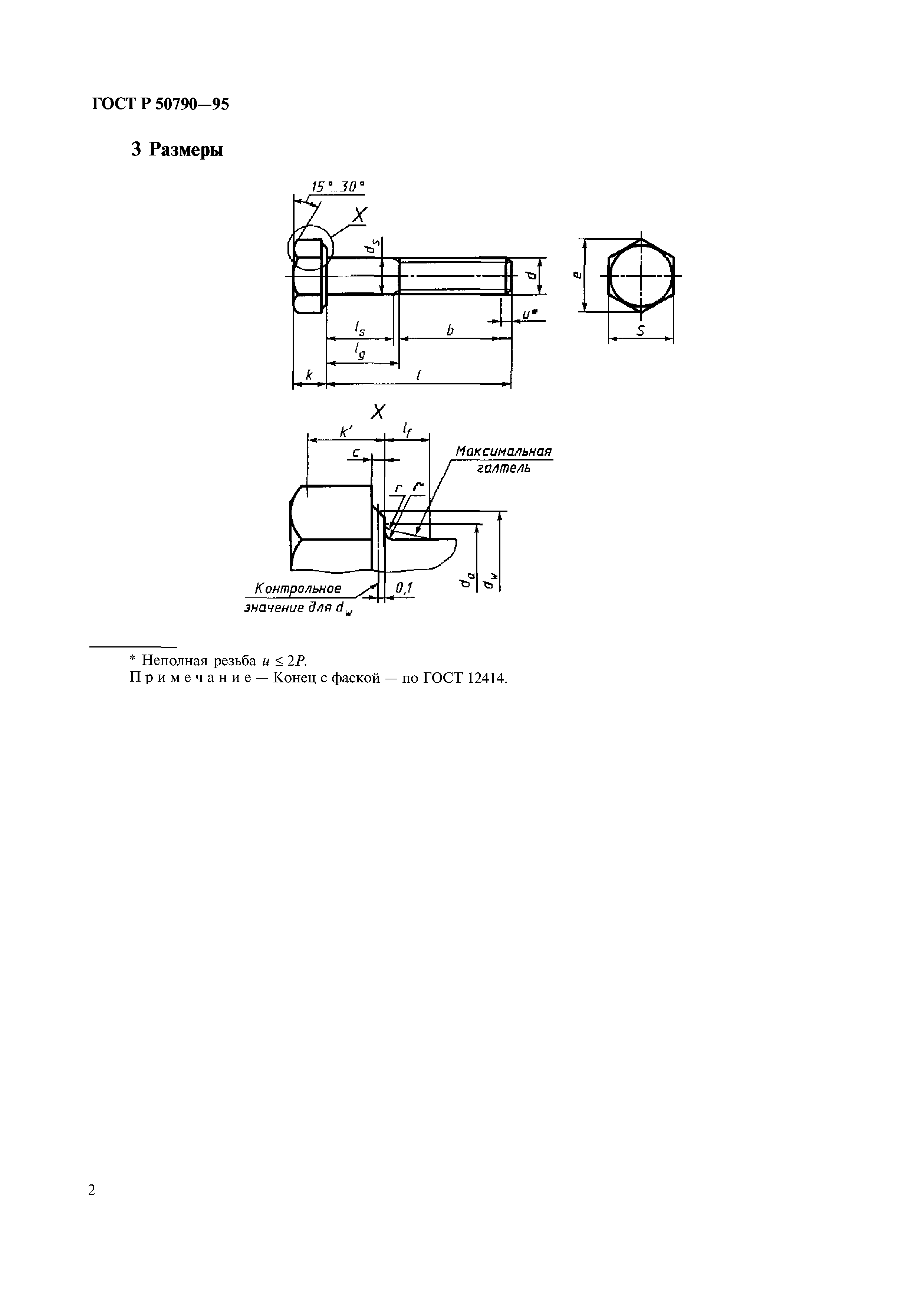
| Область применения: | Стандарт распространяется на болты с шестигранной головкой с диаметрами резьбы от М8 до М64 с мелким шагом резьбы класса точности А (для резьбы до М24 и номинальных длин до 10d, но не более 150 мм) и класса точности В ( для резьбы более М24 или для номинальных длин более 10 d или 150 мм) |
| Оглавление: | 1 Область применения 2 Нормативные ссылки 3 Размеры 4 Технические требования 5 Обозначение Приложение А (рекомендуемое) Дополнительные требования, отражающие потребности народного хозяйства Приложение Б (справочное) Теоретическая масса болтов |
| Разработан: | ТК 229 Крепежные изделия |
| Утверждён: | 29.06.1995 Госстандарт России (Russian Federation Gosstandart 330) |
| Издан: | ИПК Издательство стандартов (1995 г. ) |
| Расположен в: | |
| Чем заменён: | |
| Нормативные ссылки: |
|













