Скачать ГОСТ 20111-74 Плиты модельные стальные для опок размерами в свету 600х500 мм, 800х700 мм, 1000х800 мм на формовочные литейные машины с поворотом полуформы с допрессовкой. Конструкция и размерыДата актуализации: 10.08.2017 ГОСТ 20111-74
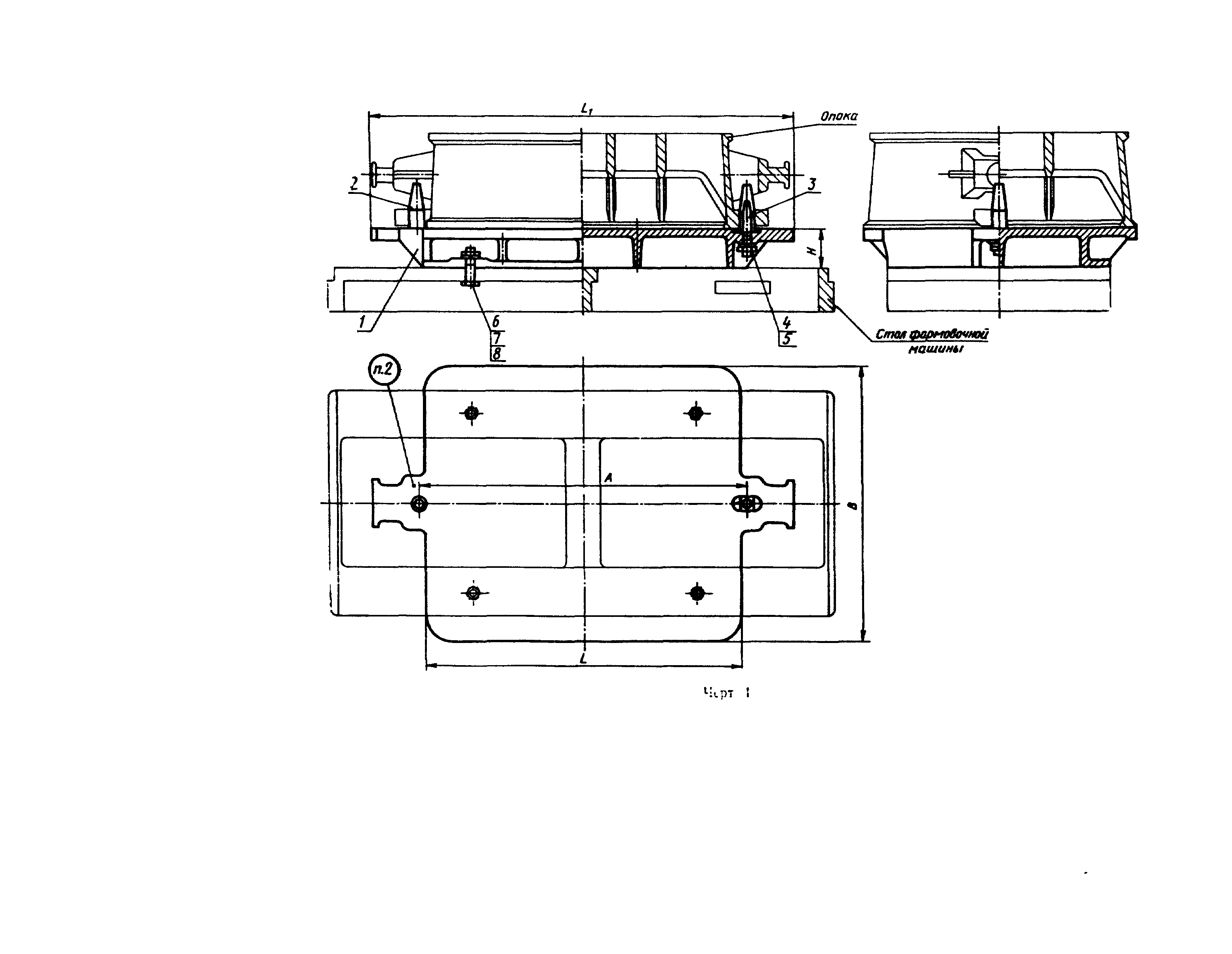
Плиты модельные стальные для опок размерами в свету 600х500 мм, 800х700 мм, 1000х800 мм на формовочные литейные машины с поворотом полуформы с допрессовкой. Конструкция и размерыОбозначение: | ГОСТ 20111-74 | Обозначение англ: | GOST 20111-74 | Статус: | действует | Название рус.: | Плиты модельные стальные для опок размерами в свету 600х500 мм, 800х700 мм, 1000х800 мм на формовочные литейные машины с поворотом полуформы с допрессовкой. Конструкция и размеры | Название англ.: | Steel pattern plates moulding boxes having inside dimensions 600х500 mm, 800х700 mm, 1000х800 mm for moulding foundry machines with turn of half mould with squeezing. Design and dimensions | Дата добавления в базу: | 01.09.2013 | Дата актуализации: | 05.05.2017 | Дата введения: | 01.01.1976 | Утверждён: | 21.08.1974 Государственный комитет стандартов Совета Министров СССР (USSR National Committee on Standards at the Cabinet of Ministers 2023)
| Расположен в: |
| Список изменений: | | Заменяет собой: | - МН 3262-62 (Сведения из перечня "Указатель государственных стандартов СССР 1980 г.", Издательство стандартов 1980)
| Нормативные ссылки: | |
      
Текстовое изменение № 1 от 01.10.1981

|