| ||||||||||||||||||||||||||||||||
Скачать ГОСТ 13.1.202-88 Репрография. Микрография. Символы и трафареты. Общие требованияДата актуализации: 10.08.2017
|
| Обозначение: | ГОСТ 13.1.202-88 |
| Обозначение англ: | GOST 13.1.202-88 |
| Статус: | взамен |
| Название рус.: | Репрография. Микрография. Символы и трафареты. Общие требования |
| Название англ.: | Reprography. Micrography. Symbols and stencils. General requirements |
| Дата добавления в базу: | 01.09.2013 |
| Дата актуализации: | 05.05.2017 |
| Дата введения: | 01.07.1989 |
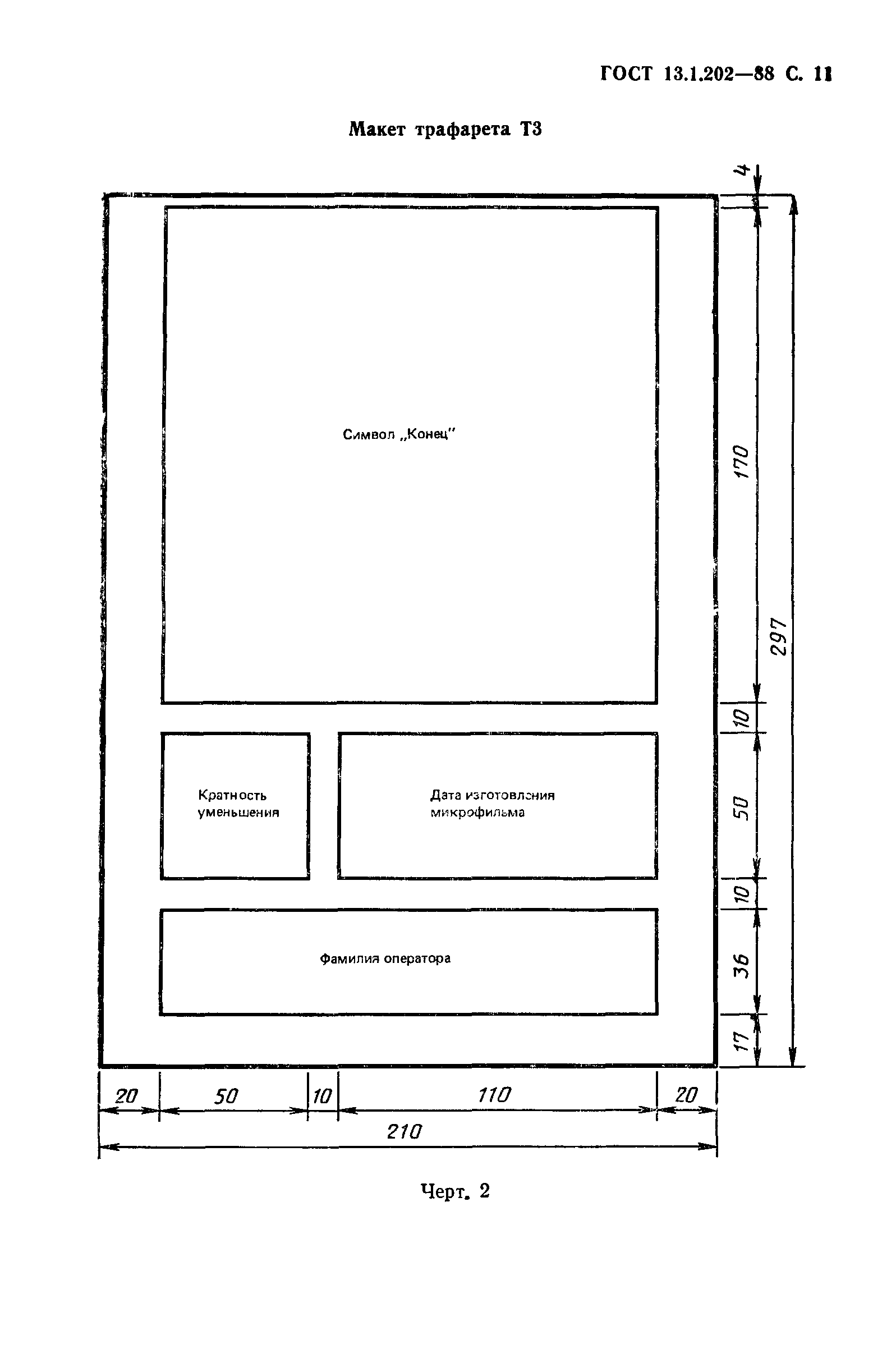
| Область применения: | Стандарт распространяется на символы и трафареты, применяемые при съемке микрофильмов, и устанавливает графические изображения, значения и расположение символов, типы трафаретов, их назначение и расположение на микроформах. Стандарт не распространяется на символы и трафареты, применяемые на микроформах, изготовленных на выводе из ЭВМ. |
| Оглавление: | 1. Символы на микрофильмах 2. Трафареты Приложение 1 (рекомендуемое) Пример заполнения трафарета Т2 Приложение 2 (рекомендуемое) Пример заполнения трафарета Т3 Приложение 3 (рекомендуемое) Пример заполнения трафарета Т2 Приложение 4 (рекомендуемое) Пример заполнения трафарета Т3 |
| Утверждён: | 31.10.1988 Государственный комитет СССР по стандартам (USSR National Committee on Standards 3605) |
| Расположен в: | |
| Заменяет собой: |
|
| Нормативные ссылки: |


















