Информационная система
«Ёшкин Кот»

Скачать базу одним архивом
Скачать обновления
История создания базы
Карта сайта

Скачать СП 12-103-2002 Пути наземные рельсовые крановые. Проектирование, устройство и эксплуатация

Дата актуализации: 10.08.2017

СП 12-103-2002

Пути наземные рельсовые крановые. Проектирование, устройство и эксплуатация

Обозначение: СП 12-103-2002
Обозначение англ: SP 12-103-2002
Статус:действует
Название рус.:Пути наземные рельсовые крановые. Проектирование, устройство и эксплуатация
Название англ.:Tracks overland rail crane. Projection, structure and exploitation
Дата добавления в базу:01.09.2013
Дата актуализации:05.05.2017
Дата введения:27.02.2003
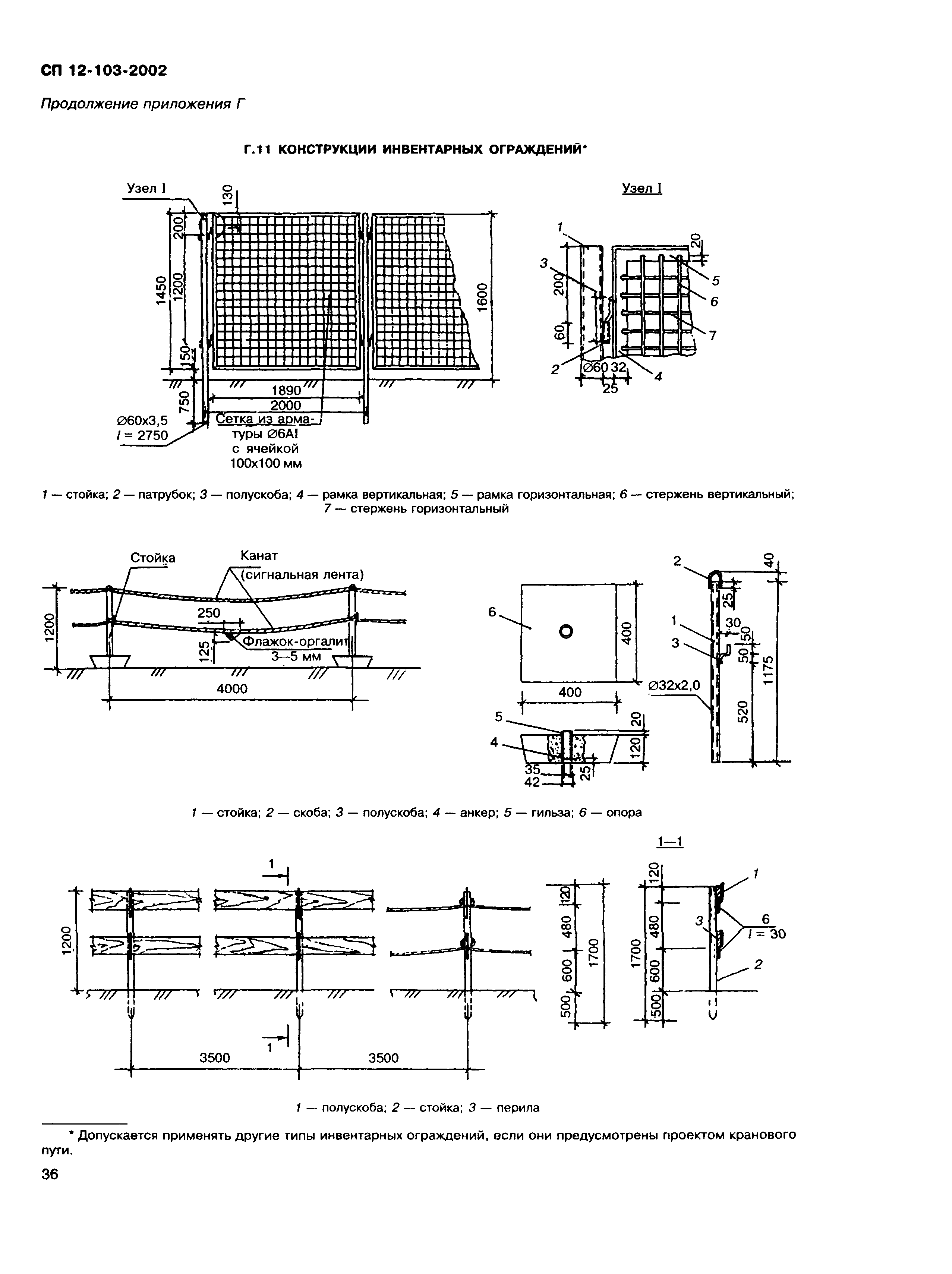
Область применения:Документ распространяется на наземные рельсовые крановые пути башенных и стреловых кранов на рельсовом ходовом устройстве с нагрузкой колеса на рельс до 325 кН. Настоящий документ устанавливает требования к проектированию, устройству и безопасной эксплуатации крановых путей, а также по обеспечению безопасности при эксплуатации кранов на крановых путях.
Оглавление:Введение
1. Область применения
2. Нормативные ссылки
3. Определения
4. Общие положения
5. Конструкция кранового пути
6. Проектирование
7. Устройство
8. Эксплуатация
Приложение А. Перечень используемых нормативных документов
Приложение Б. Термины и определения
Приложение В. Головные организации по крановым путям и краностроению
Приложение Г. Конструктивные решения и применяемые материалы
Приложение Д. Паспорт кранового пути (форма)
Приложение Е. Состав технического задания на проектирование кранового пути
Приложение Ж. Схемы расположения защитного слоя земляного полотна
Приложение И. Расчет толщины защитного слоя земляного полотна
Приложение К. Критерии браковки элементов кранового пути
Приложение Л. Паспорт. Упор тупиковый (форма)
Приложение М. Приборы и аппаратура контроля
Приложение Н. Методика геодезического контроля состояния крановых путей
Приложение П. Методика измерения упругой просадки рельсовых нитей кранового пути с полушпалами
Разработан: ТК 376 Эксплуатация строительно-дорожных машин и оборудования
НППА ИСТЕК
ЗАО ЦНИИОМТП
ОАО ВНИИПТМАШ
ФГУП СКТБ башенного краностроения
Утверждён:27.02.2003 Госстрой России (Russian Federation Gosstroy 26)
Принят:03.12.2002 Госгортехнадзор России (Russian Federation Gosgortekhnadzor 12-53/989)
Издан: ГУП ЦПП (CPP GUP 2003 г. )
Расположен в:Техническая документация Экология ПОДЪЕМНО-ТРАНСПОРТНОЕ ОБОРУДОВАНИЕ Подъемное оборудование Краны Строительство Нормативные документы Документы Системы нормативных документов в строительстве Организационно-методические нормативные документы к.12 Производство
Нормативные ссылки:
СП 12-103-2002СП 12-103-2002СП 12-103-2002СП 12-103-2002СП 12-103-2002СП 12-103-2002СП 12-103-2002СП 12-103-2002СП 12-103-2002СП 12-103-2002СП 12-103-2002СП 12-103-2002СП 12-103-2002СП 12-103-2002СП 12-103-2002СП 12-103-2002СП 12-103-2002СП 12-103-2002СП 12-103-2002СП 12-103-2002СП 12-103-2002СП 12-103-2002СП 12-103-2002СП 12-103-2002СП 12-103-2002СП 12-103-2002СП 12-103-2002СП 12-103-2002СП 12-103-2002СП 12-103-2002СП 12-103-2002СП 12-103-2002СП 12-103-2002СП 12-103-2002СП 12-103-2002СП 12-103-2002СП 12-103-2002СП 12-103-2002СП 12-103-2002СП 12-103-2002СП 12-103-2002СП 12-103-2002СП 12-103-2002СП 12-103-2002СП 12-103-2002СП 12-103-2002СП 12-103-2002СП 12-103-2002СП 12-103-2002СП 12-103-2002СП 12-103-2002СП 12-103-2002СП 12-103-2002СП 12-103-2002СП 12-103-2002СП 12-103-2002СП 12-103-2002СП 12-103-2002СП 12-103-2002СП 12-103-2002СП 12-103-2002СП 12-103-2002СП 12-103-2002СП 12-103-2002СП 12-103-2002СП 12-103-2002СП 12-103-2002СП 12-103-2002СП 12-103-2002СП 12-103-2002СП 12-103-2002СП 12-103-2002СП 12-103-2002

© 2013 Ёшкин Кот :-) Карта сайта