Информационная система
«Ёшкин Кот»

Скачать базу одним архивом
Скачать обновления
История создания базы
Карта сайта

Скачать Унифицированные архитектурно-строительные системы мансардных этажей для надстройки реконструируемых домов

Дата актуализации: 10.08.2017

Унифицированные архитектурно-строительные системы мансардных этажей для надстройки реконструируемых домов

Статус:действует
Название рус.:Унифицированные архитектурно-строительные системы мансардных этажей для надстройки реконструируемых домов
Название англ.:Standard Architectural and Construction Systems for Mansard Floors for Renovation of Housing
Дата добавления в базу:01.09.2013
Дата актуализации:05.05.2017
Дата введения:10.10.1998
Область применения:Рекомендации предназначаются для использования при проведении научных и проектных работ, а также выполнении технико-экономических обоснований и расчетов. Приведенные в рекомендациях конструктивные элементы мансард и узлы иллюстрируют принципы их рационального конструирования.
Оглавление:Общая пояснительная записка
Технические решения конструкций мансардного этажа для организации жилых помещений в одном уровне или второго уровня квартир последнего (пятого) этажа при реконструкции жилых домов серии 1-464
План секций серии 1-464
Схема расположения несущих рам мансардных этажей серии 1-464
Мансарда с двусторонней ориентацией и наружным водостоком при уклоне 45? с окнами типа"Velux". Поперечный разрез. Вариант технического решения с наружной облицовкой металлической черепицей или гофрированным металлическим листом и внутренней облицовкой гипсокартонном
Мансарда с двусторонней ориентацией и наружным водостоком при уклоне 45? с люкарнами. Поперечный разрез. Вариант технического решения с наружной облицовкой металлической черепицей или гофрированным металлическим листом и внутренней облицовкой гипсокартонном
Мансарда с двусторонней ориентацией и наружным водостоком при уклоне 60? с окнами типа"Velux". Поперечный разрез. Вариант технического решения с наружной облицовкой металлической черепицей или гофрированным металлическим листом и внутренней облицовкой гипсокартонном
Мансарда с двусторонней ориентацией и наружным водостоком при уклоне 60? с люкарнами. Поперечный разрез. Вариант технического решения с наружной облицовкой металлической черепицей или гофрированным металлическим листом и внутренней облицовкой гипсокартонном
Мансарда с односторонней (двусторонней) ориентацией и наружным водостоком при уклонах 30? с вертикальным остекленением (с окнами типа"Velux"). Поперечный разрез. Вариант технического решения с наружной облицовкой металлической черепицей или гофрированным металлическим листом и внутренней облицовкой гипсокартонном
Мансарда с двусторонней ориентацией и наружным водостоком при уклоне 45? с окнами типа"Velux". Поперечный разрез. Вариант технического решения с наружной облицовкой окрашенным асбестоцементным листом "Новинка" Воскресенского завода и внутренней облицовкой цементно-стружечными плитами
Мансарда с двусторонней ориентацией и наружным водостоком при уклоне 45? с люкарнами. Поперечный разрез. Вариант технического решения с наружной облицовкой окрашенным асбестоцементным листом "Новинка" Воскресенского завода и внутренней облицовкой цементно-стружечными плитами
Мансарда с двусторонней ориентацией и наружным водостоком при уклоне 60? с окнами типа"Velux". Поперечный разрез. Вариант технического решения с наружной облицовкой окрашенным асбестоцементным листом "Новинка" Воскресенского завода и внутренней облицовкой цементно-стружечными плитами
Мансарда с двусторонней ориентацией и наружным водостоком при уклоне 60? с люкарнами. Поперечный разрез. Вариант технического решения с наружной облицовкой окрашенным асбестоцементным листом "Новинка" Воскресенского завода и внутренней облицовкой цементно-стружечными плитами
Мансарда с односторонней (двусторонней) ориентацией и наружным водостоком при уклонах 30? с вертикальным остекленением (с окнами типа"Velux"). Поперечный разрез. Вариант технического решения с наружной облицовкой окрашенным асбестоцементным листом "Новинка" Воскресенского завода и внутренней облицовкой цементно-стружечными плитами
Технические решения конструкций мансардного этажа для организации жилых помещений в двух уровнях при реконструкции жилых домов серии 1-464
Мансарда с двусторонней ориентацией и наружным водостоком при уклоне 52? с окнами типа"Velux". Поперечный разрез. Вариант технического решения с наружной облицовкой металлической черепицей или гофрированным металлическим листом и внутренней облицовкой гипсокартонном
Мансарда с двусторонней ориентацией и наружным водостоком при уклоне 52? с люкарнами. Поперечный разрез. Вариант технического решения с наружной облицовкой металлической черепицей или гофрированным металлическим листом и внутренней облицовкой гипсокартонном
Мансарда с двусторонней ориентацией и наружным водостоком при уклоне 60? с окнами типа"Velux". Поперечный разрез. Вариант технического решения с наружной облицовкой металлической черепицей или гофрированным металлическим листом и внутренней облицовкой гипсокартонном
Мансарда с двусторонней ориентацией и наружным водостоком при уклоне 60? с люкарнами. Поперечный разрез. Вариант технического решения с наружной облицовкой металлической черепицей или гофрированным металлическим листом и внутренней облицовкой гипсокартонном
Мансарда с двусторонней ориентацией и наружным водостоком при уклоне 52? с окнами типа"Velux". Поперечный разрез. Вариант технического решения с наружной облицовкой окрашенным асбестоцементным листом "Новинка" Воскресенского завода и внутренней облицовкой цементно-стружечными плитами
Мансарда с двусторонней ориентацией и наружным водостоком при уклоне 52? с люкарнами. Поперечный разрез. Вариант технического решения с наружной облицовкой окрашенным асбестоцементным листом "Новинка" Воскресенского завода и внутренней облицовкой цементно-стружечными плитами
Мансарда с двусторонней ориентацией и наружным водостоком при уклоне 60? с окнами типа"Velux". Поперечный разрез. Вариант технического решения с наружной облицовкой окрашенным асбестоцементным листом "Новинка" Воскресенского завода и внутренней облицовкой цементно-стружечными плитами
Мансарда с двусторонней ориентацией и наружным водостоком при уклоне 60? с люкарнами. Поперечный разрез. Вариант технического решения с наружной облицовкой окрашенным асбестоцементным листом "Новинка" Воскресенского завода и внутренней облицовкой цементно-стружечными плитами
Технические решения конструкций мансардного этажа для организации жилых помещений в одном уровне или второго уровня квартир последнего (пятого) этажа при реконструкции жилых домов серии 1-468
План секций серии 1-468
Схема расположения несущих рам мансардных этажей серии 1-468
Мансарда с двусторонней ориентацией и наружным водостоком при уклоне 45? с окнами типа"Velux". Поперечный разрез. Вариант технического решения с наружной облицовкой металлической черепицей или гофрированным металлическим листом и внутренней облицовкой гипсокартонном
Мансарда с двусторонней ориентацией и наружным водостоком при уклоне 45? с люкарнами. Поперечный разрез. Вариант технического решения с наружной облицовкой металлической черепицей или гофрированным металлическим листом и внутренней облицовкой гипсокартонном
Мансарда с двусторонней ориентацией и наружным водостоком при уклоне 60? с окнами типа"Velux". Поперечный разрез. Вариант технического решения с наружной облицовкой металлической черепицей или гофрированным металлическим листом и внутренней облицовкой гипсокартонном
Мансарда с двусторонней ориентацией и наружным водостоком при уклоне 60? с люкарнами. Поперечный разрез. Вариант технического решения с наружной облицовкой металлической черепицей или гофрированным металлическим листом и внутренней облицовкой гипсокартонном
Мансарда с односторонней (двусторонней) ориентацией и наружным водостоком при уклонах 30? с вертикальным остекленением (с окнами типа"Velux"). Поперечный разрез. Вариант технического решения с наружной облицовкой металлической черепицей или гофрированным металлическим листом и внутренней облицовкой гипсокартонном
Мансарда с двусторонней ориентацией и наружным водостоком при уклоне 45? с окнами типа"Velux". Поперечный разрез. Вариант технического решения с наружной облицовкой окрашенным асбестоцементным листом "Новинка" Воскресенского завода и внутренней облицовкой цементно-стружечными плитами
Мансарда с двусторонней ориентацией и наружным водостоком при уклоне 45? с люкарнами. Поперечный разрез. Вариант технического решения с наружной облицовкой окрашенным асбестоцементным листом "Новинка" Воскресенского завода и внутренней облицовкой цементно-стружечными плитами
Мансарда с двусторонней ориентацией и наружным водостоком при уклоне 60? с окнами типа"Velux". Поперечный разрез. Вариант технического решения с наружной облицовкой окрашенным асбестоцементным листом "Новинка" Воскресенского завода и внутренней облицовкой цементно-стружечными плитами
Мансарда с двусторонней ориентацией и наружным водостоком при уклоне 60? с люкарнами. Поперечный разрез. Вариант технического решения с наружной облицовкой окрашенным асбестоцементным листом "Новинка" Воскресенского завода и внутренней облицовкой цементно-стружечными плитами
Мансарда с односторонней (двусторонней) ориентацией и наружным водостоком при уклонах 30? с вертикальным остекленением (с окнами типа"Velux"). Поперечный разрез. Вариант технического решения с наружной облицовкой окрашенным асбестоцементным листом "Новинка" Воскресенского завода и внутренней облицовкой цементно-стружечными плитами
Технические решения конструкций мансардного этажа для организации жилых помещений в двух уровнях при реконструкции жилых домов серии 1-468
Мансарда с двусторонней ориентацией и наружным водостоком при уклоне 52? с окнами типа"Velux". Поперечный разрез. Вариант технического решения с наружной облицовкой металлической черепицей или гофрированным металлическим листом и внутренней облицовкой гипсокартонном
Мансарда с двусторонней ориентацией и наружным водостоком при уклоне 52? с люкарнами. Поперечный разрез. Вариант технического решения с наружной облицовкой металлической черепицей или гофрированным металлическим листом и внутренней облицовкой гипсокартонном
Мансарда с двусторонней ориентацией и наружным водостоком при уклоне 60? с окнами типа"Velux". Поперечный разрез. Вариант технического решения с наружной облицовкой металлической черепицей или гофрированным металлическим листом и внутренней облицовкой гипсокартонном
Мансарда с двусторонней ориентацией и наружным водостоком при уклоне 60? с люкарнами. Поперечный разрез. Вариант технического решения с наружной облицовкой металлической черепицей или гофрированным металлическим листом и внутренней облицовкой гипсокартонном
Мансарда с двусторонней ориентацией и наружным водостоком при уклоне 52? с окнами типа"Velux". Поперечный разрез. Вариант технического решения с наружной облицовкой окрашенным асбестоцементным листом "Новинка" Воскресенского завода и внутренней облицовкой цементно-стружечными плитами
Мансарда с двусторонней ориентацией и наружным водостоком при уклоне 52? с люкарнами. Поперечный разрез. Вариант технического решения с наружной облицовкой окрашенным асбестоцементным листом "Новинка" Воскресенского завода и внутренней облицовкой цементно-стружечными плитами
Мансарда с двусторонней ориентацией и наружным водостоком при уклоне 60? с окнами типа"Velux". Поперечный разрез. Вариант технического решения с наружной облицовкой окрашенным асбестоцементным листом "Новинка" Воскресенского завода и внутренней облицовкой цементно-стружечными плитами
Мансарда с двусторонней ориентацией и наружным водостоком при уклоне 60? с люкарнами. Поперечный разрез. Вариант технического решения с наружной облицовкой окрашенным асбестоцементным листом "Новинка" Воскресенского завода и внутренней облицовкой цементно-стружечными плитами
Технические решения конструкций мансардного этажа для организации жилых помещений в одном уровне или второго уровня квартир последнего (пятого) этажа при реконструкции жилых домов серии 1-447
План секций серии 1-447
Схема расположения несущих рам мансардных этажей серии 1-447
Мансарда с двусторонней ориентацией и наружным водостоком при уклоне 45? с окнами типа"Velux". Поперечный разрез. Вариант технического решения с наружной облицовкой металлической черепицей или гофрированным металлическим листом и внутренней облицовкой гипсокартонном
Мансарда с двусторонней ориентацией и наружным водостоком при уклоне 45? с люкарнами. Поперечный разрез. Вариант технического решения с наружной облицовкой металлической черепицей или гофрированным металлическим листом и внутренней облицовкой гипсокартонном
Мансарда с двусторонней ориентацией и наружным водостоком при уклоне 60? с окнами типа"Velux". Поперечный разрез. Вариант технического решения с наружной облицовкой металлической черепицей или гофрированным металлическим листом и внутренней облицовкой гипсокартонном
Мансарда с двусторонней ориентацией и наружным водостоком при уклоне 60? с люкарнами. Поперечный разрез. Вариант технического решения с наружной облицовкой металлической черепицей или гофрированным металлическим листом и внутренней облицовкой гипсокартонном
Мансарда с односторонней (двусторонней) ориентацией и наружным водостоком при уклонах 30? с вертикальным остекленением (с окнами типа"Velux"). Поперечный разрез. Вариант технического решения с наружной облицовкой металлической черепицей или гофрированным металлическим листом и внутренней облицовкой гипсокартонном
Мансарда с двусторонней ориентацией и наружным водостоком при уклоне 45? с окнами типа"Velux". Поперечный разрез. Вариант технического решения с наружной облицовкой окрашенным асбестоцементным листом "Новинка" Воскресенского завода и внутренней облицовкой цементно-стружечными плитами
Мансарда с двусторонней ориентацией и наружным водостоком при уклоне 45? с люкарнами. Поперечный разрез. Вариант технического решения с наружной облицовкой окрашенным асбестоцементным листом "Новинка" Воскресенского завода и внутренней облицовкой цементно-стружечными плитами
Мансарда с двусторонней ориентацией и наружным водостоком при уклоне 60? с окнами типа"Velux". Поперечный разрез. Вариант технического решения с наружной облицовкой окрашенным асбестоцементным листом "Новинка" Воскресенского завода и внутренней облицовкой цементно-стружечными плитами
Мансарда с двусторонней ориентацией и наружным водостоком при уклоне 60? с люкарнами. Поперечный разрез. Вариант технического решения с наружной облицовкой окрашенным асбестоцементным листом "Новинка" Воскресенского завода и внутренней облицовкой цементно-стружечными плитами
Мансарда с односторонней (двусторонней) ориентацией и наружным водостоком при уклонах 30? с вертикальным остекленением (с окнами типа"Velux"). Поперечный разрез. Вариант технического решения с наружной облицовкой окрашенным асбестоцементным листом "Новинка" Воскресенского завода и внутренней облицовкой цементно-стружечными плитами
Технические решения конструкций мансардного этажа для организации жилых помещений в двух уровнях при реконструкции жилых домов серии 1-447
Мансарда с двусторонней ориентацией и наружным водостоком при уклоне 52? с окнами типа"Velux". Поперечный разрез. Вариант технического решения с наружной облицовкой металлической черепицей или гофрированным металлическим листом и внутренней облицовкой гипсокартонном
Мансарда с двусторонней ориентацией и наружным водостоком при уклоне 52? с люкарнами. Поперечный разрез. Вариант технического решения с наружной облицовкой металлической черепицей или гофрированным металлическим листом и внутренней облицовкой гипсокартонном
Мансарда с двусторонней ориентацией и наружным водостоком при уклоне 60? с окнами типа"Velux". Поперечный разрез. Вариант технического решения с наружной облицовкой металлической черепицей или гофрированным металлическим листом и внутренней облицовкой гипсокартонном
Мансарда с двусторонней ориентацией и наружным водостоком при уклоне 60? с люкарнами. Поперечный разрез. Вариант технического решения с наружной облицовкой металлической черепицей или гофрированным металлическим листом и внутренней облицовкой гипсокартонном
Мансарда с двусторонней ориентацией и наружным водостоком при уклоне 52? с окнами типа"Velux". Поперечный разрез. Вариант технического решения с наружной облицовкой окрашенным асбестоцементным листом "Новинка" Воскресенского завода и внутренней облицовкой цементно-стружечными плитами
Мансарда с двусторонней ориентацией и наружным водостоком при уклоне 52? с люкарнами. Поперечный разрез. Вариант технического решения с наружной облицовкой окрашенным асбестоцементным листом "Новинка" Воскресенского завода и внутренней облицовкой цементно-стружечными плитами
Мансарда с двусторонней ориентацией и наружным водостоком при уклоне 60? с окнами типа"Velux". Поперечный разрез. Вариант технического решения с наружной облицовкой окрашенным асбестоцементным листом "Новинка" Воскресенского завода и внутренней облицовкой цементно-стружечными плитами
Мансарда с двусторонней ориентацией и наружным водостоком при уклоне 60? с люкарнами. Поперечный разрез. Вариант технического решения с наружной облицовкой окрашенным асбестоцементным листом "Новинка" Воскресенского завода и внутренней облицовкой цементно-стружечными плитами
Технические решения конструкций мансардного этажа для организации жилых помещений в одном уровне или второго уровня квартир последнего (пятого) этажа при реконструкции жилых домов серии 1-335
План секций серии 1-335
Схема расположения несущих рам мансардных этажей серии 1-335
Мансарда с двусторонней ориентацией и наружным водостоком при уклоне 45? с окнами типа"Velux". Поперечный разрез. Вариант технического решения с наружной облицовкой металлической черепицей или гофрированным металлическим листом и внутренней облицовкой гипсокартонном
Мансарда с двусторонней ориентацией и наружным водостоком при уклоне 45? с люкарнами. Поперечный разрез. Вариант технического решения с наружной облицовкой металлической черепицей или гофрированным металлическим листом и внутренней облицовкой гипсокартонном
Мансарда с двусторонней ориентацией и наружным водостоком при уклоне 60? с окнами типа"Velux". Поперечный разрез. Вариант технического решения с наружной облицовкой металлической черепицей или гофрированным металлическим листом и внутренней облицовкой гипсокартонном
Мансарда с двусторонней ориентацией и наружным водостоком при уклоне 60? с люкарнами. Поперечный разрез. Вариант технического решения с наружной облицовкой металлической черепицей или гофрированным металлическим листом и внутренней облицовкой гипсокартонном
Мансарда с односторонней (двусторонней) ориентацией и наружным водостоком при уклонах 30? с вертикальным остекленением (с окнами типа"Velux"). Поперечный разрез. Вариант технического решения с наружной облицовкой металлической черепицей или гофрированным металлическим листом и внутренней облицовкой гипсокартонном
Мансарда с двусторонней ориентацией и наружным водостоком при уклоне 45? с окнами типа"Velux". Поперечный разрез. Вариант технического решения с наружной облицовкой окрашенным асбестоцементным листом "Новинка" Воскресенского завода и внутренней облицовкой цементно-стружечными плитами
Мансарда с двусторонней ориентацией и наружным водостоком при уклоне 45? с люкарнами. Поперечный разрез. Вариант технического решения с наружной облицовкой окрашенным асбестоцементным листом "Новинка" Воскресенского завода и внутренней облицовкой цементно-стружечными плитами
Мансарда с двусторонней ориентацией и наружным водостоком при уклоне 60? с окнами типа"Velux". Поперечный разрез. Вариант технического решения с наружной облицовкой окрашенным асбестоцементным листом "Новинка" Воскресенского завода и внутренней облицовкой цементно-стружечными плитами
Мансарда с двусторонней ориентацией и наружным водостоком при уклоне 60? с люкарнами. Поперечный разрез. Вариант технического решения с наружной облицовкой окрашенным асбестоцементным листом "Новинка" Воскресенского завода и внутренней облицовкой цементно-стружечными плитами
Мансарда с односторонней (двусторонней) ориентацией и наружным водостоком при уклонах 30? с вертикальным остекленением (с окнами типа"Velux"). Поперечный разрез. Вариант технического решения с наружной облицовкой окрашенным асбестоцементным листом "Новинка" Воскресенского завода и внутренней облицовкой цементно-стружечными плитами
Технические решения конструкций мансардного этажа для организации жилых помещений в двух уровнях при реконструкции жилых домов серии 1-335
Мансарда с двусторонней ориентацией и наружным водостоком при уклоне 52? с окнами типа"Velux". Поперечный разрез. Вариант технического решения с наружной облицовкой металлической черепицей или гофрированным металлическим листом и внутренней облицовкой гипсокартонном
Мансарда с двусторонней ориентацией и наружным водостоком при уклоне 52? с люкарнами. Поперечный разрез. Вариант технического решения с наружной облицовкой металлической черепицей или гофрированным металлическим листом и внутренней облицовкой гипсокартонном
Мансарда с двусторонней ориентацией и наружным водостоком при уклоне 60? с окнами типа"Velux". Поперечный разрез. Вариант технического решения с наружной облицовкой металлической черепицей или гофрированным металлическим листом и внутренней облицовкой гипсокартонном
Мансарда с двусторонней ориентацией и наружным водостоком при уклоне 60? с люкарнами. Поперечный разрез. Вариант технического решения с наружной облицовкой металлической черепицей или гофрированным металлическим листом и внутренней облицовкой гипсокартонном
Мансарда с двусторонней ориентацией и наружным водостоком при уклоне 52? с окнами типа"Velux". Поперечный разрез. Вариант технического решения с наружной облицовкой окрашенным асбестоцементным листом "Новинка" Воскресенского завода и внутренней облицовкой цементно-стружечными плитами
Мансарда с двусторонней ориентацией и наружным водостоком при уклоне 52? с люкарнами. Поперечный разрез. Вариант технического решения с наружной облицовкой окрашенным асбестоцементным листом "Новинка" Воскресенского завода и внутренней облицовкой цементно-стружечными плитами
Мансарда с двусторонней ориентацией и наружным водостоком при уклоне 60? с окнами типа"Velux". Поперечный разрез. Вариант технического решения с наружной облицовкой окрашенным асбестоцементным листом "Новинка" Воскресенского завода и внутренней облицовкой цементно-стружечными плитами
Мансарда с двусторонней ориентацией и наружным водостоком при уклоне 60? с люкарнами. Поперечный разрез. Вариант технического решения с наружной облицовкой окрашенным асбестоцементным листом "Новинка" Воскресенского завода и внутренней облицовкой цементно-стружечными плитами
Узел 1/1-464
Узел 2/1-464
Узел 3/1-464
Узел 4/1-464
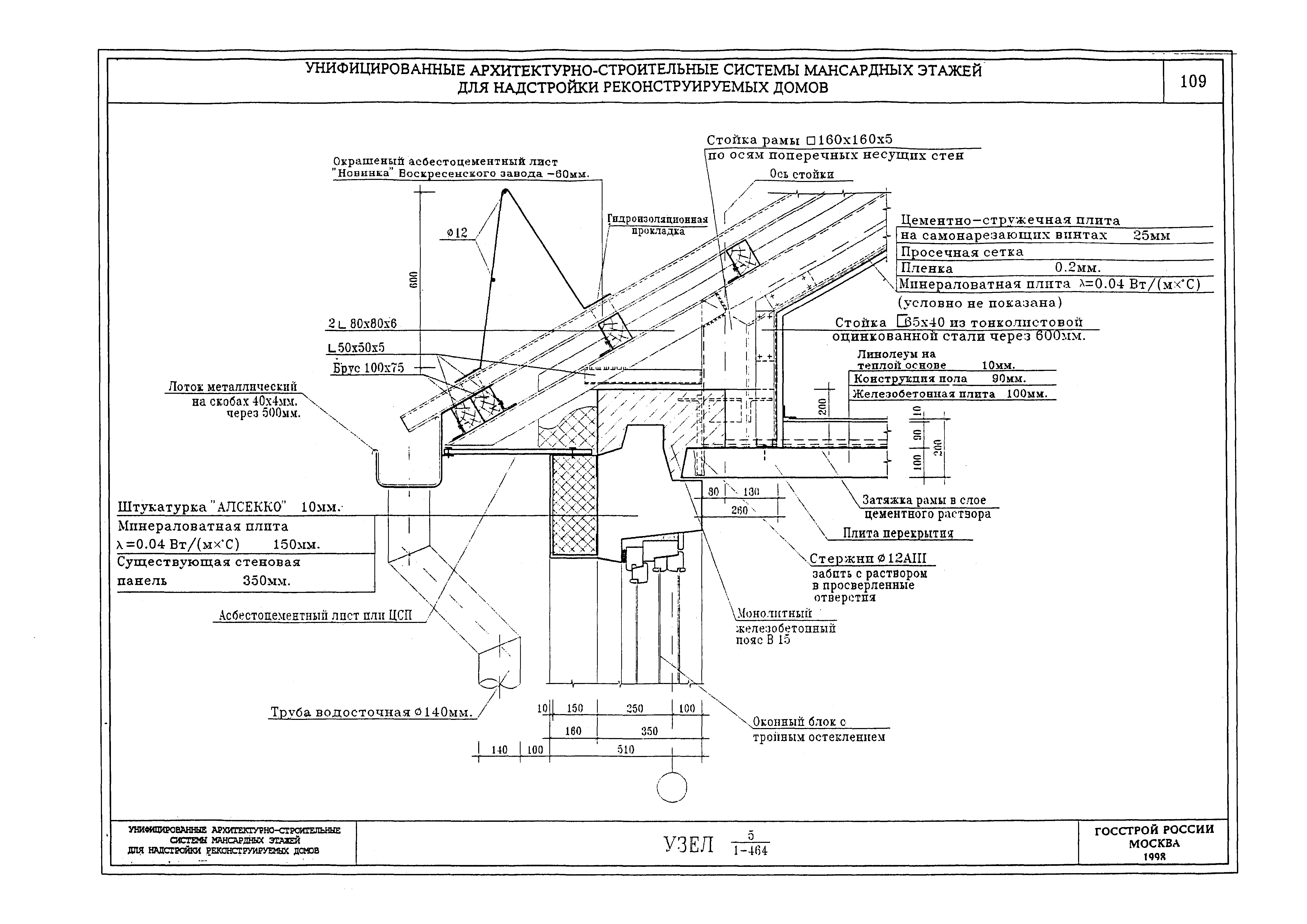
Узел 5/1-464
Узел 6/1-464
Узел 7/1-464
Узел 1/1-468
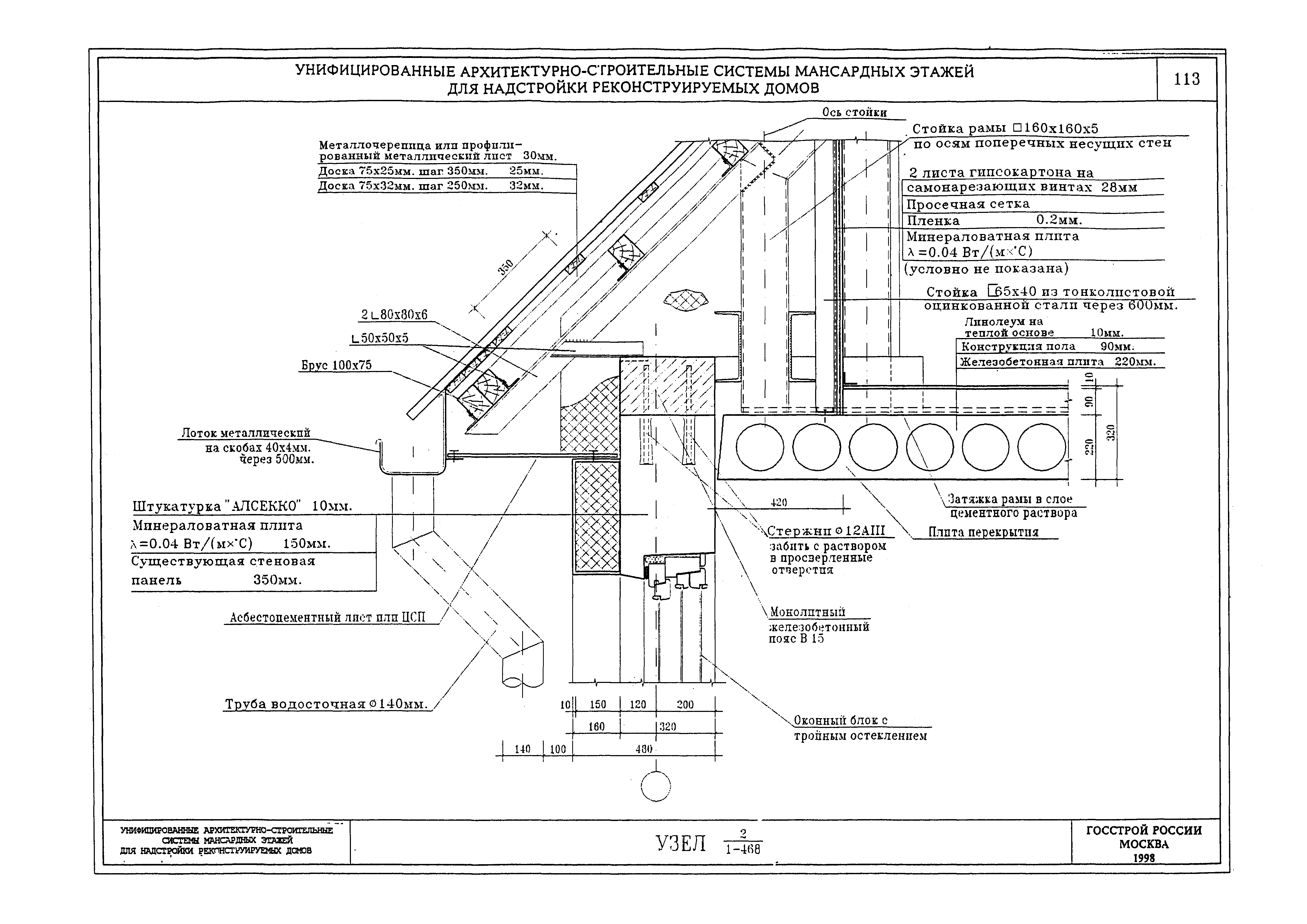
Узел 2/1-468
Узел 3/1-468
Узел 4/1-468
Узел 5/1-468
Узел 6/1-468
Узел 7/1-468
Узел 8/1-468
Узел 9/1-468
Узел 10/1-468
Узел 11/1-468
Узел 1/1-447
Узел 2/1-447
Узел 3/1-447
Узел 4/1-447
Узел 5/1-447
Узел 6/1-447
Узел 7/1-447
Узел 1/1-335
Узел 2/1-335
Узел 3/1-335
Узел 4/1-335
Узел 5/1-335
Узел 6/1-335
Узел 7/1-335
Узел А
Узел Б
Узел В
Узел Г
Узел Д
Узел Е
Узел Ж и И
Узлы К и Л
Узел М
Узел Н
Общие методические рекомендации по проектированию мансардных этажей
Список литературы
Разработан: Научно-производственная компания Здание
Утверждён:10.10.1998 Госстрой России (Russian Federation Gosstroy 8)
Издан: АО ЦНИИЭПжилища (1998 г. )
Расположен в:Техническая документация Экология СТРОИТЕЛЬНЫЕ МАТЕРИАЛЫ И СТРОИТЕЛЬСТВО Строительство Жилые здания Строительство Справочные документы Справочные пособия к СНиП
Нормативные ссылки:

© 2013 Ёшкин Кот :-) Карта сайта