| ||||||||||||||||||||||||||||||||||||
Скачать ГОСТ Р 51324.1-99 Выключатели для бытовых и аналогичных стационарных электрических установок. Часть 1. Общие требования и методы испытанийДата актуализации: 10.08.2017
|
| Обозначение: | ГОСТ Р 51324.1-99 |
| Обозначение англ: | GOST R 51324.1-99 |
| Статус: | заменен |
| Название рус.: | Выключатели для бытовых и аналогичных стационарных электрических установок. Часть 1. Общие требования и методы испытаний |
| Название англ.: | Switches for household and similar fixed electrical installations. Part 1. General specifications and methods of tests |
| Дата добавления в базу: | 01.09.2013 |
| Дата актуализации: | 05.05.2017 |
| Дата введения: | 01.01.2007 |
| Область применения: | Настоящий основополагающий стандарт устанавливает область применения, основные параметры, технические требования и методы испытаний выключателей бытового и аналогичного назначения и разработан для обеспечения нормирования требований, обеспечивающих безопасность и создание нормативной основы для проведения в России сертификации бытовых выключателей на основе прямого применения второго издания международного стандарта МЭК 60669-1-98 с дополнительными требованиями, учитывающими потребности экономики страны. |
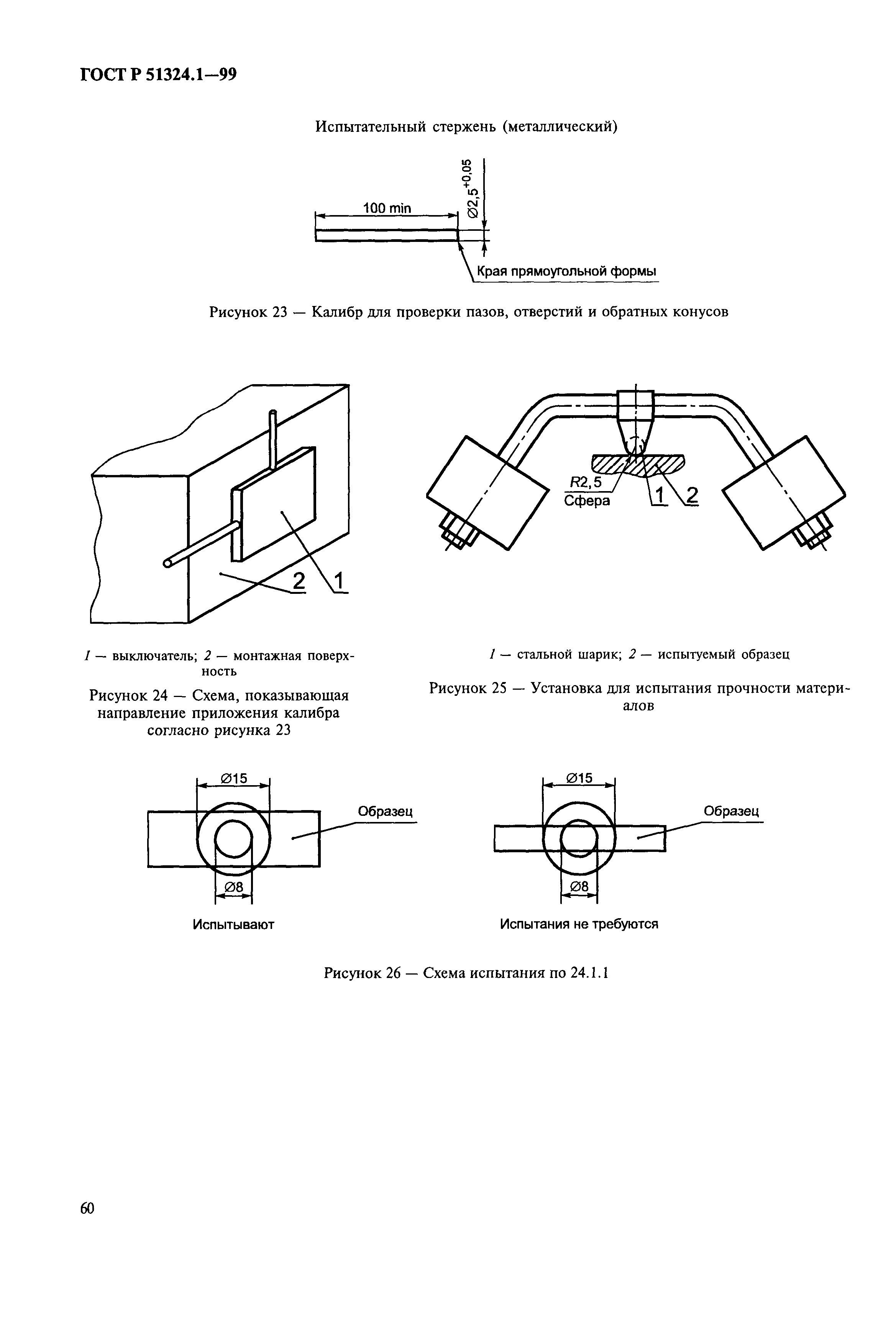
| Оглавление: | 1 Область применения 2 Нормативные ссылки 3 Определения 4 Общие требования 5 Общие требования к испытаниям 6 Номинальные значения 7 Классификация 8 Маркировка 9 Проверка размеров 10 Защита от поражения электрическим током 11 Заземление 12 Контактные зажимы 13 Требования к конструкции 14 Механизм 15 Устойчивость к старению, защита от проникновения воды и влагоустойчивость 16 Сопротивление и электрическая прочность изоляции 17 Превышение температуры 18 Включающая и разрывная мощность 19 Нормальная работа 20 Механическая прочность 21 Нагревостойкость 22 Винты, токоведущие части и соединения 23 Пути утечки тока, воздушные зазоры и расстояния через заливочную массу 24 Стойкость изоляционных материалов к аномальному нагреву, огню и трекингостойкость 25 Коррозиеустойчивость 26 Требования к электромагнитной совместимости Рисунки Приложение А Обозначение образцов, необходимых для испытаний Приложение В Дополнительные требования к выключателям, имеющим средства для вывода и удержания гибких кабелей Приложение С Дополнительные требования, учитывающие потребности экономики страны и требования государственных стандартов на электротехнические изделия Приложение D Требования к протоколу испытаний выключателей Приложение E Библиография |
| Разработан: | АООТ НИИЭлектроаппарат |
| Утверждён: | 29.12.1999 Госстандарт России (Russian Federation Gosstandart 798-ст) |
| Издан: | ИПК Издательство стандартов (2000 г. ) |
| Расположен в: | |
| Чем заменён: | |
| Нормативные ссылки: |
|












































































